Rapport d'enquête ferroviaire R12W0165

Déraillement en voie principale
Chemin de fer Canadien Pacifique
Train de marchandises n° 113-26 du CP
Point milliaire 34,3, subdivision de Carberry
Poplar Point (Manitoba)

Le Bureau de la sécurité des transports du Canada (BST) a enquêté sur cet événement dans le but de promouvoir la sécurité des transports. Le Bureau n’est pas habilité à attribuer ni à déterminer les responsabilités civiles ou pénales. Le présent rapport n’est pas créé pour être utilisé dans le contexte d’une procédure judiciaire, disciplinaire ou autre. Voir Propriété et utilisation du contenu. Les pronoms et les titres de poste masculins peuvent être utilisés pour désigner tous les genres afin de respecter la Loi sur le Bureau canadien d’enquête sur les accidents de transport et de la sécurité des transports (L.C. 1989, ch. 3).

Table des matières

    Résumé

    Le 29 juillet 2012, à environ 18 h 10, heure avancée du Centre, le train de marchandises intermodal n° 113-26 du Canadien Pacifique, parti de Winnipeg (Manitoba) en direction de Brandon (Manitoba), roule vers l’ouest dans la subdivision de Carberry du lorsque 12 wagons intermodaux (16 caisses de wagons) transportant des conteneurs empilés vides déraillent. Personne n’est blessé; l’événement ne met aucune marchandise dangereuse en cause.

    Renseignements de base

    Le 29 juillet 2012, le train de marchandises n° 113-26 (train 113) du Chemin de fer Canadien Pacifique a quitté Winnipeg (Manitoba), pour rouler vers l’ouest dans la subdivision de Carberry du en direction de Brandon (Manitoba). Le train était formé de 2 locomotives et de 56 wagons porte­conteneurs intermodaux à évidement central transportant des conteneurs empilés vides. La longueur du train était d’environ 6300 pieds et son poids était d’environ 5500 tonnes. L’équipe de train était constituée d’un chef de train et d’un mécanicien de locomotive. Tous deux connaissaient le territoire, possédaient les qualifications et les aptitudes requises pour leurs fonctions et avaient respecté les exigences relatives aux périodes de repos.

    Vers 18 h 10Note de bas de page 1, alors que le train 113 roulait à environ 27 mi/h dans des conditions météorologiques particulièrement mauvaises, l’équipe de train a reçu un appel radio du contrôleur de la circulation ferroviaire du . Le contrôleur a informé l’équipe de la présence de vents violents dans la région et lui a conseillé de prendre les précautions requises. Presque au même moment, un freinage d’urgence provoqué par le train s’est déclenché et la tête du train 113 s’est arrêtée au point milliaire 35,0, à proximité de Poplar Point (Manitoba) (voir la figure 1).

    Figure 1. Lieu de l'accident (Source : Association des chemins de fer du Canada, Atlas des chemins de fer canadiens)
    Image
    Figure 1. Lieu de l'accident (Source : Association des chemins de fer du Canada, Atlas des chemins de fer canadiens)

    Une inspection effectuée par le chef de train a révélé que 12 wagons (16 caisses de wagons au total), du 26e au 37e, derrière la locomotive de tête avaient déraillé. Personne n’a été blessé, et aucune marchandise dangereuse n’a été mise en cause.

    Au moment de l’événement, les vents étaient violents et la pluie était forte. Avant le déraillement, ces vents avaient empêché le train d’atteindre sa vitesse en voie, mais l’équipe n’avait décelé aucune autre anomalie dans le comportement du convoi.

    Examen des lieux

    À l’endroit où l’incident s’est produit, la voie traverse une prairie plate et dégagée. Il n’y avait pratiquement pas de feuillage dans les environs (p. ex. des arbres ou de gros buissons).

    Le premier wagon déraillé était un porte-conteneurs à évidement central unique. Ce wagon était suivi de 3 wagons porte-conteneurs du même type, d’un groupe de 5 wagons (5 caisses de wagons) porte-conteneurs articulés à évidements centraux multiples, puis de 7 autres wagons à évidement central unique. Chacune des 16 caisses de wagons transportait 2 conteneurs empilés vides (à 2 niveaux). Treize caisses de wagons ont déraillé du côté sud de la voie (voir la figure 2).

    Figure 2. Schéma du site du déraillement (L'image n'est pas à l'échelle)
    Image
    Figure 2. Schéma du site du déraillement (L'image n'est pas à l'échelle)

    La plupart des wagons sont demeurés en file attachés les uns aux autres et se sont renversés sur le côté; les conteneurs empilés étaient toujours verrouillés en place. Les bogies étaient relativement intacts, mais dispersés le long de la voie (voir la photo 1).

    Photo 1. Photo des wagons déraillés en direction ouest
    Image
    Photo 1. Photo des wagons déraillés en direction ouest

    Des marques de boudins de roues étaient visibles sur les traverses à partir du point milliaire 34,3, environ. Les champignons de rail ne portaient aucune marque visible.

    Renseignements sur la subdivision et la voie

    La subdivision de Carberry du va de Winnipeg (point milliaire 0,0) à Brandon (point milliaire 133,1). Les mouvements de train sont régis par le système Commande centralisée de la circulation, autorisé par le Règlement d’exploitation ferroviaire du Canada, qui est approuvé par Transports Canada. Ces mouvements sont supervisés par un en poste à Calgary (Alberta). La vitesse maximale autorisée par l’indicateur pour les trains dans le secteur de l’accident est de 60 mi/h. La circulation ferroviaire est constituée d’environ 15 trains de marchandises par jour.

    À l’endroit du déraillement, la voie est en alignement droit. Elle est constituée de longs rails soudés de 115 livres, fixés à des selles de rail et à des traverses en bois dur par des crampons. Le degré d’usure des rails se situe dans les limites prescrites. La dernière inspection de la géométrie et l’auscultation ultrasonique des rails dans la zone du déraillement ont eu lieu le 27 juin et le 28 juillet 2012, respectivement. Dans les deux cas, aucune anomalie n’a été constatée : la voie était en bon état.

    Conditions météorologiques

    Le 29 juillet 2012, Environnement Canada a émis une alerte d’orages violents. À 17 h 20, le radar météo a détecté, immédiatement à l’est de Carberry, une série d’orages violents se déplaçant vers le sud-est. Le bureau météorologique local a déterminé que ces orages pouvaient produire des vents de plus de 100 km/h (62 mi/h), de gros grêlons et des pluies torrentielles. À peu près au même moment, les stations radiophoniques locales signalaient des bourrasques atteignant 150 km/h (93 mi/h) près de St. Laurent (Manitoba), à environ 40 km au nord de la zone du déraillement.

    Selon les données météorologiques archivées d’Environnement Canada (de 1995 à 2013), les vents les plus violents mesurés dans cette région ont atteint 150 km/h (93 mi/h) en 2000. L’analyse des données relatives à ces vents violents a permis de déterminer que les vents de plus de 100 km/h (62 mi/h) étaient générés surtout pendant les orages.

    Protocoles d'exploitation du Chemin de fer Canadien Pacifique

    Instructions générales d'exploitation

    Les règles de formation des trains intermodaux chargés sont décrites dans les Instructions générales d’exploitation du .

    • La section 7 donne un aperçu du système de classement zonal dans les trains (TrAM) du .
    • La section 10 porte sur le transport exceptionnel et indique les limites de vitesse à certains endroits pour les trains comportant des wagons articulés à évidements centraux multiples transportant des conteneurs empilés.

    Dans l’événement en question, le train a été formé conformément aux instructions du et aucune restriction de vitesse n’était indiquée pour la subdivision de Carberry.

    Protocoles en cas de vents violents

    Le a conclu une entente avec Environnement Canada concernant le service de surveillance météorologique fourni à son Centre de gestion du réseau/Centre d’exploitation. Les prévisions de vent violent sont transmises au électroniquement par le système (Rail Weather Information System).

    est un outil Web qui recueille et analyse, en temps réel, diverses données sur la météo et les sources de danger. Ce système est conçu pour repérer les dangers liés aux conditions météorologiques et les signaler au . Les données, les alertes et les avertissements météorologiques sont propres à chaque région du . Le système produit également des historiques des précipitations, ce qui permet au de prévoir avec plus de précision les phénomènes tels que les glissements de terrain et l’érosion.

    Lorsque émet un avertissement de vent, un courriel d’avertissement dont le titre précise qu’il s’agit d’un avertissement de vent est envoyé à la ligne d’urgence du / du . Lorsqu’il reçoit un tel avertissement, le superviseur du transmet l’information au , qui envoie ensuite les instructions appropriées aux équipes de train conformément à la section 3.5 du Manuel du .

    Dans l’événement en question, Environnement Canada a envoyé un avertissement d’orages violents au / à 17 h 34. Un message d’alerte de vent était incorporé au texte descriptif de cet avertissement. Toutefois, aucun message distinct d’avertissement de vent n’a été transmis. Par conséquent, le superviseur du Centre de gestion du réseau n’a pas immédiatement pris connaissance du message d’avertissement de vent. Cette information n’a été constatée qu’un peu après 18 h, juste avant le déraillement.

    Manuel du du - Section 3.5 – Severe Weather Warning Procedure [Procédure en cas d'avertissement de temps violent]

    Lorsqu’il reçoit un avis de temps violent du superviseur du , le doit procéder de la façon suivante :

    1. N’effectuer aucune autre tâche non urgente avant d’avoir exécuté les étapes suivantes :
      • transmettre les avertissements météorologiques à toutes les équipes de train en mouvement dans la zone visée ou à proximité de celle-ci [article 2(i)];
      • émettre un bulletin de marche(en ou en ) au besoin dans la zone visée;
      • noter les détails de l’avertissement et l’endroit visé par celui-ci dans les renseignements sur le train et sur la feuille de planification du .
    2. Communiquer avec toutes les équipes de train se trouvant une zone visée par l’alerte météorologique, et exécuter les étapes suivantes :
      1. transmettre l’alerte météorologique aux équipes concernées;
      2. à partir des renseignements fournis par les équipes d’exploitation, déterminer les conditions locales.
    3. Informer le superviseur des conditions locales [article 2(ii)] pour qu’il établisse le plan d’exploitation.
    4. Aviser verbalement les équipes de train en mouvement, à la demande du superviseur, de procéder de l’une des façons suivantes :
      1. s’arrêter;
      2. se préparer à arrêter avant l’apparition de toute condition pouvant compromettre la sécurité des trains et ne jamais dépasser 25 mi/h;
      3. circuler à la vitesse en voie autorisée.
    5. N’annuler aucune restriction de mouvement avant d’avoir été avisé de ce qui suit, selon le cas :
      1. l’alerte météo est annulée;
      2. la voie a été inspectée et est considérée comme sûre pour les mouvements de train;
      3. les conditions météorologiques s’améliorent dans la zone concernée, selon les renseignements fournis par les équipes de train en mouvement, et le superviseur indique que les mouvements peuvent être effectués en toute sécurité.

    Wind Warning Response - Action Guide for Canada [Plan d'action du en cas d'avertissement de vent violent - mesures à appliquer au Canada].

    Lorsqu’ils reçoivent un avertissement de vent violent, les employés du / du appliquent le protocole décrit dans le document intitulé Wind Warning Response - Action Guide for Canada [Plan d’action du en cas d’avertissement de vent violent - mesures à appliquer au Canada]. Le guide précise notamment ce qui suit [traduction]:

    1. Si des bourrasques de plus de 90 km/h (56 mi/h) sont prévues ou signalées, le émet un blocage de la zone indiquant qu’aucun train comportant des wagons plats à parois de bout ou des wagons intermodaux transportant des conteneurs empilés vides ne doit circuler à plus de 25 mi/h.
    2. Si des bourrasques de plus de 100 km/h (62 mi/h) sont prévues ou signalées, le doit faire ce qui suit :
      • émettre un blocage de la zone pour la région touchée par les vents;
      • noter les détails de l’avertissement météorologique et l’endroit visé par celui-ci;
      • aviser tous les employés des Services de l’ingénierie dans la région;
      • si possible, arrêter les trains sensibles au vent comportant des wagons plats à parois de bout ou des wagons intermodaux chargés de conteneurs empilés vides qui se trouvent du côté sous le vent des voies;
      • si possible, garder les trains sensibles au vent hors des zones de vent du côté sous le vent des voies;
      • Les restrictions applicables aux mouvements de train peuvent être annulées seulement si le a été avisé de ce qui suit par le bureau de la compagnie, selon le cas :
        1. l’avertissement de vent est annulé;
        2. les conditions météorologiques dans la zone concernée s’améliorent, d’après les indications des équipes de train en mouvement.

    Protocoles d’exploitation appliqués par les autres sociétés ferroviaires dans des conditions de vent violent

    Voici les protocoles d’exploitation appliqués par les autres compagnies ferroviaires dans des conditions de vent violent :

    Canadien National

    • Actuellement, le CN n’a pas de système pour communiquer les alertes météo aux équipes travaillant sur les voies autres que les ponts. Des appareils de mesure de la vitesse du vent ont été installés sur les ponts situés dans des zones désignés comme zones sensibles au vent.

    Burlington Northern and Sante Fe

    • BNSF a identifié des zones de vents violents sur des ponts et dans les prairies. À ces endroits, des clôtures ont été installées pour réduire les effets du vent sur les trains. L’entreprise a également installé des appareils de mesure de la vitesse du vent aux endroits où se sont produits des déraillements associés au vent. BNSF n’applique aucune procédure particulière pour aviser les équipes de train des conditions de vents violents.

    Wagons porte-conteneurs à évidement central unique et à évidements centraux multiples

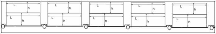
    Les wagons à évidement central unique sont munis d’un bogie de wagons de marchandises à chaque extrémité. Lorsqu’ils sont reliés l’un à l’autre, 5 wagons à évidement central unique sont munis d’un total de 10 bogies. Si chaque wagon de ce type transporte des conteneurs empilés de dimensions similaires, la distance entre les conteneurs sur des wagons adjacents est d’environ 23 pieds. La configuration des 5 wagons à évidement central unique est illustrée à la figure 3.

    Figure 3. Représentation de 5 wagons à évidement central unique ransportant des conteneurs empilés
    Image
    Figure 3. Représentation de 5 wagons à évidement central unique transportant des conteneurs empilés

    (Remarque : Chaque roue représente un bogie de train de marchandises.)

    Les wagons à évidements centraux multiples sont munis d’un bogie de train de marchandises à chaque extrémité du premier et du dernier wagon; les wagons intermédiaires utilisent un bogie commun à chaque extrémité (voir la figure 4). Un groupe de 5 wagons à évidements centraux multiples comporte 6 bogies. Si les wagons à évidements centraux multiples sont pleins et transportent des conteneurs empilés de dimensions similaires, la distance entre les conteneurs sur les caisses de wagons adjacentes est d’environ 11 pieds.

    Figure 4. Représentation d'un groupe de 5 wagons à évidements centraux multiples transportant des conteneurs empilés.
    Image
    Figure 4. Représentation d'un groupe de 5 wagons à évidements centraux multiples transportant des conteneurs empilés.

    (Remarque : Chaque roue représente un bogie de train de marchandises.)

    Charge due au vent calculée par le Bureau de la sécurité des transports

    Le Laboratoire technique du a effectué une analyse théorique statique (LP225/2012) afin de déterminer la vitesse du vent requise pour soulever une roue d’un wagon porte-conteneurs à évidement central unique ou à évidements centraux multiples chargé de conteneurs empilés ou renverser le wagon. Les calculs, qui ont été effectués en fonction d’un vent perpendiculaire au wagon et à la surface des conteneurs, ont permis d’établir ce qui suit :

    • La vitesse du vent requise pour renverser un wagon à évidement central unique transportant des conteneurs empilés vides est de 84 mi/h (135 km/h).
    • La vitesse du vent requise pour renverser un groupe de 5 wagons à évidements centraux multiples chargés de conteneurs empilés vides est de 74 mi/h (119 km/h).
    • Les wagons à évidements centraux multiples peuvent être renversés par un vent moins violent que les wagons à évidement central unique pour les raisons suivantes :
      • la distance est plus courte entre les conteneurs sur des caisses de wagons adjacentes;
      • le nombre de bogies est réduit, ce qui diminue le poids des wagons.
    • La vitesse du vent requise pour renverser un wagon à évidement central unique transportant des conteneurs empilés chargés est de 125 mi/h (201 km/h).

    Simulation dynamique du train en cause

    En se basant sur les valeurs normales d’usure et de dégagement, le a effectué une simulation dynamique du train en cause au moyen de l’outil NUCARSNote de bas de page 2. Cette simulation était basée sur les données et les hypothèses suivantes :

    • valeurs normales d’usure et de dégagement pour un wagon à évidement central unique;
    • profil et géométrie de la voie entre les points milliaires 33 et 35 de la subdivision de Carberry relevés lors de l’inspection de la géométrie effectuée le 27 juillet 2012;
    • vitesse constante de 27 mi/h;
    • direction du vent perpendiculaire à la surface du wagon;
    • charges dues au vent appliquées au centre de la caisse du wagon, à 63,2 pouces au-dessus de la partie supérieure du rail.

    La simulation dynamique a permis de déterminer que la vitesse du vent devait dépasser 90 mi/h (145 km/h) pour provoquer un déraillement résultant du soulèvement des roues.

    Autres événements similaires

    Le 1 novembre 1999, à environ 7 h 35, heure normale du Centre, 2 wagons chargés de conteneurs empilés vides du train de marchandises intermodal du n° 471-30 (train 471), qui roulait vers l’ouest sur la voie principale nord de la subdivision de Carberry, à proximité de Poplar Point (Manitoba) ont déraillé près du point milliaire 42,4. Les wagons ne se sont pas renversés, mais se sont inclinés vers la voie principale sud. À peu près au même moment, le train de marchandises intermodal du n° 472-30 (train 472), qui circulait sur la voie principale sud, est entré en collision avec les conteneurs supérieurs des 2 wagons déraillés du train 471. Les 3 locomotives et 1 conteneur du train 472 ont été endommagés, de même que 6 des 8 conteneurs qui se trouvaient sur les wagons déraillés du train 471. Personne n’a été blessé et aucun produit dangereux n’était en cause dans l’accident. L’enquête a démontré que les vents violents provoqués par le mauvais temps dans la région avaient amplifié l’oscillation naturelle des wagons intermodaux et soulevé une roue, provoquant ainsi un déraillement (Événement n° R99W0231).

    Entre 1999 et 2012, 4 autres déraillements sont survenus (Événements de catégorie 5) parce que les wagons avaient été poussés hors de la voie par des vents violents :

    • R05W0018 - Le 22 janvier 2005, le train de marchandises du n° 104-21 a été mis en état d’urgence au point milliaire 13,8 de la subdivision de Maple Creek lorsque 20 wagons intermodaux non réglementés ont déraillé (18 wagons chargés et 2 wagons vides). Au moment de l’événement, la région était balayée par des vents de travers de 80 à 100 km/h.
    • R06D0017 - Le 23 février 2006, le a signalé que les 6 derniers wagons du train du n° C901-16 avaient déraillé au-dessus du fleuve Saint-Laurent, au point milliaire 42,4 de la subdivision Adirondack. Cinq des wagons déraillés étaient du type à évidement central unique et transportaient des conteneurs empilés vides. Des vents violents dépassant 100 km/h avaient été signalés dans la région au moment de l’incident.
    • R07W0145 - Le 30 juin 2007, le CN a signalé que 20 wagons intermodaux du train du CN n° Q11451-29 qui transportaient des conteneurs vides avaient déraillé à la sortie du pont près de Code (Saskatchewan) au point milliaire 233,5 de la subdivision Rivers. Les conteneurs ont été renversés dans une vallée plus basse par les vents violents.
    • R12W0137 - Le 27 juin 2012, le a signalé le déraillement d’une coupe de 17 wagons-trémies couverts vides au point milliaire 47,0 de la voie principale de la subdivision Gravelbourg. Au moment de l’événement, des vents violents soufflaient dans la région.

    Rapports du Laboratoire du Bureau de la sécurité des transport

    Le Laboratoire technique du a produit le rapport suivant :

    1. LP225/2012 – Wind Load Calculations (Calcul des charges dues au vent)

    Analyse

    Le train était exploité conformément aux exigences de l’entreprise et de la réglementation. Aucun événement particulier concernant la manœuvre du convoi n’a été signalé avant le déraillement. La voie était en bon état et l’événement n’est pas lié à une défaillance de l’équipement. L’analyse portera surtout sur les conditions de temps violent et sur les protocoles de protection contre ces conditions.

    L'accident

    À partir d’un endroit situé aux environs du point milliaire 34,03, on a relevé des marques de boudins de roues sur les traverses, mais aucune sur le champignon de rail. L’absence de marques nettes sur le champignon indique que les roues se sont probablement soulevées, ce qui a provoqué un déraillement. La majorité des wagons déraillés étaient couchés sur le côté et sont demeurés en ligne reliés les uns aux autres. La plupart des bogies de train de marchandises provenant des wagons déraillés sont demeurés intacts près de la voie. La position du matériel déraillé indiquait que les wagons avaient été renversés ou poussés hors de leurs bogies.

    La voie qui traversait la zone de l’incident était principalement droite et reposait sur une prairie plate et dégagée, exempte de feuillage. Le train se dirigeait vers l’ouest en tirant 56 wagons porte­conteneurs intermodaux à évidement central chargés de conteneurs empilés vides. Le côté nord du train était directement exposé aux vents de travers et les bourrasques atteignaient 150 km/h (93 mi/h). Le premier wagon qui a déraillé est un wagon porte-conteneurs à évidement central unique chargé de conteneurs empilés vides.

    Les calculs statiques du Bureau de la sécurité des transports et la simulation dynamique effectuée par le Chemin de fer Canadien Pacifique () au moyen de l’outil NUCARS ont permis de déterminer que des vents de 135 km/h à 145 km/h (84 mi/h à 90 mi/h) étaient suffisamment puissants pour soulever les roues d’un wagon à évidement central unique chargé de conteneurs empilés vides. Le jour de l’incident, des vents atteignant 150 km/h (93 mi/h) soufflaient sur la région et il est probable que le déraillement a été provoqué par les vents violents qui ont poussé les wagons hors de la voie.

    Avertissements de vent

    Les avertissements de vent d’Environnement Canada sont envoyés au par l’entremise du portail Web et par courriel. Lorsqu’ils reçoivent un avertissement de vent, les employés du Centre de gestion du réseau/Centre d’exploitation du appliquent les protocoles appropriés, qui consistent notamment à aviser le contrôleur de la circulation ferroviaire. Or, dans l’événement en question, le titre du courriel d’Environnement Canada n’indiquait pas qu’il s’agissait d’un avertissement de vent. L’avertissement de vent était plutôt incorporé au texte descriptif d’un avertissement d’orage violent. Par conséquent, le Centre de gestion du réseau/Centre d’exploitation n’a pas immédiatement pris connaissance des conditions de vent violent. Lorsque cette omission a été constatée, l’avertissement de vent violent a immédiatement été transmis au et aux équipes de train. Toutefois, cet avertissement a été reçu au moment même où l’accident s’est produit. Même si le dispose de protocoles indiquant les mesures à prendre en cas de conditions météorologiques particulièrement mauvaises, le retard dans la transmission de l’avertissement de vent à l’équipe de train a contribué au déraillement puisqu’il a fait en sorte que le train a poursuivi sa route. Si l’information sur les vents n’est pas communiquée immédiatement en cas de temps violent, il se pourrait que les équipes de train ne prennent pas connaissance de l’état des vents en temps opportun, ce qui accroît les risques de déraillement causé par le soulèvement des roues, notamment pour les trains de marchandises intermodaux transportant des conteneurs empilés vides.eight trains transporting empty double-stacked containers.

    Effets du vent sur les wagons porte-conteneurs à évidements centraux multiples

    La vitesse du vent requise pour renverser un groupe de 5 wagons articulés à évidements centraux multiples transportant des conteneurs empilés vides a été estimée à 119 km/h (74 mi/h); la vitesse du vent requise pour renverser un wagon à évidement central unique transportant des conteneurs empilés vides a été évaluée à 135 km/h (84 mi/h). Si on compare un groupe de 5 wagons articulés à évidements centraux multiples transportant des conteneurs empilés vides à des wagons à évidement central unique transportant une charge similaire, on constate que la poussée du vent dépend directement du nombre et de la dimension des conteneurs. Toutefois, dans le cas du groupe de 5 wagons articulés à évidements centraux multiples, la distance entre les conteneurs, le nombre de bogies et le poids des wagons sont moindres. Comparé à celui d’un wagon à évidement central unique chargé de façon similaire, le risque de soulèvement des roues d’un groupe de 5 wagons articulés à évidements centraux multiples chargés de conteneurs empilés vides en présence de vents violents est plus élevé.

    Faits établis

    Faits établis quant aux causes et aux facteurs contributifs

    1. Le déraillement est survenu lorsque des vents violents produits par des conditions météorologiques particulièrement mauvaises dans la zone de l’incident ont poussé les wagons porte­conteneurs intermodaux chargés de conteneurs empilés vides hors de la voie.
    2. Même si le Chemin de fer Canadien Pacifique dispose de protocoles décrivant les mesures à prendre en cas de temps violent, l’avertissement de vent violent a été transmis en retard, de sorte que l’équipe de train n’a pas reçu l’information en temps opportun. Le train a donc poursuivi sa route sans que les mesures appropriées soient prises, ce qui a probablement contribué au déraillement.

    Faits établis quant aux risques

    1. Si l’information sur l’état des vents n’est pas communiquée immédiatement en cas de conditions météorologiques particulièrement mauvaises, les équipes de train ne seront pas informées de l’état des vents en temps opportun, ce qui accroît les risques de déraillements causés par le soulèvement des roues, surtout pour les trains de marchandises intermodaux transportant des conteneurs empilés vides.

    Autres faits établis

    1. Comparé à celui que présente un wagon à évidement central unique chargé de façon similaire, le risque de soulèvement des roues d’un groupe de 5 wagons articulés à évidements centraux multiples chargés de conteneurs empilés vides en présence de vents sont violents est plus élevé.

    Mesures de sécurité

    Le document intitulé Severe Weather Warning Procedure [Procédure en cas d’avertissement de temps violent] a été modifié en septembre 2012. La nouvelle procédure comprend les étapes suivantes :

    • Le météorologue du système d’information météorologique en devoir analyse les détails de tous les avertissements d’orages violents.
    • Si l’avertissement mentionne un risque de vent violent (plus de 90 km/h), le météorologue envoie par courriel un nouvel avis dont le titre indique qu’il s’agit d’un avertissement de vent violent.
    • Le météorologue utilise la ligne d’urgence du / du Chemin de fer Canadien Pacifique pour transmettre l’avertissement verbalement.

    Le présent rapport met un terme à l’enquête du Bureau de la sécurité des transports du Canada sur cet événement. Le Bureau a autorisé la publication du rapport le . Il est paru officiellement le 3 septembre 2013.