Rapport d'enquête maritime M08W0236

Quasi-chavirement avec perte de vie
de la péniche de débarquement
de type SeaLander 37 Jumbo B
dans le chenal de Burke,
près de la baie Restoration (Colombie-Britannique)

Le Bureau de la sécurité des transports du Canada (BST) a enquêté sur cet événement dans le but de promouvoir la sécurité des transports. Le Bureau n’est pas habilité à attribuer ni à déterminer les responsabilités civiles ou pénales. Le présent rapport n’est pas créé pour être utilisé dans le contexte d’une procédure judiciaire, disciplinaire ou autre. Voir Propriété et utilisation du contenu. Les pronoms et les titres de poste masculins peuvent être utilisés pour désigner tous les genres afin de respecter la Loi sur le Bureau canadien d’enquête sur les accidents de transport et de la sécurité des transports (L.C. 1989, ch. 3).

Table des matières

    Résumé

    Dans la matinée du 30 octobre 2008, la péniche de débarquement Jumbo B se dirige vers l'île King (Colombie-Britannique) avec à bord un conducteur et six passagers. Vers 9 h, heure avancée du Pacifique, alors que le navire fait route, la porte rampe avant s'ouvre, et l'eau s'engouffre par l'ouverture, créant une gîte sur tribord. Le conducteur et deux passagers sautent à l'eau. Par la suite, les quatre passagers restés à bord exécutent une manœuvre d'échouage. Des trois personnes qui ont sauté à l'eau, une seule a réussi à remonter à bord; le corps de la deuxième personne a été récupéré plus tard; la troisième personne est portée disparue.

    Renseignements de base

    Fiche technique du navire

    Nom du navire Jumbo B
    Numéro officiel 392965
    Port d'immatriculation Vancouver (C.-B.)
    Pavillon Canada
    Type Cargo polyvalent
    Jauge bruteNote de bas de page 1 7,97
    Longueur 11,28 m
    Construction 1980
    Propulsion
    Deux moteurs diésels Volvo Penta de 200 kW entraînant chacun une hélice
    Cargaison 1250 kg de cônes de protection d'arbres
    Passagers 6
    Équipage 1 personne
    Propriétaire enregistré Kitimat Command Marine Supply, Ltd.
    Armateur gérant Kirk Ventures, Ltd.

    Renseignements sur le navire

    Photo 1. Le Jumbo B échoué après l'accident
    Image
    Le Jumbo B échoué après l'accident

    Le Jumbo B est une péniche de débarquement à faible tirant d'eau à un seul pont. Les moteurs sont situés à l'arrière et commandés de la timonerie.

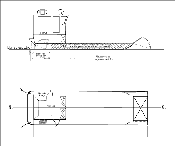
    Le navire est équipé d'une coque en caisson munie de coffres en mousse polyuréthane recouverts de fibre de verre à haute résistance lui assurant une flottabilité positive. Le navire n'a pas de bouchains (voir Annexe B - Plan d'ensemble du navire).

    Le navire est conçu pour maintenir une flottabilité positive lorsque la porte rampe avant est abaissée en position ouverte et que les sabords de décharge arrière sont ouverts. En route, la porte rampe avant doit être fermée pour empêcher l'eau de s'engouffrer et de s'accumuler sur le pont. Le navire est équipé de sabords de décharge à l'arrière pour évacuer l'eau qui pourrait embarquer par-dessus la porte rampe avant ou les plats-bords.

    À sa construction, le navire était équipé de deux moteurs à essence. En 1995, ils ont été remplacés par des moteurs diésels plus lourds. En 2007, l'exploitant a modifié la porte rampe avant en installant deux treuils pour remplacer le mécanisme à treuil unique.

    Un toit-abri temporaire avait été érigé sur le pont, juste à l'avant de la timonerie, pour abriter les passagers sur le pont du coffre. Le toit-abri obstruait la vue de la porte rampe avant depuis la timonerie.

    Déroulement du voyage

    Le Jumbo B était affrété à Brinkman and Associates, une entreprise de reboisement, pour transporter des cônes de protection d'arbres en plastique à partir de différentes zones boiséesNote de bas de page 2.

    À 18 h 30Note de bas de page 3 le 29 octobre 2008, le Jumbo B rentre au camp forestier de Doc Creek après s'être rendu à un site situé sur l'île King (C.-B). Il transporte environ 1250 kg de cônesNote de bas de page 4 chargés en pontée dans l'axe longitudinal du navire.

    À 8 h le lendemain matin, les 6 passagers montent à bord du navire pour se rendre à l'île King, située à environ 6 milles marins de là. À 8 h 30, le Jumbo B appareille de Doc Creek. Les passagers et le conducteur sont dans la timonerie, et les cônes chargés la veille sont toujours sur le pont. Vers 9 h, le navire passe la pointe au nord de la baie Restoration et entre dans le chenal de Burke. Les vents sont du nord, estimés à 20 nœuds, avec des vagues d'une hauteur de 1 à 1,5 m. À ce moment, plusieurs grands bruits provenant de l'avant sont entendus, et de l'eau est observée sur le pont. Le navire prend de la gîte sur tribord, et les cônes en plastique ripent sur tribord.

    Le conducteur ordonne aux passagers d'endosser des gilets de sauvetage. Le conducteur et deux des six passagers s'emparent de vêtements de flottaison individuels (VFI) mais ne les endossent pas, puis ils sortent de la timonerie par la porte de tribord. Le conducteur et un des passagers qui a pris un VFI se jettent à l'eau du côté tribord. Un deuxième passager saute également à l'eau avec un VFI et s'accroche au pavois tribord du navire.

    Alors qu'il est dans l'eau, le conducteur crie aux personnes restées à bord de gouverner le navire. Deux des quatre passagers restants prennent la barre et ramènent les manettes de puissance, et le navire commence lentement à se redresser. Entre-temps, de l'eau s'est infiltrée dans le compartiment moteur par l'évent tribord, causant l'arrêt du moteur tribord et la perte de la gouverne.

    Pour réduire le poids sur le pont, et parce que les cônes obstruent partiellement les sabords de décharge et empêchent l'eau sur le pont de s'évacuer, trois passagers commencent à jeter des cônes par-dessus bord. Ils sont aidés par le passager accroché au flanc du navire.

    À mesure que le navire se redresse, il devient possible pour le passager à la barre de gouvernerNote de bas de page 5. Le passager accroché au pavois tribord remonte alors sans aide sur le navire.

    À ce moment, les deux personnes qui sont restées dans l'eau ne sont plus visibles; les personnes à bord entreprennent tout de même une brève recherche. Ensuite, par crainte de voir le navire chavirer, elles le dirigent jusque sur la rive et débarquent.

    Recherche et sauvetage

    En route vers la rive, les passagers ont d'abord tenté sans succès d'appeler le service 911 au moyen du téléphone satellite. À 9 h 10, grâce à un répertoire des numéros du téléphone satellite à bord, ils ont contacté le B.C. Timber Service (service forestier de la Colombie-Britannique). La personne qui a reçu l'appel a appelé le service 911, qui à son tour a contacté le Centre conjoint de coordination des opérations de sauvetage (CCCOS) de Victoria (C.-B.), qui a alors lancé l'opération de recherche et sauvetage. Il y avait une radio marine VHF à bord mais elle n'était pas allumée.

    À 9 h 13, l'embarcation rapide BB1 de la Garde côtière canadienne (GCC) et le garde-côte Cape Farewell de la GCC, sont dépêchés de la base de la GCC à Bella Bella (C.-B.) pour entreprendre les recherches. À 9 h 24, un avion Buffalo 452 et un hélicoptère Cormorant 906 sont dépêchés pour aider aux recherches et décollent à 9 h 46 de la base des Forces canadiennes à Comox (C.-B.). Deux hélicoptères privés prennent également part aux recherches : un décolle de Doc Creek à 9 h 29 et l'autre de Bella Bella à 9 h 50.

    À 10 h 21, le BB1 récupère le corps du conducteur qui ne porte pas de gilet de sauvetage ni de VFI. À 11 h 37, le Cape Farewell arrive à l'endroit où se trouve le Jumbo B et les 5 passagers survivants sur la rive, par 52°03.275′ N, 127°38.69′ W. La recherche en vue de retrouver le dernier passager s'est poursuivie jusqu'à 18 h 41, où elle a été transférée à la Gendarmerie royale du Canada pour être traitée comme un cas de personne disparue.

    Victimes

    Le conducteur a perdu la vie. Un des passagers est porté disparu.

    Les autres passagers ont été emmenés à Port Hardy (C.-B.) pour évaluation médicale et ont été autorisés à quitter les lieux dans la soirée.

    Immatriculation du navire

    Le navire avait été vendu à Kirk Ventures, Ltd. en février 2003, mais l'immatriculation était restée au nom de Kitimat Command Marine Supply, Ltd.

    Certificats du navire

    Le navire était immatriculé comme cargo polyvalent. Étant un cargo polyvalent d'une jauge brute inférieure à 15, il n'était pas assujetti à l'inspection annuelle de Transports Canada, et il n'existe aucun registre indiquant qu'il ait subi une telle inspection. Le navire n'avait pas été inspecté ni certifié en vue du transport de passagers, et selon le Règlement sur les certificats de bâtimentNote de bas de page 6, il n'était pas tenu de l'être.

    Toutefois, le Règlement sur l'inspection des coques stipule que l'état de la structure doit être inspecté chaque année si le navire entend transporter des passagers. Les équipements de lutte contre l'incendie, de sauvetage, de navigation et de communications doivent aussi faire l'objet d'une inspection annuelle. Une telle inspection comprend la vérification des brevets et certificats de compétence de l'équipage et des permis qui doivent être à bord. Les membres de l'équipage pourraient aussi être appelés à exécuter un exercice d'urgence.

    En outre, le régime d'inspection des petits bâtiments commerciaux de Transports Canada (le Programme de contrôle et d'inspection des petits bâtiments) vise à améliorer la sécurité des petits bâtiments commerciaux qui ont une jauge brute maximale de 15 et qui ne transportent pas plus de 12 passagersNote de bas de page 7.

    L'inspection de Transports Canada sert à assurer que le navire et l'équipage répondent aux prescriptions de sécurité en ce qui concerne :

    • la construction de la coque et la machinerie;
    • la stabilité;
    • les équipements de sauvetage, de navigation et de communications;
    • la formation, les brevets et les certificats des membres de l'équipage.

    Il incombe au propriétaire de contacter le centre de Transports Canada le plus proche pour organiser cette inspection. Par la suite, le propriétaire ou l'exploitant sont responsables d'effectuer une auto-inspection annuelle. Une liste de vérification d'auto-inspection est disponible auprès de Transports Canada. Le système est renforcé par des vérifications ponctuelles.

    Aucun document n'indique que le Jumbo B, son propriétaire ou son exploitant ait à quelque moment pris part au Programme de contrôle et d'inspection des petits bâtiments.

    Brevets, certificats et expérience du personnel

    Le conducteur conduisait le Jumbo B depuis février 2003.

    Le conducteur avait travaillé sur d'autres navires et il était titulaire d'un certificat de formation de conducteur de petits bâtiments (CFCPB) délivré le 26 novembre 2002. Il possédait aussi un certificat de formation sur les fonctions d'urgence en mer (FUM) A3, conformément aux exigences applicables à un petit bâtiment d'une jauge brute d'au plus 15 ne transportant pas de passagers, de même qu'un certificat d'opérateur radio maritime.

    Le conducteur d'un bâtiment de charge ou à passagers d'une jauge brute supérieure à 5 doit cependant être titulaire d'un brevet de Capitaine, avec restrictions, bâtiment d'une jauge brute de moins de 60, valable pour le bâtiment et dans la zone d'exploitation, d'un certificat de formation FUM A2, et d'un certificat médical valide. Il doit aussi y avoir à bord du bâtiment une personne titulaire d'un brevet d'opérateur des machines de petits bâtiments, avec restrictions.

    Armement en équipage

    La Partie 2, Armement, du Règlement sur le personnel maritime, prescrit le nombre minimal de personnes devant faire partie du quart à la passerelle et le nombre de membres d'équipage nécessaires pour exécuter toutes les tâches, y compris celles d'assistance pendant une situation d'urgenceNote de bas de page 8. Le règlement stipule qu'à bord d'un navire transportant des passagers, un deuxième membre d'équipage doit être à bord pour aider le conducteur.

    Construction et modifications du navire

    Porte rampe avant, treuils, poulies et câbles

    Photo 2. Porte rampe avant et dispositif de treuillage
    Image
    Porte rampe avant et dispositif de treuillage

    La porte rampe avant est munie de charnières à son bord inférieur (voir Photo 2). Les deux treuils, d'une capacité de 682 kg chacun, ont été installés sur chaque côté du navire en 2007. Avec des câbles et des poulies d'acier, ils servent à ouvrir et fermer la porte rampe avant, mais ne sont pas conçus pour tenir la porte rampe fermée.

    Chaque câble a un diamètre de 5 mm; il est fait d'acier au carbone galvanisé 7 x 19 et a une résistance à la rupture de 1987 kg. L'analyse au laboratoire du BSTNote de bas de page 9 a révélé que les deux câbles ont cassé à l'endroit où ils passaient dans les pouliesNote de bas de page 10 et que les sections des câbles à proximité des points de rupture montraient des signes de corrosion.

    La poulie de bâbord était corrodée et ne tournait pas librement. Le diamètre de la poulie était de 5 cm, soit environ 13 fois celui du câble de 5 mm. La documentation à ce sujet recommande un rapport d'au moins 30 à 1 entre le diamètre de la poulie et celui du câbleNote de bas de page 11.

    Verrouillage de la porte rampe avant

    Photo 3. Taquet bâbord de la porte rampe avant
    Image
    Taquet bâbord de la porte rampe avant

    Un taquet était fixé sur chaque côté du navire pour tenir la porte rampe en position fermée. Les deux taquets étaient usés, la surface de portée du croc étant polie par l'usure. L'axe d'articulation du croc avait aussi beaucoup de jeu à l'intérieur de sa bague.

    La tige autour de laquelle s'enclenche le taquet pour finaliser le procédé de verrouillage est fixée à l'intérieur d'un gousset dans la porte rampe avant. Les trous de ce gousset étaient ovalisés par l'usure. La conception du taquet ne comprend pas de mécanisme de verrouillage pour maintenir la manette du taquet en position fermée.

    Joint de caoutchouc

    Lorsque la porte rampe avant était fermée, un joint de caoutchouc assurait l'étanchéité entre la porte rampe et la coque du navire. Un examen après l'événement a révélé qu'il manquait de longues sections du joint. Il y avait donc un espace vide entre la porte rampe avant et la coque, même lorsque la porte rampe était fermée avec les taquets verrouillés.

    Sabords de décharge

    Photo 4. Cône dépassant du sabord de décharge tribord
    Image
    Cône dépassant du sabord de décharge tribord

    À l'origine, le navire était muni de deux sabords de décharge à charnières, un de chaque côté du tableau arrière. L'examen a révélé que le panneau du sabord de décharge tribord était manquant.

    Le navire avait normalement une assiette positive, de sorte que la flottaison se situait environ à 50 mm au-dessus du bord inférieur des sabords de décharge et du pont principal. Des algues et des organismes marins étaient visibles au-dessus du bord inférieur des sabords de décharge et sur la partie arrière du pont principal (voir Photo 4).

    Équipement de sauvetage, équipement de détresse et consignes de sécurité

    Une inspection de l'équipement de sauvetage après l'événementNote de bas de page 12 a révélé ce qui suit :

    • il restait un gilet de sauvetage à bord après l'accidentNote de bas de page 13; il n'était pas muni du ruban réflecteur obligatoire, il était souillé et en mauvais état;
    • il y avait à bord 4 signaux pyrotechniques de détresse de type B, qui étaient périmés depuis septembre 2003;
    • il y avait 2 extincteurs de 2½ livres de classe B à bord, dont les dates de péremption étaient rendues illisibles par la corrosion;
    • il n'y avait pas de bouée de sauvetage ni de ligne d'attrape flottante à bord, même si le navire était équipé d'une ferrure de support pour bouée de sauvetage;
    • il n'y avait pas de radeau de sauvetage à bord.

    Sur un navire qui transporte des passagers, des consignes sur la sécurité et sur les procédures d'urgence doivent être données avant l'appareillage. Dans le cas qui nous occupe, des consignes de sécurité n'ont pas été données aux passagers avant l'appareillage. Les passagers n'ont pas reçu de consignes sur les procédures de sécurité ni sur l'équipement de sauvetage à bord.

    Les exigences concernant l'équipement minimal de sauvetage et l'équipement minimal de détresse pour les navires de charge comme le Jumbo B et pour les navires qui transportent des passagers sont spécifiées dans le Règlement sur les petits bâtiments. Ces deux types de navires doivent avoir à leur bord un gilet de sauvetage normalisé ou un gilet de sauvetage pour petits bâtiments de la bonne taille pour chaque personne à bord (7 dans le cas présent), de même que différents autres équipements comme une bouée de sauvetage approuvée, des signaux pyrotechniques de détresse approuvés (6 dans le cas présent) et un extincteur d'incendie.

    Étant un navire de charge, le Jumbo B n'était pas équipé d'un radeau de sauvetage. En tant que navire transportant des passagers, et vu la région et la saison où s'est produit l'accidentNote de bas de page 14, il devait y avoir un radeau de sauvetage à bord.

    Conditions météorologiques

    Selon le rapport du garde-côte de la GCC Cape Farewell, qui est arrivé sur les lieux dans les deux heures qui ont suivi l'accident, les conditions météorologiques sur les lieux étaient les suivantes : averses, vents du nord-est de 20 nœuds et vagues d'une hauteur de 1,5 m.

    Flotte de petits bâtiments commerciaux

    Au Canada, un petit bâtiment commercial d'une jauge brute inférieure à 15 doit détenir un permis ou être immatriculé. Un bâtiment d'une jauge brute supérieure à 15 doit être immatriculé.

    En 2005, Transports Canada estimait à environ 50 000 le nombre de petits bâtiments commerciaux (autres que les bateaux de pêche) en exploitation au CanadaNote de bas de page 15. En date d'avril 2009, Transports Canada a indiqué que 32 353 d'entre eux (jauge brute d'au plus 15), dont le Jumbo B, détenaient un permis ou étaient immatriculés.

    La différence entre ces chiffres (environ 17 500) donne une idée du nombre de petits bâtiments commerciaux qui n'apparaissent ni dans le registre d'immatriculation ni dans celui de délivrance des permis.

    Dans le cadre du Programme de contrôle et d'inspection des petits bâtiments, Transports Canada a entrepris d'identifier l'ensemble des petits bâtiments. Par exemple, dans la Région du Pacifique, Transports Canada a mis sur pied un bureau de premier intérêt à Kelowna (C.-B.), et en est au stade d'identifier, de répertorier et de contacter tous les exploitants de petits bâtiments commerciaux immatriculés en Colombie-Britannique. Au moment de la rédaction du présent rapport, une liste de quelque 12 500 bâtiments avait été établie.

    Événements antérieurs

    Les statistiques du BST indiquent qu'entre 1998 et 2008, il est survenu 1023 événements mettant en cause des petits bâtiments commerciaux d'une jauge brute inférieure à 15. Ces événements ont fait 49 morts.

    Le 3 décembre 2001, un bateau de travail transportant cinq travailleurs de la construction sur le lac des Deux-Montagnes (Québec) a été envahi et a coulé. L'accident a fait trois mortsNote de bas de page 16. Le bâtiment n'avait pas été identifié comme un bâtiment commercial ni inspecté par Transports Canada, et le propriétaire n'avait pas demandé d'inspection. Une enquête menée par la Commission de la santé et de la sécurité au travailNote de bas de page 17 a révélé que le bateau n'avait pas une réserve de flottabilité suffisante, que le bateau de secours disponible n'était pas équipé correctement, que la basse température de l'eau a été un facteur contributif des décès et que les passagers ne portaient pas de gilets de sauvetage.

    Le 15 mai 2002, le bateau de travail 36E33460 transportait une équipe de quatre couvreurs et une cargaison de bardeaux usagés provenant d'un chantier de construction sur le lac Anstruther (Ontario)Note de bas de page 18. Au milieu du lac, le bateau lourdement chargé a commencé à embarquer de l'eau par l'avant. Peu après, l'embarcation s'est emplie d'eau et a coulé. Les quatre couvreurs ont réussi à gagner la rive à la nage; le conducteur s'est noyé. L'enquête a révélé que Transports Canada n'était pas au courant que le bateau était exploité comme petit bâtiment à passagers, que ni les règlements ontariens ni les règlements fédéraux ne contiennent de dispositions visant à protéger contre l'hypothermie les travailleurs qui voyagent comme passagers à bord de petits bâtiments commerciaux, et que l'absence d'exigences réglementaires fédérales et provinciales efficaces peut faire courir des risques inutiles aux travailleurs qui voyagent comme passagers à bord de petits bâtiments commerciaux.

    Le 10 décembre 2003, en quittant un chantier sur l'île Payette dans la baie Georgienne (Ontario), un bateau de travail transportant quatre personnes a chaviréNote de bas de page 19. Trois personnes ont été secourues et une personne s'est noyée. L'enquête a révélé que Transports Canada n'avait pas identifié le bateau comme un petit bâtiment commercial et que l'ancien système de délivrance de permis ne facilitait pas l'identification des bâtiments utilisés dans des activités commerciales. Le bateau avait été modifié mais le propriétaire n'avait pas communiqué avec Transports Canada pour demander une inspection après les modifications; il ne savait pas que c'était nécessaire.

    Analyse

    Défaillance de la porte rampe avant

    Sur une péniche de débarquement de ce type, l'étanchéité de la porte rampe avant dépend de sa conception et de l'état de ses composants. Il est donc essentiel d'assurer que les éléments du système sont de la bonne dimension, en bon état et de bonne qualité, qu'ils sont faits de matériaux compatibles, et qu'ils seront réparés ou remplacés lorsqu'ils sont manquants, endommagés ou défectueux. Il faut aussi assurer que les composants remplissent la fonction prévue et que des systèmes auxiliaires sont installés lorsque cela est possible.

    Dans le présent événement, le système de treuillage et ses composants avaient été modifiés seulement un an auparavant, pourtant la poulie bâbord était déjà corrodée au point de ne plus tourner librement. Le câble était également corrodé à son point de passage dans la poulie. Des sections du joint de caoutchouc servant à assurer l'étanchéité entre la porte rampe et la péniche étaient manquantes et les trous dans le gousset du taquet étaient ovalisés, indiquant que le taquet avait été soumis à des contraintes excessives.

    En outre, la conception de la porte rampe était telle qu'il n'y avait pas de mécanisme de verrouillage pour tenir le taquet fermé une fois que la porte rampe était fermée; cette fonction était plutôt remplie en maintenant une tension constante sur le câble de treuil. À l'origine, ce câble devait servir uniquement à ouvrir et à fermer la porte rampe, mais il était aussi soumis à une charge cyclique causée par l'action des vagues contre la porte.

    Le câble a été affaibli par les effets conjugués de la fatigue, de la corrosion, et de l'abrasion due au fait qu'il était constamment soumis à une pression contre la poulie qui était de la mauvaise dimensionNote de bas de page 20. Il en est résulté un point faibleNote de bas de page 21 localisé qui a fini par casser. L'autre câble a ensuite cassé également; la porte était alors tenue en position fermée seulement par les deux taquets, qui n'étaient pas munis de mécanisme de verrouillage. Toutefois, en raison des sections manquantes dans le joint d'étanchéité, les taquets avaient beaucoup de jeu et ont fini par ouvrir. La porte rampe est alors tombée et s'est retrouvée en position complètement ouverte, permettant à l'eau d'envahir le pont du coffre.

    Toutefois il est aussi possible que les taquets aient cédé avant la rupture du câble.

    Le mauvais état des taquets de la porte rampe avant et l'absence d'un mécanisme de verrouillage faisaient que les câbles de levage étaient constamment sous tension pour tenir la porte rampe fermée. Le système de treuillage avait été modifié de façon inappropriée, et certains de ses composants, notamment les câbles, étaient fortement corrodés. Un des câbles a cédé par fatigue à l'endroit où il passait dans une poulie de mauvaise dimension; tout le poids de la porte rampe s'est alors retrouvé sur l'autre câble, qui a cédé lui aussi.

    Une fois la porte rampe avant ouverte, l'eau s'est engouffrée par l'ouverture. Les obstructions dans les sabords de décharge ont nui à la capacité du navire d'évacuer l'eau. L'eau accumulée a provoqué une gîte sur tribord jusqu'à ce que le navire ralentisse. L'eau a alors été évacuée et le navire s'est redressé.

    Obstruction de la vue vers l'avant

    Photo 5. Vue de l'avant depuis la position du conducteur dans la timonerie
    Image
    Vue de l'avant depuis la position du conducteur dans la timonerie

    Le conducteur avait la meilleure position depuis la timonerie de la péniche pour observer le pont du coffre et assurer la veille.

    Le toit-abri obstruait toutefois la vue vers l'avant. En conséquence, au moment où le conducteur et les passagers dans la timonerie ont entendu les grands bruits venant de l'avant et qu'ils ont observé l'eau sur le pont, ils n'ont pas pu déterminer immédiatement que c'était la porte rampe avant qui venait de céder.

    Exploitation et inspections du navire

    Les passagers à bord des navires commerciaux, qu'ils soient des touristes ou des travailleurs sylvicoles, s'attendent à ce que les bateaux soient sécuritaires, que les conducteurs soient compétents et qu'ils ne seront pas exposés à un risque inacceptable au cours de la traversée. À cette fin, Transports Canada fournit aux exploitants un cadre réglementaire national qui s'applique à la sécurité des navires autant sur le plan structurel qu'opérationnel. Il appartient aux propriétaires/exploitants de définir les opérations envisagées; une fois cette étape franchie, l'évaluation de l'état du navire et de la compétence des conducteurs relève de Transports Canada. Les propriétaires/exploitants doivent ensuite s'assurer que leurs navires sont correctement équipés et armés en personnel, et qu'ils sont exploités conformément aux objectifs prévus au moment de l'enregistrement.

    Ce qui est approprié pour un navire de charge diffère toutefois de ce qui est exigé pour un navire à passagers. Dans le présent événement, le capitaine comptait 5 années d'expérience sur le Jumbo B et était titulaire d'un certificat de formation de conducteur de petits bâtiments mais il ne détenait pas le certificat exigé pour conduire le navire en tant que navire à passagers ou navire de charge. Personne n'a vérifié s'il possédait les connaissances ou les compétences requises ou s'il était préparé aux opérations effectuées par le navire. En outre, du fait que le Jumbo B était immatriculé comme navire de charge et qu'il avait une jauge brute inférieure à 15, il n'était pas assujetti à l'inspection annuelle de Transports Canada. L'exploitant n'avait pas non plus décidé d'adhérer au Programme de contrôle et d'inspection des petits bâtiments. Il en est résulté une absence totale d'inspection ou de vérification de l'état du Jumbo B, ce qui a privé l'exploitant d'une occasion de corriger les lacunes de sécurité qui auraient pu être décelées. Par exemple, l'équipement de lutte contre l'incendie et l'équipement de sauvetage étaient soit en mauvais état, périmé ou manquant. La porte rampe avant et son système de fixation étaient aussi en mauvais état.

    L'utilisation de petits bâtiments commerciaux pour transporter des passagers est pratique courante au Canada. Le Jumbo B servait régulièrement à transporter des travailleurs sylvicoles, pourtant il n'avait pas été identifié ou classé comme navire à passagers auprès de Transports Canada. En conséquence, il n'avait pas subi l'inspection annuelle obligatoire, et les travailleurs n'ont pas reçu les consignes de sécurité obligatoires avant l'appareillage.

    Les navires qui n'ont pas été identifiés et inspectés en vue de leur utilisation prévue ne sont peut-être pas pourvus de l'équipement approprié. Il se peut aussi que les conducteurs qui ne détiennent pas les brevets et certificats de compétence appropriés ne soient pas au courant des exigences concernant la sécurité et l'équipement, et qu'ainsi ils ne soient pas bien préparés aux opérations effectuées par le navire.

    Armement en équipage

    Il importe pour la sécurité des passagers et du navire que l'armement en personnel soit suffisant pour faire face à n'importe quelle situation pouvant survenir à bord. Cela comprend un nombre suffisant de membres d'équipage pour remplir les fonctions habituelles et pour seconder le capitaine au besoin, notamment en cas d'urgence.

    Dans le cas qui nous occupe, le conducteur était le seul responsable du quart à la passerelle. Le navire était toutefois exploité comme navire à passagers sans membre d'équipage additionnel, alors qu'il devait y avoir à bord un membre d'équipage additionnel disponible et entraîné aux procédures d'urgence et de survie, notamment pour aider les passagers à endosser leur gilet de sauvetage ou leur VFINote de bas de page 22.

    L'absence d'effectif suffisant pour remplir les tâches nécessaires, notamment durant une situation d'urgence, expose les passagers, l'équipage et le navire à des risques inacceptables.

    Faits établis

    Faits établis quant aux causes et aux facteurs contributifs

    1. Le mauvais état des taquets de la porte rampe avant, les sections manquantes du joint de caoutchouc et l'absence d'un mécanisme de verrouillage faisaient que les câbles de levage étaient constamment sous tension pour tenir la porte rampe fermée.
    2. Le système de treuillage avait été modifié de façon inappropriée, et certains de ses composants, notamment les câbles, étaient fortement corrodés. Un des câbles a cédé par fatigue à l'endroit où il passait dans une poulie de mauvaise dimension, tout le poids de la porte rampe avant s'est alors retrouvé sur l'autre câble, qui a cédé lui aussi.
    3. Le toit-abri obstruait la vue vers l'avant et a empêché le conducteur de s'apercevoir que la porte rampe avant avait cédé.
    4. Les cônes de plastique ont ripé et ont obstrué en partie les sabords de décharge, ce qui a empêché l'eau sur le pont du coffre de s'évacuer.
    5. L'eau embarquée sur le pont et la gîte qui en a résulté ont incité trois personnes à abandonner le navire.

    Faits établis quant aux risques

    1. Il se peut que les conducteurs qui ne détiennent pas les brevets et certificats de compétence appropriés ne soient pas au courant des exigences concernant la sécurité et l'équipement et qu'ils ne soient pas bien préparés aux opérations effectuées par le navire.
    2. Les petits bâtiments commerciaux qui ont été immatriculés comme navires de charge mais qui servent au transport de passagers ne sont peut-être pas pourvus de l'équipement approprié.
    3. L'absence d'effectif suffisant à bord pour remplir les tâches nécessaires, notamment durant une situation d'urgence, expose les passagers, l'équipage et le navire à des risques inacceptables.
    4. Lorsque les exploitants de petits bâtiments commerciaux n'effectuent pas (ou ne font pas faire) d'inspections régulières, il se peut que des lacunes de sécurité persistent.

    Mesures de sécurité

    Mesures de sécurité prises

    Le 9 décembre 2008, le BST a envoyé à la compagnie qui affrétait le Jumbo B, Brinkman and Associates, ainsi qu'à Transports Canada, l'Avis de sécurité maritime 11/08 concernant le transport en toute sécurité des employés. L'avis recommandait de s'assurer que les navires sont immatriculés, entretenus et équipés correctement, et que les conducteurs et les équipages possèdent la formation et les brevets et certificats de compétence nécessaires.

    En mars 2009, Transports Canada a informé le BST qu'il s'était engagé, au cours de la réunion du National Tonnage Committee (comité national sur le tonnage) tenue en décembre 2008, à élargir la liste existante des types de bâtiments et à étudier comment il pourrait identifier, dans le Registre canadien des bâtiments et les certificats d'immatriculation, les bâtiments qui ont une double utilisation. Cette démarche visait à identifier les petits bâtiments commerciaux qui peuvent aussi transporter des passagers à l'occasion mais qui ne sont pas certifiés pour le faire.

    Transports Canada procède à la mise à jour du Guide de sécurité des petits bâtiments commerciaux.

    Le présent rapport met un terme à l'enquête du Bureau de la sécurité des transports du Canada (BST) sur cet événement. Le Bureau a autorisé la publication du rapport le .

    Annexes

    Annexe A — Croquis des lieux de l'événement

    Annexe A. Croquis des lieux de l'événement
    Image
    Croquis des lieux de l'événement

    Annexe B — Plan d'ensemble du navire

    Annexe B. Plan d'ensemble du navire
    Image
    Plan d'ensemble du navire

    Appendix B — General arrangement of vessel