Rapport d'enquête maritime M00W0265

Décrochage accidentel d'une
Embarcation de sauvetage du
Vraquier Pacmonarch
Dans la baie English à
Vancouver (Colombie-Britannique)

Le Bureau de la sécurité des transports du Canada (BST) a enquêté sur cet événement dans le but de promouvoir la sécurité des transports. Le Bureau n’est pas habilité à attribuer ni à déterminer les responsabilités civiles ou pénales. Le présent rapport n’est pas créé pour être utilisé dans le contexte d’une procédure judiciaire, disciplinaire ou autre. Voir Propriété et utilisation du contenu. Les pronoms et les titres de poste masculins peuvent être utilisés pour désigner tous les genres afin de respecter la Loi sur le Bureau canadien d’enquête sur les accidents de transport et de la sécurité des transports (L.C. 1989, ch. 3).

Table des matières

    Résumé

    Le matin, alors que le Pacmonarch est au mouillage, l'équipage entreprend de mettre à l'eau l'embarcation de sauvetage de bâbord pour se rendre à terre. Il s'agit d'une embarcation de sauvetage totalement fermée, sous bossoir, maintenue par des crocs à échappement largable sous tension. Quatre membres d'équipage montent à bord de l'embarcation tandis que deux autres, restés sur le navire, retirent les clavettes de sécurité des bossoirs en prévision de la mise à l'eau. Peu après que les bossoirs touchent leurs butées, alors que l'embarcation de sauvetage se trouve à environ 15 m au-dessus de l'eau, le croc arrière sort de l'anneau de suspension arrière des garants. Toujours suspendue au croc avant, l'embarcation se retrouve presque à la verticale, ce qui provoque l'ouverture du croc avant. N'étant plus retenue, l'embarcation s'écrase dans l'eau, l'arrière en premier. Trois des quatre occupants sont mortellement blessés.

    1.0 Renseignements de base

    1.1 Fiche technique du navire

    "Pacmonarch" Embarcation de sauvetage de bâbord
    Numéro officiel 731998 -
    Port d'attache Nassau, Bahamas -
    Pavillon Bahamas -
    Type Vraquier CML-19 (embarcation complètement fermée retenue par des crocs à échappement largable sous tension/hors tension)
    Jauge brute 38 878 tNote de bas de page 1 -
    Longueur 225.00 m 5.33 m (± 5%)
    Construction 2000, Sasebo Heavy Industries Co. Ltd., Japon Nishi - F Co., Yamaguchi, Japon
    Groupe propulsif Diesel (B&W 6S60MC) 12 000 BHP Diesel (Daihatsu CLMD 30)
    Équipage 19 personnes 25 personnes(capacité maximale)
    Armateurs Lasco Shipping Co., Portland, Oregon, États-Unis -

    1.1.1 Description du Navire

    Le Pacmonarch a été construit en juillet 2000 à Sasebo au Japon. Il s'agit d'un transporteur de vrac sec de type Panamax, sans apparaux de manutention. Le navire est muni de sept cales à cargaison. La timonerie, les emménagements et la salle des machines se trouvent à l'arrière du navire, derrière la septième cale à cargaison.

    Le navire transporte deux embarcations de sauvetage situées à l'extérieur du bloc des emménagements, l'une du côté bâbord et l'autre du côté tribord.

    1.1.2 Description des embarcations de sauvetage

    Les embarcations de sauvetage, longues de 5,33 m et larges de 2,49 m, sont des embarcations complètement fermées et à redressement automatique, faites de matière plastique renforcée de fibres de verre. Elles sont constituées de deux parties bien distinctes : l'habitacle et la coque. Ces deux parties sont boulonnées l'une à l'autre de façon à assurer l'étanchéité du joint coque-habitacle.

    Chacune des embarcations de sauvetage a un poids net d'environ 1 670 kg et un poids total en charge (personnel, équipement, carburant et matériels divers compris) d'environ 3 870 kg. Ces embarcations peuvent transporter un maximum de 25 personnes chacune et elles sont conçues, construites et équipées conformément à la Convention internationale de 1974 pour la sauvegarde de la vie humaine en mer (SOLAS).

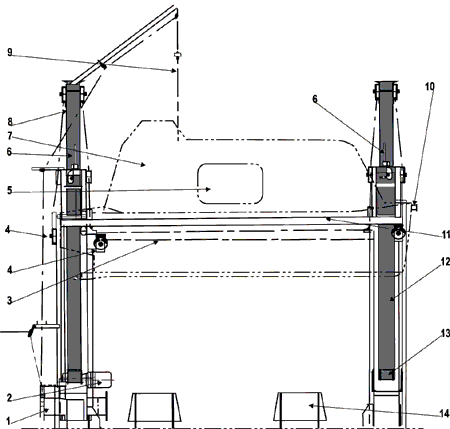
    Figure 1. Vue du bossoir montrant l'embarcation de sauvetage arrimée et parée au dehors. 1. Câble de commande à distance du frein du treuil, 2. Réa, 3. Corne du bossoir, 4. Poulie volante, 5. Bossoir, 6. Anneau de suspension, 7. Bollard d'embarcation, 8. Saisine, 9. Garants, 10. Poignée du frein du treuil, 11. Tambour du treuil, 12. Charnière du bossoir
    Image
    Vue du bossoir montrant l'embarcation de sauvetage arrimée et parée au dehors. 1. Câble de commande à distance du frein du treuil, 2. Réa, 3. Corne du bossoir, 4. Poulie volante, 5. Bossoir, 6. Anneau de suspension, 7. Bollard d'embarcation, 8. Saisine, 9. Garants, 10. Poignée du frein du treuil, 11. Tambour du treuil, 12. Charnière du bossoir
    Figure 2. Vue des bossoirs et du côté de l'embarcation de sauvetage en position arrimée. 1. Tambour du treuil, 2. Moteur électrique, 3. Garants, 4. Réas, 5. Panneau d'accès, 6. Tiges de blocage, 7. Embarcation de sauvetage, 8. Tête du bossoir, 9. Câble de commande à distance du frein du treuil, 10. Bollard horizontal avant, 11. Plate-forme d'embarquement, 12. Bossoir, 13. Charnière du bossoir, 14. Rampe
    Image
    Vue des bossoirs et du côté de l'embarcation de sauvetage en position arrimée. 1. Tambour du treuil, 2. Moteur électrique, 3. Garants, 4. Réas, 5. Panneau d'accès, 6. Tiges de blocage, 7. Embarcation de sauvetage, 8. Tête du bossoir, 9. Câble de commande à distance du frein du treuil, 10. Bollard horizontal avant, 11. Plate-forme d'embarquement, 12. Bossoir, 13. Charnière du bossoir, 14. Rampe
    Photo 1. Têtes du bossoir et côté extérieur de l'embarcation de sauvetage.
    Image
    Têtes du bossoir et côté extérieur de l'embarcation de sauvetage.

    Les embarcations de sauvetage comportent trois grandes ouvertures (panneaux) dans l'habitacle. Le plus grand panneau se trouve environ à mi-longueur du côté intérieur. Ce panneau fait 1 m de long sur 0,6 m de haut et il s'agit du seul moyen d'entrer dans l'embarcation de sauvetage et d'en sortir. Il y a un second panneau à l'extrémité avant de l'habitacle, de 0,5 m de long sur 0,45 m de haut, qui permet d'atteindre le croc de suspente avant, la bosse et le câble de remorque. Le troisième panneau, situé à l'extrémité arrière de l'habitacle, est d'une longueur de 0,8 m sur 0,6 m de haut. Il permet d'atteindre le câble de remorque, la bosse et le croc de suspente arrière. Les trois panneaux sont fermés par des couvercles à charnières s'ouvrant vers l'intérieur de l'habitacle.

    Photo 2. Panneau d'accès et côté intérieur de l'embarcation de sauvetage.
    Image
    Panneau d'accès et côté intérieur de l'embarcation de sauvetage.

    La configuration et l'aménagement internes correspondent à ce que l'on retrouve sur la plupart des embarcations de sauvetage modernes totalement fermées. Les sièges sont disposés longitudinalement de part et d'autre de l'axe central. Les membres d'équipage s'assoient face les uns aux autres et s'attachent au moyen de harnais et de ceintures de sécurité. Le siège du barreur se trouve à l'arrière. Il est surélevé afin d'offrir un champ de vision sur 360 degrés depuis un poste de conduite aménagé dans le toit arrière de l'habitacle. Toutes les commandes de l'embarcation - barre, commande des gaz, embrayage et câble de commande à distance du frein de treuil (voir la figure 2, no 9) - peuvent être actionnées de ce poste, tout comme la poignée centrale de largage (voir la photo 12). Ce levier est placé dans la cloison arrière de l'habitacle, juste à l'arrière et à bâbord du siège du barreur. Chaque embarcation de sauvetage est propulsée par un moteur diesel intérieur entraînant une hélice à pas fixe. La direction est assurée par une tuyère Kort orientable.

    1.1.3 Bossoirs, treuil et structure porteuse

    Le navire est muni de deux ensembles de bossoirs en acier - un de chaque côté - sur le premier pont d'habitation, au-dessus du pont supérieur. Les bossoirs font partie d'un berceau et d'un cadre en acier soudé au pont. Les bossoirs sont de type oscillant : ils pivotent par gravité autour d'un axe. Quand ils sont amarrés, deux tiges de blocage (crochets de berceau) empêchent les bossoirs de déborder accidentellement.

    Photo 3. 1. Bossoir, 2. Garants, 3. Plate-forme d'embarquement, 4. Cadre
    Image
    1. Bossoir, 2. Garants, 3. Plate-forme d'embarquement, 4. Cadre

    Tout en haut du support de bossoir se trouve une plate-forme d'embarquement et de débarquement placée au niveau du panneau d'accès latéral de l'embarcation. Les embarcations de sauvetage sont arrimées en abord. Quand l'embarcation de sauvetage est en position rentrée, son poids est supporté par deux cornes : l'une à l'avant et l'autre à l'arrière. Un bout de chaque corne est soudé au bossoir; le bout dégagé passe dans un œil pratiqué dans la poulie volante des garants (voir la photo 4).

    Photo 4. 1. Tête du bossoir, 2. Corne, 3. Oeil de la poulie volante, 4. Anneau de suspension
    Image
    1. Tête du bossoir, 2. Corne, 3. Oeil de la poulie volante, 4. Anneau de suspension

    Un treuil électrique est boulonné au support arrière. Le treuil comporte deux tambours sur lesquels viennent s'enrouler les garants. Grâce à un système de réas et de poulies, les garants passent dans deux poulies flottantes auxquelles sont manillés deux anneaux de suspension. Chaque embarcation de sauvetage est dotée de deux crocs de suspente fixés en permanence, un à chaque bout. Le croc s'engage dans les anneaux de suspension, qui relient l'embarcation de sauvetage aux garants.

    Le treuil électrique est muni d'un embrayage unidirectionnel à roue libre et d'un frein actionné par un dispositif d'homme mort lesté. Cette poignée est aussi reliée au câble de commande à distance du frein du treuil (voir la figure 2, no 9), qui passe dans une autre série de réas pour aboutir au poste de conduite de l'embarcation de sauvetage, à portée de main du barreur.

    L'embarcation de sauvetage n'est pas conçue pour être palanquée le long du bord et n'est pas munie des palans rapprocheur ni des braguets.

    Photo 5. 1. Cadre, 2. Saisine, 3. Dispositif d'homme mort (frein du treuil), 4. Tambour du treuil
    Image
    1. Cadre, 2. Saisine, 3. Dispositif d'homme mort (frein du treuil), 4. Tambour du treuil

    1.1.4 Bollards et saisines

    Deux bollards horizontaux sont fixés à la coque de l'embarcation de sauvetage, un à chaque bout. Des plaques de protection circulaires sont soudées aux extrémités des bollards. La plaque de base du bollard arrière est plate et inclinée vers l'intérieur à un angle de 2° par rapport à la verticale; la plaque de base du bollard avant est arrondie et inclinée vers l'intérieur à un angle de 7,5° par rapport à la verticale.

    Photo 6. Vue arrière de l'embarcation de sauvetage montrant le bossoir, la disposition des saisines sur les bollards, l' anneau de suspension, le croc et le panneau
    Image
    Vue arrière de l'embarcation de sauvetage montrant le bossoir, la disposition des saisines sur les bollards, l' anneau de suspension, le croc et le panneau

    Des saisines en câble métallique passent sur ces bollards. Chaque saisine de 14 mm de diamètre a une tension de rupture de 13 000 kg - ce qui excède de loin le poids total de l'embarcation de sauvetage et de son contenu. La saisine est conçue pour maintenir fermement l'embarcation de sauvetage contre le cadre du bossoir de façon à l'empêcher de s'y cogner en mer.

    Chaque saisine est attachée à un bout à une platine à œil soudée au pont du navire; l'autre extrémité passe sur un levier pivotant librement fixé au côté du bossoir.

    Photo 7. Bollard arrière, saisine et levier sur le bossoir.
    Image
    Bollard arrière, saisine et levier sur le bossoir.
    Photo 8. Vue avant de l'embarcation de sauvetage montrant les bossoir, la disposition des saisines sur les bollards, l'anneau de suspension, le croc et le panneau
    Image
    Vue avant de l'embarcation de sauvetage montrant les bossoir, la disposition des saisines sur les bollards, l'anneau de suspension, le croc et le panneau

    Lorsque l'embarcation de sauvetage est en position rentrée, le bout libre du levier pivotant appuie contre le support rigide du bossoir, l'empêchant de tourner.

    1.1.5 Crocs de suspente et méchanisme de largage

    Photo 9. Vue du croc, de l'anneau de suspension et du linguet
    Image
    Vue du croc, de l'anneau de suspension et du linguet

    Le croc de suspente sont à échappement largable sous tension/hors tension. Ils sont conçus pour s'ouvrir simultanément afin de libérer l'embarcation de sauvetage aussi bien lorsque celle-ci est hors de l'eau et suspendue aux garants que lorsqu'elle flotte et que les garants ne supportent aucun poids.

    Le dispositif comprend les deux flasques, lesquelles forment la base sur laquelle viennent se fixer le croc, le levier de blocage et le levier de réenclenchement, de même que le linguet (voir la figure 6). Toutes ces composantes sont percées de trous et sont reliées aux flasques par des tiges qui passent à la fois à travers les composantes et dans les trous correspondants des flasques. Une fois assemblées, les pièces peuvent pivoter individuellement autour des tiges. La totalité du dispositif est constituée d'acier doux galvanisé.

    Lorsque le dispositif supporte une charge ou est en mode de réenclenchement (voir la photo 10), l'extrémité plate du croc s'appuie contre le levier de blocage et lui transmet une charge, repoussant celui-ci contre une sorte de pêne sur le levier de réenclenchement. Lorsque sa surface touche le croc, le levier de blocage a un angle de dépouille de 18°.

    Tant que le levier de réenclenchement reste dans une position où le pêne empêche le levier de blocage de se déplacer vers le bas, le croc reste bloqué et peut supporter la part qu'il est conçu pour supporter du poids de l'embarcation de sauvetage et de son contenu (voir la photo 10).

    Photo 10. Vue du croc en situation de charge (réenclenchement), 1. Croc, 2. Levier de blocage, 3. Levier de réenclenchement
    Image
    Vue du croc en situation de charge (réenclenchement), 1. Croc, 2. Levier de blocage, 3. Levier de réenclenchement

    À son extrémité libre, le levier de réenclenchement est muni d'un joint à manille auquel est attaché un câble flexible. L'autre extrémité de ce câble est également fixée à un bras de connexion, lequel aboutit dans le module central de commande de largage (voir la figure 3).

    Les parties mobiles des crocs avant et arrière sont identiques. Les deux crocs sont montés sur l'embarcation de sauvetage de façon à être orientés dans la même direction, face à l'arrière.

    Sur chaque dispositif, le croc, le levier de blocage et le levier de réenclenchement portent des marques repères. Le croc a été correctement réenclenché lorsque ces marques sont bien alignées.

    Photo 11. Vue du croc en position ouverte
    Image
    Vue du croc en position ouverte

    L'inspection des dispositifs que le BST a faite après l'accident indique que dans la position de réenclenchement, les marques repères sur les leviers de réenclenchement n'étaient pas alignées avec les marques repères des flasques. Le dessus de la marque repère sur le levier de réenclenchement était juste en dessous de la ligne inférieure des marques repères sur les

    flasques (voir la photo 20). Les crocs, conçus pour avoir une charge maximum pratique de 2,5 tonnes, comportent une distance minimale de 122 mm entre l'extrémité des surfaces transmetteuses de charge et la circonférence de leur pivot. Lorsque cette distance n'est plus respectée, le fabricant recommande de remplacer le croc, le levier de blocage et la base. Sur le croc avant de l'embarcation, cette distance était de 122,6 mm, ce qui est conforme à la norme technique. Sur le croc arrière cependant, la distance moyenne n'était que de 121,8 mm (voir la figure 7).

    Le linguet est conçu pour pivoter de façon à ne s'ouvrir que vers l'intérieur du croc (voir la figure 6). Cela permet d'insérer l'anneau de suspension dans le croc de manière à l'empêcher de glisser accidentellement. Le linguet n'est pas conçu pour supporter un poids important.

    1.1.6 Module central de commande de largage

    Figure 3. Schéma montrant la façon dont le module central de commande de largage est relié aux crocs
    Image
    Schéma montrant la façon dont le module central de commande de largage est relié aux crocs
    Photo 12. Module central de commande de largage
    Image
    Module central de commande de largage

    Le module central de commande de largage se trouve juste derrière le siège du barreur, à bâbord (voir la photo 12). Il est constitué de deux flasques en acier galvanisé auxquelles sont attachés le levier de largage, les bras de connexion de câble et le levier d'interdiction. Une bobine solénoïde est montée au sommet de la structure formée par les flasques.

    Le levier de largage est essentiellement un levier coudé. Une de ses extrémités constitue la poignée de largage; l'autre extrémité (bout libre) comporte deux tiges solidaires formant un angle de 90 degrés avec son plan. Ces tiges s'appuient contre les bras de connexion de câble, lesquels sont reliés au levier de largage et pivotent autour du même axe que celui-ci. En tirant sur la poignée de largage, ces tiges soulèvent les bras de connexion. Le déplacement de la poignée de largage peut être bloqué par une clavette de sécurité articulée sur l'une des flasques et qui vient s'insérer dans une fente de l'autre flasque.

    Le levier d'interdiction, qui ressemble aussi à un levier coudé, pivote autour de son propre arbre mais dans le même plan que le levier de largage et les bras de connexion de câble. Une tringlerie mécanique relie le levier d'interdiction à une bobine de solénoïde juste au-dessus; le dessous du levier d'interdiction est relié à un ressort de rappel. Le levier d'interdiction peut pivoter de façon à bloquer ou à libérer la course vers le haut des bras de connexion de câble, et, de ce fait, de la poignée de largage. L'extrémité libre du levier d'interdiction se trouve à l'intérieur d'un boîtier fermé dont un côté, qui fait face à l'opérateur, est accessible par l'entremise d'une vitre amovible claire faite de Perspex. Dans une situation d'urgence, l'opérateur peut retirer la vitre et soulever manuellement le levier d'interdiction pour qu'il ne soit plus en position de blocage. Selon le manuel d'entretien, le châssis de la vitre en Perspex est peint de deux couleurs différentes : la moitié supérieure en rouge et la moitié inférieure en vert. Au moment de l'inspection par le BST, la totalité du châssis était peinte en rouge.

    Figure 4. Schéma montrant l'intérieur du module central de commande de largage
    Image
    Schéma montrant l'intérieur du module central de commande de largage

    Les deux bras de connexion de câble sont reliés aux leviers de réenclenchement sur les dispositifs avant et arrière par des câbles flexibles, de façon à former une structure rigide. Lorsque les bras de connexion de câble se déplacent vers le haut, sous l'action de la poignée de largage, les leviers de réenclenchement sont repoussés vers le bas.

    Le module central de commande de largage renferme trois micro-commutateurs : deux font contact avec les deux bras de connexion de câble, tandis que le troisième se trouve sous le levier d'interdiction avec lequel il vient en contact. Les micro-commutateurs sont utilisés pour témoigner des diverses conditions de fonctionnement sur le panneau de commande et d'avertisseurs électriques (voir la rubrique 1.1.8).

    1.1.7 Interrupteur hydrostatique (verrouillage hydrostatique)

    Un pressostat est installé sur la quille de l'embarcation de sauvetage. Ce dispositif détermine si l'embarcation de sauvetage est dans l'eau ou hors de l'eau et il transmet le signal électrique correspondant à la bobine de solénoïde placée sur le levier d'interdiction. Essentiellement, le pressostat est composé d'un diaphragme qui fléchit sous l'influence de la pression hydrostatique, ce qui établit ou coupe un contact électrique, lequel à son tour met sous tension ou hors tension le solénoïde. La chambre au-dessus du diaphragme est maintenue à la pression atmosphérique au moyen d'un évent compensateur.

    1.1.8 Interrupteur et boîte de commande de voyant d'alerte (panneau indicateur)

    Figure 13. Panneau indicateur
    Image
    Panneau indicateur

    À l'intérieur de l'embarcation de sauvetage, on retrouve une boîte de commande de voyant d'alerte (voir la photo 13). Le panneau avant de cette boîte de commande comporte un interrupteur d'alimentation ouvert/fermé et deux voyants lumineux : un voyant rouge et un voyant vert. Ces témoins lumineux sont reliés aux trois micro-rupteurs du module central de commande de largage et à l'interrupteur hydrostatique. Le voyant rouge témoigne de deux conditions d'exploitation : lorsque l'embarcation de sauvetage se trouve hors de l'eau et qu'il serait dangereux de tirer la poignée de largage; et lorsque les crocs sont ouverts et les anneaux de suspension décrochés. Le voyant vert témoigne aussi de deux conditions d'exploitation : lorsque l'embarcation de sauvetage est dans l'eau et qu'on peut tirer la poignée de largage sans danger; et lorsque les crocs ont été correctement réenclenchés en position de charge.

    1.1.9 Description d'une manœuvre typique de mise à l'eau et de récupération d'une embarcation de sauvetage

    Pour mettre à l'eau une embarcation de sauvetage, on commence par retirer les tiges de blocage. Cela a pour effet de libérer de toute entrave mécanique sur les bossoirs qui sont alors maintenus en place que par la tension des garants virés sur le tambour de treuil, lui-même bloqué par le frein. L'étape suivante est de retirer la tige de butée au-dessus du dispositif d'homme mort, lequel est relié au frein de treuil. Lorsque la poignée est soulevée, cela a pour effet de desserrer le frein, ce qui permet au tambour de treuil de tourner et de filer les garants.

    Les bossoirs pivotent sur leurs axes charnières. Quand les bossoirs s'écartent du cadre-support, les leviers-crochets (voir la photo 7) pivotent et libèrent l'extrémité libre des saisines, larguant celles-ci. Les bossoirs continuent de déborder jusqu'à ce que l'embarcation de sauvetage pare le flanc du navire. Les poulies volantes sortent des cornes des bossoirs et tout le poids de l'embarcation de sauvetage est transféré aux garants. Les butées des supports des bossoirs arrêtent alors le mouvement des bossoirs vers l'extérieur et l'embarcation de sauvetage poursuit sa descente vers l'eau, suspendue aux garants.

    Lorsque l'embarcation de sauvetage est à flot, on ouvre les crocs de l'intérieur de l'embarcation en tirant la poignée centrale de largage. Les anneaux de suspension sont désormais dégagés des crochets et l'embarcation de sauvetage peut s'éloigner du navire.

    Pour reconnecter l'embarcation aux garants, il faut d'abord réarmer les crocs avant et arrière. On manœuvre ensuite l'embarcation pour la placer sous les poulies volantes et les anneaux de suspension sont glissés dans les crocs. Le linguet empêche l'anneau de suspension de sortir du croc lorsqu'il n'y a pas de charge sur les garants.

    Le treuil électrique remonte l'embarcation jusqu'à ce que les poulies volantes viennent toucher les têtes du bossoir. Alors que le treuil continue de virer sur les garants, les potences sont forcées de s'écarter des butées pour se déplacer vers l'intérieur. Ce déplacement angulaire permet aux cornes des bossoirs de revenir dans les poulies volantes et aussi à l'embarcation de revenir à poste. Les bossoirs et l'embarcation de sauvetage sont ensuite assujettis en replaçant les tiges de blocage et en refrappant les saisines. En choquant les garants, on se trouve à abaisser les poulies volantes jusqu'à ce que le poids de l'embarcation de sauvetage soit transféré aux cornes du bossoir.

    1.1.10 Marche à suivre pour réarmer les crocs

    Figure 5. Disposition des marques repères sur le dispositif
    Image
    Disposition des marques repères sur le dispositif

    La poignée centrale de largage est d'abord replacée à sa position originelle (réenclenchement). Cela a pour effet d'éloigner le levier coudé de la poignée des bras de connexion de câble, permettant à ceux-ci d'être abaissés lorsque les leviers de réenclenchement sont poussés vers le haut.

    On tourne chaque croc jusqu'à ce que le trait rouge peint sur ses côtés soit aligné avec la flasque. De la main droite on maintient le croc dans cette position, tandis que de la main gauche on tourne le bouton de blocage dans le sens antihoraire jusqu'à ce que sa flèche repère soit alignée avec une flèche correspondante sur la flasque. On maintient alors fermement le bouton de blocage de la main gauche tout en tirant de la main droite le levier de réarmement du câble jusqu'à ce qu'il soit aligné avec ses propres marques repères sur les flasques. Lorsque cela est bien fait, on insère la clavette de sécurité du module central de contrôle de largage dans sa fente, ce qui verrouille la poignée de largage.

    1.1.11 Gilets de sauvetage, sièges et ceintures de sécurité des embarcations de sauvetage

    Les gilets de sauvetage étaient conformes aux exigences de la convention SOLAS et, tel que stipulé, l'embarcation de sauvetage était munie de ceintures de sécurité à chaque place assise.

    On a noté les points suivants sur les deux embarcations de sauvetage du Pacmonarch :

    1. De nombreux écrous fixant les ceintures de sécurité à la coque étaient desserrés sur les embarcations de sauvetage de bâbord et de tribord.
    2. Exception faite des appuie-tête en mousse, il n'y avait aucun matelassage protecteur autour des sièges. Même si l'embarcation de sauvetage était conçue pour être affalée en chute libre d'une hauteur de 3 m, aucune mesure n'avait été prise pour amortir l'impact subi par les occupants de l'embarcation.
    3. Un membre d'équipage portant le gilet de sauvetage fourni se trouve à avoir environ 105 mm de matériau de flottaison dur (conçu pour maintenir la tête hors de l'eau) formant une excroissance derrière sa nuque. Se trouvant dans la zone occupée par les places assises sur les côtés de l'embarcation de sauvetage, ce membre d'équipage aurait 55 mm d'appuie-tête en mousse additionnel ainsi que le toit en pente vers l'intérieur de l'embarcation de sauvetage venant s'appuyer contre cette partie du gilet de sauvetage et lui repoussant la nuque vers l'avant.

    1.1.12 Instructions et formation requises pour l'utilisation de l'embarcation de sauvetage

    Le manuel d'utilisation, en anglais, décrit en détail la procédure pour ouvrir les crocs et les réenclencher avant la récupération de l'embarcation de sauvetage. Les étapes de l'ouverture des crocs sont aussi décrites sur une affiche placardée à l'intérieur de l'embarcation de sauvetage sous le panneau indicateur. Il s'agit d'un ordinogramme en anglais montrant les procédures de largage sous tension et hors tension. L'information concernant la procédure de réenclenchement (réarmement) n'est pas affichée à l'intérieur de l'embarcation de sauvetage. Un diagramme des trois indicateurs (levier de réarmement du câble, position du croc et bouton de blocage) sur lesquels on se guide lors du réenclenchement des crocs est aussi placé à l'intérieur de l'embarcation de sauvetage, sur la cloison voisine des panneaux avant et arrière. Toutefois, le diagramme ne comporte aucun texte indiquant la marche à suivre.

    L'équipage était de langue ukrainienne et bon nombre de ses membres ne connaissaient pas l'anglais. Le capitaine et le second parlaient et lisaient l'anglais.

    Un système de gestion pour la sécurité avait été mis en place sur le navire. Par conséquent, les deux embarcations de sauvetage avaient été mises à l'eau trois ou quatre fois depuis la mise en service du Pacmonarch. L'équipage avait aussi procédé périodiquement à des exercices d'embarquement et était suffisamment entraîné à la mise à l'eau de l'embarcation de sauvetage.

    1.2 Déroulement du voyage

    Le navire a été construit à Sasebo au Japon et livré à ses propriétaires en juillet 2000. Après avoir accompli deux voyages vers l'Australie, le Pacmonarch se rendu sur lest à Vancouver en Colombie-Britannique où il arrive vers 3 hNote de bas de page 2, le 19 octobre 2000. Il mouille l' ancre au poste de mouillage de la baie English en attendant de charger une cargaison de grain.

    Pendant cette période de mouillage, l'équipage du navire se sert des deux embarcations de sauvetage pour se rendre à terre et à un autre navire mouillé à proximité. L'embarcation de sauvetage de bâbord est utilisée le 24 octobre sans incident.

    Vers 10 h 45 le 26 octobre, l'équipage du Pacmonarch entreprend de mettre à l'eau l'embarcation de sauvetage de bâbord pour ce qui doit être une excursion banale à terre. Le lieutenant, accompagné du troisième mécanicien adjoint et de deux matelots, montent à bord de l'embarcation pour les préparatifs internes, tandis que le second et un autre matelot enlèvent les fixations externes. Le plan est d'amener l'embarcation jusqu'au pont des embarcations où le reste du groupe se rendant à terre doit monter à bord. L'embarcation de sauvetage est conçue pour qu'on y monte depuis la plate-forme d'embarquement et n'est pas munie des palans rapprocheur qui la maintiendraient le long de la muraille du navire. Cependant, lorsqu'on l'abaisse jusqu'à ce que le panneau latéral soit presque à égalité avec le pont des embarcations, on peut aussi y monter à partir de ce pont.

    Le second et le lieutenant se servent de radiotéléphones portatifs pour communiquer. Le lieutenant s'assoit dans le siège du barreur situé dans le poste de conduite de l'embarcation; le mécanicien s'assoit derrière lui du côté extérieur (bâbord) de l'embarcation. Un marin se place près du panneau avant et un autre près du panneau arrière à proximité des crocs. Les occupants de l'embarcation portent tous des gilets de sauvetage à matériau insubmersible et des casques de sécurité, mais ils n'attachent pas leur ceinture de sécurité et ils ne sont pas tenus de le faire.

    Le lieutenant informe le second que les vérifications avant la mise à l'eau ont été exécutées et que tout est en ordre. À ce moment-là, le second est debout sur la plate-forme d'embarquement, et fait face à l'embarcation de sauvetage. Le matelot placé sur le pont des embarcations est debout à l'avant de l'embarcation de sauvetage.

    Quand il reçoit, du second, l'autorisation de mettre l'embarcation de sauvetage à l'eau, le lieutenant tire le câble de commande à distance du frein du treuil pour desserrer celui-ci. Les bossoirs pivotent lentement et l'embarcation pivote aisément et sans à-coups vers le côté du navire.

    Pendant la séquence de lancement et peu après que les bossoirs eurent heurté leurs butées, alors que l'embarcation de sauvetage se trouve à environ 1,5 ou 2 m sous la tête du bossoir, le nez de l'embarcation s'abaisse et celle-ci fait un angle de 40° par rapport à l'horizontale. L'anneau de suspension arrière sort alors de son croc, endommageant le linguet. L'embarcation de sauvetage pivote autour du croc avant, qui s'ouvre et laisse échapper l'anneau de suspension avant. N'étant plus retenue, l'embarcation plonge l'arrière en premier dans la mer.

    L'embarcation est en position presque verticale (sans aller au-delà de la verticale) avant qu' elle frappe l'eau. L'arrière de l'habitacle est considérablement endommagé par le choc. Les panneaux étaient ouverts et l'eau envahit l'embarcation. Par conséquent, celle-ci perd sa capacité de redressement et commence à dériver, son côté tribord immergé.

    Le capitaine, mis au courant de l'accident, se précipite dans la timonerie pour émettre un message « Mayday ». Un remorqueur et un bateau-taxi, au service d'un navire à un poste de mouillage adjacent, entendent le message et se portent aussitôt à la rescousse. Ce sont les premiers bâtiments à arriver sur les lieux. Le marin qui se trouvait près du panneau avant a réussi à y revenir en rampant. Les membres de l'équipage l'aperçoivent et le hissent à bord.

    Il y a un plongeur d'expérience à bord d'un des bateaux et celui-ci, même s'il ne dispose pas d'équipement de plongée adéquat, pénètre néanmoins dans l'embarcation de sauvetage pour tenter d'en sortir les occupants. Il trouve ceux-ci inconscients, environnés des débris résultant de la chute du bateau, allongés dans l'eau inondant l'embarcation. Le plongeur réussit à atteindre l'un d'entre eux et, avec l'aide d'autres sauveteurs, à l'extraire de l'habitacle.

    Entre-temps, un navire de sauvetage de la Garde côtière canadienne arrive sur les lieux. Ses plongeurs entreprennent de découper la section arrière partiellement brisée de l'habitacle afin d'agrandir l'ouverture. Cela leur permet d'extraire les deux derniers occupants de l'embarcation de sauvetage. Même si les secouristes de la Garde côtière administrent les premiers soins et transportent promptement les victimes à l'hôpital, trois des quatre hommes se trouvant à bord de l'embarcation de sauvetage ne reprennent jamais conscience et succombent à leurs blessures.

    De crainte que l'embarcation de sauvetage ne coule, on tente de réunir les crocs aux garants pour sortir l'embarcation de l'eau. Ces tentatives échouent et l'embarcation de sauvetage est remorquée jusqu'à la base de la Garde côtière située à Kitsilano.

    1.3 Description d'un accident analogue

    Le 6 août 2000, l'équipage du Washington Trader, navire jumeau du Pacmonarch, était en train de procéder à un exercice de mise à l'eau de l'embarcation de sauvetage de bâbord à Abbot Point, dans le Queensland en Australie. Dans des circonstances très semblables, l'embarcation de sauvetage s'est détachée de ses garants arrières pour se balancer au bout du croc avant, qui s'est aussi ouvert. L'embarcation de sauvetage a alors plongé l'arrière en premier dans la mer.

    Les avaries aux deux embarcations de sauvetage sont presque identiques, y compris les dommages au linguet du croc arrière. Comme il n'y avait personne à bord de l'embarcation de sauvetage du Washington Trader et qu'il n'y avait aucune nécessité urgente de secourir des personnes emprisonnées, le capitaine du navire a pu préserver l'embarcation de sauvetage dans l'état où elle se trouvait.

    Des enquêteurs du Australian Transport Safety Bureau ont constaté que le croc arrière était en position fermée ou réenclenchée et que le croc avant était ouvert.Note de bas de page 3

    1.4 Victimes

    Équipage Passagers Autres Total
    Morts 3 - - 3
    Disparus - - - -
    Blessés graves - - - -
    Blessés légers 1 - - 1
    Total 4 - - 4

    1.5 Dommages

    1.5.1 Avaries à l'embarcation de sauvetage

    Photo 14. Avaries à l'arrière de l'embarcation de sauvetage
    Image
    Avaries à l'arrière de l'embarcation de sauvetage
    Photo 15. Avaries à l'arrière de l'embarcation de sauvetage
    Image
    Avaries à l'arrière de l'embarcation de sauvetage
    Photo 16. Dommages au linguet du croc arrière
    Image
    Dommages au linguet du croc arrière

    L'impact contre la surface de l'eau a causé des avaries considérables à l'arrière de l'embarcation de sauvetage, la majorité des dommages étant concentrés sur l'habitacle. Le panneau vertical a été enfoncé vers l'intérieur tandis que le composite verre-résine était complètement déchiré. Pendant les opérations de sauvetage, les plongeurs ont coupé cette déchirure et replié complètement le panneau vertical afin d'assurer un accès sans entrave à l'intérieur de l'embarcation de sauvetage (voir les photos 14 et 15).

    À l'intérieur de l'embarcation, le fauteuil du barreur et le module central de commande de largage étaient fixés sur la cloison arrière. La base du fauteuil a été tordue et brisée tandis que les goussets du support du module central de contrôle de largage étaient complètement arrachés. La partie horizontale de l'habitacle (à laquelle étaient fixés le croc arrière, l'étrier de remorquage et d'autres accessoires) a fléchi vers le haut.

    Certaines parties de l'habitacle ont été déchirées et les boulons fixant l'habitacle à la coque ont aussi été brisés. Il y a eu d'autres avaries internes, notamment au système du gouvernail, aux goussets d'ancrage et aux cadres d'ancrage qui ont été déformés.

    1.5.2 Dommages aux dispositifs et aux anneaux de suspension

    Le linguet du croc arrière était endommagé au point que les deux branches de la fourche étaient repliées vers les côtés et l'extérieur de l'embarcation de sauvetage (voir la photo 16). Le croc arrière lui-même n'était pas endommagé mais portait des entailles sur sa surface intérieure, dans la zone qui vient en contact avec l'anneau de suspension. L'anneau de suspension arrière n'était pas endommagé mais montrait deux petites entailles en bas, sur la surface extérieure qui se trouve en face de la fourche sous le linguet (voir la photo 17).

    Le dispositif avant et l'anneau de suspension n'étaient pas endommagés.

    Photo 17. Entailles sur l'anneau de suspension
    Image
    Entailles sur l'anneau de suspension
    Photo 18. Entailles sur l'anneau de suspension
    Image
    Entailles sur l'anneau de suspension

    1.5.3 Dommages aux bossoirs, au treuil, aux supports, aux poulies volantes et aux garants

    Les bossoirs, le treuil du bossoir et les supports du bossoir n'ont pas été endommagés. Les poulies volantes et les garants non plus. La peinture au point de jonction entre la plaque d'assise du treuil et la base était écaillée et fendillée. Le reste de la peinture était intact.

    1.6 Brevets et certificats

    1.6.1 Navire

    Le Pacmonarch possédait les certificats requis pour un navire de sa classe et de son type. Tous les certificats étaient valides et à jour.

    1.6.2 Personnel

    Les officiers et les membres d'équipage à bord possédaient les brevets et certificats requis et se conformaient aux exigences de la Convention internationale de 1995 sur les normes de formation des gens de mer, de délivrance des brevets et de veille.

    1.7 Essai de l'embarcation de sauvetage de tribord

    Le lendemain de l'accident ainsi qu'à des dates ultérieures, l'embarcation de sauvetage de tribord a été mise à l'eau plusieurs fois. Les opérations ont été enregistrées sur bande magnétoscopique et leur déroulement a ultérieurement été analysé. Lors de chaque mise à l'eau, les saisines avant et arrière se détachaient du bossoir mais accrochaient momentanément les bollards de l'embarcation de sauvetage avant que la poulie volante ne sorte des cornes des bossoirs.

    2.0 Analyse

    Les exigences énoncées dans la Convention internationale de 1974 pour la sauvegarde de la vie humaine en mer (SOLAS) touchant la conception des embarcations de sauvetage et de leurs mécanismes de largage sont principalement axées sur les caractéristiques de conception mécanique susceptibles d'assurer une exploitation sécuritaireNote de bas de page 4. L'embarcation de sauvetage du Pacmonarch était pleinement conforme à toutes les exigences de la convention SOLAS. Une analyse des facteurs humains ou des caractéristiques ergonomiques pourrait mettre en évidence des lacunes de conception qui n'ont rien à voir avec l'ingénierie mais qui tiennent à la façon dont la conception influence l'efficacité et la sécurité des marins qui utilisent ce type de système d'abandon du navire.

    Considérée isolément, une caractéristique de conception peut ne pas montrer de carence grave. Toutefois, une fois tous les éléments de l'embarcation de sauvetage intégrés en un tout, ils peuvent présenter un risque faisant en sorte que l'embarcation de sauvetage risque d'être hissée ou mise à l'eau alors que les crocs sont mal réenclenchés et que le levier d'interdiction n'est pas engagé. Cela pourrait provoquer, et a provoqué, le largage accidentel de l'embarcation, entraînant des blessures, des pertes de vie et des dommages matériels.

    2.1 Conception et orientation du croc et caractéristiques ergonomiques du dispositif de réenclenchement

    Les dispositifs avant et arrière sont tournés vers l'arrière afin que les embarcations de sauvetage puissent être mises à l'eau alors que le navire avance, de sorte que l'embarcation pourrait être remorquée en étant accrochée aux garants, ce qui modifierait l'angle relatif des garants et du croc. En orientant le croc de cette façon, on élimine le risque que les anneaux de suspension glissent hors du croc. Cependant, cela rend aussi plus difficile de voir si le croc arrière est bien réenclenché.

    Le réenclenchement des crocs est un processus en trois étapes qui fait appel aux deux mains, la main droite devant poser deux gestes différents. Il s'agit tout d'abord de tirer, de la main droite, le croc vers le bas tout en tournant, de la main gauche, le bouton de blocage afin de lever le levier de blocage. De la main droite, on dégage ensuite le croc avant de saisir le levier de réenclenchement pour le tirer vers le haut en position de réenclenchement jusqu'à ce qu'il soit aligné avec les marques repères correspondantes.

    Pour le dispositif avant, le levier de réenclenchement et les marques repères rouges sur les flasques font face à l'embarcation de sauvetage. Il est ainsi facile de voir si le croc est bien réenclenché.

    Pour le dispositif arrière, le levier de réenclenchement et les marques repères sont tournés vers l'arrière et ne sont pas visibles de l'intérieur de l'embarcation. Il faut sortir le corps par le petit panneau et se tortiller pour voir les marques repères du levier de réenclenchement et des flasques. Il s'agit d'un processus très ardu, particulièrement du fait que cela doit être fait par quelqu'un qui porte un casque de sécurité et un gilet de sauvetage encombrants, et encore plus si l'embarcation de sauvetage bouge sur l'eau. La difficulté de la tâche augmente le risque que la vérification visuelle soit escamotée. De plus, une fois qu'on s'est assuré visuellement que le croc est bien réenclenché et qu'on est revenu à l'intérieur de l'embarcation, il est impossible de vérifier continuellement que le levier de réenclenchement est resté en place et qu'il ne s'est pas déplacé. Dans le cas du croc avant, cette vérification est facile à faire n'importe quand. Pour le croc arrière, elle nécessite absolument une reprise de la procédure décrite ci-dessus.

    À cause de l'orientation du croc arrière qui rend la vérification ardue, on a tendance à s'en remettre à d'autres sources d'information, lesquelles, même si elles sont plus facilement accessibles, ne constituent pas des indices aussi fiables de la bonne position du levier de réenclenchement. On peut, notamment, se fier à tort sur l'alignement du trait rouge sur le côté du croc comme principal indice. Si ce trait rouge est aligné et si le croc semble correct et sécuritaire malgré les secousses, on présume que le mécanisme est bien réenclenché et verrouillé. Parce que le croc arrière est tourné vers l'arrière, le levier de réenclenchement est difficile à manipuler et il est ardu de s'assurer que le croc est bien réenclenché ou que le levier est resté en place après réenclenchement.

    2.2 Interaction entre les saisines, les dispositifs de largage des saisines et l'embarcation de sauvetage

    Pacmonarch Pacemperor
    Photo 19. Photo tirée d'une vidéo montrant la saisine enroulée autour du bollard arrière
    Image
    Photo tirée d'une vidéo montrant la saisine enroulée autour du bollard arrière

    Pendant la première phase de la mise à l'eau, l'oscillation du bossoir vers le flanc du navire fait éviter l'embarcation de sauvetage vers l'extérieur. L'éloignement du bossoir de son support laisse un espace croissant entre le bossoir et le cadre rigide. Cela a pour effet de libérer le levier pivotant auquel est accrochée l'extrémité côté bossoir de la saisine et de permettre au levier de tourner, dégageant ainsi la saisine.

    Le mouvement vers l'extérieur de l'embarcation de sauvetage crée une tension dans les saisines, ce qui provoque une vitesse angulaire à l'extrémité libre de la saisine. Le bout libre de la saisine tombe et la saisine forme une boucle autour du bollard de l'embarcation de sauvetage; plus la distance relative entre le bout libre de la saisine et le bollard diminue, plus la vitesse angulaire du bout libre augmente.

    Lorsque les bossoirs sont rendus à un angle d'environ 60°, le bout de la saisine a atteint une vitesse angulaire telle que le cordage s'enroule autour du bollard. Puisque l'autre extrémité de la saisine demeure fixée au pont, le cordage est forcé immédiatement de se dégager violemment parce que l'embarcation de sauvetage continue d'éviter et que la distance qui la sépare du support du bossoir augmente. Le diamètre des tours de la saisine autour du bollard se resserre au point que la totalité du cordage finit par être enroulée autour du bollard. L'anneau placé au bout libre de la saisine se trouve maintenant près du bollard.

    Le jour de l'accident, il est très probable que le bout de la saisine arrière se soit entortillé et engagé autour du bollard lorsque l'embarcation de sauvetage de bâbord a été mise à l'eau. En conséquence, l'embarcation de sauvetage a piqué du nez et la charge s'est retrouvée partiellement transférée des garants arrière à la saisine et le croc arrière est sorti de l'anneau de suspension.

    2.3 Comportement dynamique au moment de la séparation accidentelle du croc arrière

    Il faut environ deux secondes à la saisine pour s'enrouler autour du bollard; l'enroulement et le déroulement complet prend à peu près quatre secondes. Il est impossible de prédire avec précision le comportement dynamique de la saisine; celui-ci dépend de la tension préalable initiale de la saisine, de la souplesse avec laquelle le frein du treuil est dégagé, de la résistance qu'offrent les bossoirs au niveau des charnières, de la résistance du levier pivotant, du frottement entre les cornes du bossoir et les poulies volantes, de l'assiette et de la gîte du navire, etc.

    Lorsque la saisine s'enroule autour du bollard, il arrive que l'anneau qui la termine reste coincé entre le cordage et le flanc de l'embarcation de sauvetage. Étant donné que la plaque de base du bollard arrière est plate et est posée à plat sur l'arrière vertical de l'embarcation de sauvetage, le bout de la saisine arrière risque beaucoup plus de se coincer de cette façon que la saisine du bollard avant, parce que la base de ce bollard est arrondie vers l'arrière pour épouser la forme avant de l'embarcation.

    Comme la saisine est d'une longueur fixe et que l'embarcation est mise à l'eau en s'écartant du navire, une partie de la charge des garants arrière a momentanément été transférée à la saisine engagée. Le taux de descente de l'arrière de l'embarcation a momentanément ralenti mais, comme les garants filaient toujours, l'avant de l'embarcation de sauvetage s'est retrouvé plus bas que l'arrière. L'arrière, retenu par la saisine engagée, s'est aussi retrouvé plus près du flanc du navire que ne l'était l'avant.

    À ce stade, l'embarcation piquait du nez à un angle d'environ 40° (selon ce que l'on peut déduire en comparant les marques témoins sur les parties endommagées du croc arrière et de son anneau de suspension), lorsque la saisine s'est libérée et s'est détachée du bollard arrière. À cet angle, l'anneau de suspension arrière se trouvait tout au bout du croc et le linguet n'a pas suffi à le retenir et il est sorti du croc. Complètement détachée des garants arrière, l'embarcation s'est balancée comme un pendule au bout du croc avant, toujours attaché aux garants avant.

    2.4 Analyse du dispositif

    2.4.1 Conception des crocs

    Le levier de réenclenchement maintient le croc dans une position où il est en mesure de supporter une charge appliquée. Toutefois, cette charge crée des moments de rotation au niveau du croc et du levier de blocage et elle génère aussi un frottement entre le levier de blocage et le levier de réenclenchement. La force de frottement augmente proportionnellement à la charge appliquée et c'est elle principalement qui maintient le levier de réenclenchement en position de réenclenchement. Si la charge appliquée disparaît, la force de frottement est éliminée et le levier de réenclenchement n'est plus retenu en place que par le frottement du câble flexible et des éléments reliant le levier de réenclenchement au module central de commande de largage. Or, ces éléments sont bien lubrifiés et n'offrent qu'un faible coefficient de frottement. Une analyse des moments dus au poids du levier de réenclenchement et du bras de connexion de câble montre que c'est le levier de réenclenchement qui a le moment le plus élevéNote de bas de page 5.

    Une fois que les anneaux de suspension ont été insérés dans les crocs, alors que l'embarcation de sauvetage franchit les crêtes et les creux successifs des lames, cette charge appliquée devient transitoire et liée à des changements brusques de direction de la force d'impulsion qui aurait tendance à laisser le levier de réenclenchement se déplacer en direction d'ouverture. Pour prévenir une ouverture accidentelle et intempestive des crocs, le levier d'interdiction du module central de commande de largage a été conçu pour bloquer les bras de connexion de câble et les maintenir en position. Il s'agit du seul moyen de maintenir en place le levier de réenclenchement.

    Figure 6. Vue du croc placé pour supporter une charge (réenclenchement)
    Image
    Vue du croc placé pour supporter une charge (réenclenchement)

    Le croc, le levier de réenclenchement et le levier de blocage sont conçus pour tourner autour de pivots. Pour déplacer le levier de blocage afin de dégager le croc, il faut d'abord repousser le levier de réenclenchement. Comme le levier de réenclenchement se déplace en décrivant un arc, sa surface de contact avec le levier de blocage est aussi arquée. Toutefois, la surface de contact correspondante du levier de blocage est plate, ce qui crée un contact linéaire entre ces deux surfaces (voir la rubrique 2.4.2). À sa surface de contact avec le croc, le levier de blocage a un angle de dépouille de 18°. Cet angle crée aussi un contact linéaire entre ces deux pièces.

    Le linguet doit être déplacé pour insérer l'anneau de suspension dans le croc. Comme le linguet ne s'ouvre que vers l'intérieur, il retient l'anneau à l'intérieur du croc. Pour enlever l'anneau de suspension d'un croc verrouillé par le levier de blocage et le levier de réenclenchement, il faut faire pivoter manuellement vers l'intérieur le linguet, ce qui crée une ouverture par laquelle on peut sortir l'anneau. Le linguet n'est pas conçu pour supporter des charges importantes.

    2.4.2 Forces agissant sur le levier de réenclenchement

    La force appliquée par le levier de blocage sur le levier de réenclenchement passe par le centre de rotation du levier de réenclenchement tant que ce centre de rotation se trouve dans le même axe que le centre de sa surface de contact arrondie. Si les deux centres ne sont pas sur le même axe, la force crée un moment de rotation s'exerçant sur le levier de réenclenchement, cherchant à le déplacer vers le haut ou vers le bas.

    Les deux dispositifs ont été éprouvés au moyen d'une machine d'essai à la traction. On a progressivement augmenté une charge appliquée aux crocs avant et arrière alors que le levier de réenclenchement était placé dans chacune des trois positions angulaires (voir l'annexe A, tableaux 1 et 2). Lorsque le levier de réenclenchement était poussé à fond en position de réenclenchement, les charges appliquées créaient un moment de rotation proportionnel sur le levier de réenclenchement qui avait tendance à se déplacer vers le bas (vers la position d'ouverture). Aux autres positions angulaires, le moment de rotation s'exerçant sur le levier de réenclenchement était négligeable.

    Le moment de rotation décelé au niveau du levier de réenclenchement du croc indique que le profil de la came porte-charge du levier n'avait pas un rayon uniforme et que les points n'étaient pas tous parfaitement concentriques dans l'axe de rotation. Comme il s'agissait d'un équipement neuf dont l'usure était non détectée et improbable, cette déviation par rapport au profil nominal est l'indice d'une non-conformité de fabrication.

    2.4.3 Surfaces transmetteuses de charge des crocs et non-conformité de fabrication

    Figure 7. Le croc, le support et le levier doivent être remplacés lorsque l'usure au point de contact entre le croc et le support atteint 122 mm pour un croc de 2,5 tonnes
    Image
    Le croc, le support et le levier doivent être remplacés lorsque l'usure au point de contact entre le croc et le support atteint 122 mm pour un croc de 2,5 tonnes

    Les surfaces de contact transmetteuses de charge du croc s'usent à l'usage, ce qui réduit la distance entre l'extrémité de la surface transmetteuse de charge et la circonférence du pivot. Selon le fabricant, la distance minimale à respecter est de 122 mm. Une distance inférieure peut avoir deux effets également néfastes :

    1. La ligne de contact entre le croc et le levier de blocage s'éloigne du levier de blocage. Puisque cette face du levier de blocage a été conçue avec un angle de dépouille de 18°, le croc risque de finalement glisser au-delà du levier de blocage, de tourner complètement et de libérer la charge appliquée.

      Même si on a constaté que sur le croc arrière, cette distance était d'environ 121,8 mm (0,2 mm sous la norme), la conception prévoyait une marge de sécurité adéquate et rien n'indique que le croc ait jamais glissé au-delà du levier de blocage. Cependant, l'embarcation de sauvetage et les crocs n'avaient qu'un an et l'embarcation de sauvetage n'avait été mise à l'eau que quatre ou cinq fois. Cela n'est pas jugé suffisant pour avoir causé une usure notable.
    2. Comme la ligne de contact entre le croc et le levier de blocage s'éloigne du levier de blocage, cela aussi a pour effet de modifier l'angle vertical du croc, c'est-à-dire de ramener celui-ci à sa position d'origine.

    On n'a noté qu'une usure minimale sur cette surface, et le rayon initial était intact. Au moment de la fabrication, la distance entre l'extrémité de la surface transmetteuse de charge du croc et la circonférence du pivot était donc de 121,8 mm. Comme l'équipement était neuf et très peu usé, cette distance constitue une dérogation par rapport aux dimensions nominales et révèle une non-conformité de fabrication.

    2.4.4 Marques repères pour le levier de réenclenchement

    Photo 20. Marques repères des flasques et du levier de réenclenchement
    Image
    Marques repères des flasques et du levier de réenclenchement

    Lorsque le croc est complètement et correctement réenclenché, la marque repère rouge au bout du levier de réenclenchement devrait être alignée avec la marque rouge correspondante sur les flasques du dispositif. Un tel alignement permet à l'opérateur de s'assurer visuellement que le levier est à la bonne position et confirme que le croc est bien réenclenché.

    Si les indicateurs de réenclenchement du croc ne sont pas alignés, il y a un risque d'erreur : il ne s'agit plus de porter un jugement précis (c'est-à-dire de déterminer si les marques repères rouges sont alignées), mais plutôt de faire une évaluation (si les marques repères sont « assez près »). Des spécifications moins précises entraînent des jugements plus subjectifs et augmentent le risque d'erreur.

    Des marques repères bien alignées sont un outil précieux et préviennent une dérogation aux normes. Des marques repères mal alignées peuvent ultérieurement amener des opérateurs à tolérer des écarts de plus en plus grands par rapport à la norme. Les marques repères désalignées sur le levier de réenclenchement du croc n'ont pas permis à l'équipage d'avoir une bonne indication, à savoir que le levier de réenclenchement est complètement relevé et, plus grave encore, que le croc est bien réenclenché.

    2.5 Module central de commande de largage

    En tirant sur la poignée de largage, on se trouve à déplacer les bras de connexion de câble vers le haut et à tirer les leviers de réenclenchement vers le bas. Des câbles flexibles relient les bras de connexion de câble aux leviers de réenclenchement des dispositifs. Cela a pour résultat que le levier de blocage pivote et que le croc s'ouvre, libérant l'anneau de suspension. L'embarcation de sauvetage n'est alors plus attachée aux garants.

    La poignée de largage actionne simultanément les bras de connexion de câble avant et arrière. Pour y parvenir, on ajuste, lors du réglage initial, la distance sur laquelle les leviers de réenclenchement doivent se déplacer pour libérer les leviers de blocage.

    Le levier d'interdiction empêche les bras de connexion de câble de se déplacer vers le haut après que les crocs ont été réenclenchés. Ce levier est relié mécaniquement à une bobine de solénoïde, laquelle est activée par un signal électrique provenant d'un interrupteur hydrostatique. Lorsque l'embarcation de sauvetage flotte sur l'eau, le solénoïde actionne le levier d'interdiction, ce qui permet à l'opérateur de tirer la poignée de largage pour ouvrir les crocs. Cette opération est baptisée largage hors tension.

    Figure 8. Schéma montrant l'intérieur d'un module central de commande de largage
    Image
    Schéma montrant l'intérieur d'un module central de commande de largage

    Pour parer à une défectuosité du mécanisme d'abaissement qui ferait en sorte que l'embarcation resterait suspendue aux garants, les crocs sont aussi conçus pour permettre le largage sous tension. Le cas échéant, on brise la vitre en Perspex devant le bout libre du levier d'interdiction pour libérer manuellement ce levier des bras de connexion de câble. L'opérateur peut alors tirer sur la poignée de largage pour ouvrir les crocs et compléter l'affalage.

    Une fois que les leviers de réenclenchement ont été remis dans leur position de blocage, aucune force intrinsèque ne les maintient en place. En limitant le mouvement des bras de connexion de câble, le levier d'interdiction maintient les leviers de réenclenchement vers le haut. Le levier d'interdiction garde aussi les crocs dans une condition où ils peuvent supporter la charge appliquée et il empêche leur ouverture accidentelle ou involontaire.

    Il est donc capital que l'opérateur connaisse la position du levier d'interdiction par rapport aux bras de connexion de câble. Les deux flasques du module central de commande de largage sont faits d'acier doux galvanisé et ne comportent aucune ouverture. Il est donc impossible de voir directement les positions relatives du levier d'interdiction et du bras de connexion de câble. L'extrémité non accouplée du levier d'interdiction se trouve dans un boîtier dont l'un des côtés est constitué par une vitre en plastique clair. Toutefois, il n'y a pas, sur cette extrémité du levier ni sur le boîtier, de marques repères qui permettraient de savoir si l'autre extrémité du levier d'interdiction est en position de blocage. Dans le manuel d'entretien du fabricant, on demande de vérifier si l'extrémité non accouplée du levier d'interdiction est en haut ou en bas afin de déterminer sa position relative. Comme il n'y a pas de marques bien visibles qui serviraient de points de repère, l'opérateur doit se fier à son jugement pour déterminer si le levier est en haut ou en bas, ce qui laisse place à la subjectivité et crée un risque d'erreur.

    Le dispositif est monté sur la cloison arrière de l'embarcation de sauvetage. Il est possible de regarder dans l'espace entre les deux flasques pour essayer de voir à quelle position se trouve le levier d'interdiction. Cependant, compte tenu du fait que l'intérieur de l'embarcation de sauvetage est mal éclairé et que les membres de l'équipage portent un gilet de sauvetage et un casque de sécurité, il s'agit d'une opération difficile et peu commode et il y a un risque certain d'erreur de parallaxe.

    Alors, même si le manuel d'entretien du fabricant souligne l'importance de vérifier la position du levier d'interdiction du module central de commande de largage, la conception et la place du module central de commande de largage rendent cette tâche capitale très difficile.

    2.6 Panneau indicateur

    Le panneau indicateur comporte des voyants lumineux rouges et verts qui indiquent la situation de l'embarcation de sauvetage. On peut voir si l'embarcation est à flot ou est suspendue dans les airs et si on peut sans danger tirer la poignée de largage pour ouvrir les crocs. Comme les deux voyants du panneau indicateur sont multifonctionnels, chacun d'entre eux peut indiquer deux conditions de fonctionnement distinctes et opposées. En l'absence de moyen permettant de voir clairement la position du levier d'interdiction, les voyants rouges et verts sont considérés comme l'indice le plus direct et le plus précis de la situation du mécanisme d'ouverture des crocs. Il faut absolument que les indications fournies par ces voyants soient exactes.

    Les indications fournies par les voyants sont déterminées par les contacts entre les bras de connexion de câble, le levier d'interdiction et leurs micro-commutateurs respectifs. La place de ces micro-commutateurs (voir la figure 4) ainsi que le jeu excessif constaté dans leur capteur faisaient en sorte que les voyants du panneau donnaient des indications erronées quant à la position du levier d'interdiction. Lorsque l'un ou les deux bras de connexion de câble n'étaient pas bloqués par le levier d'interdiction, les voyants des panneaux pouvaient indiquer faussement qu'ils étaient bloqués.

    2.7 Interaction typique entre le dispositif, le module central de commande de largage et le panneau indicateur

    Une fois que les leviers de réenclenchement sont repoussés à fond en position de réenclenchement, leurs bras de connexion de câble correspondants viennent en contact avec les micro-commutateurs et le voyant vert du panneau s'allume pour indiquer que les crocs ont été correctement réarmés. À ce stade, si l'un des leviers de réenclenchement ou les deux sont abaissés, même jusqu'à 30 mm, le voyant vert reste allumé, ce qui indique que les crocs sont toujours bien réarmés.

    À un certain point pendant la récupération d'une embarcation de sauvetage (lorsque l'embarcation est dans l'eau et que les crocs avant et arrière ont été correctement réenclenchés), l'un des anneaux de suspension ou les deux sont réinsérés dans les crocs et l'embarcation soulage à la lame. Lorsque l'embarcation de sauvetage est dans l'eau, la bobine de solénoïde reliée au levier d'interdiction est mise sous tension et ne permet pas au levier d'interdiction de bloquer le bras de connexion de câble.

    Pendant ce temps, le mouvement de l'embarcation de sauvetage sur les lames génère des sollicitations intermittentes sur le croc. Ces sollicitations peuvent provoquer l'abaissement de la poignée de largage. Ce mouvement, associé au changement connexe de direction de la force d'impulsion, peut abaisser légèrement le levier de réenclenchement. Le bras de connexion de câble est alors soulevé et ne peut plus être bloqué par le levier d'interdiction quand celui-ci est libéré par la bobine de solénoïde.

    Des contacts électriques défectueux dans le panneau indicateur ou l'interrupteur hydrostatique peuvent aussi causer la mise sous tension de la bobine de solénoïde. Ces éléments ont tous été testés et ils fonctionnaient de façon satisfaisante.

    2.8 Comportement dynamique au moment de l'ouverture accidentelle du croc avant

    Lorsque le levier de réenclenchement est engagé à fond en position de réarmement, il se trouve à 12 mm en bas de la position maximale qu'il peut atteindre. Comme les marques repères du levier n'étaient jamais alignées au départ, l'abaissement du levier de réenclenchement est passé inaperçu. De plus, seul le levier de réenclenchement du croc avant est facilement visible. Des essais de charge statique effectués sur le dispositif Note de bas de page 6 montrent que dans cette condition, le croc demeure pleinement capable de supporter la charge de l'embarcation et de son contenu.

    Toutefois, le levier d'interdiction ne bloquant plus le bras de connexion de câble, le levier de réenclenchement devient vulnérable à l'influence de forces tendant à le déplacer vers le bas (position ouverte). Ces forces deviennent prédominantes lorsque la direction de la force d'impulsion change et que la charge appliquée augmente. Les forces peuvent alors causer l'abaissement du levier de réenclenchement (position ouverte). Le cas échéant, le croc s'ouvre et l'anneau de suspension en sort - tout comme si on tirait la poignée centrale de largage.

    Après la séparation accidentelle du croc arrière, le levier de réenclenchement du croc avant a pu se déplacer sans entrave en position ouverte à cause de la force d'impulsion accrue ainsi que de la charge appliquée au croc avant lorsque l'embarcation de sauvetage s'est mise à osciller autour de lui. L'anneau de suspension avant s'est alors décroché.

    2.9 Construction de l'embarcation de sauvetage

    Les deux embarcations de sauvetage du Pacmonarch étaient conformes à toutes les exigences de la convention SOLAS et offraient à l'équipage un moyen d'abandon du navire en cas d'urgence. Néanmoins, une embarcation de sauvetage peut aussi devoir repêcher des personnes. Dans des mers agitées et tourmentées, une embarcation « peu maniable » comme un canot de sauvetage entièrement fermé est difficile à manœuvrer. Comme les survivants sont normalement repêchés du côté sous le vent, la présence de panneaux d'accès des deux côtés de l'habitacle pourrait réduire le temps nécessaire pour amener l'embarcation de sauvetage en position de repêcher les personnes, ce qui pourrait augmenter les chances de survie de celles-ci.

    2.10 Gilets de sauvetage, sièges et ceintures de sécurité à bord des embarcations de sauvetage

    L'embarcation de sauvetage était conçue pour être mise à l'eau en chute libre d'une hauteur de 3 m. Pourtant, lorsque les enquêteurs du BST se sont assis dans l'embarcation et ont simulé une chute d'une hauteur d'environ 0,5 m, ils ont constaté que la secousse dans la colonne vertébrale était considérable lorsque l'embarcation heurtait l'eau.

    L'inclinaison de l'habitacle, de la protubérance des gilets de sauvetage derrière la nuque et de la présence des appuie-tête rembourrés a pour conséquence qu'on doive pencher la tête vers l'avant à un angle très inconfortable. Les enquêteurs du BST sont restés assis dans cette position pendant environ 30 minutes et ils ont jugé cette situation très pénible, voire douloureuse. Compte tenu de l'exiguïté et du manque d'espace libre à l'intérieur de l'embarcation de sauvetage, il devait être difficile de retirer les gilets de sauvetage et de les ranger.

    Les personnes qui abandonnent le navire peuvent devoir passer une période de temps considérable dans ce type d'embarcation, par tous les temps. Il est difficile de voir comment ceux-ci pourraient éviter des blessures au cou s'ils portent des gilets de sauvetage ordinaires et se cramponnent pour résister au roulis et au tangage. La conception de l'embarcation de sauvetage et surtout de ses sièges ne tient pas compte du fait que les occupants doivent porter des gilets de sauvetage ordinaires. La disposition des sièges non matelassés, combinée à l'espace restreint pour la tête lorsqu'on est assis et aux conséquences du port de gilets de sauvetage ordinaires crée des conditions qui ne sont guère propices au confort de l'équipage et peuvent même provoquer des blessures. En outre, les ceintures de sécurité des sièges ne sont pas assez longues pour retenir une personne de grande taille portant un gilet de sauvetage ordinaire.

    2.11 Instructions d'exploitation des embarcations de sauvetage et exigences de formation

    Les règles de la convention SOLAS englobent plusieurs considérations en matière de formation, notamment concernant les rôles d'appel, les instructions pour les situations d'urgence, les manuels de formation, les exercices d'abandon du navire et la formation connexe. Cette formation à bord est destinée à assurer que les membres de l'équipage seront capables d'abandonner le navire de façon sécuritaire dans une situation d'urgence. On insiste moins sur la formation de l'équipage quant aux procédures de récupération des embarcations de sauvetage, probablement parce que la récupération d'embarcations de sauvetage n'est pas le premier objectif une fois que l'équipage a abandonné le navire.

    Même si tous les manuels d'entretien étaient en anglais, l'équipage ukrainien du Pacmonarch avait exécuté régulièrement et avec succès des exercices d'abandon du navire depuis la mise en service du bâtiment en juillet. Grâce à ces exercices et à d'autres programmes de perfectionnement continu, avant et pendant leur carrière de marins, les membres de l'équipage étaient parfaitement familiarisés avec la mise à l'eau des embarcations de sauvetage. La façon de faire pour réenclencher les crocs n'était cependant pas aussi bien comprise par l'ensemble de l'équipage. Compte tenu de l'importance cruciale du réenclenchement des crocs, la présence d'un aide-mémoire à bord de l'embarcation de sauvetage aurait pu améliorer les chances que les crocs soient correctement réenclenchés. Le manuel d'entretien décrit de façon détaillée la façon correcte de réenclencher les crocs, mais cette information n'est pas affichée à l'intérieur de l'embarcation de sauvetage sous forme d'exposé écrit ou de pictogramme à l'intention de l'équipage.

    3.0 Faits établis

    3.1 Faits établis quant aux causes et aux facteurs contributifs

    1. Quand les bossoirs ont pivoté vers l'extérieur pendant la mise à l'eau de l'embarcation de sauvetage, le bout de la saisine arrière s'est probablement engagé sur le bollard de l'embarcation.
    2. Temporairement « retenue » par la saisine arrière, l'embarcation de sauvetage a piqué du nez à un angle de 40° et l'anneau de suspension arrière s'est déplacé vers l'ouverture du croc.
    3. Lorsque la saisine s'est dégagée et que la charge est revenue sur les garants arrière, le poids s'exerçant sur l'anneau de suspension arrière a probablement provoqué la rupture du linguet et l'anneau est sorti du croc.
    4. Après la séparation accidentelle du croc arrière, le levier de réenclenchement avant s'est déplacé librement jusqu'à la position d'ouverture en raison de la force d'impulsion accrue et de la charge appliquée sur le croc avant lorsque l'embarcation de sauvetage s'est mise à osciller, suspendue à ce croc. L'anneau de suspension avant est donc sorti du croc.

    3.2 Faits établis quant aux risques

    1. Même si le manuel d'entretien décrit de façon détaillée la bonne façon de réenclencher le croc, ces consignes ne sont pas affichées sous forme d'exposé écrit ou de pictogramme pour l'équipage à l'intérieur de l'embarcation de sauvetage.
    2. Comme le croc arrière est tourné vers l'arrière, le levier de réenclenchement est difficile à atteindre et il n'est pas facile de s'assurer que le levier reste en place après le réenclenchement.
    3. Les marques repères de réenclenchement mal alignées sur les crocs ne constituaient pas pour l'équipage une indication fiable du fait que le levier de réenclenchement était poussé à fond en position relevée et, plus grave encore, que les crocs étaient correctement réenclenchés.
    4. Le manuel d'entretien du fabricant demande de vérifier si le bout non accouplé du levier d'interdiction du module central de commande de largage est en position relevée ou abaissée. En l'absence de marques bien visibles pouvant servir de point de repère, tout jugement quant à la position relevée ou abaissée devient entaché de subjectivité et vulnérable à l'erreur.
    5. Même si le manuel d'entretien du fabricant souligne l'importance de vérifier la position du levier d'interdiction du module central de commande de largage, la conception et la position du module compliquent cette tâche cruciale.
    6. Comme les deux voyants lumineux du panneau indicateur sont multifonctionnels, chacun peut témoigner de deux conditions d'exploitation distinctes et opposées.
    7. Même si un, voire les deux, bras de connexion de câble n'étaient pas bloqués par le levier d'interdiction, les voyants lumineux du panneau indicateur pouvaient indiquer faussement qu'ils étaient bloqués.
    8. La distance entre l'extrémité de la surface transmetteuse de charge du croc arrière et la circonférence du pivot était de 121,8 mm à la fabrication. Comme l'équipement était neuf et n'avait que très peu d'usure, il s'agit d'une dérogation aux dimensions nominales prévues et d'une non-conformité de fabrication.
    9. Le moment de rotation s'exerçant sur le levier de réenclenchement du croc indique que le profil de la came porteuse de charge du levier n'était pas uniformément rond et parfaitement concentrique. Comme l'équipement était neuf, que l'usure était non détectée et improbable, il s'agit d'un écart par rapport aux caractéristiques nominales et d'une non-conformité de fabrication.
    10. Lors de la récupération de l'embarcation de sauvetage dans l'eau, le mouvement de l'embarcation sur les vagues a généré des sollicitations intermittentes sur le croc. Ces sollicitations ont pu provoquer l'abaissement de la poignée de largage (en position d'ouverture).

    3.3 Autres faits établis

    1. L'embarcation de sauvetage, et spécialement les sièges, n'était pas conçue pour des occupants portant des gilets de sauvetage ordinaires.
    2. La conception des sièges non matelassés de l'embarcation de sauvetage, l'espace libre limité pour la tête des personnes assises et le port de gilets de sauvetage ordinaires ne sont pas de nature à assurer le confort des membres de l'équipage et pourraient même provoquer des blessures.
    3. Les ceintures de sécurité des sièges de l'embarcation de sauvetage ne sont pas assez longues pour retenir efficacement une personne corpulente portant un gilet de sauvetage ordinaire.
    4. La présence de panneaux d'accès des deux côtés de l'habitacle de l'embarcation de sauvetage pourrait réduire le temps requis pour amener l'embarcation en position de récupérer des personnes dans l'eau, accroissant ainsi les chances de survie de ces personnes.
    5. Même si l'embarcation de sauvetage était conçue pour être mise à l'eau en chute libre d'une hauteur de 3 m, les occupants ont été considérablement secoués et incommodés au cours des essais lorsque l'embarcation a touché l'eau après une chute simulée d'une hauteur d'environ 0,5 m.

    4.0 Mesures de sécurité

    4.1 Mesures de sécurité prises

    Le BST a envoyé l'Avis de sécurité maritime ASM 05/01 à l'Administration maritime des Bahamas avec copie au propriétaire du navire et a fait parvenir la Lettre d'information sur la sécurité maritime no 02/01 à l'International Association of Classification Societies, à l'État du pavillon (Bahamas), à Transports Canada, à la société de classification ClassNK, aux armateurs du Pacmonarch, aux fabricants de l'embarcation de sauvetage et des bossoirs ainsi qu'au constructeur du navire afin de les informer des lacunes relevées sur les plans de l'ergonomie et de la conception dans les dispositifs et le module central de commande de largage. Dans la Lettre d'information sur la sécurité maritime (LISM), on soulignait aussi l'importance de s'assurer que le levier d'interdiction bloque bien les bras de connexion de câble.

    En réponse, la Sécurité maritime de Transports Canada (SMTC) a publié le Bulletin d'instruction sur le contrôle des navires par l'État du port no 3 fondé sur les constatations faites à la suite de cet accident et d'autres événements analogues et portant sur l'ouverture prématurée des crocs maintenant les embarcations de sauvetage. On renvoie les inspecteurs au Bulletin de la sécurité maritime 05/2000 et à d'autres documents afin qu'ils vérifient bien tous les systèmes de mise à l'eau au cours des inspections et qu'ils s'assurent que l'équipage connaisse bien la procédure adéquate pour mettre à l'eau et récupérer des embarcations de survie. Si des manquements sont décelés, il y a lieu d'immobiliser le navire.

    La SMTC a aussi fait savoir que l'Australie, le Canada et la Nouvelle-Zélande avaient présenté, le 14 décembre 2001, un rapport conjoint (DE 45/17) au Sous-comité de la conception et de l'équipement des navires de l'Organisation maritime internationale afin de sensibiliser les personnes concernées aux problèmes de sécurité liés à l'exploitation et à l'entretien des embarcations de sauvetage entièrement fermées. Le document avait pour but d'aider le sous-comité dans ses efforts de prévention des accidents et on y proposait diverses mesures applicables à court, à moyen et à long terme.

    Trois organisations regroupant des exploitants de navires-citernes (OCIMF, INTERTANKO et SIGTTO) ont saisi le sous-comité le 25 janvier 2002 de données supplémentaires à l'appui de ce rapport. Ces données comprenaient de l'information supplémentaire concernant la conception, l'exploitation et l'entretien des embarcations de sauvetage, de même que des propositions de normes, de lignes directrices et de programmes de formation pour le court et le moyen terme. Le sous-comité s'est réuni en mars 2002 et sa prochaine réunion est prévue pour 2003.

    Le BST a organisé une réunion dans les locaux de son Laboratoire d'ingénierie en avril 2001. Des représentants des fabricants des embarcations de sauvetage et des bossoirs ainsi que des constructeurs et des armateurs du navire y ont assisté, de même que l'agent commercial du constructeur de l'embarcation de sauvetage. Les lacunes relevées dans la conception du croc et des mécanismes de largage ont été mises en lumière et discutées. La discussion a été approfondie et constructive et on s'est tout spécialement penché sur l'interface homme-machine.

    Après la réunion, Lasco Shipping Co., qui gère les opérations du navire, a décidé de remplacer les quatre embarcations de sauvetage du Pacmonarch et du Pacemperor par d'autres modèles fabriqués par un constructeur différent.

    Le constructeur de l'embarcation de sauvetage, Nishi-F Co. Ltd., en réponse à la Lettre d'information sur la sécurité maritime, a communiqué un supplément d'information concernant la place et le fonctionnement du dispositif de réenclenchement des crocs, les voyants lumineux et le mécanisme d'interdiction.

    À la suite d'une enquête, l'Administration maritime des Bahamas a recommandé que la société de classification ClassNK révise l'approbation donnée à ce type d'embarcation de sauvetage jusqu'à ce que les constructeurs aient fait les changements requis par les recommandations. Ces dernières visent toutes les embarcations de sauvetage, existantes et nouvelles, et demandent notamment :

    • aux fabricants d'étudier la possibilité de prévoir un hublot d'inspection sur le côté du module central de commande de largage, afin que le levier d'interdiction soit directement visible pour qu'on puisse s'assurer qu'il bloque bien le bras de connexion de câble lorsque le mécanisme du croc a été réenclenché;
    • aux fabricants d'étudier la possibilité de placer le croc arrière de façon à ce que son côté ouvert soit tourné vers l'avant, pour que les marques repères rouges soient bien visibles lors du réenclenchement par l'équipage de l'embarcation de sauvetage;
    • de vérifier que les marques repères rouges s'alignent bien avant de livrer le produit.

    La société de classification japonaise ClassNK, en réponse à la LISM, a fait savoir que quelque 340 bateaux construits par Nishi-F Co. Ltd. avaient été placés à bord de navires utilisant ses services depuis 1987. La société de classification a envoyé une note d'information à tous ses bureaux ainsi qu'à tous les propriétaires connus de navires utilisant ce type d'embarcation de sauvetage.

    La société de classification ClassNK a eu des discussions avec le constructeur de l'embarcation de sauvetage, au bout desquelles ce dernier a décidé de :

    • cesser la production de ce modèle de mécanisme de largage;
    • faire parvenir des tiges de sûreté à tous les autres navires existants munis de ce type d'embarcation de sauvetage. Ces tiges de sûreté doivent être insérées dans le module central de commande de largage afin de prévenir l'ouverture accidentelle et prématurée des crocs;
    • simplifier leur manuel d'entretien et d'exploitation pour le rendre plus facile à comprendre;
    • préparer des vidéos de formation sur l'exploitation et le déploiement des embarcations de sauvetage.

    L'International Association of Classification Societies (IACS) a diffusé le contenu de la LISM à tous ses membres pour qu'ils prennent les mesures qu'ils jugent nécessaires.

    4.2 Préoccupations liées à la sécurité

    Considérations liées à l'ergonomie

    L'Avis de sécurité maritime et la Lettre d'information sur la sécurité maritime mentionnés sous la rubrique 4.1 traitent des aspects pratiques des crocs, de leur conception ainsi que des facteurs d'ergonomie qui interviennent dans l'accrochage ou le décrochage des poulies. Il est entendu que les responsables et les organisations ont pris des mesures et que les problèmes ont été portés à l'attention de l'OMI.

    Toutefois, le Bureau demeure préoccupé par le fait que des membres d'équipage peuvent se blesser au cours d'exercices de mise à l'eau d'embarcation de sauvetage ou d'abandon du navire. Les essais effectués par le personnel du BST à bord des embarcations de sauvetage sous bossoir du Pacmonarch ont révélé que la conception des sièges des embarcations de sauvetage ne permettait pas aux membres d'équipage portant des gilets de sauvetage ordinaires d'être assis de façon sécuritaire. L'embarcation de sauvetage était conçue pour être mise à l'eau en chute libre d'une hauteur de 3 m mais lors des essais, une chute de 0,5 m a considérablement secoué les occupants. Les sièges non matelassés, l'espace libre restreint pour la tête, les ceintures de sécurité des sièges trop courtes et la configuration de la place assise peu adaptée à une personne portant un gilet de sauvetage ordinaire créent des conditions qui peuvent causer des blessures lors de la mise à l'eau de l'embarcation.

    Le présent rapport met un terme à l'enquête du Bureau de la sécurité des transports sur cet accident. La publication de ce rapport a été autorisée par le Bureau le .

    Annexes

    Annexe A - Tableaux 1 et 2

    Tableau 1

    CROC AVANT
    Charge Appliquée Résultat (kg)
    Position du levier: réarmé à fond
    (0 mm)
    Position du levier: tel qu'installé

    (20 mm)
    Position du levier: mi-course
    (50 mm)
    lb kg Initiale Finale Initiale Finale Initiale Finale
    0 0 3 3 0,4
    250 113,4 6,4 3 0,5
    500 226,8 10 3 0,5
    750 340,2 13,5 3 0,5
    1000 453,6 15,2 3 0,5
    1250 567 17,1 3 0,5
    1500 680,4 19,2 3 0,5
    1750 793,8 20,8 3 0,5
    2000 907,2 22,3 3 0,5
    2250 1020,6 23,5 3 0,6
    2500 1134 24,8 3 0,6
    2750 1247,4 25,8 3 0,6
    3000 1360,8 26,9 3 0,6
    3250 1474,2 28 3 0,6
    3500 1587,6 29,1 3 0,6
    3750 1701 30,1 3 0,6
    4000 1814,4 31 3 0,6
    4250 1927,8 32 3 0,6
    4500 2041,2 32,8 3 0,6
    4750 2154,6 33,7 3 0,7
    5000 2268 34,3 3 0,7
    5250 2381,4 35,2 3 0,7
    5500 2494,8 35,9 3 0,7

    Nota : La charge appliquée, exprimée en livres, est exacte. La conversion en kilogrammes est approximative.

    Tableau 2

    CROC ARRIÈRE
    Charge appliquée Résultat (kg)
    Position du levier:
    réarmé à fond
    (0 mm)
    Position du levier:
    tel qu'installé
    (20 mm)
    Position du levier:
    mi-course
    (50 mm)
    lb kg Initiale Finale Initiale Finale Initiale Finale
    0 0 3 3 0,6
    250 113,4 3,4 3 0,7
    500 226,8 5,1 3 0,7
    750 340,2 6,4 3 0,7
    1000 453,6 7,3 3 0,7
    1250 567 7,9 3 0,7
    1500 680,4 8,7 3 0,7
    1750 793,8 9,5 3 0,7
    2000 907,2 10,3 3 0,7
    2250 1020,6 11 3 0,7
    2500 1134 11,7 3 0,7
    2750 1247,4 12,3 3 0,7
    3000 1360,8 12,9 3 0,7
    3250 1474,2 13,5 3 0,7
    3500 1587,6 14 3 0,8
    3750 1701 14,5 3 0,8
    4000 1814,4 15 3 0,8
    4250 1927,8 15,5 3 0,8
    4500 2041,2 16 3 0,8
    4750 2154,6 16,3 3 0,8
    5000 2268 16,7 3 0,8
    5250 2381,4 17,2 3 0,8
    5500 2494,8 17,7 3 0,8

    Nota : La charge appliquée, exprimée en livres, est exacte. La conversion en kilogrammes est approximative.

    Annexe B - Glossaire

    ASM
    Avis de sécurité maritime
    BHP
    puissance au frein
    BST
    Bureau de la sécurité des transports du Canada
    kg
    kilogramme
    lb
    livres
    LISM
    Lettre d'information sur la sécutité maritime
    m
    mètre
    mm
    millimètre
    SMTC
    Sécurité maritime de Transports Canada
    SOLAS
    Convention internationale de 1974 pour la sauvegarde de la vie humaine en mer
    seconde
    minute
    °
    degré

    Termes

    bollard solide poteau d'acier utilisé pour attacher des câbles et pour l'amarrage
    câble flexible câble métallique entouré d'une gaine de plastique lubrifiée, utilisé pour transmettre une force
    dispositif d'homme mort organe de sécurité qui serre automatiquement le frein lorsqu'il est relâché
    garant nom que prend un cordage quelconque lorsqu'il est employé pour former un palan
    joint à manille tige métallique en forme de U dont chaque branche est percée d'un trou où on insère une goupille ou un boulon destiné à retenir une autre pièce
    machine de traction machine capable d'appliquer une charge de traction uniforme à un spécimen
    Panamax dimensions maximales que peut avoir un navire pour transiter par les écluses du canal de Panama
    saisine cordage servant à maintenir une embarcation de sauvetage arrimée
    société de classification organisation privée dont le rôle est d'assurer la surveillance des navires pendant leur construction et leur durée utile
    solénoïde bobine cylindre qui, lorsqu'elle transporte un courant électrique, agit comme un aimant pour attirer un noyau mobile
    tuyère Kort cylindre protecteur entourant une hélice

    <a name="Appendix_A" id="Appendix_A"></a>Appendix A - Tables 1 and 2

    Table 1

    FORWARD HOOK
    Applied Load Output (kg)
    Lever Position: Fully Reset
    (0 mm)
    Lever Position: As Rigged
    (20 mm)
    Lever Position: Midtravel
    (50 mm)
    lbs kg Initial Final Initial Final Initial Output
    0.0 0.0 3.0 3.0 0.4
    250.0 113.4 6.4 3.0 0.5
    500.0 226.8 10.0 3.0 0.5
    750.0 340.2 13.5 3.0 0.5
    1000.0 453.6 15.2 3.0 0.5
    1250.0 567.0 17.1 3.0 0.5
    1500.0 680.4 19.2 3.0 0.5
    1750.0 793.8 20.8 3.0 0.5
    2000.0 907.2 22.3 3.0 0.5
    2250.0 1020.6 23.5 3.0 0.6
    2500.0 1134.0 24.8 3.0 0.6
    2750.0 1247.4 25.8 3.0 0.6
    3000.0 1360.8 26.9 3.0 0.6
    3250.0 1474.2 28.0 3.0 0.6
    3500.0 1587.6 29.1 3.0 0.6
    3750.0 1701.0 30.1 3.0 0.6
    4000.0 1814.4 31.0 3.0 0.6
    4250.0 1927.8 32.0 3.0 0.6
    4500.0 2041.2 32.8 3.0 0.6
    4750.0 2154.6 33.7 3.0 0.7
    5000.0 2268.0 34.3 3.0 0.7
    5250.0 2381.4 35.2 3.0 0.7
    5500.0 2494.8 35.9 3.0 0.7

    (Note: The applied load expressed in pounds is accurate. The conversion to kilograms is approximate.)

    Table 2

    AFTER HOOK
    Applied Load Output (kg)
    Lever Position:
    Fully Reset
    (0 mm)
    Lever Position:
    As Rigged
    (20 mm)
    Lever Position:
    Midtravel
    (50 mm)
    lbs kg Initial Final Initial Final Initial Final
    0 0.0 3.0 3.0 0.6
    250.0 113.4 3.4 3.0 0.7
    500 226.8 5.1 3.0 0.7
    750.0 340.2 6.4 3.0 0.7
    1000 453.6 7.3 3.0 0.7
    1250 567.0 7.9 3.0 0.7
    1500 680.4 8.7 3.0 0.7
    1750.0 793.8 9.5 3.0 0.7
    2000 907.2 10.3 3.0 0.7
    2250.0 1020.6 11.0 3.0 0.7
    2500.0 1134.0 11.7 3.0 0.7
    2750.0 1247.4 12.3 3.0 0.7
    3000 1360.8 12.9 3.0 0.7
    3250 1474.2 13.5 3.0 0.7
    3500.0 1587.6 14.0 3.0 0.8
    3750.0 1701.0 14.5 3.0 0.8
    4000 1814.4 15.0 3.0 0.8
    4250.0 1927.8 15.5 3.0 0.8
    4500 2041.2 16.0 3.0 0.8
    4750.0 2154.6 16.3 3.0 0.8
    5000 2268.0 16.7 3.0 0.8
    5250 2381.4 17.2 3.0 0.8
    5500 2494.8 17.7 3.0 0.8

    (Note: The applied load expressed in pounds is accurate. The conversion to kilograms is approximate.)

    <a name="Appendix_B" id="Appendix_B"></a>Appendix B - Glossary

    Abbreviations

    BHP brake horse power
    lbs pounds
    mm millimetres
    SOLAS International Convention for the Safety of Life at Sea, 1974
    TCMS Transport Canada Marine Safety
    TSB Transportation Safety Board of Canada
    ° degree
    ' minute
    " second

    Terms

    Bahamian flag state the ship registry of the Bahamas Maritime Authority
    bollard a strong steel post used for fastening ropes and for mooring
    classification society a private organization whose purpose is the supervision of ships during their construction and service life
    clevis joint a U-shaped device with a hole at the end of each prong through which a pin or bolt can be pushed to secure another part in place
    dead man's handle a safety device that automatically applies the brake when the operator releases it
    falls in hoisting or lowering applications, the (wire) rope to which power or load is applied
    gripe a fastening for securing a lifeboat in its stowage
    kort nozzle a protective cylindrical ring forming a duct around a propeller
    panamax the maximum physical size of a ship that can fit into the locks of the Panama canal
    solenoid a coil of wire which, when carrying an electric current, acts like a magnet and draws a movable core into it
    teleflex cable a wire rope encased in a lubricated plastic sheath and used for transmitting force
    tensile testing machine a machine that can apply a uniform tensile load to a specimen

    1. Units of measurement in this report conform to International Maritime Organization standards or, where there is no such standard, are expressed in the International System of Units.

    2. All times are Pacific daylight time (Coordinated Universal Time minus seven hours).

    3. Australian Transport Safety Bureau, Report No 160.

    4. Regulations 41 and 44 (and 47 - applicable to the starboard lifeboat, the ship's designated rescue boat).

    5. See Appendix F of TSB Engineering Laboratory Report LP 124/00.

    6. See TSB Engineering Laboratory Report LP 124/00.