Rapport d'enquête maritime M97N0099

Explosion et incendie à bord
du pétrolier « PETROLAB »
et destruction du quai de l'État à
St. Barbe (Terre-Neuve)

Le Bureau de la sécurité des transports du Canada (BST) a enquêté sur cet événement dans le but de promouvoir la sécurité des transports. Le Bureau n’est pas habilité à attribuer ni à déterminer les responsabilités civiles ou pénales. Le présent rapport n’est pas créé pour être utilisé dans le contexte d’une procédure judiciaire, disciplinaire ou autre. Voir Propriété et utilisation du contenu. Les pronoms et les titres de poste masculins peuvent être utilisés pour désigner tous les genres afin de respecter la Loi sur le Bureau canadien d’enquête sur les accidents de transport et de la sécurité des transports (L.C. 1989, ch. 3).

Table des matières

    Résumé

    Le soir du 19 juillet 1997, il y a eu une explosion et un incendie à bord du pétrolier « PETROLAB » pendant que l'équipage lavait les citernes de transport d'hydrocarbures avant de procéder au chargement. Le propriétaire du navire a perdu la vie, et trois membres de l'équipage, dont l'un est décédé plus tard à l'hôpital, ont été blessés dans l'explosion. L'incendie qui a éclaté à bord du navire s'est propagé au quai de l'État. L'incendie a été maîtrisé grâce aux efforts de deux navires de la Garde côtière canadienne et de plusieurs services d'incendie basés à terre. Une partie de la ville de St. Barbe a été évacuée par mesure de précaution. Le navire et le quai de l'État ont été détruits avant qu'on réussisse à éteindre le feu quelque 63 heures plus tard. On n'a pas signalé de pollution attribuable à l'incendie.

    Le Bureau a déterminé que l'explosion a été causée par une accumulation de vapeurs d'essence dans le cofferdam arrière, l'entrepont et la salle des machines. La source d'inflammation n'a pas été déterminée. Les facteurs suivants ont contribué à l'explosion : le manque de connaissances du propriétaire et de l'équipage en matière de pratiques de travail prudentes sur les pétroliers; des pratiques de travail dangereuses improvisées pour remplacer un système d'assèchement des citernes qui était inutilisable depuis au moins 10 ans; le fait qu'il n'y avait pas de système de gestion de la sécurité; le fait que le cofferdam, qui communiquait avec l'entrepont et la salle des machines, était utilisé comme citerne à résidus; l'utilisation de matériel de pompage non certifié pour être utilisé dans un environnement dangereux; le fait que les ventilateurs d'extraction du cofferdam et de l'entrepont n'ont pas été utilisés; l'absence d'analyse de l'air et la présence dans la salle des machines de matériel et de raccords électriques inférieurs aux normes établies.

    1.0 Renseignements de base

    1.1 Fiche technique du navire

    Nom « PETROLAB »
    Numéro officiel 802334
    Port d'immatriculation St. John's (Terre-Neuve)
    Pavillon Canada
    Type Navire-citerne (produits pétroliers)
    Jauge bruteNote de bas de page 1 472 tonneaux
    LongueurNote de bas de page 2 41 m
    Tirant d'eau Av. : 2,4 m
    Arr. : 3,0 m
    Construction 1962 (allongement en 1968)
    Groupe propulseur Un moteur diesel marin V16 General Motors de 746 kW entraînant une seule hélice à pas fixe
    Cargaison Ballast (dernière cargaison : essence)
    Équipage 8 personnes
    Propriétaire William Normore Ltd., L'Anse-au-Loup, Labrador

    1.1.1 Renseignements sur le navire

    Le pétrolier « PETROLAB » était un navire à coque d'acier qui avait été construit en 1962 en Norvège. Il comportait des emménagements et une salle des machines à l'arrière et six paires de citernes de transport d'hydrocarbures (CTH) numérotées de 1 à 6 (bâbord et tribord) à partir de l'avant. Le pont principal était fermé par un entrepont qui abritait le matériel de pompage et les canalisations. Cet entrepont servait également à entreposer des flexibles de cargaison, du matériel et des huiles de graissage qui étaient vendus dans divers ports. Il y avait un cofferdam arrière aux membrures 18 à 21 entre la salle des machines et les CTH no 6. Des citernes à résidus conçues à cet effet (7,97 m3) étaient situées entre les membrures 19 et 21, au fond du cofferdam. Une porte de secours aménagée du côté bâbord de la cloison avant de la salle des machines communiquait avec le cofferdam et avec les échelles donnant accès au pont principal.

    1.2 Déroulement du voyage

    1.2.1 Avant l'explosion

    En mai 1997, Ultramar Canada Inc. affrète le « PETROLAB » pour transporter des produits pétroliers de son terminal de St. Barbe aux ports de la Basse-Côte-Nord du Québec. La Sécurité maritime de Transports Canada (TC) fait une inspection annuelle du navire, et Ultramar fait un examen de pré-affrètement au cours du mois de mai, avant le début des opérations de la saison de 1997. Le pétrolier transporte habituellement de l'essence et du carburant diesel lors de chaque voyage, et il est équipé de pompes de cargaison conçues pour chaque produit. De temps à autre, en raison de la non-disponibilité des produits à St. Barbe ou à cause des besoins des terminaux de déchargement, le navire transporte une cargaison homogène.

    À 13 h 55Note de bas de page 3 le 16 juillet 1997, le « PETROLAB » quitte St. Barbe avec un plein chargement d'essence à destination de Saint-Augustin (Québec). Il quitte Saint-Augustin à 7 h le 18 juillet après avoir déchargé sa cargaison et avoir fait le ballastage des CTH nos 3 et 4. Il arrive à St. Barbe à 14 h le même jour. À son arrivée, un autre navire-citerne est en train de décharger; le« PETROLAB » s'amarre donc du côté opposé du quai, au poste d'accostage utilisé habituellement par le traversier « NORTHERN PRINCESS » de la Quebec North Shore.

    Lors d'un voyage précédent en 1997, le navire avait transporté une cargaison de carburant diesel après avoir transporté un plein chargement d'essence. Les citernes n'avaient été ni rincées avec de l'huile de rinçage, ni lavées; c'est pourquoi, au déchargement, le point d'éclair du carburant diesel mesuré avait, apparemment, été inférieur aux spécifications. Le 18 juillet 1997, on apprend qu'une pleine cargaison d'huile à chauffage doit être chargée. Pour ne pas avoir le même problème de point d'éclair bas, le propriétaire et le premier lieutenant décident de laver à l'eau de mer les CTH nos 1, 2, 5 et 6.

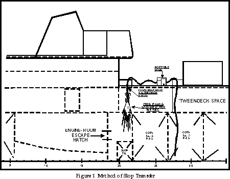
    La procédure de lavage des citernes acceptée sur le « PETROLAB » veut qu'un officier du navire pénètre à l'intérieur de la citerne avec un appareil respiratoire Scott et une manche à incendie pour laver la citerne. Après avoir arrosé la citerne à la manche, on doit écoper les résidus non pompables restants dans des seaux, et les vider dans le cofferdam (que les membres de l'équipage appelle la « citerne à résidus »). Dans l'après-midi du 19 juillet, on commence le lavage des citernes, mais il est difficile de maintenir la pression d'aspiration avec les pompes principales de cargaison. Le système fixe d'assèchement des citernes du navire n'est plus en service depuis au moins 10 ans et n'est pas utilisable. On essaie donc d'assécher les citernes au moyen d'une pompe à moteur diesel de location qu'on place sur le pont. Comme il n'est toujours pas possible d'aspirer, on met une pompe à essence portable Honda sur le pont et l'on place le tuyau d'aspiration dans la citerne à laver et le tuyau de déversement à l'arrière, dans l'écoutille d'évacuation de l'entrepont (voir la figure 1 à la page 10). Selon l'information recueillie, le tuyau dépasse d'environ un mètre dans l'écoutille et n'est pas mis à la masse. Les résidus de cargaison (un mélange d'essence et d'eau) tombent d'une hauteur de 4,5 m de l'entrepont jusque dans le cofferdam. Pendant ce temps, on ne fait aucune analyse de l'air dans les CTH, l'entrepont, le cofferdam et les aires de travail du pont.

    On nettoie les CTH nos 1 et 2 de cette façon sans incident, et, en début de soirée, on passe aux CTH no 5. Vers 20 h, le premier lieutenant qui vient de placer le tuyau d'aspiration dans les résidus de la CTH no 5 entend sonner l'alarme de l'avertisseur de son appareil respiratoire Scott. Il quitte la CTH no 5 de bâbord, et alors qu'il se tient près de l'écoutille d'évacuation de l'entrepont avec le propriétaire et un matelot, un grondement en provenance de l'entrepont se fait entendre, suivi d'une explosion. Le propriétaire, qui regardait à l'intérieur de l'écoutille d'évacuation de l'entrepont, est projeté par-dessus la rambarde bâbord par la force de l'explosion et tombe à l'eau. Le premier lieutenant et le matelot, qui sont debout à un mètre de là, sont projetés sur le pont et subissent des brûlures.

    Plus tôt dans l'après-midi, le chef mécanicien et le second mécanicien avaient remplacé une vanne de chargement dans l'entrepont, près des CTH no 2. Ils avaient terminé ce travail à 19 h 30, puis avaient pris leur repas du soir. Le second mécanicien s'était ensuite rendu à sa cabine pour prendre une douche.

    Le second mécanicien a entendu le chef mécanicien entrer dans la salle des machines par l'entrée du côté bâbord des emménagements. Peu après, il s'est produit une explosion, suivie immédiatement de l'alarme de dégagement de halon de la salle des machines.

    Grâce à une exemption du Bureau d'inspection des navires (BIN), le navire n'était pas obligé d'avoir un épurateur d'eaux mazouteuses pour la salle des machines. Selon les informations recueillies, il n'était pas inhabituel de pomper l'eau des fonds de la salle des machines dans le cofferdam pour l'éliminer à terre avec les résidus des CTH. Lors de l''examen de la salle des machines effectuée après l'accident, on a trouvé une pompe d'assèchement des fonds électrique à courant continu dans le fond de cale, à l'avant de la machine principale. Un tuyau de déversement en plastique partait de cette pompe et aboutissait à la porte de secours de la salle des machines. La porte a été trouvée en position ouverte après l'incendie.

    1.2.2 Après l'explosion

    Après l'explosion, le premier lieutenant et le matelot de quart, tous deux blessés, se sont dirigés vers le quai. Le second mécanicien a quitté sa cabine, est sorti des emménagements et s'est rendu sur le pont, à tribord. Il a trouvé le chef mécanicien qui était blessé et l'a aidé à descendre sur le quai. Le capitaine, qui était sur la passerelle au moment de l'explosion, s'est rendu sur le pont principal où il a arrêté la pompe portable avant de se rendre sur le quai pour demander à l'agent d'Ultramar d'appeler le service d'incendie et une ambulance. Le deuxième lieutenant, qui se trouvait sur le quai au moment de l'explosion, est retourné sur le navire et a éteint plusieurs petits foyers d'incendie sur le pont à l'aide d'un extincteur portable.

    Le second mécanicien, le capitaine et le deuxième lieutenant sont retournés sur le navire pour essayer de repêcher le propriétaire. Avec l'aide du capitaine et du deuxième lieutenant, le second mécanicien est descendu le long de la muraille avec une bouée de sauvetage. Cette tentative de sauvetage a échoué, mais le second mécanicien a réussi à arrimer solidement le corps du propriétaire avec une corde fixée à la rambarde.

    L'incendie qui s'en est suivi était limité aux magasins de l'entrepont, mais deux ou trois heures après l'explosion, la peinture de l'extérieur de la coque a pris feu et l'incendie s'est propagé aux pieux en bois imprégné de créosote du quai. De peur que le feu ne gagne le parc de réservoirs de stockage non loin de là, on a rincé à l'eau de mer les canalisations aboutissant au quai et on a fait évacuer une partie de la ville de St. Barbe. Le 20 juillet à 1 h, le NGCC « HOOD » est arrivé et s'est mis à lutter contre l'incendie sur le quai. Les amarres du « PETROLAB » ont complètement brûlé et, à 5 h, le navire a dérivé dans le port et s'est échoué à 0,15 mille du quai. Des pompiers des municipalités locales ont alors répandu de la mousse sur le navire. Le NGCC

    « SIR WILFRED GRENFELL » est arrivé à 9 h 30; son équipage a arrosé le quai avec des canons à eau et a répandu de la mousse jusqu'à ce que l'incendie soit éteint. On a annoncé que l'incendie était éteint vers 11 h le 22 juillet.

    1.3 Victimes

    Équipage Passagers Tiers Total
    Tués 1 - 1 2
    Disparus - - - -
    Blessés graves 2 - - 2
    Blessés légers/ indemnes 5 - - 5
    Total 8 - 1 9

    Aucun membre de l'équipage ne portait de vêtement ignifuge au moment de l' explosion.

    Le propriétaire, qui était dans la trajectoire de l'explosion et du front de flamme qui est sorti par l'écoutille d'évacuation de l'entrepont, a été projeté par-dessus la rambarde bâbord par la force de l'explosion et est tombé à l'eau. On a repêché son corps aux petites heures le lendemain matin. Il a subi des brûlures du troisième degré sur 50 p. 100 du corps.

    Le premier lieutenant et le matelot, qui étaient debout sur le pont à côté du propriétaire, ont subi des brûlures du premier degré et du deuxième degré aux mains et au visage. En grimpant sur le quai, le matelot est tombé et s'est disloqué l'épaule.

    Le chef mécanicien, qui était dans la salle des machines au moment de l'explosion, a subi des brûlures du troisième degré sur 50 p. 100 du corps. Il est mort à l'hôpital deux semaines plus tard.

    1.4 Avaries et dommages

    1.4.1 Avaries au navire

    Sous la force de l'explosion, la structure du rouf a été déformée et les vitres des hublots du rouf ont éclaté. Le navire a été lourdement endommagé par le feu. Les emménagements ont été détruits et la superstructure en aluminium a été considérablement déformée. Tous les matériaux combustibles de l'entrepont ont été détruits et la structure de l'entrepont a été lourdement endommagée par le feu. Il n'y avait pas de trace de feu dans la salle des machines, malgré la présence, sur les parties supérieures, notamment au plafond, de dommages causés par la chaleur et la fumée provenant de l'incendie au-dessus. Les CTH n'ont pas été perforées durant l'accident. Le « PETROLAB » a été déclaré perte totale implicite et vendu.

    1.4.2 Dommages au quai de l'État

    L'incendie a détruit le quai de l'État, les canalisations et la rampe d'accès du traversier.

    1.4.3 Dommages à l'environnement

    L'environnement n'a pas subi de dommages.

    1.5 Certificats et brevets

    1.5.1 Certificats du navire

    Le « PETROLAB » possédait les certificats délivrés par TC exigés pour un navire de ce type et pour les voyages qu'il effectuait. Grâce à une exemption, il n'était pas obligé d'être équipé d'un

    épurateur d'eaux mazouteuses dans la salle des machines. Le navire avait été construit selon les

    normes de la société Det Norske Veritas, mais il n'était pas classé par une société de classification au moment de l'explosion.

    1.5.2 Brevets de l'équipage

    Le capitaine et les officiers étaient titulaires de brevets canadiens en état de validité pour le type de voyages qu'ils effectuaient.Note de bas de page 4 Seuls le premier lieutenant et le chef mécanicien étaient titulaires de brevets avec la mention pétrolier.

    1.6 Antécédents du personnel

    1.6.1 Brevets et expérience de l'équipage

    Le capitaine du « PETROLAB » n'avait pas d'expérience à bord de pétroliers et commandait le « PETROLAB » depuis septembre 1996. Son expérience dans le transport de produits pétroliers consistait en quatre saisons comme capitaine d'un remorqueur de barges pétrolières dans la baie James. Au moment de l'accident, il était titulaire d'un brevet canadien de capitaine au cabotage, mais il n'était pas titulaire de la mention pétrolier. Il avait occupé divers postes comme officier de navire depuis le milieu des années 1960.

    Le premier lieutenant était titulaire d'un brevet de premier lieutenant au cabotage (NO II). Il travaillait sur le « PETROLAB » depuis 10 ans. Il avait commencé à travailler sur le navire comme matelot et avait gravi les échelons jusqu'à officier. Il était titulaire d'un brevet avec la mention pétrolier (niveau I), mais il n'avait pas suivi de cours sur la sécurité des pétroliers. La mention pétrolier avait été délivrée sur la base de son temps de service à bord de pétroliers. Tout son service en mer sur pétroliers comptant pour sa mention pétrolier était à bord du « PETROLAB ».

    Le chef mécanicien était titulaire d'un brevet canadien de mécanicien (moteurs) de troisième classe. Il travaillait sur le « PETROLAB » depuis 1992. Il était titulaire de la mention pétrolier (niveau II), mais il n'avait jamais suivi de cours sur la sécurité des pétroliers; sa mention pétrolier avait été délivrée sur la base de son temps de service sur pétroliers. Comme dans le cas du premier lieutenant, tout son service comptant pour sa mention pétrolier a été fait sur le « PETROLAB ».

    Le propriétaire du navire ne possédait pas de certificat de capacité et n'avait reçu aucune formation officielle sur les fonctions d'urgence en mer ni suivi de cours sur la sécurité des pétroliers. Il avait travaillé il y a longtemps sur des navires côtiers de transport de passagers comme membre d'équipage non breveté.

    Tous les membres d'équipage brevetés (officiers) avaient reçu de la formation à la lutte contre les incendies à bord des navires, conformément au Règlement sur la délivrance des brevets et certificats (marine) en vigueur au Canada.

    1.6.2 Formation de l'équipage

    Aucun membre de l'équipage n'avait suivi de cours sur la sécurité des pétroliers et deux membres seulement, le premier lieutenant et le chef mécanicien, étaient titulaires de mentions pétrolier, qu'ils avaient obtenues sur la base de leur temps de service à bord. Il n'existait pas de politique officielle d'orientation et de formation pour les nouveaux employés. Les anciens qui connaissaient bien le navire montraient aux nouveaux comment exécuter les tâches.

    Au moment de l'explosion sur le « PETROLAB », il n'était pas obligatoire, en vertu de la réglementation canadienne, que les officiers ou les membres de l'équipage aient suivi un cours sur la sécurité des pétroliers. La nouvelle réglementation canadienne, basée sur la Convention internationale sur les normes de formation des gens de mer, de délivrance des brevets et de veille (STCW), est entrée en vigueur le 30 juillet 1997, et à cette époque, seuls les capitaines et les premiers lieutenants étaient tenus de suivre un cours sur la sécurité des pétroliers. Les chefs mécaniciens et les seconds mécaniciens bénéficient d'une période de transition de deux ans et ont jusqu'au 30 juillet 1999 pour recevoir cette formation. Les autres officiers et membres d'équipage peuvent encore obtenir des mentions pétrolier (niveau I) sans cours officiel ou examens de TC après un service sur pétroliers de trois mois.

    Rien dans les dossiers n'indique que des exercices d'embarcation ou des exercices d'incendie aient été effectués sur le « PETROLAB » durant la saison de 1997.

    1.6.3 Pratiques de travail de l'équipage

    Au fil des ans, on s'était mis à employer certaines procédures et pratiques de travail non conformes aux normes établies, procédures et pratiques qui, avec le temps, avaient été acceptées à bord du « PETROLAB ». En voici quelques-unes :

    • On entrait dans la CTH avec un appareil respiratoire Scott pour laver la CTH.
    • On entrait dans la CTH sans avoir fait une analyse convenable de l'air de la CTH.
    • On utilisait une lance d'incendie qui n'était pas mise à la masse pour laver des CTH qui contenaient des vapeurs inflammables.
    • On utilisait une pompe qui n'était pas conçue pour être utilisée dans un environnement dangereux pour faire le transfert des résidus.
    • Le cofferdam arrière, qui communiquait avec l'entrepont et la salle des machines, était utilisé comme citerne à résidus.
    • On laissait les résidus tomber en chute libre de l'entrepont jusque dans le cofferdam.
    • On faisait le transfert des résidus sans utiliser les ventilateurs d'extraction de l'entrepont/du cofferdam.
    • Aucune analyse de l'air n'était faite durant le transfert des résidus.
    • Aucun membre de l'équipage n'avait reçu de formation officielle sur le travail dans un espace clos.
    • L'équipage ne connaissait pas bien le Système d'information sur les matières dangereuses utilisées au travail (SIMDUT) ni les fiches d'information sur les matières dangereuses traitant de l'effet cancérigène de l'accumulation dans l'organisme du benzène des produits pétroliers.
    • La porte de secours de la salle des machines n'était pas toujours fermée.
    • On utilisait une pompe de cale submersible non certifiée pour pomper l'eau des fonds de la salle des machines dans le cofferdam.

    1.6.4 Gestion et chaîne de commandement

    Le propriétaire exploitait le « PETROLAB » depuis 1991 et l'utilisait pour approvisionner ses propres parcs de réservoirs de stockage de la côte du Labrador. Il n'avait pas mis en place de système officiel de gestion des risques; il se fiait à l'équipage (surtout le premier lieutenant) pour assurer la sécurité du navire.

    Il y avait des problèmes de hiérarchie sur le « PETROLAB ». Comme le premier lieutenant était là depuis de nombreuses années, le propriétaire communiquait souvent directement avec lui au sujet des activités à bord du navire. Par conséquent, des décisions étaient souvent prises sur le « PETROLAB » sans consulter le capitaine. Cette situation causait des frictions entre le capitaine et le premier lieutenant. Le capitaine avait fait part de son mécontentement au propriétaire à ce sujet et, deux semaines avant l'explosion, le premier lieutenant avait quitté le navire. Au moment de l'explosion, il avait repris ses fonctions à bord depuis trois jours.

    1.7 Conditions météorologiques

    Il avait plu le 19 juillet. Il y avait eu du tonnerre et des éclairs au cours de la matinée, puis des éclaircies au début de l'après-midi. Au moment de l'explosion, un faible vent soufflait du nord-est et le ciel s'était couvert de nouveau. La température de l'air était d'environ 14 oC. Le capitaine

    a indiqué que, juste avant l'explosion, il avait vu des éclairs au sud; toutefois, aucune des personnes interrogées dans le cadre de l'enquête n'a déclaré en avoir vu.

    1.8 Activités et conditions créant un danger d'explosion

    La majorité des membres de l'équipage avaient acquis leur expérience des pétroliers uniquement à bord du « PETROLAB ». Il n'y avait pas de plan de formation officiel à bord, et les procédures et les pratiques de travail employées avaient été apprises sur le tas. Certaines de ces procédures créaient des conditions de travail dangereuses.

    Ces pratiques de travail dangereuses avaient été enseignées aux nouveaux membres de l'équipage qui, n'ayant pas reçu de formation officielle sur la sécurité des pétroliers, ne se rendaient pas compte des dangers inhérents à la manière que le travail était fait. Aucun des membres de l'équipage du « PETROLAB » n'avait suivi de cours sur la sécurité des pétroliers. Seuls le premier lieutenant et le chef mécanicien étaient titulaires de la mention pétrolier, mentions qui avaient été délivrées uniquement sur la base de leur temps de service à bord du « PETROLAB ».

    Les activités et les conditions suivantes créaient un danger d'explosion :

    • Les CTH avaient été lavées par des membres de l'équipage portant des appareils respiratoires et avec une manche à incendie qui n'était pas mise à la masse.
    • Les résidus de cargaison avaient été transférés dans le cofferdam par une pompe portable qui n'était pas conçue pour ce genre d'opération.
    • Les résidus avaient été transvasés dans le cofferdam immédiatement à l'avant de la salle des machines et non dans les citernes à résidus conçues à cet effet.
    • On a fait tomber les résidus en chute libre dans le cofferdam à partir d'un tuyau en caoutchouc non certifié et non mis à la masse, ce qui a produit une teneur en vapeurs supérieure à la limite inférieure d'explosivité et a créé un risque d'électricité statique.
    • Les ventilateurs d'extraction du cofferdam et de l'entrepont n'avaient pas été mis en marche.
    • La porte de secours de la salle des machines n'était pas fermée hermétiquement pendant le transfert des résidus.
    Method of Stop Transfer
    Image
    Method of Stop Transfer

    1.9 Sources d'inflammation

    Plusieurs sources potentielles d'inflammation existaient dans l'environnement explosif créé par les procédures non conformes aux normes de lavage des CTH du navire.

    1.9.1 Accumulation d'électricité statique

    La charge d'électricité statique qui s'accumule pendant la manutention de l'essence à bord des pétroliers constitue une source potentielle d'inflammation. Certaines opérations peuvent donner lieu à des accumulations de charges d'électricité statique qui peuvent se libérer soudainement sous forme de décharges électriques assez puissantes pour enflammer des mélanges d'air et d'essence.

    Les opérations qui peuvent causer une accumulation de charges d'électricité statique et les conséquences de ces accumulations sur les hydrocarbures transportés sont bien connues au sein de l'industrie pétrolière. Lorsqu'on mélange de l'essence et de l'eau, il se produit une charge d'électricité statique entre les deux liquides. La charge qui peut s'accumuler dépend de la vitesse et de la turbulence de l'écoulement du mélange. Les dommages au rotor de la pompe Honda (rapport technique no LP 115/97Note de bas de page 5 du BST) auraient contribué considérablement à la turbulence de l'écoulement des résidus d'essence et d'eau de lavage des citernes qui passaient dans la pompe. Le diamètre du tuyau de déversement de la pompe était plus petit que prévu, ce qui aurait accéléré l'écoulement du mélange dans le tuyau.

    Comme l'essence était pompée dans les canalisations d'acier du navire, des charges d'électricité statique se sont accumulées entre l'essence et les tuyaux. Les charges restant sur les tuyaux passent rapidement à la structure du navire et se dissipent dans la mer et de là, dans le sol.

    Lorsqu'on pompe de l'essence avec un tuyau en caoutchouc, la charge accumulée dans le tuyau ne se dissipe pas dans le sol. Le fil de mise à la masse (habituellement incorporé au tuyau) relie les deux brides d'acier du tuyau entre elles et à la structure du navire, permettant aux charges d'électricité statique de se dissiper dans le sol. Le tuyau de déversement aboutissant à l'entrepont du « PETROLAB » n'était pas mis à la masse, ce qui aurait créé une autre source d'électricité statique.

    Lorsqu'on fait des essais de tuyaux de transfert de cargaison, on fait normalement un essai de continuité pour s'assurer que le fil de mise à la masse est intact et pour vérifier s'il y a continuité électrique entre les deux extrémités du tuyau. Il n'y avait pas de certificat d'essai pour le tuyau de déversement de la pompe portable utilisée au moment de l'explosion, et il n'y en avait pas non plus pour la continuité électrique des autres tuyaux (dont les tuyaux de refoulement de cargaison) sur le « PETROLAB ».

    Les éclaboussures de pétrole donnent aussi lieu à une accumulation de charges statiques. L'impact des gouttelettes de pétrole sur une surface solide, comme une cloison, entraîne une accumulation de charge entre le pétrole et la cloison. Le pétrole chargé par un tuyau flexible plongeant dans une citerne produit une quantité considérable d'éclaboussures lorsque le liquide tombe au fond de la citerne, produisant un brouillard chargé d'électricité statique dans la citerne. Sur le « PETROLAB », le tuyau de déversement de la pompe Honda ne dépassait que d'un mètre dans l'écoutille d'évacuation de l'entrepont par où le mélange d'essence et d'eau se vaporisait en tombant dans le cofferdam, frappant les cloisons, les grilles et les canalisations.

    1.9.2 Pompe centrifuge portable

    La pompe centrifuge portable utilisée pour transférer les résidus d'eau de lavage des citernes était une Honda WB30X. Le manuel d'utilisation de la pompe donne plusieurs mises en garde précises :

    • Dans l'introduction : [TRADUCTION] ATTENTION : Cette pompe Honda est conçue pour fonctionner sans danger et en toute fiabilité si on suit les instructions. Pour éviter les risques de blessures et pour ne pas endommager l'équipement, il est important de bien lire et de comprendre le manuel d'instructions avant de faire fonctionner la pompe;
    • Dans les consignes de sécurité : [TRADUCTION] ATTENTION : par mesure de sécurité, ne jamais pomper de liquides inflammables ou corrosifs, comme de l'essence ou de l'acide. De même, pour éviter la corrosion de la pompe, ne jamais pomper d'eau de mer, de solutions chimiques ou de liquides caustiques comme de l'huile usée, du vin ou du lait;
    • Dans les consignes de sécurité : [TRADUCTION] ATTENTION : l'essence est extrêmement inflammable et est explosive dans certaines conditions. Ne pas fumer ou approcher de flamme ou d'étincelles dans l'endroit de remplissage ou de stockage. Ne pas remplir le réservoir complètement. Après avoir fait le plein, s'assurer que le bouchon du réservoir est fermé et bien vissé.

    Au moment de l'explosion, la pompe était utilisée pour pomper un mélange d'essence et d'eau de mer, substances pour lesquelles le fabricant avait fait une mise en garde. Le bouchon du réservoir n'était pas en place et le réservoir était presque plein, ce qui prouve qu'il avait été rempli depuis peu. L'inspection faite par le Laboratoire technique du BST a révélé que le bouchon n'avait pas été arraché par une explosion.

    L'inspection interne de la pompe a révélé qu'un rotor endommagé entraînait un mauvais équilibrage et des vibrations pendant le fonctionnement. En début de journée, la pompe avait été placée sur des pneus pour l'empêcher de se déplacer sur le pont, mais au moment de l'explosion, elle reposait directement sur le pont. Le Règlement sur les mesures de sécurité au travail stipule que :

    • Dans tout lieu de travail où sont présents des gaz, des vapeurs ou des poussières inflammables il est interdit d'utiliser des appareils ou des matériaux qui produisent des étincelles.Note de bas de page 6

    Le système d'échappement de la pompe n'était pas équipé d'un pare-étincelles, et la pompe fonctionnait dans un endroit où il y avait des vapeurs d'essence.

    1.9.3 Matériel électrique de la salle des machines

    Une bonne partie de l'équipement électrique de la salle des machines n'était pas à sécurité intrinsèque ou n'était pas certifiée pour être utilisée dans un environnement dangereux, et il existait plusieurs sources possibles d'étincelles ou de flammes nues dans la salle des machines au moment de l'explosionNote de bas de page 7 :

    • L'examen de la salle des machines effectué après l'accident a révélé que des lentilles protectrices manquaient sur certaines lampes et que certaines avaient été rafistolées avec du fil non conforme aux normes.
    • Une pompe de cale portable à courant continu était utilisée pour transférer les résidus huileux des fonds de cale de la salle des machines dans le cofferdam au moyen d'un tuyau de déversement en plastique non mis à la masse. Les fils de la pompe avaient été reliés au moteur de démarrage du groupe électrogène bâbord du navire par des moyens de fortune.
    • Il y avait un chauffe-eau domestique au mazout dans la salle des machines.
    • Le groupe électrogène bâbord du navire, proche de la porte de secours, fonctionnait et fournissait l'énergie électrique au navire au moment de l'explosion.

    1.10 Lutte contre l'incendie

    1.10.1 Intervention en cas d'urgence

    Le quai de St. Barbe desservait des pétroliers et des navires à passagers régulièrement, mais aucun des corps de sapeurs-pompiers volontaires des municipalités locales qui sont intervenus n'avait reçu de formation à la lutte contre les incendies à bord des navires.

    Le port de St. Barbe a été cédé à la Province de Terre-Neuve le 1er avril 1997 dans le cadre du programme de cession des ports de TC. Lorsque TC transfère un port à un nouveau propriétaire, il ne vérifie pas si celui-ci a prévu un plan d'intervention en cas d'urgence.

    L'exploitant du terminal, Ultramar, avait un plan d'intervention en cas de déversement de produits pétroliers au quai ou en cas d'incendie dans le parc de réservoirs de stockage, mais le responsable du terminal n'avait pas reçu de formation officielle à la lutte contre l'incendie. C'est pourquoi Ultramar comptait sur le service d'incendie de la municipalité locale, qui n'avait pas les moyens (mousse) pour combattre un incendie de produits pétroliers et qui ne possédait ni l'expérience ni la formation pour lutter contre un incendie à bord d'un navire et pour le circonscrire dès le début.

    1.10.2 Matériel de lutte contre l'incendie à bord du navire

    Le matériel et les installations de lutte contre l'incendie à bord du navire répondaient aux exigences de la réglementation en vigueur. Le navire possédait :

    • une pompe à incendie électrique principale dans la salle des machines;
    • un système d'extinction par mousse dans l'entrepont;
    • un système au CO2 pour les CTH;
    • un système au halon pour la salle des machines.

    Comme le « PETROLAB » mesurait moins de 45,7 m de longueur, il n'était pas tenu, en vertu de la réglementation, d'être équipé d'une pompe à incendie de secours ni d'un groupe électrogène de secours.

    Après l'explosion, le groupe électrogène du navire ne fonctionnait plus. Comme il n'y avait pas de groupe électrogène de secours, la pompe à incendie et le système d'extinction par mousse de l'entrepont ne pouvaient plus fonctionner.

    La poignée de déclenchement du système au halon de la salle des machines était située dans le rouf où la force de l'explosion avait déformé la cloison et le système de déclenchement mécanique, ce qui a causé le dégagement du halon dans la salle des machines. Le halon a aidé à éteindre le feu qui a suivi et a permis de protéger la salle des machines et le cofferdam contre des dommages plus graves.

    Immédiatement après l'explosion, le deuxième lieutenant a éteint plusieurs petits foyers d'incendie sur le pont avec un extincteur, puis est allé rejoindre les autres membres de l'équipage qui s'étaient rassemblés sur le quai. Il n'a pas essayé de pénétrer dans la salle des machines pour faire redémarrer le groupe électrogène et faire fonctionner la pompe à incendie. Le navire n'était pas équipé d'un raccord international de jonction avec la terre, et son collecteur d'incendie ne pouvait pas être alimenté par une source à terre. Les bouteilles de l'appareil respiratoire Scott du navire étaient vides, car elles avaient été utilisées pendant le lavage des citernes. Le système de lutte contre l'incendie n'était pas utilisable. La Gendarmerie royale du Canada a demandé aux membres de l'équipage de quitter les lieux de l'accident et de se rendre à un hôtel des environs.

    Il n'y avait pas de câbles en cas d'incendie, ni à l'avant ni à l'arrière du navire, qui auraient pu permettre à un remorqueur de s'amarrer rapidement au navire pour l'éloigner du quai.

    1.10.3 Matériel de lutte contre l'incendie à terre

    Six corps de pompiers volontaires des municipalités locales sont intervenus; ils sont arrivés entre 20 h 15 et 21 h 30 le 19 juillet. À ce moment-là, le feu était encore confiné à l'entrepont, là où étaient stockés l'huile de graissage et d'autres articles de consommation qui avaient pris feu. Le capitaine a informé le chef des pompiers de la municipalité locale de la nature de la cargaison précédente et de l'état des citernes du navire, et lui a indiqué où se trouvait le foyer de l'incendie.

    Les services d'incendie ne savaient pas exactement ce qu'il fallait faire dans le cas d'un incendie à bord d'un navire, surtout un incendie à bord d'un pétrolier, et ils ne voulaient pas arroser le feu avec de l'eau au tout début, car ils croyaient qu'on ne devait pas utiliser d'eau sur un incendie de produits pétroliers à bord d'un navire-citerne. Le service d'incendie de Port au Choix est arrivé avec de la mousse à foisonnement à 20 h 50 (environ une heure après l'explosion), mais on n'a pas répandu de mousse sur le feu qui, à ce moment-là, était limité à l'intérieur de l'entrepont. Les efforts pour lutter contre l'incendie n'ont été coordonnés qu'après l'arrivée du commissaire régional des incendies aux petites heures du matin le 20 juillet. Une fois que les amarres ont été complètement détruites par le feu, que le navire eut dérivé dans le port et se fut échoué, le service d'incendie a répandu de la mousse et a réussi à maîtriser l'incendie, depuis la terre.

    Pendant les deux ou trois heures qui ont suivi l'explosion, aucune mesure n'a été prise par l'équipage ou les pompiers à terre pour lutter contre l'incendie qui, à ce moment-là, se limitait à l'entrepont.

    1.10.4 Matériel de lutte contre l'incendie de la Garde côtière canadienne

    Le NGCC « HOOD » est arrivé les lieux au début de la matinée du 20 juillet et s'est mis à lutter contre l'incendie qui faisait rage sur le quai. Comme il n'y avait pas de câbles en cas d'incendie ni à l'avant ni à l'arrière du « PETROLAB », il était dangereux pour le « HOOD » de tenter de remorquer le pétrolier en feu pour l'éloigner du quai. Une fois que les amarres ont été complètement détruites par le feu et que le « PETROLAB » eut commencé à dériver dans le port, on a réussi, à partir d'une petite embarcation du « HOOD », à accrocher un câble au pétrolier et à l'amarrer.

    À 9 h 30 le 20 juillet, le NGCC « SIR WILFRED GRENFELL » est arrivé sur les lieux. Il a essayé tour à tour d'éteindre l'incendie qui ravageait le quai en utilisant des canons à eau, puis de démanteler le quai pour pouvoir accéder plus facilement au foyer de l'incendie. Les efforts de la GCC ont été coordonnés avec les unités au sol par le commissaire des incendies du district.

    1.11 État de l'équipement de manutention de cargaison du navire

    L'état du système de refoulement des cargaisons liquides et du circuit de cargaison du pétrolier est important pour l'exploitation en toute sécurité du navire. Le système de refoulement des cargaisons liquides, en plus d'être utilisé pour le déchargement de la cargaison, peut également être utilisé pour contrôler les dommages et la stabilité du navire à la suite d'un envahissement par l'eau et pour transférer la cargaison pour atténuer la pollution résultant d'un accident. En ce sens, les systèmes de refoulement des cargaisons liquides des pétroliers sont analogues aux systèmes d'assèchement des autres navires.

    Les systèmes de refoulement des cargaisons liquides des pétroliers varient considérablement, mais ils ont tous une chose en commun : ils sont équipés d'un système d'assèchement qui permet d'éliminer le contenu des citernes. À l'origine, le « PETROLAB » était équipé d'un système d'assèchement permettant de maintenir l'aspiration des pompes de cargaison, mais ce système était inutilisable depuis au moins 10 ans, au moment de l'explosion. À l'origine, le « PETROLAB » pouvait assécher des citernes avec les pompes de cargaison principales, et les résidus d'eau de lavage étaient pompés directement par un circuit de canalisations dans les citernes à résidus conçues à cet effet situées entre les membrures 19 et 21 au fond du cofferdam arrière. Il n'était donc pas nécessaire ni souhaitable d'utiliser une pompe portable. Plusieurs années avant l'accident, le propriétaire et le premier lieutenant avaient étudié la possibilité de remettre le système d'assèchement en service, mais une inspection avait révélé qu'il était en trop mauvais état. Il avait alors été condamné.

    On ne sait pas quand le cofferdam a commencé à être utilisé comme citerne à résidus, mais le premier lieutenant a indiqué que quand il a commencé son service à bord du navire, il y a 10 ans, le cofferdam était déjà utilisé à cette fin. L'inspection du circuit de cargaison effectuée après l'accident a montré qu'une vanne de vidange avait été ajoutée sur le collecteur de cargaison ainsi qu'un tuyau aboutissant au cofferdam. Cela permettait de contourner les citernes à résidus conçues à cet effet et d'utiliser le cofferdam pour stocker les résidus. Le cofferdam, dont la partie supérieure était ouverte, communiquait avec l'entrepont et était relié à la salle des machines par une porte de secours du côté bâbord. Les vapeurs des résidus stockés dans le cofferdam pouvaient ainsi pénétrer facilement dans l'entrepont; de plus, si la porte de secours était ouverte, les vapeurs pouvaient pénétrer dans la salle des machines. Le sondage du cofferdam effectué après l'accident a révélé qu'il contenait 975 mm de liquide, dont 640 mm d'eau et 335 mm d'un mélange d'hydrocarbures (rapport technique no LP 115/97 du BST).

    1.12 Épurateur d'eaux mazouteuses

    Les épurateurs d'eaux mazouteuses permettent d'extraire le pétrole des eaux de cale avant de les rejeter à la mer. Ils permettent de pomper les eaux de cale sans se soucier de polluer l'eau environnante. En vertu du Règlement sur la prévention de la pollution par les hydrocarbures, tous les pétroliers canadiens de 150 tonneaux de jauge brute et plus doivent posséder un Certificat canadien de prévention de la pollution par les hydrocarbures, qui exige, entre autres, que le navire soit équipé d'un épurateur d'eaux mazouteuses pour traiter les résidus des fonds de cale de la salle des machines. En 1993, le propriétaire du « PETROLAB » avait fait parvenir une demande au BIN pour être exempté de l'obligation d'équiper son navire d'un épurateur d'eaux mazouteuses. Dans sa demande, il proposait de stocker les résidus des fonds de cale de la salle des machines dans les citernes conçues à cet effet situées entre les membrures 19 et 21. L'exemption a été accordée par le BIN le 30 août 1993. L'exemption a été accordée, entre autres, sous réserve que les résidus des fonds de cale de la salle des machines devaient être stockés dans les citernes à résidus et pompés à terre au moment voulu. Il n'y a aucune mention écrite qu'après cette date les citernes à résidus conçues à cet effet aient été utilisées pour le stockage des résidus des fonds de cale de la salle des machines. Les sondages de ces citernes effectués après l'accident ont révélé qu'elles étaient vides.

    L'enquête a révélé que l'eau de cale de la salle des machines était pompée régulièrement par-dessus bord lorsque le navire était en mer ou dans le cofferdam lors des longs séjours du navire dans un port. L'enquête a également révélé que, avant et après que l'exemption ait été accordée, le cofferdam servait régulièrement de citerne à résidus. De tels transferts étaient habituellement effectués par le premier lieutenant ou le chef mécanicien.

    1.13 Porte de secours de la salle des machines

    Sur les pétroliers, il faut prendre des mesures particulières pour empêcher les produits pétroliers et les vapeurs de produits de pénétrer dans la salle des machines. Sur de nombreux pétroliers, les salles des pompes sont situées juste à l'avant de la salle des machines. Des mesures particulières sont prises pour assurer l'étanchéité des cloisons là où des tuyaux, des câbles électriques ou des éléments mécaniques traversent la salle des machines. Sur le « PETROLAB », une porte de secours dans la cloison avant de la salle des machines communiquait avec le cofferdam, qui était utilisé comme « citerne à résidus » au moment de l'explosion. L'examen des traces de suie sur les tourniquets de fermeture de la porte a révélé que la porte de secours n'était pas fermée hermétiquement au moment de l'explosion.

    Cette porte de secours avait été aménagée, au moment de l'immatriculation du navire au Canada en 1983, pour répondre aux exigences de la réglementation qui stipule que le navire doit posséder un deuxième moyen d'évacuation de la salle des machines. La Sécurité maritime de TC avait approuvé la conception de la porte, son emplacement ainsi que son installation.

    1.14 Aménagement de l'entrepont

    L'entrepont du « PETROLAB » n'était pas aménagé comme sur les autres pétroliers. Il abritait le système de refoulement des cargaisons liquides et le circuit de cargaison du navire, et il jouait le rôle de salle des pompes d'un pétrolier classique. La Convention internationale pour la sauvegarde de la vie humaine en mer (SOLAS) exige que les salles des pompes soient équipées d'une ventilation mécanique.Note de bas de page 8 Étant donné que le navire jaugeait moins de 500 tonneaux de jauge brute, il n'était pas tenu de se conformer aux exigences de la SOLAS. L'entrepont du « PETROLAB » était équipé de ventilateurs d'extraction mais, comme les vapeurs de produits pétroliers étaient perceptibles sur le pont de la passerelle lorsqu'ils fonctionnaient, on ne les utilisait pas.

    La quatrième édition du International Safety Guide for Oil Tankers and Terminals (ISGOTT) est le document de référence dont se servent les exploitants de navires-citernes et de terminaux. Ce manuel stipule que la salle des pompes doit être ventilée en permanence durant les opérations de cargaison. Il stipule également que la ventilation doit être continue jusqu'à ce que l'accès ne soit plus nécessaire ou que les opérations de cargaison soient finies.Note de bas de page 9

    Il n'y avait pas d'exemplaire du manuel ISGOTT à bord du « PETROLAB », et les officiers et les membres de l'équipage ne connaissaient pas bien ce manuel.

    1.15 Inspection du navire par Transports Canada

    Lorsque le « PETROLAB » est passé sous pavillon canadien en 1983, les plans du système de refoulement des cargaisons liquides ont été soumis à TC qui les a approuvés.

    En vertu de la réglementation canadienne actuelle, l'inspection du système de refoulement des cargaisons liquides et du circuit de cargaison des pétroliers n'est pas obligatoire.

    En mai 1997, TC avait fait l'inspection annuelle du navire à St. John's (Terre-Neuve). TC avait alors constaté que plusieurs lampes de la salle des machines n'avaient pas de lentille protectrice et qu'elles avaient été rafistolées avec des fils inférieurs aux normes. Cette situation n'a pas été traitée comme une anomalie.

    Le système de refoulement des cargaisons liquides n'a pas été inspecté, mais ce n'était pas obligatoire. Le circuit d'assèchement des fonds de cale de la salle des machines ne faisait l'objet d'une vérification que tous les cinq ans. Le cofferdam arrière ne figurait pas sur la liste des points à inspecter et n'avait pas été examiné par TC dans le cadre du régime d'inspection continue des coques depuis que le navire avait été immatriculé au Canada en 1983. L'inspecteur de TC n'a pas demandé à l'équipage de faire un exercice d'embarcation et d'incendie comme cela est exigé dans le cadre d'une inspection annuelle, et il n'a pas examiné les brevets de l'équipage.

    L'inspecteur n'avait pas d'expérience ni de formation sur pétroliers; il n'était pas titulaire de la mention pétrolier et n'avait pas suivi de cours sur la sécurité des pétroliers.

    Ultramar a également inspecté le navire en mai 1997 pour déterminer s'il convenait pour les affrètements. Le système de refoulement des cargaisons liquides a été inspecté à cette occasion en se servant du formulaire d'inspection du Oil Companies International Marine Forum. Toutefois, le type de système de refoulement des cargaisons liquides et d'assèchement des citernes par aspiration, ainsi que les défauts du système n'ont pas été observés. Les brevets des membres de l'équipage n'ont pas été examinés. Le navire avait été accepté par Ultramar pour l'affrètement.

    1.16 Utilisation du quai de l'État par les traversiers à passagers et les pétroliers

    À au moins 20 reprises dans l'année, le « PETROLAB » s'est trouvé à quai au moment où le traversier « NORTHERN PRINCESS » de la Quebec North Shore faisait embarquer ou débarquer des passagers. L'examen de l'horaire imprimé du traversier révèle que le traversier partait de St. Barbe à 8 h, à 12 h 30, et à 17 h, et qu'il aurait été à quai de 30 à 45 minutes avant chaque départ le jour de l'explosion. Il y avait une barrière et un extincteur au bout du quai de l'État, mais aucune autre précaution particulière n'était prise lors de l'accostage du navire à passagers.

    1.17 Sécurité incendie dans les ports et les havres du Canada

    En décembre 1994, pendant le déchargement d'une cargaison de phosphorite dans le port de Belledune (N.-B.), un incendie a éclaté dans le convoyeur de déchargement du vraquier « AMBASSADOR » (rapport no M94M0057 du BST). L'équipage du navire et plusieurs services d'incendie basés à terre ont réussi à maîtriser puis à éteindre l'incendie après 28 heures d'efforts. Le port de Belledune est un port divisionnaire administré par la Société canadienne des ports. Dans les ports et les havres du Canada, la responsabilité de l'évaluation des risques et de l'élaboration des plans d'urgence incombe habituellement au capitaine de port ou au responsable du port alors que la lutte contre l'incendie doit être assurée par le service d'incendie de la municipalité locale. Au Canada, aucun port n'est doté d'un corps de sapeurs-pompiers possédant la formation nécessaire pour lutter contre les incendies à bord des navires. Compte tenu du fait que les services d'incendie de plusieurs municipalités ne possèdent pas le personnel qualifié pour combattre les incendies à bord des navires, le Bureau a fait les trois recommandations suivantes :

    • [que] le ministère des Transports entreprenne une vérification spéciale des installations de lutte contre l'incendie dans les ports et les havres du Canada sous sa juridiction afin de s'assurer qu'elles permettent de maîtriser les incendies à bord des navires peu importe la période de l'année.

    (M96-06, publiée en octobre 1996)

    • [que] le ministère des Transports, en collaboration avec les administrations locales des ports et havres, prenne des mesures afin de s'assurer que les services d'incendie externes qui peuvent être appelés à prêter assistance pour combattre un incendie à bord d'un navire reçoivent une formation appropriée.

    (M96-07, publiée en octobre 1996)

    • [et que] le ministère des Transports prenne les mesures qui s'imposent pour s'assurer que les navires qui font escale dans les ports et les havres du Canada ont des moyens de lutte contre l'incendie à bord en état de fonctionner et qui peuvent être promptement utilisés même par temps froid.

    (M96-08, publiée en octobre 1996)

    TC a répondu que c'était l'Association canadienne des chefs de pompiers (ACCP) qui était responsable des normes sur les corps de sapeurs-pompiers basés à terre et de leur formation.Note de bas de page 10 La majorité des havres publics peuvent uniquement faire appel à des corps de sapeurs-pompiers volontaires des municipalités locales et équipés pour la lutte contre les petits incendies, et ces sapeurs-pompiers volontaires ne reçoivent habituellement pas, dans le cadre de leur entraînement, la formation relative au travail et à la lutte contre l'incendie dans un espace clos. TC a ajouté qu'il n'y avait, à l'heure actuelle, aucune exigence réglementaire obligeant les havres et les ports publics à se doter de ressources pour lutter contre les incendies à bord des navires. C'est pourquoi, en mai 1997, l'ACCP a envoyé un questionnaire à diverses municipalités pour déterminer leur moyens de lutte contre l'incendie et le type d'assistance qui pourrait être demandée par les exploitants de terminaux maritimes, si un incendie éclatait à bord d'un navire dans le port.

    Depuis l'accident à bord du « AMBASSADOR », il s'est produit trois autres accidents au cours desquels des services d'incendie municipaux ont dû intervenir parce qu'il y avait un incendie à bord d'un navire (rapports nos M97W0035, M97W0044 et M97W0194 du BST).

    1.18 Sécurité et planification d'urgence dans les ports du Canada

    En vertu de la Loi sur les ports et installations portuaires publics, c'est la Direction générale des havres et des ports de TC qui est responsable de l'administration et de la sécurité de quelque 549 petits ports et havres au Canada. En vertu de la Loi sur la Société canadienne des ports, c'est Ports Canada qui surveille 14 des ports commerciaux les plus importants, comme ceux de Vancouver et Montréal. Il existe 9 commissions portuaires avec leur propre loi habilitante. Le ministère des Pêches et des Océans, quant à lui, est responsable de 2 000 petits ports récréatifs et de pêche.

    En décembre 1995, le ministre des Transports annonçait la nouvelle politique maritime nationale. Au début de 1996, il présentait à la Chambre des communes le projet de loi maritime du Canada. L'un des objectifs de la politique maritime nationale est la commercialisation des 572 ports et havres publics. Alors que les ports les plus importants et les plus profitables passeront sous la responsabilité d'administrations portuaires, une seconde catégorie de ports régionaux et locaux plus petits sera dévolue aux provinces et aux municipalités.

    La Loi sur la protection civile, qui est entrée en vigueur le 1er octobre 1988, confère à tous les ministères, agences et organismes fédéraux un mandat de portée gouvernementale pour l'élaboration et la coordination de programmes visant à faire face aux événements imprévus et potentiellement désastreux, notamment aux situations d'urgence comme les incendies, les explosions, les déversements de produits chimiques, etc., dans les ports et havres du Canada. La protection civile comporte trois éléments : l'évaluation des risques associés à l'exploitation, l'élaboration d'un plan d'urgence pour faire face aux risques connus, et la mise sur pied d'un programme de formation et d'exercices destiné à assurer l'exécution efficace du plan. Aucune évaluation des risques n'a été faite dans les ports régionaux et locaux du Canada en vue de l'élaboration de plans d'urgence.

    Aujourd'hui, seules les plus grosses administrations portuaires canadiennes ont les ressources physiques et humaines nécessaires pour intervenir lors d'une situation d'urgence. Les petits ports locaux administrés par TC et par le ministère des Pêches et des Océans, ou dévolus aux provinces ou aux municipalités, n'ont pas les ressources suffisantes pour assurer la protection civile. Pour ce qui est des ports dévolus, il semble qu'il incombe aux nouveaux propriétaires ou exploitants de voir à ce que tous les moyens soient pris pour que le port soit exploité en toute sécurité et demeure une entité viable. TC n'exerce sur les installations et les sites dévolus aucune surveillance physique ou réglementaire qui pourrait permettre de s'assurer que les nouvelles entités se conforment aux dispositions des lois et des règlements de sécurité qui relèvent de son autorité. À cet égard, il n'y a pas de dispositions pour l'application des mesures de sécurité ni pour l'exécution de vérifications de sécurité des installations dévolues.

    1.19 Lignes directrices pour l'évaluation des risques et l'élaboration des plans d'urgence dans les ports

    Le Programme des Nations-Unies pour l'environnement (PNUE) a élaboré un mécanisme d'intervention, à l'échelle internationale, dans le cas des accidents technologiques, appelé Awareness and Preparedness for Emergencies at Local Level (APELL) (sensibilisation et préparation aux situations d'urgence à l'échelle régionale). Il s'agit d'une approche à deux volets : le premier a pour objet d'augmenter les connaissances de la communauté à l'égard des risques et des dangers potentiels présents dans la région; le deuxième a pour objet d'élaborer un plan d'intervention coordonné en cas de catastrophe.

    En 1994-1995, l'Organisation maritime internationale (OMI) et le PNUE ont publié un document, qu'ils ont élaboré conjointement, à l'usage des usagers et des exploitants d'installations portuaires sur la manière de mettre le mécanisme APELL en application dans les ports. Le document porte sur les situations dangereuses propres aux installations et aux activités portuaires qui menacent la sécurité des personnes, des biens et de l'environnement.

    En février 1995, un groupe d'experts internationaux se sont réunis à Londres pour éaborer et examiner le document publié par l'OMI et le PNUE intitulé Guidance on Application of APELL in Ports (Guide sur l'application du mécanisme APELL dans les ports). Des documents comme celui-là, et d'autres publications préparées par le Collège de la protection civile fournissent des lignes directrices utiles aux administrations portuaires concernant l'évaluation des risques et l'élaboration des plans d'urgence dans les ports et les havres.

    2.0 Analyse

    2.1 Formation de l'équipage

    Les pétroliers sont des navires pour lesquels il faut posséder des habiletés et des connaissances techniques particulières si l'on veut assurer leur exploitation en toute sécurité. La compétence des membres d'équipage est un facteur important pour la sécurité et l'efficacité des opérations. Traditionnellement, les équipages des pétroliers acquéraient les habiletés et les compétences nécessaires pendant leurs années en mer, de préférence à bord de divers navires, mais la qualité de cette expérience peut varier considérablement d'un pétrolier à l'autre et d'une compagnie à l'autre.

    La majorité des membres de l'équipage du « PETROLAB » avaient acquis leur expérience des pétroliers uniquement à bord du « PETROLAB ». Résultat, les procédures et les pratiques de lavage des citernes et de transfert des résidus utilisées à bord étaient dangereuses et ont été transmises aux nouveaux. Les officiers et les membres de l'équipage n'avaient pas reçu de formation officielle sur les pétroliers et aucun d'entre eux n'a reconnu les dangers liés aux procédures et pratiques de travail acceptées sur le navire.

    Les cours sur la sécurité des pétroliers mettent l'accent sur la sensibilisation aux pratiques dangereuses. La valeur de cette formation est reconnue par l'OMI et est contenue dans la convention STCW qui précise que :

    1. Les officiers et les membres d'équipage qui ont des fonctions et des responsabilités précises touchant la cargaison ou l'équipement de cargaison à bord de pétroliers devront avoir suivi un cours approuvé de lutte contre les incendies à terre (...) et avoir accompli :

    .1) au moins trois mois de service en mer approuvé sur des pétroliers pour acquérir une connaissance suffisante des pratiques sécuritaires touchant les opérations; ou

    .2) un cours approuvé de familiarisation aux pétroliers...

    2. Les capitaines, chefs mécaniciens, premiers lieutenants, seconds mécaniciens et tous ceux qui sont directement responsables du chargement, du déchargement et du soin pendant le transit ou la manutention de la cargaison doivent, en plus de satisfaire aux exigences de l'alinéa 1.1 ou 1.2 , avoir :

    .1) une expérience appropriée à leurs tâches sur le type de navire-citerne à bord duquel ils servent; et

    .2) avoir complété un programme approuvé de formation spécialisée couvrant au moins les sujets énumérés à l'article A-V/1 du Code STCW qui sont appropriés à leurs fonctions sur le pétrolier, le navire-citerne de produits chimiques ou le méthanier à bord duquel ils servent.Note de bas de page 11

    Si le propriétaire, les officiers ou l'équipage avaient suivi un cours sur la sécurité des pétroliers, ils auraient pu reconnaître les dangers liés à leur façon de laver les citernes.

    Seuls les officiers du « PETROLAB » avaient suivi des cours sur les fonctions d'urgence en mer et avaient reçu de la formation à la lutte contre les incendies à bord des navires. Aucun exercice d'alerte régulier n'avait été effectué à bord du « PETROLAB » les membres de l'équipage non brevetés n'avaient donc qu'une possibilité limitée d'acquérir la confiance et les habiletés nécessaires pour lutter efficacement contre un incendie à bord.

    Lors de l'inspection annuelle du navire, la Sécurité maritime de TC n'a pas évalué ni déterminé le degré de préparation de l'équipage aux situations d'urgence à bord, car aucun exercice d'embarcation et d'incendie n'a été effectué.

    2.2 Rôle des responsables

    La gestion de la sécurité repose avant tout sur l'engagement des responsables. Le capitaine assure le commandement général, mais la haute direction a le dernier mot en ce qui concerne les politiques, les procédures et les instructions relatives à la sécurité des navires. Le propriétaire du « PETROLAB » n'avait pas établi de politiques ni de procédures officielles, notamment en ce qui concerne la manutention de la cargaison et le lavage des citernes. L'équipage n'avait donc pas de lignes directrices pour pouvoir s'acquitter de leurs tâches en toute sécurité.

    Le propriétaire était souvent à bord. Il participait d'ailleurs au lavage des citernes au moment de l'explosion. Toutefois, il manquait d'expérience (sur d'autres pétroliers) et n'avait pas reçu de formation officielle sur la sécurité des pétroliers. Il n'était donc pas en mesure de gérer efficacement les opérations à bord du navire pour qu'elles soient effectuées en toute sécurité, et il ne l'a pas fait.

    2.3 Chaîne de commandement

    Le propriétaire ne se mêlait pas des décisions de navigation prises par le capitaine, mais sa présence à bord et sa confiance dans le premier lieutenant faussaient la chaîne de commandement du navire. Il y avait un manque de communication entre le capitaine et le premier lieutenant en raison de leur relation conflictuelle. Dans un contexte économique où les postes en mer sont rares, le capitaine hésitait à modifier les responsabilités professionnelles et les procédures dangereuses que le propriétaire et l'équipage acceptaient.

    Ce conflit n'avait pas été réglé au moment de l'explosion. Le premier lieutenant travaillait avec le propriétaire qui n'était pas qualifié pour exécuter les tâches relatives à la cargaison d'un pétrolier ni pour diriger les opérations relatives à la cargaison.

    2.4 Environnement explosif et sources d'inflammation

    Lorsqu'un nuage inflammable de vapeur de produits pétroliers prend feu, les flammes se propagent rapidement au mélange, et le gaz se dilate rapidement, ce qui fait augmenter la pression dans les environs immédiats. Les gaz qui se dilatent peuvent se dissiper facilement à l'air libre; par contre, dans l'entrepont du « PETROLAB », qui était fermé, ils sont restés confinés. La pression a continué de s'accumuler jusqu'à ce qu'elle se libère par les ouvertures et par une fissure dans la structure du navire. L'explosion à bord du « PETROLAB » a été suffisamment forte pour déformer considérablement la structure du rouf, projeter le propriétaire par-dessus bord, projeter le premier lieutenant et le matelot sur le pont, et bloquer la porte de secours de la salle des machines en position ouverte contre la cloison. Le fait que les flammes qui sortaient de l'écoutille de l'entrepont étaient d'un rouge vif révèle que la concentration de la vapeur dans l'entrepont était forte (entre 5 et 8 p. 100 de vapeurs dans l'air).

    Trois éléments (vapeur, oxygène et une source d'inflammation) doivent être présents pour produire une explosion de produits pétroliers. Pour que de la vapeur de produits pétroliers s'enflamme, la concentration dans l'air doit être comprise entre la limite inférieure d'explosivité (LIE) et la limite supérieure d'explosivité (LSE). La LIE et la LSE pour l'essence correspondent à des concentrations de vapeur dans l'air de 1 et 8 p. 100. Au-dessous de la LIE, le mélange est trop pauvre et au-dessus de la LSE, il est trop riche pour s'enflammer (voir l'annexe C).

    Lorsqu'on a pompé des mélanges d'essence et d'eau des CTH et qu'on les a laissés tomber en chute libre dans le cofferdam (depuis l'entrepont) pendant le lavage des citernes, on a créé des concentrations supérieures à la LIE. Comme les ventilateurs d'extraction du cofferdam et de l'entrepont n'étaient pas en marche, les vapeurs d'essence ont envahi le cofferdam et l'entrepont, et ces vapeurs d'essence ont dû pénétrer dans la salle des machines par la porte de secours qui n'était pas fermée hermétiquement (du côté bâbord de la cloison avant de la salle des machines qui communiquait avec le cofferdam).

    La source exacte d'inflammation n'a pas été déterminée, mais plusieurs possibilités existaient au moment de l'explosion :

    • Accumulation et décharge d'électricité statique dans le cofferdam ou l'entrepont - Les conditions dans le cofferdam et l'entrepont étaient propices à l'accumulation d'électricité statique et à des décharges électriques. La pulvérisation d'essence dans ces endroits a permis la concentration de vapeurs et l'accumulation d'une charge d'électricité statique suffisante pour produire une explosion.
    • Une étincelle de la pompe Honda utilisée pour transférer les résidus des CTH dans le cofferdam - Selon les informations recueillies, il n'y avait pas de flamme autour de la pompe au moment de l'explosion, mais le système d'échappement n'était pas équipé d'un pare-étincelles et la pompe était dans un endroit où il y avait des émanations d'essence en provenance de la porte de la salle des pompes, de l'écoutille d'évacuation de l'entrepont et des CTH.
    • Présence d'équipement sans sécurité intrinsèque dans la salle des machines - Une bonne partie du matériel électrique de la salle des machines n'était pas à sécurité intrinsèque et il y avait plusieurs sources possibles d'étincelles ou de flammes nues dans la salle des machines, par exemple le chauffe-eau et le groupe électrogène bâbord du navire fonctionnaient.

    On ne sait pas pourquoi le chef mécanicien est entré dans la salle des machines au moment où il l'a fait. Il voulait peut-être pomper l'eau des fonds de cale dans le cofferdam (en attendant de l'éliminer à terre plus tard) au moyen de la petite pompe de cale submersible non réglementaire. Pour ce faire, il se peut qu'il ait ouvert la porte d'accès au cofferdam. Comme l'explosion s'est produite peu de temps après son entrée dans la salle des machines, le transfert avait peut-être été effectué avant (l'analyse de laboratoire des échantillons de résidus du cofferdam et des fonds de cale de la salle des machines montre des propriétés similaires). Après l'explosion, on a trouvé que le tuyau de déversement de cette pompe aboutissait à la porte de secours, mais on ne sait pas quand il avait été mis en place.

    Le chauffe-eau domestique au mazout faisait monter la température dans la salle des machines et les emménagements; c'est pourquoi il était souvent fermé et on ne l'utilisait que si on avait besoin d'eau chaude. On sait que le second mécanicien avait décidé de prendre une douche, et l'interrupteur principal du chauffe-eau a été trouvé en position fermée (sous tension), mais on ne sait pas avec certitude si le chauffe-eau était en marche au moment de l'explosion ni si le chef mécanicien l'avait mis en marche ou allait le faire.

    En somme, les conditions nécessaires pour produire une décharge d'électricité statique dans les vapeurs d'essence accumulées dans le cofferdam et l'entrepont étaient présentes, mais étant donné qu'on ne sait pas ce qu'a fait le chef mécanicien dans la salle des machines, on ne peut pas écarter l'hypothèse qu'il y ait eu une source d'inflammation à l'intérieur de la salle des machines.

    2.5 Lutte contre l'incendie

    Tout de suite après l'explosion, le deuxième lieutenant a éteint plusieurs petits foyers d'incendie sur le pont à l'aide d'un extincteur portable, mais, pendant les deux ou trois heures qui ont suivi l'explosion, l'équipage du navire et les pompiers basés à terre n'ont rien fait pour combattre l'incendie qui, à ce moment-là, était limité à l'entrepont. Le « PETROLAB » était équipé pour la lutte contre l'incendie conformément aux exigences de la Sécurité maritime de TC; toutefois, une pompe à incendie de secours et un groupe électrogène de secours ne sont pas exigés pour un navire de moins de 45,7 mètres, même s'il transporte des produits pétroliers dangereux. Les bouteilles de l'appareil respiratoire Scott du navire étaient vides car elles avaient été utilisées pendant le lavage des citernes. C'est pourquoi, sans électricité de bord, sans pompe à incendie de secours, et avec une formation limitée et un encadrement insuffisant, l'équipage n'avait aucun moyen de lutte contre l'incendie.

    Les premiers pompiers volontaires basés à terre sont arrivés peu après l'explosion. Le capitaine du navire a demandé leur aide, mais les pompiers hésitaient à intervenir parce qu'ils n'avaient pas de mousse et pensaient à tort qu'on ne devait pas utiliser d'eau sur un incendie de produits pétroliers. Le quai de St. Barbe desservait à la fois des pétroliers et des navires à passagers régulièrement, mais aucun des services d'incendie des municipalités locales qui sont intervenus ne possédait de formation à la lutte contre les incendies à bord des navires. Les pompiers de Port au Choix sont arrivés environ une heure après l'explosion, avec de la mousse à foisonnement moyen, mais ils ne l'ont pas répandue sur le feu qui, à ce moment-là, était encore limité à l'entrepont.

    L'exploitant du terminal, Ultramar, avait un plan d'urgence en cas d'incendie dans le parc de réservoirs de stockage, mais le responsable du terminal n'avait pas reçu de formation officielle à la lutte contre l'incendie. Le plan d'urgence établi invoquait le service d'incendie local, qui lui n'avait pas le matériel (mousse) nécessaire pour lutter contre un incendie de produits pétroliers; le plan d'urgence ne mentionnait pas les incendies à bord des navires. En rinçant à l'eau de mer les canalisations aboutissant au quai, les employés d'Ultramar ont empêché l'incendie de se propager au parc de réservoirs de stockage et de créer des problèmes de pollution.

    On a laissé l'incendie brûler sans intervenir, et le feu s'est propagé aux pieux imprégnés de créosote qui soutenaient le quai. Les pieux sont devenus la proie des flammes, et la plate-forme en béton a alors gêné les efforts des pompiers et a empêché les navires de la GCC d'atteindre le foyer de l'incendie sous le quai. Le « SIR WILFRED GRENFELL » a essayé sans grand succès de démanteler le quai en utilisant ses treuils.

    Si l'équipage du navire était intervenu dès le début et si les services d'incendie des municipalités locales avaient utilisé de l'eau (et de la mousse dès qu'il y en a eu sur place), l'incendie aurait probablement été maîtrisé avant de se propager au quai.

    2.6 État de l'équipement de manutention de cargaison du navire

    L'état du système de refoulement des cargaisons liquides et du circuit de cargaison du pétrolier est important pour l'exploitation en toute sécurité du navire. Le système de refoulement des cargaisons liquides, en plus d'être utilisé pour le déchargement de la cargaison, peut également être utilisé pour contrôler les dommages et la stabilité du navire à la suite d'un envahissement par l'eau et pour transférer la cargaison pour atténuer la pollution résultant d'un accident. En ce sens, les systèmes de refoulement des cargaisons liquides des pétroliers sont analogues aux systèmes d'assèchement des autres navires.

    Le système d'assèchement des citernes par aspiration était inutilisable depuis au moins 10 ans. On avait jugé qu'il était en trop mauvais état pour être réparé et remis en service, et on l'avait condamné. L'autre système d'assèchement des citernes, utilisé par le premier lieutenant et toléré par le propriétaire du navire au moment de l'accident, était dangereux en soi, notamment à cause du refoulement des résidus d'eau de lavage des citernes dans le cofferdam au moyen d'une pompe pour laquelle le manuel du fabricant comportait une mise en garde particulière contre l'utilisation qu'on en faisait.

    2.7 Exemption relative à l'épurateur d'eaux mazouteuses

    Un épurateur d'eaux mazouteuses permet de rejeter directement par-dessus bord les eaux de cale traitées. Comme le BIN lui avait accordé une exemption, le « PETROLAB » n'était pas tenu d'avoir un épurateur d'eaux mazouteuses.

    À la suite de cette exemption, un autre système a été mis en place pour pomper les eaux de cale de la salle des machines. Ce système était dangereux. On utilisait une petite pompe submersible de 12 volts, sans sécurité intrinsèque, du type bateau de plaisance, pour transférer les eaux de cale de la sale des machines dans le cofferdam. Le tuyau de déversement de la pompe passait par la porte de secours ouverte de la salle des machines.

    2.8 Porte de secours de la salle des machines

    Sur le « PETROLAB », le cofferdam arrière, qui était recouvert seulement de grilles, communiquait avec l'entrepont (salle des pompes) qui se trouvait au-dessus. Il est inhabituel d'avoir installé une porte qui, entre autres, aurait pu être utilisée comme moyen d'évacuation de la salle des machines en cas d'incendie, compte tenu du fait que la porte donnait accès à un compartiment qui contenait souvent des vapeurs de produits pétroliers. Pour empêcher le passage des vapeurs entre les deux compartiments, il aurait fallu que la porte de secours de la salle des machines qui communiquait avec le cofferdam soit toujours fermée hermétiquement.

    L'inspection après l'accident a révélé que la porte n'était pas fermée hermétiquement au moment de l'explosion. Des vapeurs d'essence du cofferdam ont donc pu pénétrer dans la salle des machines par cette porte. De plus, si la source de l'explosion était dans le cofferdam et l'entrepont, la porte ouverte a pu permettre au front de flamme de pénétrer dans la salle des machines.

    Vu que la salle des machines n'était pas très grande et vu l'emplacement de la porte, la porte offrait peu d'avantages comme issue de secours. Le jour de l'explosion, la porte n'a pas été utilisée comme issue de secours; elle a plutôt permis à des vapeurs d'essence du cofferdam (ou au front de flamme) de pénétrer dans la salle des machines, ce qui a causé des blessures mortelles au chef mécanicien.

    2.9 Utilisation du quai de l'État par les traversiers

    Le jour de l'explosion, le « PETROLAB » et le traversier « NORTHERN PRINCESS » ont tous les deux été amarrés au quai de St. Barbe pendant 90 à 135 minutes en tout. Des passagers sont débarqués du traversier et d'autres sont montés à son bord pendant que le « PETROLAB » faisait de la manutention de cargaison et d'autres opérations dangereuses.

    Peu de précautions étaient prises pour tenir les passagers du traversier à l'écart des opérations dangereuses du pétrolier, les voyageurs étaient exposés à des risques inutilement.

    2.10 Inspections de Transports Canada

    La navigabilité signifie qu'un navire, de par ses matériaux, sa construction, son équipement et son armement en personnel, est apte à faire les voyages ou à fournir le service pour lesquels il est utilisé.Note de bas de page 12 Les propriétaires de navire doivent donc s'assurer que toutes ces conditions sont réunies. Le navire doit également répondre aux normes de TC en matière de construction, d'équipement et d'armement en personnel.

    2.10.1 Construction

    On trouve rarement un entrepont fermé qui communique avec un cofferdam arrière sur un navire. Cela ne veut pas nécessairement dire que le navire était dangereux, mais il aurait dû offrir un niveau de sécurité équivalent à celui qu'on exige des pétroliers traditionnels pour l'immatriculation canadienne. La réglementation canadienne exigeait que le navire possède un deuxième moyen d'évacuation de la salle des machines. À cet égard, l'ancien propriétaire du navire avait présenté des plans à TC en 1983 où figurait une porte de secours aménagée dans la cloison avant de la salle des machines. Ces plans montraient la salle des machines communiquant avec l'entrepont, qui était en réalité une salle des pompes. TC avait approuvé les plans tels quels.

    2.10.2 Assèchement des fonds de cale

    En 1993, le propriétaire avait demandé un Certificat canadien de prévention de la pollution par les hydrocarbures. Dans la demande d'exemption relative à l'épurateur d'eaux mazouteuses pour la salle des machines, le propriétaire avait précisé que tous les résidus des fonds de cale seraient stockés à bord dans des citernes à résidus conçues à cet effet. L'exemption avait été accordée par le BIN, mais il n'y avait eu aucune inspection de suivi pour vérifier le système d'assèchement des cales. TC ne savait pas qu'on avait improvisé un système d'assèchement des fonds de cale de la salle des machines qui exigeait que la porte de secours de la salle des machines soit laissée ouverte, ce qui était dangereux.

    Le cofferdam arrière ne figurait pas sur la liste des espaces de coque à inspecter et n'avait fait l'objet d'aucune inspection officielle depuis que le navire était passé sous pavillon canadien en 1983.

    2.10.3 Refoulement des cargaisons liquides

    Comme la réglementation canadienne n'exige pas que le système de refoulement des cargaisons liquides du navire soit inspecté et comme le navire n'avait plus de certificat d'une société de classification, le fait que le système d'assèchement des citernes par aspiration n'était pas utilisable n'a pas été relevé par TC ni par une société de classification.

    Le navire avait été inspecté par TC en vertu de la réglementation canadienne et avait reçu les certificats appropriés, mais le mauvais état du système de refoulement des cargaisons liquides qui empêchait le navire de naviguer en toute sécurité n'avait pas été relevé. L'état du système de refoulement des cargaisons liquides du navire n'avait pas été évalué depuis que le navire avait été immatriculé au Canada en 1983.

    2.10.4 Équipement de secours

    En vertu de la réglementation canadienne, un navire de la dimension du « PETROLAB » n'est pas tenu d'être équipé d'un groupe électrogène de secours ni d'une pompe à incendie de secours, qu'il soit ou non utilisé pour le transport de produits pétroliers. Par conséquent, il n'y avait à bord aucun moyen (entre autres il n'y avait pas de système d'extinction par mousse dans l'entrepont) pour lutter contre l'incendie après que le groupe électrogène de service eut cessé de fonctionner après l'explosion.

    2.10.5 Évaluation des compétences de l'équipage

    L'inspecteur de TC qui a effectué l'inspection annuelle du navire en mai 1997 ne possédait pas de formation sur la sécurité des pétroliers et n'était pas titulaire de la mention pétrolier. Il n'a pas exigé que l'équipage fasse un exercice d'embarcation et d'incendie et il n'a pas inspecté les brevets de l'équipage. L'équipage n'a donc pas fait l'objet d'un contrôle en bonne et due forme qui aurait permis d'évaluer ses habiletés à exploiter le navire en toute sécurité et à intervenir dans une situation d'urgence (comme un incendie à bord).

    3.0 Faits établis

    3.1 Faits établis quant aux causes et aux facteurs contributifs

    Le navire avait été inspecté par la Sécurité maritime de TC en mai 1997, mais aucune inspection du système de refoulement des cargaisons liquides et du système d'assèchement des fonds de cale de la salle des machines n'avait été effectuée.

    • En vertu de la réglementation canadienne, TC n'est pas tenu d'inspecter le système d'assèchement des cales ni le système de refoulement des cargaisons liquides d'un pétrolier.
    • Le système d'assèchement des citernes du navire était inutilisable depuis au moins 10 ans et le système de refoulement des cargaisons liquides avait été modifié pour permettre le déversement direct dans le cofferdam, et non dans les citernes conçues à cet effet.
    • Le cofferdam arrière ne figurait pas sur la liste des espaces de coque à inspecter officiellement par TC dans le cadre du programme d'inspection continue des coques.
    • Le Bureau d'inspection des navires a exempté le navire de l'obligation d'avoir un épurateur d'eaux mazouteuses dans la salle des machines, sous réserve que tous les résidus des fonds de cale seraient pompés dans les citernes conçues à cet effet, puis éliminés à terre.
    • Le navire n'était pas équipé d'un groupe électrogène de secours ni d'une pompe à incendie de secours, et il n'était pas tenu de posséder cet équipement en vertu de la réglementation canadienne.
    • Aucun exercice d'embarcation et d'incendie périodique n'avait été effectué par l'équipage du « PETROLAB », et ce type d'exercice n'a pas été effectué en présence de l'inspecteur qui a fait l'inspection annuelle en mai 1997.
    • L'inspecteur de TC qui a inspecté le navire en mai 1997 n'était pas titulaire de la mention pétrolier et n'avait pas suivi de cours sur la sécurité des pétroliers.
    • L'affréteur, Ultramar Canada Inc., avait inspecté le navire avant de l'affréter en mai 1997, mais le système de refoulement des cargaisons liquides n'avait pas fait l'objet d'une inspection.
    • Le propriétaire n'avait pas mis en place de système officiel de gestion de la sécurité.
    • Il n'y avait pas de politique officielle en matière d'orientation et de formation pour les nouveaux employés.
    • Cela faisait au moins 10 ans que des pratiques et des procédures de travail non réglementaires et dangereuses pour faire le lavage des citernes et le stockage des résidus de cargaison avaient été mises en place et étaient acceptées.
    • Seuls le premier lieutenant et le chef mécanicien étaient titulaires de la mention pétrolier, mais ces mentions avaient été délivrées uniquement sur la base de leur expérience acquise à bord du « PETROLAB ».
    • Le propriétaire et le premier lieutenant tenaient souvent le capitaine à l'écart des décisions relatives aux activités du navire et à la manutention de la cargaison.
    • Le propriétaire et le premier lieutenant ont décidé de laver à l'eau de mer les citernes de transport d'hydrocarbures (CTH) qui avaient déjà contenues de l'essence, en utilisant une manche à incendie qui n'était pas mise à la masse.
    • Le mélange d'essence et d'eau (résidus) a été transféré avec une pompe portable qui n'était pas conçue pour ce type d'opération.
    • Les résidus ont été déversés dans le cofferdam plutôt que dans les citernes conçues à cet effet.
    • Les résidus ont été déversés en chute libre dans le cofferdam par un tuyau en caoutchouc non certifié et non mis à la masse, ce qui a créé des concentrations de vapeurs supérieures à la limite inférieure d'explosivité ainsi qu'un risque d'électricité statique.
    • Les ventilateurs d'extraction du cofferdam et de l'entrepont n'avaient pas été mis en marche.
    • Aucune analyse de l'air n'a été faite dans l'entrepont, le cofferdam, la salle des machines ou les CTH pendant le lavage des citernes et le transfert des résidus.
    • La porte de secours entre la salle des machines et le cofferdam était ouverte pendant le transfert des résidus.
    • Une petite pompe de cale électrique submersible non réglementaire a été trouvée dans la cale avant de la salle des machines; son tuyau de déversement aboutissait à la porte de secours de la salle des machines.
    • Il y avait des résidus des fonds de cale de la salle des machines dans le cofferdam.
    • Une bonne partie du matériel électrique de la salle des machines n'était pas certifié pour être utilisé dans un environnement dangereux, et certains câbles et appareils n'étaient pas conformes aux normes établies.
    • On ne sait pas quelle a été la source exacte d'inflammation des vapeurs d'essence produites pendant le transfert des résidus, mais l'enquête a révélé que la porte de secours de la salle des machines, qui était ouverte, a permis aux vapeurs d'essence ou à un front de flamme, de passer du cofferdam à la salle des machines.
    • Aucun membre de l'équipage ne portait d'équipement de protection individuel, comme des vêtements ignifuges, au moment de l'explosion.
    • L'équipage ne connaissait pas les dangers associés aux effets cancérigènes de l'accumulation du benzène contenu dans les produits pétroliers.
    • Après l' explosion, le groupe électrogène du navire s'est arrêté et la pompe à incendie n'était plus alimentée. Le navire n'était pas équipé d'un raccord international de jonction avec la terre permettant de brancher son collecteur d'incendie, et les bouteilles de l'appareil respiratoire Scott étaient vides, car on s'en était servi pendant le lavage des citernes.
    • Après l'explosion, l'équipage a éteint plusieurs petits foyers d'incendie qui brûlaient sur le pont, à l'aide d'un extincteur portable, mais n'a pas essayé de pénétrer dans la salle des machines pour faire redémarrer le groupe électrogène afin de faire fonctionner la pompe à incendie avant d'abandonner le navire.
    • Il n'était pas possible de remorquer le navire pour l'éloigner du quai, car il n'y avait pas de câbles en cas d'incendie, ni à l'avant ni à l'arrière du navire.
    • Ultramar n'avait pas de plan d'urgence en cas de gros incendies au poste de chargement des pétroliers; cependant, le rinçage des canalisations du quai avec de l'eau de mer a empêché le feu de se propager au parc de réservoirs de stockage et de créer des problèmes de pollution.
    • Avant le sinistre, Ultramar n'avait pas évalué les moyens de lutte contre l'incendie du service d'incendie de la municipalité locale, dans le cas d'un incendie à bord d'un navire, notamment dans le cas d'un incendie à bord d'un pétrolier.
    • Le service d'incendie de la municipalité locale ne possédait pas d'équipement d'extinction par mousse et ne possédait aucune formation en matière de lutte contre les incendies à bord des navires, notamment les incendies à bord des pétroliers.
    • Les services d'incendie n'ont pas réussi à maîtriser le feu à ses débuts, et la peinture de la coque du navire, en brûlant, a mis le feu aux pieux en bois imprégné de créosote du quai de l'État.
    • La plate-forme en béton du quai de l'État empêchait les pompiers d'avoir accès au foyer de l'incendie en contrebas, et le quai a été détruit par le feu.
    • À St. Barbe, le quai de l'État était souvent utilisé, en même temps, par des pétroliers qui effectuaient de la manutention de cargaison, et par le traversier « NORTHERN PRINCESS » de la Quebec North Shore.
    • Peu de précautions étaient prises pour tenir les passagers du traversier à l'écart du pétrolier qui effectuait des opérations dangereuses de manutention de cargaison, ce qui faisait courir des risques inutilement aux voyageurs.
    • Aucune évaluation des risques n'a été faite, dans les ports régionaux et locaux au Canada qui font de la manutention de produits pétroliers, en vue d'établir des plans d'urgence.
    • TC n'exerce pas de surveillance physique ou réglementaire auprès des ports dévolus pour s'assurer que les ports se conforment aux lois et aux règlements de sécurité en vigueur.
    • L'Organisation maritime internationale et le Programme des Nations Unies pour l'environnement (PNUE) ont publié des lignes directrices pour aider les responsables des ports à préparer et à mettre en application des mesures de protection civile en région portuaire.

    3.2 Causes

    L'explosion a été causée par une accumulation de vapeurs d'essence dans le cofferdam arrière, l'entrepont et la salle des machines. La source d'inflammation n'a pas été déterminée. Les facteurs suivants ont contribué à l'explosion : le manque de connaissances du propriétaire et de l'équipage en matière de pratiques de travail prudentes sur les pétroliers; des pratiques de travail dangereuses improvisées pour remplacer un système d'assèchement des citernes qui était inutilisable depuis au moins 10 ans; le fait qu'il n'y avait pas de système de gestion de la sécurité; le fait que le cofferdam, qui communiquait avec l'entrepont et la salle des machines, était utilisé comme citerne à résidus; l'utilisation de matériel de pompage non certifié pour être utilisé dans un environnement dangereux; le fait que les ventilateurs d'extraction du cofferdam et de l'entrepont n'ont pas été utilisés; l'absence d'analyse de l'air et la présence dans la salle des machines de matériel et de raccords électriques inférieurs aux normes établies.

    4.0 Mesures de sécurité

    4.1 Mesures prises

    À la suite de cet accident, plusieurs problèmes de sécurité liés au système de refoulement des cargaisons liquides du « PETROLAB » ont été signalés à Transports Canada (TC) par le biais des avis de sécurité maritime nos 01/98, 02/98, 03/98 et 04/98.

    4.1.1 Système de refoulement des cargaisons liquides

    L'avis de sécurité maritime no 01/98 souligne l'importance pour les propriétaires de pétroliers de maintenir en bon état de fonctionnement tous les sous-ensembles du système de refoulement des cargaisons liquides et du système d'assèchement des citernes et d'assurer leur fonctionnement en toute sécurité. La réglementation actuelle et les exigences d'inspection annuelle actuelles ne couvrent pas ces points. La Sécurité maritime de TC a fait savoir qu'elle avait l'intention d'émettre un Bulletin de la sécurité des navires pour rappeler aux propriétaires de pétroliers les risques associés aux mauvaises pratiques de travail. Pour ce qui est d'un programme d'inspection plus complet permettant de vérifier l'état de fonctionnement des systèmes de refoulement des cargaisons liquides des pétroliers, TC a fait savoir qu'avant d'apporter des modifications à la réglementation applicable aux inspections, il va falloir consulter les exploitants de navires et les autres personnes concernées pour assurer une application uniforme.

    4.1.2 Mention pétrolier

    L'avis de sécurité maritime no 02/98 signale à TC quelques-unes des pratiques de travail dangereuses qui ont été utilisées pendant de nombreuses années sur le « PETROLAB », comme le lavage des citernes avec le mauvais matériel et le transfert des résidus dans des espaces inadéquats. Ces pratiques ont été attribuées à une mauvaise connaissance des dangers liés aux opérations des pétroliers. La plupart des membres de l'équipage n'étaient pas titulaires de la mention pétrolier, et ceux qui étaient titulaires de la mention pétrolier n'avaient jamais suivi de cours sur la sécurité des pétroliers. C'est pourquoi les pratiques de travail dangereuses ont été perpétuées et renforcées. L'avis de sécurité maritime stipulait que TC devait réévaluer ses exigences pour la délivrance et le renouvellement de la mention pétrolier.

    TC a fait savoir que dans le cadre du processus de délivrance de la mention de maintien des compétences, une modification réglementaire entrera en vigueur de sorte que tous les titulaires de certificat seront tenus de remettre en vigueur leur certificat de pétrolier tous les cinq ans.

    4.1.3 Lutte contre l'incendie dans les ports du Canada

    À la suite de l'incendie survenu à bord du vraquier « AMBASSADOR » dans le port de Belledune (N.-B.) (rapport no M94M0057 du BST), le Bureau a recommandé que « le ministère des Transports entreprenne une vérification spéciale des installations de lutte contre l'incendie dans les ports et les havres du Canada sous sa juridiction afin de s'assurer qu'elles permettent de maîtriser les incendies à bord des navires peu importe la période de l'année ». À cette fin, l'Association canadienne des chefs de pompiers (ACCP), avec l'aide de TC, a distribué un court questionnaire pour évaluer les moyens de lutte contre l'incendie des services municipaux responsables de la lutte contre l'incendie dans les ports du Canada.

    En février 1998, à la lumière des informations préliminaires recueillies dans le cadre de l'enquête sur le « PETROLAB », la Sécurité maritime de TC et l'ACCP ont été enjoints, par le biais de l'avis de sécurité maritime no 03/98, d'accélérer leur vérification de sécurité et leur examen des risques et des mesures d'urgence dans les ports et dans les havres du Canada où il y a des terminaux pétroliers, et là où il y a des installations qui seraient vulnérables aux dommages catastrophiques s'il y avait un incendie à bord d'un navire à quai.

    En juillet 1998, l'ACCP n'a reçu qu'un certain nombre de réponses à son questionnaire et a trouvé que les réponses étaient pauvres et relativement sans valeur. La plupart des services d'incendie municipaux à qui le questionnaire a été envoyé ne sont pas membres de l'ACCP et ne se sont pas sentis obligés de répondre. Par contre, l'ACCP a trouvé que le questionnaire fournissait assez d'informations pour soulever des inquiétudes sur le fait qu'il se peut que les services d'incendie des municipalités dotées de ports publics ne soient pas en mesure de fournir les services nécessaires pour lutter contre un incendie à bord d'un navire. L'ACCP a fait savoir qu'elle était intéressée à travailler de concert avec TC pour faire des recherches plus poussées dans ce domaine.

    4.1.4 Sécurité du public

    L'avis de sécurité maritime no 04/98 informe TC des dangers auxquels est exposé le public lorsqu'un pétrolier et un navire à passagers effectuent en même temps des opérations dans un petit port public. TC reconnaît que ces dangers existent. Il a répondu que plusieurs mesures de précaution sont déjà en place, notamment la présence d'affiches indiquant qu'il est interdit de fumer, et l'obligation d'avoir une personne présente près du collecteur et d'avoir des extincteurs à côté du collecteur pendant le chargement et le déchargement des cargaisons de pétroliers. TC a également indiqué que les capitaines de port et les gardiens de quai avaient suffisamment de pouvoir pour diriger les navires et gérer les lieux.

    4.1.5 Enquête de Transports Canada

    En vertu de l'article 504 de la Loi sur la marine marchande du Canada, le ministre des Transports a nommé un commissaire pour mener une enquête réglementaire sur cet accident. L'enquête a été ajournée temporairement.

    Le présent rapport met fin à l'enquête du Bureau de la sécurité des transports sur cet accident. La publication de ce rapport a été autorisée le par le Bureau qui est composé du Président Benoît Bouchard et des membres Maurice Harquail, Charles Simpson et W.A. Tadros.

    Annexes

    Annexe A - Croquis du secteur de l'accident

    Annexe B - Dessins

    Disposition des citernes du « PETROLAB »

    Aménagement du cofferdam arrière, de la citerne à résidus, d l'entrepont et de la salle des machines.

    Annexe C - Schéma de l'inflammabilité d'un mélange d'oxygène et de vapeurs de pétrole

    Annexe D - Photographies

    Annexe E - Sigles et abréviations

    ACCP
    Association canadienne des chefs de pompiers
    APELL
    Awareness and Preparedness for Emergencies at Local Level
    ar.
    arrière
    assèchement
    enlèvement des liquides résiduels d'une citerne
    av.
    avant
    BHP
    puissance au frein (brake horse power)
    BIN
    Bureau d'inspection des navires
    BST
    Bureau de la sécurité des transports du Canada
    cofferdam
    espace vide séparant des compartiments adjacents
    CTH
    citerne de transport d=hydrocarbures
    citerne à résidus
    citerne utilisée pour le stockage d'huiles usées
    entrepont
    espace compris entre le pont découvert et le pont immédiatement au-dessous
    GCC
    Garde côtière canadienne
    halon
    bromo-trifluoro-methane (agent d'extinction chimique gazeux)
    ISGOTT
    International Safety Guide for Oil Tankers and Terminals
    kW
    kilowatt
    LIE
    limite inférieure d'explosivité
    LSE
    limite supérieure d'explosivité
    m
    mètre
    m3
    mètre cube
    mm
    millimètre
    NGCC
    navire de la Garde côtière canadienne
    OMI
    Organisation maritime internationale
    NO II
    deuxième lieutenant au long cours, premier lieutenant au cabotage (brevet)
    PNUE
    Programme des Nations Unies pour l=environnement
    SI
    système international (d'unités)
    SIMDUT
    Système d'information sur les matières dangereuses utilisées au travail
    SOLAS
    Convention internationale pour la sauvegarde de la vie en mer
    STCW
    Convention internationale de 1978 sur les normes de formation des gens de mer, de délivrance des brevets et de veille, modifiée en 1995
    TC
    Transports Canada