Marine Investigation Report M94L0034

Loss of all shipboard power
General cargo vessel "PAL WIND"
in the Gulf of St. Lawrence

The Transportation Safety Board of Canada (TSB) investigated this occurrence for the purpose of advancing transportation safety. It is not the function of the Board to assign fault or determine civil or criminal liability. This report is not created for use in the context of legal, disciplinary or other proceedings. See Ownership and use of content. Masculine pronouns and position titles may be used to signify all genders to comply with the Canadian Transportation Accident Investigation and Safety Board Act (S.C. 1989, c. 3).

Table of contents

    Summary

    After transitting the Cabot Strait, the "PAL WIND" was entering the Gulf of St. Lawrence when she became disabled because all mechanical and electrical power was lost. After several attempts to secure a tow-line in severe weather conditions, the vessel was towed to Sept-Îles, Quebec, where she arrived on 11 November 1994. The "PAL WIND" sustained minor damage during the towing operation. There was no pollution.

    The Board determined that the "PAL WIND" became disabled because the fuel used for the generators did not comply with the manufacturer's specifications. The sub-standard condition of generators Nos. 1 and 2 also contributed to this occurrence.

    1.0 Factual Information

    1.1 Particulars of the Vessel

    Name "PAL WIND"
    Official number 9265
    Port of registry Monrovia, Liberia
    Flag Liberian
    Type General cargo
    Gross TonsNote de bas de page 1 12,811
    Length 152.38 m
    Draught FNote de bas de page 2: 4.5 m
    A: 6.2 m
    Built 1982, Warnemunde, Germany
    Propulsion Seven-cylinder DMR (MAN) K7Z 70/120E, 6,991 kW
    Owners Santa Lucia Compañia; Naviera S.A.; Monrovia, Liberia

    1.1.1 Description of the Vessel

    The "PAL WIND" is a conventional, series-built, ice-strengthened general cargo vessel with heavy lift and container capability. The accommodation and machinery spaces are located aft.

    1.2 History of the Voyage

    The "PAL WIND" departed Las Palmas, Canary Islands, on 27 October 1994, bound for Sept-Îles. She was in ballast. The voyage across the Atlantic was uneventful, although adverse weather conditions caused the vessel to roll and pitch heavily.

    The "PAL WIND" entered the Gulf of St. Lawrence via the Cabot Strait on 04 November 1994. At that time, generators Nos. 1 and 2 were in operation. At about 1900Note de bas de page 3, generator No. 1 developed an oil leak in way of the crankshaft seal and, at 2040, when the oil pressure could not be maintained, generator No. 1 was taken off load and shut down. Although generator No. 3 was out of service for routine maintenance, it was readied for service. However, all attempts to start it were unsuccessful.

    At 2130, when the vessel was approximately 42 nautical miles (M) north-west of Cape Ray, Newfoundland, the chief engineer informed the master that generator No. 2 was the only operational generator, and that problems were also being experienced with it. He suggested that the vessel be brought to anchor to carry out repairs.

    At 2137, the vessel's course was altered to head for St. George's Bay, Newfoundland, the nearest safe refuge. At 2200, generator No. 2 shut down and the vessel experienced a blackout. The emergency generator started automatically and restored essential services, but, because the emergency generator is not designed to supply power to the main engine auxiliary pumps, the main engine had to be stopped. Subsequently, at 2205, the master called the Coast Guard Radio Station (CGRS) at Sydney and requested the assistance of a tug.

    At 0230 on 05 November, the CCGS "J.E. BERNIER" arrived on scene and stood by the "PAL WIND", which remained adrift throughout the day. At 0630, the offshore supply vessel "TERRA NOVA SEA" departed Halifax, Nova Scotia, bound for the "PAL WIND".

    On board the "PAL WIND", the generator No. 2 fuel injectors and pumps were overhauled and the engine was inspected. The generator could not be started, and, at 1700, the master of the "PAL WIND" expressed his concern that the vessel was drifting toward Cape John, Newfoundland.

    At approximately 0110 on 06 November, the "PAL WIND" passed a mooring line to the "J.E. BERNIER" to begin a towing operation. The towing winch on the "J.E. BERNIER" broke down and, at 1410, the towing operation ceased. The mooring line of the "PAL WIND" was let go. At 1730, when the cargo vessel was approximately 45 M from Cape Anguille, Newfoundland, the "TERRA NOVA SEA" arrived on scene. A tow-line was passed to the "PAL WIND" and, at 1930, the towing operation began toward Sept-Îles.

    At 0540 on 07 November, when the vessels were approximately 22 M north-east of Heath Point on the Île d'Anticosti, Quebec, the tow-line parted due to severe weather conditions. Rolling very heavily in the heavy seas, the "PAL WIND" drifted north-north-west toward Natashquan Point, Quebec. During the noon hour, a second tow-line was passed to the vessel and, at 1315, the towing operation resumed, but the severe weather prevented the tow from making headway. At 1700, the CCGS "LOUIS S. ST-LAURENT" arrived on scene to assist.

    At 0015 on 08 November, approximately 38 M north-north-east of Heath Point, the tow-line parted a second time. The weather conditions were so severe that no attempt was made to pass another tow-line. The "PAL WIND" was adrift overnight. At 1130, the CCGS "MARTHA L. BLACK" arrived on scene to assist as required. The heavy weather persisted throughout the day, and the vessel drifted east-south-east toward Newfoundland at a rate of approximately four knots. It was decided to use the port anchor cable as a hawser, but, as the weather further deteriorated during the evening, the operation was delayed.

    At 0440, on 09 November, with 60-knot winds and 8- to 10-metre swells, the "TERRA NOVA SEA" secured the port anchor cable of the "PAL WIND" to her afterdeck. By this time, the vessel had drifted toward Newfoundland and lay approximately 15 M north-west of the Red Island lighthouse on the Port au Port Peninsula, Newfoundland. At 0615, the towing operation resumed. At 1130, the Eastern Canada Traffic Zone Regulations (ECAREG) ordered the tow to proceed toward Sydney, Nova Scotia. However, after consultation between the Canadian Coast Guard (CCG) authorities, the vessel, and the shipowners, the "TERRA NOVA SEA" was cleared to proceed to Sept-Îles. At 2030, the "MARTHA L. BLACK" was released.

    On 10 November, the tow proceeded uneventfully through the Jacques-Cartier Strait north of the Île d'Anticosti and, at 1340, the "LOUIS S. ST-LAURENT" was released from the operation.

    At 1040 on 11 November, the "PAL WIND" was secured at Sept-Îles.

    1.3 Injuries to Persons

    No one was injured as a result of this occurrence, but, during the seven days from the blackout to the arrival in port, there was neither heat nor galley facilities available to the crew. The temperature in the engine-room fell to +5°C.

    1.4 Damage

    On 09 November, during an attempt to pass the port anchor cable of the "PAL WIND" to the "TERRA NOVA SEA" in adverse weather conditions, the vessels came into contact with each other. The "PAL WIND" sustained a 1.2 m crack above the water line between frames Nos. 154 and 162.

    1.5 Certification

    1.5.1 Vessel

    Before departing for Canada from Las Palmas, the "SANTA LUCIA" was renamed "PAL WIND" at the charterer's request. A Liberian Provisional Certificate of Registry, valid from 26 October 1994 until 25 April 1995, was issued. However, the name of the vessel on the bow and stern was not changed until after arrival in Canada.

    1.5.2 Automated Installations

    Following an annual survey of automated installations in Buenos Aires, Argentina, in June 1994, it was recommended that auxiliary engine No. 1 be surveyed again upon completion of a general overhaul. In August 1994 at Ho Chi Minh City, Vietnam, the classification society approved the overhaul.

    1.5.3 Personnel

    The master and all the engineers held qualifications appropriate and valid for the class of the vessel and for the voyage being undertaken.

    1.6 Personnel History

    1.6.1 Chief Engineer

    The chief engineer has been going to sea since 1965, obtaining his first engineering certificate of competency in 1970 and his chief engineer's certificate in 1973. After spending eight years ashore, he returned to sea. He became chief engineer of the "SANTA LUCIA" in June 1993. Apart from a period of leave, he had remained with the vessel.

    1.7 Weather Information

    During 04, 05, and 06 November, weather conditions varied from moderate breeze, sea, and swell with occasional fog to cloudy and clear with light northerly winds and low sea and swell. From 07 to 09 November, weather conditions deteriorated rapidly with the passage of a low pressure system. Storm warnings were issued for the Anticosti area, with a possibility of hurricane-force winds. The wind was initially from the south-east at 45 to 60 knots with snow flurries and 8-metre seas. Early on 08 November, the wind veered to the north-west at 60 knots and the seas increased with an accompanying 8- to 10-metre swell. By day's end, the conditions began to subside and, on 10 November, relatively favourable conditions prevailed.

    1.8 Navigation Equipment

    The vessel is equipped with a full range of modern navigation instruments which were apparently in good working order. As the emergency generator supplied power to the bridge equipment, communication and position-fixing instruments were constantly available. There was a continuous line of communication from the "PAL WIND" to the "TERRA NOVA SEA", and between the bridge and the forecastle of the "PAL WIND".

    1.9 Generators

    Electrical service on the "PAL WIND" is provided by two 640 kW, SKL 8 VD 26/20 AL-2 generator sets and one 900 kW New Sulzer 6S20 generator set. Emergency service is provided by a 57 kW, SKL 4 VD 21/15-2 generator set.

    As generator No. 3 was the more recent installation and had the largest capacity, it was common practice to use it as much as possible. This generator had been in operation since departure from Las Palmas. Records indicate that the generator supplied an output of approximately 420 kW and that no problem was encountered. Meanwhile, generator No. 2 was being overhauled and generator No. 1 was on stand-by.

    During the evening of 02 November, generator No. 1 was started without difficulty and was parallelled with generator No. 3. At about midnight, generator No. 3 was taken off load and shut down for routine maintenance.

    At 1650 on 03 November, generator No. 2 was started on the second attempt. Reportedly, the initial reluctance to start was caused by air in the fuel system. After generator No. 2 was warmed up, it was parallelled with generator No. 1. Records indicate that, at this time, the output from generator No. 1 was approximately 120 kW and output from generator No. 2 was approximately 200 kW.

    At about 1900 on 04 November, the crankshaft seal on generator No. 1 was observed to be leaking lubricating oil. It was found impossible to maintain the level of lubricating oil in the sump or the lubricating oil pressure and, therefore, at 2040, the generator was taken off load and shut down. Because generator No. 2 was by then the only generator remaining in service, the chief engineer recommended to the master that the vessel go to anchor until generator No. 3 could be put back in service.

    Approximately one hour after generator No. 1 was shut down, generator No. 2 experienced low frequency output. The frequency was observed to drop suddenly at the main switchboard. Attempts were made to adjust the speed governor, but, at 2200, the main circuit breaker opened and the generator No. 2 engine stopped.

    During the blackout, which lasted some 10 seconds, the emergency battery-powered lighting system automatically activated. The emergency generator started automatically and essential services were restored, but, because it is not designed to supply power to the main engine auxiliary pumps, the main engine was shut down.

    The engineers could not restart any of the three generators before the vessel arrived in Sept-Îles.

    1.10 Generators - General Inspection

    Following the shutdown of generator No. 2, the ship's electrician inspected the generator breaker in the main switchboard. He found it to be satisfactory. The speed governor was inspected and a loose connection was found. The fuel injector nozzles were observed to be very dirty, as were the fuel filters. Some fuel pump plungers were found to be seized and were replaced. Some delivery valves were also found to be seized; new injector nozzles were installed in some of the injectors. The pneumatic starting valve was checked, but the generator would not restart despite numerous attempts. After each attempt, the fuel filters were found to be dirty.

    Although generator No. 1 had a major leak, the engine crew tried to restart it, but these attempts were also unsuccessful.

    A review of the generator maintenance records made available on board revealed that generator No. 2 had blown a cylinder head gasket in September 1994. High ring wear was found when the generator was opened up for inspection one month later. The cause of this wear was not determined. On two occasions since August, generator No. 3 had a problem with fuel contamination of the lubricating oil. This problem was rectified. No record of problems with generator No. 1 was found. Logbook entries indicate that frequent cleaning of the generator No. 3 turbocharger was necessary.

    Following inspection of generator No. 1 at Sept-Îles, the chief engineer recorded that the liner wear was higher than observed at the last inspection but was within the manufacturer's limits. The piston rings were observed to be worn, and there were heavy deposits in the ring grooves. In addition, all the fuel pumps were replaced with reconditioned ones due to wear in the pump barrels.

    Generator No. 3 suffered extensive damage to the crankshaft during a test run, following an overhaul by the ship's crew in Sept-Îles in November 1994. The generator remained out of service when the vessel departed Canada.

    An SKL engine representative inspected the engines of generators Nos. 1 and 2 at Sept-Îles in January 1995. Both were found to be in poor condition. Under the supervision of the engine manufacturer's representative, the crew carried out an extensive overhaul/rebuild of both generator engines. Many new spare parts were installed.

    1.11 Fuel Oil Carried on the "PAL WIND" (See Appendix C)

    There were three types of fuel oil on board at the time of the occurrence. Heavy fuel oil (HFO) (120 cSt) is used for the main engine and boiler. Marine diesel oil (MDO) is used for the generator engines, for the boiler, and for manoeuvring with the main engine. Gas oil (GO) is used for flashing off the boiler, for the emergency generator, for the lifeboat motor, and for the incinerator.

    HFO is a blend of the residuum from the refining processes and lighter distillate to give the desired viscosity. It is the cheapest grade fuel for marine use.

    MDO is a distillate with a higher boiling point than GO. In the Middle and Far East, marine diesel fuel may be a blend containing 5 to 10 per cent residual fuel. It is black in colour.

    GO is a light distillate which contains no refinery residuum and is virtually free of ash-forming materials.

    1.12 Marine Diesel Oil Storage and Transfer System

    Records indicate that the vessel's fuel tanks were last opened for inspection in October 1992 during a special survey in Callao, Peru.

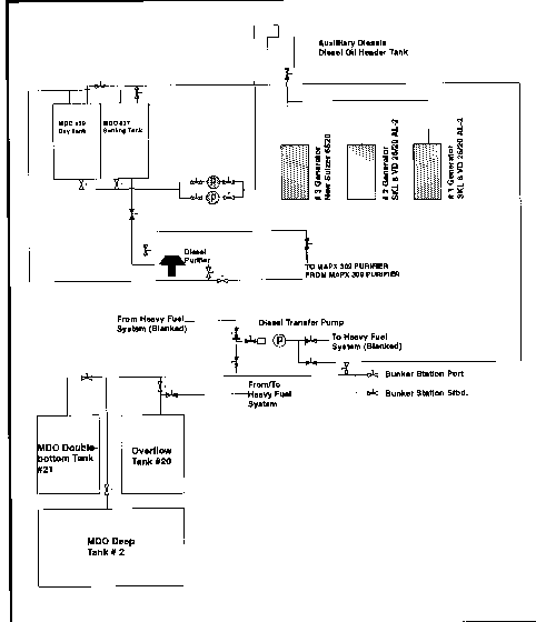
    MDO is carried in No. 2 deep tank, in No. 21 double-bottom tank, in No. 37 settling tank, and in No. 39 day tank (see Appendix A).

    From the deep and double-bottom tanks, MDO is transferred into No. 37 settling tank using the diesel oil transfer pump. MDO is taken from No. 37 settling tank through a purifier and discharged into No. 39 day tank. A fuel booster pump then transfers the MDO into the diesel oil header tank, located one deck above the generators, from which it is gravity-fed to the generators.

    When built, the vessel was fitted with two identical purifiers, one used for HFO and one used for MDO. Each could be used to purify either fuel by operating change-over valves and changing gravity discs. Some time later, a smaller purifier was fitted, exclusively dedicated to the MDO system. Reportedly, the two original purifiers were then used only in the HFO system. The change-over valves remained operable.

    1.13 Marine Diesel Oil Quality

    The engine crew began to doubt the quality of the MDO after they had overhauled the fuel pumps and injectors of the three diesel generators and were unsuccessful in their attempts to restart them. On 09 November, the MDO in the auxiliary diesels' header tank was drained into an HFO tank and the header tank opened up. A quantity of sludge and dirty fuel oil was removed from the header tank before it was refilled.

    1.14 Marine Diesel Oil Consumption

    Records of fuel consumption and the engine-room fuel tank sounding book were made available.

    On 18 August 1994 at Singapore, the "PAL WIND" bunkered 180.153 tonnes of MDO. Records show that a total of 236.88 tonnes of MDO were on board on departure from Singapore.

    On 11 November 1994, when the vessel arrived in Sept-Îles, there was approximately 19 tonnes of what was described as MDO on board in tanks Nos. 37 and 39, and a small amount in the header tank.

    The chief engineer reported that the normal consumption of MDO by the diesel generators and boiler is three tonnes per day. Given this rate of consumption and given that 77 days elapsed between the last refuelling and the date of the occurrence, the vessel should have consumed 231 tonnes of MDO. MDO remaining on board at the time of the occurrence should thus have been 5.8 tonnes, not the 19 tonnes in tanks Nos. 37 and 39 and in the header tank.

    Study of the chief engineer's daily fuel consumption log revealed that, for the same period of 77 days, the total consumption of MDO was 245.1 tonnes. This figure represents 8.22 tonnes more than the total quantity of MDO on board at Singapore, and an average daily consumption of 3.18 tonnes.

    When the vessel came on charter to PAL on 22 October 1994, soundings indicated that 55.32 tonnes of MDO were on board. From this time until the date of the occurrence, the chief engineer's records indicate that the average MDO consumption was 3.16 tonnes per day.

    1.15 Marine Diesel Oil Quality Specification for Generators

    SKL Engines

    The requirements for fuel quality made by SKL for the VD 26/20 AL-2 engine, as contained in the operating instructions manual, are presented in Appendix B.

    New Sulzer 6S20 Engine

    The New Sulzer 6S20 engine is designed to operate on HFO providing that the fuel handling and treatment plant meets specific requirements. On the "PAL WIND", the engine was not utilized with HFO, as the owners had not installed certain equipment nor connected the generator fuel system to the vessel's HFO system. The New Sulzer 6S20 engine used the same fuel as the SKL generator engines.

    1.16 Fuel Samples

    On 11 and 13 November, samples were taken from the No. 39 day tank, the No. 37 settling tank, the header tank containing MDO, the No. 35 GO tank, the generator Nos. 1 and 2 fuel filters, the MDO purifier, and the in-use HFO purifier. The samples from tanks Nos. 37 and 39 were taken after the tank manhole covers had been removed.

    A sealed sample of the MDO bunkered at Singapore, 18 August 1994, was received from the vessel. The sample had been retained on board, but no test was carried out on board or by the owners.

    1.17 Testing of the Marine Diesel Oil

    Samples of the MDO remaining on board and a sealed sample of the MDO bunkered at Singapore were sent to the TSB Engineering Laboratory for analysis.

    Appendix D presents in tabular format the results of tests carried out on the samples taken.

    The test results show that the fuel present in tanks Nos. 37 and 39 when the vessel arrived at Sept-Îles was not the same as the fuel that was taken aboard at Singapore.

    1.18 Fuel and Diesel Engine Performance

    For good combustion to occur in the cylinder of a diesel engine, the correct proportions of air and fuel must be brought together at the right moment in the engine cycle.

    If the fuel delivered to the cylinder does not meet the fuel specifications for that engine, and the fuel used for the generators in fact did not, ignition may be delayed, after-burning may occur, combustion will be poor, and deposits of soot and ash will build up in the engine.

    Problems associated with bad ignition include damaged and broken rings, cracked piston crowns, blow-by, damaged liner lubricating oil film leading to increased wear, a further lowering of engine performance, and increased NOx emissions.

    Typically, after-burning will reduce engine efficiency, increase fuel consumption, and cause higher exhaust temperatures with more CO, unburnt hydrocarbons, and soot.

    A high concentration of sediment in the fuel delivered to the engine will result in clogged fuel filters; finer sediments may be carried through and result in wear of the fuel pump and injectors.

    1.19 Port State Control Inspection

    On arrival at Sept-Îles, the "PAL WIND" was subjected to a Port State Control inspection. At that time, 47 deficiencies were noted. These included a soiled engine-room, missing self-closing sounding pipes, damaged emergency generator radiator, electrical fittings improperly attached to the ship's structure, lifeboats which were missing contents, expired items in first-aid kits, and improperly secured engine-room vent flaps.

    2.0 Analysis

    2.1 Towing Systems

    Because the critical characteristic of a towing wire is its breaking strength in relation to the forces which it will experience in service, the "TERRA NOVA SEA" used a tow-line comparable in size and type to that adopted by the Canadian towing industry.

    Although a tow-line of considerable length was payed out on the first towing attempt, it did not absorb the shock created by the heavy seas. The use of heavy equipment on the third attempt proved successful. The anchor cable which was used as a chain bridle sagged under its own weight and provided a catenary (buffer) to absorb the relative motion between the tug and the towed vessel in the rough sea.

    Because the bridle legs were not reeved through side fairleads but through the forward centre fairlead, there was a reduction in the directional control of the vessel being towed and an increase in towing resistance.

    2.2 Marine Diesel Oil Quality

    Analysis of the densities of the MDO and the HFO taken at Singapore and of the densities of the fuel in the vessel's tanks at Sept-Îles would suggest that the vessel's fuel was a mixture of MDO and HFO.

    The TSB laboratory test results (see Appendix D) show a viscosity at 40°C of 65.2 in No. 37 settling tank, of 61.9 in No. 39 day tank, and of 80.9 in the header tank. The barge MDO sample indicated a viscosity of 6.81 at 40°C.

    A further indication that the MDO and HFO were mixed is that the MDO delivered by the barge had »0.02% water and sediments and an ash content of 0.003% by mass. Tests indicate that tanks Nos. 37 and 39 and the header tank had much higher levels.

    Given the nature of the ash, it is likely that this contamination was introduced by mixing HFO with MDO. It could also have been caused by the condition of the vessel's fuel tanks.

    The high concentration of water and sediment in the header tank and the continuing dirty generator filter problem would also suggest that the purifier had not been used for some time, or that the purifier had been bypassed.

    2.3 Marine Diesel Oil - Quantity and Consumption

    Although the records of the vessel's daily consumption of MDO may at first seem contradictory and irreconcilable, it appears that the vessel's true daily consumption was between 3.16 and 3.18 tonnes (see section 1.14).

    At this daily rate, the vessel had consumed more than the total quantity of MDO aboard since leaving Singapore. Even if allowance is made for amounts traditionally "up the chief engineer's sleeve", it is scarcely possible that these would account for the 19 tonnes, approximately, which remained on board on arrival at Sept-Îles.

    As is also apparent from scientific testing of the fuel, at least some of the fuel remaining on board at Sept-Îles was obtained by mixing fuels.

    2.4 Fuel and Generator Engine Problems

    Because the vessel had very little MDO fuel remaining at the time of the occurrence and had had a rough crossing of the Atlantic, it is possible that the proportion of sediment in suspension in the fuel tanks was higher than usual.

    The most likely origin of the sediment was fuel contamination resulting from the practice of mixing fuels.

    The problems which led to the breakdown of the generator prime movers were not new: the generator service records revealed a history of fuel contamination, choked fuel filters, malfunctioning fuel injectors, and heavy wear of cylinder liners and piston rings.

    3.0 Findings

    1. Samples of the marine diesel oil (MDO) analyzed by the TSB Engineering Laboratory indicate that the fuel supplied in Singapore was within the specifications for the SKL diesel engines.
    2. The fuel in the day, settling, and header tanks at the time of the occurrence was not within the specifications required for the SKL engines, nor was it comparable to the MDO supplied in Singapore.
    3. The fuel in the header tank was found to be contaminated with water and sediments.
    4. The two SKL generators were found to be in very poor condition when opened up by the engine manufacturer's representative.
    5. A Port State Control inspection of the vessel uncovered numerous deficiencies with the vessel and the life-saving equipment on board.
    6. Under very severe weather conditions and in close proximity to land, the crew of the tug "TERRA NOVA SEA" was able to take the disabled "PAL WIND" in tow and avert what otherwise might have been a more serious occurrence.
    7. The tow-line used by the tug was comparable in size and type to that adopted by the Canadian towing industry.
    8. The initial tow-line did not absorb the shock created by the heavy seas.

    3.1 Causes and contributing factors

    The "PAL WIND" became disabled because the fuel used for the generators did not comply with the manufacturer's specifications. The sub-standard condition of generators Nos. 1 and 2 also contributed to this occurrence.

    4.0 Safety Action

    The Board has no marine safety recommendations to issue at this time.

    This report concludes the Transportation Safety Board's investigation into this occurrence. Consequently, the Board, consisting of Chairperson John W. Stants, and members Zita Brunet and Maurice Harquail, authorized the release of this report on .

    Appendices

    Appendix A - "PAL WIND" Simplified Marine Diesel Oil System

    Appendix A. PAL WIND Simplified Marine Diesel Oil System
    Image
    PAL WIND Simplified Marine Diesel Oil System

    Appendix B - SKL Diesel Generator Fuel Specifications

    SKL Engines

    The following requirements for fuel quality have been made by SKL for the VD 26/20 AL-2 engine in the operating instructions manual:

    Property Unit Value
    Mechanical impurities none
    Density at 15°C g/cm³ £ 0.900
    Viscosity at 20°C
    at 37.8°C
    cSt £ 25
    £ 15.7
    Boiling point °C ³ 200
    Boiling process up to 350°C % in volume ³ 75
    Flash point in a closed
    crucible to Pensky-Martens
    °C ³ 65
    Carbon residue to Conradson % in weight £ 1.5
    Maximum setting point °C +5
    Paraffin separation point °C £ +15
    Sulphur % by weight £ 1.8
    Hard asphalt % by weight £ 0.5
    Water % by weight £ 0.25
    Ash % by weight £ 0.02
    Neutralization number mg KOH/g £ 0.1
    Ignition quality: cetane # ³ 30

    Appendix C - Marine Fuels - Common Terms and Explanatory Notes

    The following table gives a list of common names used when referring to marine fuel grades. This list is not all inclusive and is intended to acquaint the reader with the terms used in this report. The table is followed by an explanation of refinery terms and of fuel-related nomenclature.

    Most Common Name Typical Density Range kg/m3 @ 15°C Other Names
    Gas Oil 820 to 880 Light Diesel Oil
    Light Marine Diesel Fuel
    Marine Diesel Light
    Marine Diesel Medium
    Marine Diesel 840 to 920 Marine Diesel Fuel
    Marine Diesel Oil (MDO)
    Marine Diesel Heavy
    Heavy Diesel Oil
    Marine Diesel Fuel Oil
    Heavy Fuel 930 to 1020 Marine Fuel Oil
    Heavy Fuel Oil (HFO)
    Intermediate Bunker Fuel Oil
    Thin Fuel Oil
    Bunker Fuel
    Bunker "C"

    Explanatory Notes on Refinery Production of Marine Fuels and Definitions of Terms Used in the Report

    1. Petroleum Fuels

    Petroleum fuels used in the main and auxiliary machinery of ships are produced from crude oil. Crude oil, when it arrives at a refinery, consists of a mixture of hydrocarbons ranging from light volatile gases to heavy residues. The amount of each type of hydrocarbon present in the crude oil varies greatly depending upon the source of the crude.

    The refining process, in a series of steps, separates the crude oil into a number of products distinguished by their differences in viscosity, density, chemical composition, and other properties. The first step in the process is known as atmospheric distillation. Heated crude oil is fed into a fractioning tower where the lighter fractions with the lowest boiling point rise to the top and are drawn off. Those with higher boiling points are drawn off at different points in the fractioning column. Products produced at this step, in order of increasing boiling point, include gas, naphtha, gasoline, chemical feedstock, gas oil, diesel oil, and fuel oil. These products may undergo further treatment to meet consumer requirements.

    To avoid the cracking of heavier hydrocarbons and the production of undesired materials, the temperature in the atmospheric tower is limited to about 370°C.

    The residue from the atmospheric process is used as the feedstock for the vacuum distillation process or fed directly to the cracking processes. At this step, more gas oil, diesel oil, and fuel oil are produced, the residue being fed into the cracking process.

    The cracking process aims to alter the molecular structure of the feedstock and thus obtain more of the lighter fractions from the residue of the distillation process. Catalytic cracking, hydrocracking, and thermal cracking or visbreaking are the processes used depending upon the feedstock.

    2. Density

    Density is defined by ASTM-D1298/IP-160 as the mass of liquid per unit volume at 15°C. In the marine industry, it is generally reported in kilograms per litre (kg/L) or kilograms per cubic metre (kg/m3) at 15°C.

    3. Viscosity

    Absolute viscosity is defined as a fluid's resistance to flow. Kinematic viscosity at a given temperature is equal to the absolute viscosity divided by the density of the fluid at that temperature and is expressed in centistokes (cSt)@ X°C. When the viscosity of a marine fuel is quoted, it is the kinematic viscosity which is being given.

    4. Ash

    Ash will contain various quantities of the following elements: aluminium, calcium, iron, nickel, silicon, sodium, and vanadium. Poor fuel handling both ashore and on board a ship can increase the quantity of ash-forming elements present. Sodium can be introduced from salt-water contamination, iron from rusty tanks or pipelines, and aluminium and silicon from dust, dirt, or poor refining processes. Fuels with high concentrations of ash-forming contaminants will promote abrasive wear in an engine.

    5. Water Content

    Water is the most common contaminant of fuel oil. Water in the fuel is generally emulsified and settles out over a period of time. Water reduces the fuel's net specific energy and increases the owners' costs.

    6. Sludge

    Sludge is the term used when referring to the insoluble material which separates out of the fuel in storage. It may be derived from the fuel itself in the form of carbonaceous material or wax. It may also be derived from contamination in the form of water, inorganic material (scale, rust, etc.), or organic material such as fibrous matter, etc.

    7. General

    Fuels used on ships, whether distillate or residual, fall into a number of grades and are usually defined by their viscosity. The names applied to each grade of fuel vary from one area of the world to another. The three main grades are gas oil (GO), marine diesel oil (MDO), and residual fuel.

    GO is a light distillate which contains no refinery residuum and is virtually free of ash-forming materials.

    MDO is a distillate with a higher boiling point than GO. In the Middle and Far East, marine diesel fuel may be a blend containing 5 to 10 per cent residual fuel, thus it will be black in colour.

    Barges, etc. used to supply fuels to vessels at anchor in the Middle and Far East regions do not normally have dedicated tanks for diesel oil and residual fuel. Tanks may be used for diesel oil or residual fuel, thus some mixing of fuel types may occur as the tank is switched between residual fuel and diesel oil.

    Residual fuel is a blend of the residuum from the refining processes and lighter distillate to give the desired viscosity. It is the cheapest grade for marine use.

    Appendix D - Laboratory Test Results

    SAMPLE DENSITY g/mL @ 15°C VISCOSITY cSt @ 40°C ASH % by mass WATER & SEDIMENT %
    MDO Barge Sample 0.8687 6.81 0.003 »0.02
    HFO Barge Sample 18/08/94 0.9739 211 1.7 0.10
    Tank No. 35 Gas Oil 0.8585 3.96 - 0.2
    Tank No. 37 Settling Tank MDO 0.9195 65.2 0.20 4.4 (½ H2O)
    Tank No. 39 Day Tank MDO 0.9183 61.9 - 3.0
    Header Tank (Fuel which had been removed) 0.9403 78.9 1.9 50 (¾ H2O)
    Header Tank (Fuel in the tank) 0.9347 80.9 - 44
    No. 1 Generator Filter 0.8624 4.54 - 0.25
    No. 2 Generator Filter 0.8613 4.25 0.003 0.15
    HFO Purifier 0.9542 275 3.0 2.4 (½ H2O)
    MDO Purifier - - 23 -

    The full report is available from the Transportation Safety Board of Canada upon request.

    Appendix E - Glossary

    A
    aft
    AST
    Atlantic standard time
    C
    Celsius
    CCG
    Canadian Coast Guard
    CCGS
    Canadian Coast Guard Ship
    CGRS
    Coast Guard Radio Station
    CO
    carbon monoxide
    cSt
    centistoke(s)
    ECAREG
    Eastern Canada Traffic Zone Regulations
    F
    forward
    g/cm3
    gram(s) per cubic centimetre
    g/mL
    gram(s) per millilitre
    GO
    gas oil
    HFO
    heavy fuel oil
    H2O
    water
    IMO
    International Maritime Organization
    kg/L
    kilogram(s) per litre
    kg/m3
    kilogram(s) per cubic metre
    kW
    kilowatt(s)
    m
    metre(s)
    M
    nautical mile(s)
    MDO
    marine diesel oil
    mg
    KOH/g milligram(s) of potassium hydroxide per gram
    NOx
    nitrogen oxide
    SI
    International System (of units)
    TSB
    Transportation Safety Board of Canada
    UTC
    Coordinated Universal Time
    °
    degree(s)