Pipeline Investigation Report P00H0037

Natural gas pipeline rupture
Westcoast Energy Inc.
762-millimetre T-South Mainline, Mile Post 569.9
Near the Zopkios Rest Stop at Exit 217
Coquihalla Highway, British Columbia

The Transportation Safety Board of Canada (TSB) investigated this occurrence for the purpose of advancing transportation safety. It is not the function of the Board to assign fault or determine civil or criminal liability. This report is not created for use in the context of legal, disciplinary or other proceedings. See Ownership and use of content. Masculine pronouns and position titles may be used to signify all genders to comply with the Canadian Transportation Accident Investigation and Safety Board Act (S.C. 1989, c. 3).

Table of contents

    Summary

    At 0250 Pacific standard time on 07 August 2000, a rupture occurred at a localized hard spot on the Westcoast Energy Inc. 762-millimetre outside diameter T-South Mainline at Mile Post 569.9 near the Zopkios rest stop at Exit 217, Coquihalla Highway, British Columbia. Several vehicles at the rest stop were damaged as a result of thrown debris from the explosion. There were no injuries. The Coquihalla Highway was closed to traffic for 3 ½ hours following the rupture.

    Factual information

    At approximately 0250 Pacific standard time (PST)Footnote 1, a rupture occurred on the 762-millimetre (mm) T-South Mainline (mainline) at Mile Post (MP) 569.9 near the Zopkios rest stop at Exit 217 on the Coquihalla Highway, British Columbia. The rupture location is approximately nine kilometres south of the Coquihalla Highway toll booth (toll booth).

    At approximately 0300, Westcoast Energy Inc.'s (Westcoast) gas controller in Vancouver (gas controller) became aware of a rate of pressure change event at Compressor Station 8B, first recorded by the Supervisory Control and Data Acquisition (SCADA) system at 0250. Since the rate of pressure change recorded by the SCADA system was under 207 kilopascals (kPa) per minute, this change was recorded as an event and not an alarm situation. When the gas controller became aware of the event message, he began to investigate the reason for it.

    At the same time that the gas controller was beginning his investigation, the toll booth clerk had received a report from a motorist that there had been a possible explosion near the Zopkios rest stop and that there was debris on the highway. The toll booth clerk had limited knowledge of the Westcoast system and its proximity to the Coquihalla Highway near the rest stop.

    At 0308, the toll booth clerk decided to stop all southbound traffic at the toll booth and alerted the Royal Canadian Mounted Police (RCMP) detachment in Hope, British Columbia. The RCMP immediately called the gas controller to advise that an occurrence had been reported and that Westcoast's pipeline may be involved. This call from the RCMP confirmed to the gas controller that a pipeline rupture had probably occurred. He began to request assistance in dealing with the emergency and to determine the course of action. Within the next five minutes, the RCMP established road blocks both upstream and downstream of the rupture site.

    Because of pressure drops at Compressor Stations 8A and 8B, the gas controller determined that the rupture had occurred on the mainline and began to take corrective action by remotely closing the mainline bypass valve at Compressor Station 8B and stopping the compressor unit at Compressor Station 8A.

    The isolation of both the mainline and the mainline loop at Compressor Station 8B was completed 40 minutes after the line break when the Compressor Station 8B line break control logic automatically closed the mainline loop bypass valve at that station. The isolation of both the mainline and the mainline loop at Compressor Station 8A was completed 42 minutes after the line break when the operator at Compressor Station 8A, on the instruction of the gas controller, closed the mainline and mainline loop discharge and bypass valves.

    At 0402, the operator at Compressor Station 8B put that station in local control and reset the line break panels. As a result, the mainline bypass valve began to open allowing gas into the ruptured line. The station operator immediately put the line break panel back into remote and the bypass valve closed automatically after several minutes.

    At 0408, the operator at Compressor Station 8A inadvertently opened the mainline discharge and bypass valves at that station while trying to re-establish flow in the mainline loop as directed by the gas controller. When the operator realized that flow had been re-established in the mainline instead of the mainline loop, he immediately shut the appropriate valves.

    The line break site was further isolated 1 ½ hours after the rupture had occurred when the sectionalizing valve at MP 556.5 was closed. Twenty-three minutes later, flow was resumed in the mainline loop between Compressor Stations 8A and 8B. Approximately 3 ½ hours after the rupture had occurred, the Coquihalla Highway was re-opened to traffic.

    The TSB Engineering Branch determined that shallow surface pitting corrosion had occurred at the four o'clock position coincident with a localized area of higher hardness, or hard spot, on the exterior surface of the pipe (report LP 081/00). A crack, which had initiated in the hard spot, had been present for some time but was not actively growing at the time of the rupture. The TSB Engineering Branch determined that the pipe finally failed as a result of the extension in overstress of this pre-cracked region.

    The SCADA records indicate that, at the time of failure, the mainline had been operating for several days at a steady state of pressure of 5 599 kPa. The maximum allowable operating pressure (MAOP) for this section of line was 6 453 kPa. The SCADA records also indicate that the rate of pressure change at Compressor Station 8B never exceeded 69 kPa per minute.

    Rates of pressure change of less than 207 kPa per minute can occur during normal operating conditions and are therefore recorded by the SCADA system as an event. Unless such changes are part of a sequence of alarms, they do not normally indicate a line break situation. Changes equal to or greater than 207 kPa per minute may indicate a line break situation and are recorded as an alarm. Low pressure may also indicate a line break situation and would also be recorded as an alarm. In an alarm situation, the gas controller would receive a flashing message, colour-coded as to severity of the alarm, in a dedicated window on the control monitor. Although an audible annunciation feature is also associated with alarms, this feature had been disabled before the rupture.

    The section of the mainline in which the rupture occurred had been manufactured in 1957 by A.O. Smith Corporation of Milwaukee, Wisconsin, United States, according to pipe standard API-5LX52. This section of line had been installed and hydrostatically tested in 1957 to a minimum pressure of 8 067 kPa. The pipe had been coated with an asphalt enamel and an inner and outer glass wrap. No coating remained on the section of pipe in which the fracture originated. However, the coating on the pipe sections both upstream and downstream of the rupture location appeared to be intact and adherent to the pipe.

    This section of the mainline had been inspected for metal loss in 1981, 1991 and 1998 using a magnetic flux leakage internal inspection tool. Following each inspection, all major anomalies and a sampling of minor anomalies were inspected and either re-coated or replaced. In the vicinity of the rupture location, the inspections had revealed two dents and some minor corrosion.

    In-line inspection tools have been available for several years to detect hard spots using magnetic flux leakage technology. However, the tool used by Westcoast during the 1981, 1991 and 1998 in-line inspections was designed to detect metal loss and not hard spot anomalies.

    The cathodic protection (CP) system for the mainline was installed shortly after the pipeline was constructed. Initially, the CP system between Compressor Stations 8A and 8B consisted of impressed current groundbeds at MPs 526.5 and 598.6. The line was bonded to the Trans Mountain Pipe Line Company Ltd. (Trans Mountain) oil pipeline wherever the two pipeline systems crossed. Currently, the CP system between Compressor Stations 8A and 8B consists of impressed current groundbeds at MP 541.1 (constructed in 1971 and upgraded in 1982), MP 566.7 (constructed in 1974 and rebuilt in 1986), MP 582.88 (constructed in 1980 and upgraded in 1984) and MP 588.4 (constructed in 1964 and upgraded in 1980 and the mid-1990s). The first three groundbeds are owned by Westcoast while the fourth groundbed is shared with Trans Mountain oil pipelines. In 1963, a groundbed had been installed at MP 565.6 but was soon found to be inadequate. It was destroyed in 1972 when the mainline loop was constructed. The groundbed at MP 566.7 was constructed in 1974 to replace it.

    During the last 10 years of operation, pipe-to-soil potential surveys were conducted by Westcoast between Compressor Stations 8A and 8B in 1990, 1991, 1992, 1993, 1994, 1995, 1996, 1997 and 1998. The surveys indicate that, in 1995, 1997 and 1998, the CP current reaching the ruptured section of pipe was lower than the industry standard. Westcoast indicated that, when areas of insufficient CP were detected, it would evaluate the in-line inspection logs to determine whether remedial action was required. Where required, suitable remedial action, such as increasing the rectifier output or adding or replacing groundbeds, would be taken.

    On 01 July 1996, a leak occurred at MP 612.8 on the mainline. A metallurgical report prepared by C & M Engineering Ltd. indicated that the leak had initiated in a hard spot created during the original pipe manufacture. This section of pipe had also been manufactured in 1957 by A.O. Smith Corporation of Milwaukee.

    Following the July 1996 occurrence, Westcoast reviewed the CP values along the mainline, and where necessary, reduced the rectifier voltage to provide a maximum instant "off" potential of minus 1.1 volts relative to a copper/copper sulphate reference electrode at locations where the negative lead was attached to the pipeline. Westcoast also conducted an in-line inspection for hard spots of the mainline between Compressor Station 9 and Huntingdon, British Columbia. Five locations were identified, excavated and inspected for abnormal hardness and cracking. Neither abnormal hardness or cracking were detected at any of those locations. No other sections of the mainline had been internally inspected for hard spots before the rupture at MP 569.9 in August 2000.

    Analysis

    Although a rupture should have resulted in a rate of pressure change equal to or greater than 207 kPa per minute, the rate of pressure change at Compressor Station 8B never reached this alarm situation. This was probably due to a combination of the pipeline configuration between Compressor Stations 8A and B, spare horsepower at Compressor Station 8A, Compressor Station 8B being bypassed, and the location of the rupture. The first two factors probably created a large flow reversal on the mainline at Compressor Station 8B and a large flow increase on the mainline loop. Currently, Westcoast's line break detection system has not been configured to signal a rupture based on changes in flow rate.

    In addition to information received through the SCADA system, notification from an outside source can often confirm that a rupture has occurred to the controller. Although the toll booth is not located immediately adjacent to Westcoast's mainline, it is situated in a predominately uninhabited area where motorists could identify problems they may have encountered along the Coquihalla Highway. If personnel at the toll booth had been more aware of Westcoast's pipeline system and its proximity to the Coquihalla Highway, they may have been able to deduce that a pipeline rupture had occurred and could have immediately alerted the gas controller. The emergency response to this rupture could therefore have been initiated approximately 10 minutes before it was.

    The most common cause of failures associated with hard spots on operating pipelines has been hydrogen stress cracking. For hydrogen stress cracking to occur, the following three conditions must be met: a steel of high hardness and high strength, sufficient sustained tensile stresses, and a source of atomic hydrogen. In this occurrence, cracking probably initiated due to the combination of the high strength and high hardness of the hard spot on the pipe, the presence of atomic hydrogen, probably from the CP reaction, and a sustained tensile stress due to the internal operating pressure of the pipeline. The shallow external corrosion which occurred coincident with the hard spot would have increased the stress in the pipe at that location and probably facilitated the initiation of surface cracks.

    Although the line was coated, asphalt coatings can, over time, degrade to the point that water can migrate through the coating. CP current can also penetrate asphalt coatings but, if the levels are insufficient, the underlying steel will begin to corrode. The presence of the shallow external corrosion indicates that there were periods of time during the operating history of the pipe when the steel beneath the coating was exposed to electrolytes which sustained the corrosion process, and the CP levels at the pipe were insufficient to prevent corrosion. Insufficient CP levels could have occurred with decreasing rectifier efficiencies or with varying resistivities of local soil conditions.

    The pitting corrosion coincident with the hard spot was too shallow to have been identified as an area requiring remedial work during the metal loss in-line inspections of the mainline.

    The hard spot probably resulted from inadvertent quenching during the manufacturing process in 1957 and was not large enough to have caused local flattening which could have been visually detected during the rolling process.

    Findings

    Findings as to causes and contributing factors

    1. The combination of high strength and high hardness of the hard spot on the pipe, the presence of atomic hydrogen, probably from the cathodic protection reaction, and a sustained tensile stress due to the internal operating pressure of the pipeline allowed cracking to initiate.
    2. Corrosion pitting, which occurred during periods of insufficient cathodic protection and was coincident with the hard spot, probably facilitated the initiation of cracking.
    3. The pipeline ruptured as a result of the extension in overstress of this pre-cracked region.
    4. The hard spot was not large enough to have caused local flattening which could have been visually detected during the rolling process.
    5. An in-line inspection tool to detect hard spot anomalies on the pipeline had not been run between Compressor Stations 8A and 8B.
    6. Westcoast's in-line inspection program of the mainline was designed to detect metal loss and not hard spot anomalies.

    Findings as to risk

    1. Westcoast's line break detection system was configured to detect a rupture based on a rapid rate of pressure change or low pressure, neither of which occurred at the time of the rupture, and not on changes in flow rate, which did occur at the time of the rupture.

    Other findings

    1. Personnel at the toll booth did not have sufficient knowledge about Westcoast's pipeline system and its proximity to the Coquihalla Highway to enable them to notify the gas controller as soon as they became aware of the explosion near the rest stop.
    2. The audible annunciation feature had been disabled so that, in the event of an alarm situation, the gas controller would have to rely solely on a visual annunciation of high-, medium-, and low-priority alarms.

    Safety action

    Safety action taken

    Subsequent to this rupture, Westcoast took the following actions:

    1. completed in-line inspections for hard spots of the sections of the mainline between Compressor Stations 6B and 7, Compressor Stations 8A and 8B, and Compressor Station 9 and Huntingdon;
    2. completed an aerial patrol of the mainline and the mainline loop from Compressor Station 6A south to Huntingdon using infrared imaging technology to determine whether there were any leaks;
    3. implemented a manual save function on its SCADA system to preserve a running seven days of SCADA data;
    4. revised its line break procedures to assist gas controllers in diagnosing line break situations;
    5. incorporated a task check list in its line break procedures;
    6. made presentations to the personnel at the toll booth concerning its pipeline system; and
    7. upgraded the SCADA system to ensure that the audible annunciation feature for high-priority alarms, such as those occurring for line break situations, cannot be disabled.

    In addition, Westcoast intends to proceed with the following corrective actions:

    1. complete in-line inspections for hard spots of the remaining three sections of its mainline containing pipe manufactured by A.O. Smith Corporation;
    2. create and post site-specific line break procedures in the Gas Control Centre and at each station; and
    3. improve its line break detection methods by experimenting with the use of gas flow rate changes.

    This report concludes the Transportation Safety Board's investigation into this occurrence. Consequently, the Board authorized the release of this report on 10 July 2001.

    Appendices

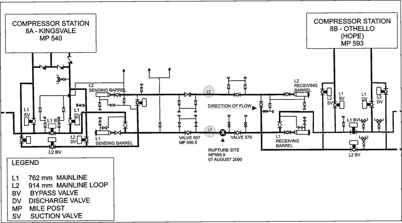
    Appendix A - Schematic of T-South mainline and loop between compressor stations 8A and 8B

    Image
    Image of the schematic of T-South Mainline and Loop between Compressor Stations 8A and 8B