Marine Investigation Report M98M0078

Capsizing
a mussel-harvesting Punt
Tracadie Bay, Prince Edward Island

The Transportation Safety Board of Canada (TSB) investigated this occurrence for the purpose of advancing transportation safety. It is not the function of the Board to assign fault or determine civil or criminal liability. This report is not created for use in the context of legal, disciplinary or other proceedings. See Ownership and use of content. Masculine pronouns and position titles may be used to signify all genders to comply with the Canadian Transportation Accident Investigation and Safety Board Act (S.C. 1989, c. 3).

Table of contents

    Summary

    The unnamed outboard-motor-powered punt left Tracadie Harbour, Prince Edward Island, to harvest mussels in Tracadie Bay. While returning to port with a full load of mussels, the motor failed. The punt drifted broadside to the waves, shipping water, for about twenty minutes before capsizing. Both occupants were thrown into the water and drowned.

    Factual information

    Name "Unnamed"
    Flag Canada
    Type Flat-bottomed mussel-harvesting punt
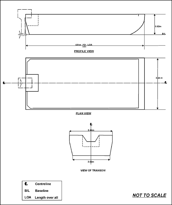
    Length 4.9 mFootnote 1
    Breadth 2.44 m
    Depth 0.81 m
    Draught (loaded) 0.51 m
    Built East Isles Metal Fab Inc.
    Grandview, P.E.I.
    Propulsion 44.7 kilowatt (60 horsepower), Yamaha outboard engine
    Number of Crew 2
    Owner George Alvin Hambly
    Murray River, P.E.I.

    The mussel harvesting punt is an aluminum, open, flat-bottomed boat. The bow and stern are similar. The punt does not have a double bottom or accommodation, and no seating is provided for those on board. It is powered by a 60 horsepower outboard motor controlled and steered from a station at the bow on the starboard side. The vessel's basic layout is shown in Appendix A.

    The outboard motor is mounted in a deep well at the centre of the transom. The punt is equipped with a hydraulic articulated hoist on the centreline near the bow. The hoist is powered by a pump driven by a portable gasoline engine mounted at the stern on the port side. The punt is also equipped with a non-automatic electric bilge pump with a capacity of about 1.57 L/s. The punt is not equipped with a radio.

    In 1998 the vessel was built to the owner's verbal specifications at a local welding shop. No plan was produced. The punt was neither licensed nor registered. The punt is considered a fishing vessel for regulatory purposes. The punt was not required to be inspected by Transport Canada (TC) and had not been inspected. No stability data were prepared, nor were any required by regulation.

    History of the voyage

    On 22 October 1998, at about 0730 Atlantic daylight time, the mussel-harvesting punt left Tracadie Harbour.Footnote 2 A few minutes later, the operator and his assistant met with the manager of a local mussel farm in Tracadie Bay and were shown which mussel growing lines to harvest.Footnote 3 The operator was instructed to harvest the equivalent of 16 tanks (tote-boxes or totes) of mussels during the day.Footnote 4 The mussel farm manager then left and went to another area of the bay.

    The operator and his assistant harvested a full load of mussel socks. Because the breadth of the mussel punt would not allow two rows of totes side by side in the punt, the operator usually placed three totes in a row on the centreline and the equivalent of another two and a half totes of mussels were stowed in the bottom of the punt in socks. This load resulted in the mussel punt having a freeboard of about 30 cm, which was consistent with the way the punt was routinely operated.Footnote 5

    At about 0900 the northerly wind picked up and waves gradually increased in size. They reportedly reached a height of 30 to 60 cm.

    Loading of the punt was finished shortly before 0930. The motor was started and the punt headed toward the dock in Tracadie Harbour. A few minutes later, the outboard motor failed. Two other fishermen saw the punt drifting broad-side to the sea for about twenty minutes. However, since they knew that the motor of the punt had a history of intermittent mechanical problems and over-revving and there was no distress signal displayed, they did not render assistance. The punt eventually capsized and both crew members were thrown into the water. Each was wearing heavy rubber pants, a jacket and boots. Neither was wearing a life jacket or flotation device, and there were none on board.

    When the other fishermen noticed that the punt had capsized, they headed towards it. They were on-scene within a few minutes but did not see survivors. At 0951, Rescue Coordination Centre Halifax was notified and a Canadian Coast Guard helicopter was dispatched from Charlottetown. The helicopter was on-scene and searching the area some 25 minutes later. The helicopter did not locate survivors.

    At about 1313 the same day, Royal Canadian Mounted Police (RCMP) divers recovered the bodies of the two crew members. The cause of death was determined by autopsy to be asphyxia due to drowning.

    The punt was recovered the following day. The outboard motor was in the raised position.

    Certification, Training and Experience

    The operator had been engaged in this industry for about two years and had owned the punt for approximately five months. Neither of the victims had, or was required to have, a certificate of competency to operate the vessel. They had no formal marine training, had not attended a marine safety course, and were not obliged to have undertaken any such training.

    Analysis

    Mechanical Problems

    Reportedly, the punt's outboard motor had a history of intermittent failures. Transom height, the point where the motor is mounted, is 40 cm above the waterline when the punt is empty. However, it was reported that the punt was routinely operated with the deep well 3 cm below the waterline when the punt was returning fully loaded. The proximity of the powerhead to the waterline may have caused water to enter it when the height of the waves increased. The operational problems of over-revving and intermittent failures were consistent with the location of the motor.

    Following the occurrence, the outboard motor was disassembled and inspected. No internal damage was found. Fuel was found in the fuel lines, fuel pump and fuel filter bowl. Water was found in the float bowls of the middle and lower carburetors. When fresh fuel and a battery were connected, the motor fired up and ran well on all cylinders. The lack of internal damage, combined with the ease of starting with fresh fuel and battery, confirms that the motor was not running, or at least not running at full power, when it was suddenly immersed at the time of the capsize. The fact that the punt was recovered with the outboard motor in the raised position also indicates that the motor was not running.

    The fuel found in the lines and fuel filter bowl indicated that fuel starvation was not likely. However, this fuel was found to be very stale and it may have contributed to the difficulties experienced with the motor.

    Stability

    Review of the hull dimensions, cargo distribution, related draughts and freeboards, shows that the punt had positive intact transverse stability when empty and when fully loaded. There are no regulations that govern the draught (and by extension the freeboard) or trim to which a fishing boat such as this harvesting punt can be safely laden. Consequently, mussel harvesting punts have no load lines and the loading of these vessels is left to the judgement of the operators.

    In this occurrence, the weight of the load was such that the punt had a remaining freeboard of about 30 cm. Such a freeboard was consistent with a cargo of approximately 5 tonnes, and was sufficient to prevent immersion of the deck edge (gunwale) up to an angle of heel of some 14° in calm water conditions. The location of the filled insulated tote boxes on the centreline of the hull, in conjunction with the symmetrical distribution of the remainder of the cargo of mussel socks to port and starboard, ensured the punt was upright and possessed a positive transverse metacentric height (GMt) of approximately 67 cm.Footnote 6

    The distribution of the mussel cargo and filled tote boxes meant that only the forward and after ends inside the undecked hull remained unobstructed and clear. Any shipped water would be retained mainly at the ends, where it would be free to flow across the full breadth of the hull.

    The presence of loose or "slack" water inside a hull has a detrimental effect on transverse stability, as it causes a virtual rise and fluctuation in the position of a vessel's vertical centre of gravity. In general, this "free surface effect" is not fully understood by fishermen, and few appreciate the substantial reduction of initial transverse stability when water, just a few inches deep, is shipped and retained onboard. When stability is so reduced, a vessel is more vulnerable to the influences of the prevailing sea conditions. Additional downflooding from intermittent immersion of the gunwale causes the heeling and free surface effects to increase, further reducing transverse stability.

    The detrimental free surface effect of as little as a 7.5 cm depth of water in the empty spaces fore and aft of the cargo, would reduce the punt's virtual GMt to about 30 cm. In addition, the weight of the water inside the hull would reduce the freeboard so that gunwale immersion would occur at an angle of 12.5° in calm water.

    The presence of shipped water, combined with the dynamic effects of the vessel's rolling motion, could be expected to cause the punt's cargo to shift transversely on the unobstructed aluminium surface, adversely affecting the punt's transverse stability characteristics. A cargo shift of 10 cm would cause the punt to heel, immersing the gunwale. As more water was shipped, recovery would become progressively retarded and finally impossible, as continuous downflooding would cause the punt to fill and sink. However, the punt did not sink. Sufficient air was trapped in the hull to keep the punt afloat. This suggests that the punt capsized rapidly.

    Capsizing Sequence

    The initial gradual reduction and final sudden loss of transverse stability were most likely brought about by the free surface effect of shipped water, downflooding and dynamic rolling energy while the punt was drifting beam-on to the prevailing waves. When the punt encountered waves approximately twice the height of the static loaded freeboard, the rolling motion increased and caused more water to be shipped and retained onboard. The rolling motion in conjunction with the free surface and lubricating effects of the shipped water most likely caused the cargo tote boxes to shift slightly and led to the sudden loss of transverse stability.

    Use of Personal Flotation Device

    Under the Canadian Small Fishing Vessel Inspection Regulations, a vessel of the type and length of the harvesting punt is required to carry on board, among other equipment, one approved life jacket for each person on board, one approved lifebuoy fitted with 27 m of line, and one watertight can containing six approved self-igniting flares. In this occurrence, neither person on board was wearing a personal flotation device, and there was no such device on board.

    The vessel, being under 15 gross tons, was not inspected by TC nor had she been voluntarily offered for inspection. The owner was under no regulatory requirement to have his vessel inspected. The vessel would not have passed inspection, due to the lack of boat safety equipment on board.

    Another boat was on the scene a few minutes after the accident. However, no survivors were sighted--suggesting that the victims sank rapidly. It is probable that personal flotation devices would have kept the victims afloat until the rescuers arrived.

    Survival Skills and Marine Safety-related Training

    Neither of the persons aboard had received marine safety-related training; neither was required to have done so.

    The Board continues to be concerned with the loss of life associated with the vulnerability of the fishing vessels to marine emergencies.Footnote 7 Concerned that crew's lack of marine emergency training reduces their chance of survival in emergencies, in 1992 the Board recommended to TC that the crews of fishing vessels receive formal training in life-saving equipment and survival techniques.Footnote 8 The Minister of Transport accepted the Recommendation as an interim measure; TC issued Ship Safety Bulletin No. 6/95 on 7 February 1995, which highlighted the importance of Marine Emergency Duties (MED) training to prepare crews to deal with emergencies. However, as MED training of uncertificated personnel is not covered by regulations, the bulletin reiterated that the onus for this training rests with fishing vessel owners and masters.

    Following consultation with industry, TC introduced the Crewing Regulations, which came into force in July of 1997. The regulations require that before any member of the ship's compliment has completed six months on board the ship, he/she has to obtain a certificate of successful completion of training in marine emergency duties at a recognized institution. This initiative would meet the intent of the TSB Recommendation.

    The fishing industry expressed concern that fishers would not be able comply with the training requirement because the demand for training would exceed the capacity of marine schools. Consequently, TC agreed to propose a regulatory amendment to the Crewing Regulations. This amendment would effectively extend by two years the deadline for successful completion of MED training if the fishing vessel does not operate beyond the limits of a fishing voyage Class II. TC anticipates that the proposed regulatory amendment will come into force by early 2001. However, the relevant section of the regulations will not apply to fishers until 30 July 2002.

    Neither TC nor the Department of Fisheries and Oceans knows the exact number of fishers that require basic safety training to satisfy the Crewing Regulations. However, a number of recognized institutions in eastern Canada report that there is little demand by fishers for basic safety training. These institutions also report that while they could now provide more training sessions, the deadline of 2002 may cause a delay in the demand for training and generate a last-minute rush nearer the deadline.

    Findings

    Findings as to causes and contributing factors

    1. The mussel-harvesting punt was fully loaded with about five tonnes of mussels when her outboard motor failed.
    2. The exact cause of the outboard motor failure could not be conclusively determined.
    3. The punt had positive intact transverse stability when empty and when fully loaded.
    4. The punt drifted broadside to the prevailing waves for about 20 minutes, and shipped water.
    5. The free surface effects of the shipped water, a slight shift of cargo and the additional dynamic influences of the wave rolling motions most likely caused the complete loss of righting ability, and the vessel suddenly capsized.

    Findings as to risk

    1. The two occupants were thrown into the water; neither was wearing a personal flotation device, and there was no such device on board. Both persons drowned.
    2. The punt did not have on board the safety equipment required by the Small Fishing Vessel Inspection Regulations.
    3. There are no provisions requiring an operator of a small fishing vessel of 60 gross tons or less to have marine safety-related training, and neither of the persons aboard had ever received such training.

    This report concludes the Transportation Safety Board's investigation into this occurrence. Consequently, the Board authorized the release of this report on .

    Appendices

    Appendix A— Outline General Arrangement of Mussel Punt

    Appendix B— Photographs

    Photo 1. Mussel-harvesting punt at the time of recovery
    Image
    Mussel-harvesting punt at the time of recovery
    Photo 2. Installation of the outboard motor
    Image
    Installation of the outboard motor