Marine Investigation Report M94M0057

Fire - in the cargo-handling conveyor system
of the self-unloading bulk carrier "AMBASSADOR"
Belledune, New Brunswick

The Transportation Safety Board of Canada (TSB) investigated this occurrence for the purpose of advancing transportation safety. It is not the function of the Board to assign fault or determine civil or criminal liability. This report is not created for use in the context of legal, disciplinary or other proceedings. See Ownership and use of content. Masculine pronouns and position titles may be used to signify all genders to comply with the Canadian Transportation Accident Investigation and Safety Board Act (S.C. 1989, c. 3).

Table of contents

    Summary

    In the early morning hours of 31 December 1994, a fire broke out in the conveyor belt system of the "AMBASSADOR" during the unloading of a cargo of rock phosphate. The fire subsequently spread to the vessel's accommodation, and the combined efforts of the ship's crew and several shore-based fire departments were required to bring the fire under control before it was fully extinguished, some 28 hours later. There was no damage to harbour installations, no serious injury and no reported pollution as a result of the fire.

    The Board determined that, when the conveyors were stopped, a section of one of the conveyor belts ignited, probably because the belt was in contact with an overheated roller. The roller probably overheated due to a bearing failure or to being jammed with refuse which ignited after contacting the overheated bearing.

    1.0 Factual Information

    1.1 Particulars of the Vessel

    Name "AMBASSADOR" formerly "CANADIAN AMBASSADOR"
    Official number 221
    IMOFootnote 1 Number 8016653
    Port of registry Port Vila, Vanuatu
    Flag Vanuatu
    Type Self-unloading bulk carrier
    Gross TonsFootnote 2 24,094
    Length 222.5 m
    Breadth 23.17 m
    Depth 15.24 m
    Draught F: 9.35 m
    A: 10.51 m (post-casualty)
    Cargo Rock phosphate (bulk)
    Crew 35, plus 2 supernumeraries
    Built 1983, Port Weller, Ontario
    Propulsion Sulzer marine diesel engine of 6,470 kW (8,796 BHP) driving a single controllable-pitch propeller
    Owners ULS Marbulk Inc., Salem, Massachusetts, USA
    Manager Barber Ship Management Ltd.

    1.1.1 Description of the Vessel

    The "AMBASSADOR" is a self-unloading bulk carrier with accommodation and engine-room located aft. The basic layout is as shown in the General Arrangement Plan (Appendix A, Figure 1). The hull is subdivided longitudinally by four transverse watertight (W/T) bulkheads; a collision bulkhead, one bulkhead at each end of the cargo space and one at the after end of the engine-room.

    1.1.2 Description of the Unloading System

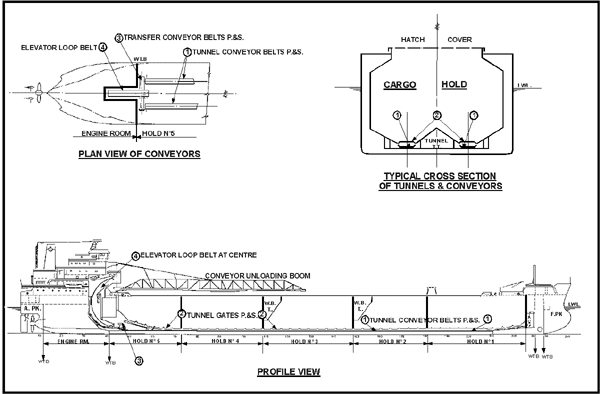
    Unloading is accomplished by opening gates at the bottom of the five hopper-shaped holds and allowing the cargo to fall onto two fore-and-aft conveyor belts which transport the cargo to the transfer and loop belt system at the after end of the cargo space where it is raised to the above-deck unloading boom for discharge over the side. The area in which the belts run under the cargo holds and the space at the after end which houses the loop belt are referred to as the "tunnel" and the "loop belt casing", respectively. The unloading team, under the direction of the chief engineer, consists of the chief officer, senior technician, an operator and three tunnelmen. The operator mans the control room at the forward end of the main deck and monitors the cargo on the discharge boom while the tunnelmen operate the hopper gates to regulate the cargo flow as required by the operator and ensure the safe running of the conveyor system. Communication is by means of radiotelephone (R/T) and a signal light system. All decisions to start or stop the unloading system are taken with the approval of the senior personnel.

    1.2 History of Events

    1.2.1 Prior to the Fire

    Cargo unloading started at 1225Footnote 3

    on 29 December 1994, shortly after the vessel berthed at Belledune and was intended to be continuous. However, the rock phosphate cargo was found to be most difficult to retain on the conveyor belts and this, in conjunction with a drop of some 2 m between the cargo belts and the transfer belts, gave rise to a lot of dust in the vicinity of the transfer conveyors. There were frequent stoppages because spilled cargo had to be shovelled back on to the belts. Finally, although the tunnelmen were wearing paper face masks, the dust became too dense for work to continue, and, at 0115 on 31 December, it was decided to stop the unloading.

    The gates to No. 5 hold, which was being discharged at the time, were closed, and, after inspection of the conveyor system, the crew members left the tunnel area with the intention of returning to resume unloading once the dust had settled. The entire, empty, conveyor system was left running. The operator left his position in the control room and met with the chief engineer on the weather deck to discuss the problem while the tunnelmen proceeded to the control room. A glance through a doorway in the loop belt casing revealed that the dust remained severe, and, because it was believed that the movement of the conveyor system was preventing the dust from settling, the system was stopped at 0205.

    Fifteen minutes later, at 0220 (after personnel had left the area), a heat sensor in the transfer belt area (below and slightly forward of the loop belt) indicated a fire and, at about the same time, smoke was seen emanating from the open top of the loop belt casing.

    1.2.2 Containing the Fire

    After the general alarm went off, the water sprinkler system in the loop belt casing was started and all mechanical ventilation in the tunnel was stopped. The dense smoke prevented personnel from re-entering the area to determine the location of the seat of the fire and to fight the fire, but water from three of the ship's hoses was directed through doorways in the loop belt casing to supplement the sprinklers in an attempt to drench the transfer belt area below. Since all deck hydrants but one were frozen, two of the three hoses were led from hydrants in the engine-room through the accommodation to the loop belt casing.

    The master notified the ship's agent of the fire by telephone. The agent and a shore worker, upon becoming aware of the fire, informed the security personnel at a factory in the port, who in turn alerted the fire department and various other community fire departments in the area. The master then contacted the managers, and the owners, who sent two directors to the scene and reportedly set up shore-based response teams to provide assistance in fire-fighting efforts. The fire chief arrived at 0300, followed by a Canadian Coast Guard (CCG) Ship Safety Branch surveyor at about 0530, and the two company directors later in the day. All assisted the master to a varying degree in fighting the fire and coordinating the efforts of the fire-fighters. The fire chief and the two directors remained on the scene throughout.

    Heat transference through the engine-room bulkheads indicated that the seat of the fire was in the transfer belt area, and its intensification indicated that the application of water through the loop belt casing was unsuccessful. Following discussions between the master, the fire chief and the Ship Safety Branch surveyor, it was decided to attempt direct action by entering the transfer belt area through the hydraulically operated W/T door leading from the engine-room to the lower part of the loop belt casing. At 0625, a party of three persons opened the W/T door. One of them, dressed in standard fire-fighter's clothing and equipped with a spray nozzle hose, entered the loop belt casing. The heat and smoke forced him to withdraw before he could determine the location of the seat of the fire. A couple of areas on the forward bulkhead and loop belt casing in the engine-room later became so heated that paint on the engine-room side began to ignite in patches which was controlled by boundary cooling.

    The heat and smoke also prevented the W/T door from being closed (the local controls having been rendered inaccessible), but the fire door, which was spring-loaded, closed automatically, and this prevented the fire from directly entering the engine-room. Repeated attempts were made to close the W/T door hydraulically using a remote control on the main deck, but this area had also become too hot for personnel. External fire-fighting was continued and supplemented by pumper trucks directing water through the open top of the loop belt casing. Sea water was also pumped into the empty No. 3 hold, running into the tunnel area through the gates and this, in conjunction with the other expended fire-fighting water, flooded the tunnel, eventually immersing the burning longitudinal cargo belts over up to 90 per cent of their lengths.

    At 1100, the colour of the smoke began to change from black to grey, and it was believed that the fire had been brought under control. From that time, numerous attempts were made to reach the seat of the fire, but they were always thwarted by heat and smoke. However, at 1320, as no more smoke could be seen, it was believed the fire had been extinguished. At 1330, the ventilation fans were restarted with the intent of removing smoke and fumes so that persons could enter the space and deal with any remaining "hot spots". Until that time, the fire had been confined to the tunnel and conveyor belt system.

    One hour later, at 1430, before personnel had entered the area, dense smoke again emanated from the loop belt casing and all external fire-fighting was resumed. The fire then burned to a greater intensity with heat transference through bulkheads igniting fires in the accommodation, despite pre-cooling with water. It took some 28 hours after the initial outbreak before the fire was fully extinguished; continuous shore assistance consisting of both personnel and material was provided throughout. The CCG vessel "SIMON FRASER" arrived on the scene shortly before noon on 01 January 1995 and stood by.

    Post-fire examination of the accommodation revealed that some cabin doors were in the open position, which facilitated the spread of fire.

    1.3 Injuries to Persons

    One crew member suffered a minor case of smoke inhalation, and the master had a minor case of frostbite. While attempting to rig a hose on the superstructure, the attending Ship Safety Branch surveyor jumped onto a platform from a height of 0.9 m to 1.2 m (three to four feet), landed on uneven ice, slipped and injured his foot.

    1.4 Damage

    The vessel's self-unloading system was heavily damaged; both of the transfer belts and their associated controls and fittings were burnt out as was the interior of the loop belt casing. Some 25 to 30 m of both the port and starboard fore-and-aft belts was burnt, but the section of the loop belt below the transfer belts was not. The vessel's structure bordering the tunnel in way of No. 5 hold was distorted from the heat. A resulting spill of some 200 to 300 tonnes of cargo had to be cleared from the conveyor system before the fire site could be inspected. Approximately 25 per cent of the accommodation was destroyed in the fire with the balance sustaining smoke damage to differing degrees and some water damage. Paint was blistered on some sections of the forward engine-room bulkheads in patches which were common with the loop belt casing. In contrast, a set of oxyacetylene cylinders was discovered toward the after end of the tunnel, unaffected by the fire.

    There was no damage to shore structures.

    1.5 Vessel Certification

    The "AMBASSADOR" was certificated and manned in accordance with the requirements for a vessel of her type in the trade in which she was engaged.

    1.6 Personnel Certification and Experience

    The master held an Indian Master's Foreign-Going certificate of competency issued in Bombay in 1986 and also held the appropriate Vanuatu licence. He had been going to sea since 1977, employed by the management company since 1987 and in command since 1990.

    The chief officer held an Indian Master's Foreign-Going certificate of competency issued in Bombay in 1988 and also held the appropriate Vanuatu licence. He commenced his sea-going career in 1978 and had been serving as chief officer and with the management company since 1989.

    The chief engineer held an Indian First-Class Motor certificate issued in Bombay in 1982 and also held the appropriate Vanuatu licence. He had been employed as chief engineer since 1982. He had been going to sea since 1974 and employed by the management company since 1986.

    All of the certificated crew (officers) had been trained in shipboard fire-fighting as required by the IMO Standards of Training, Certification and Watchkeeping.

    The shore fire chief was head of the emergency team for both the smelter and fertilizer plant. His training had not included instruction in fighting shipboard fires and his knowledge of vessels had been gained when previously employed on the dock.

    1.7 Resources Available to Fight the Fire

    1.7.1 Vessel

    The "AMBASSADOR" was fitted with fire-fighting equipment as follows:

    Accommodation - 18 dry chemical extinguishers, 16 x 15.24 m (50') lengths of 50 mm (2") diameter fire-hose with nozzles, 2 sets breathing apparatus;

    Tunnel - 2 dry chemical extinguishers, numerous 50 mm (2") diameter rubber washdown hoses;

    Loop Belt Casing - fixed water sprinkler system;

    Machinery Space - 9 dry chemical extinguishers, 4 Halon 1211 extinguishers, 6 x 15.24 m (50') lengths of 50 mm (2") diameter fire-hose with nozzles.

    The vessel's fire detection system included two sensors above the transfer belts, both of which activated the same location indicators situated in the wheel-house and in the engine-room.

    1.7.2 Shore

    Three pumper trucks and some 115 persons involved with seven local community fire departments and/or employed at factories in the port area assisted with the fire-fighting activities.

    There were several fire-hose cabinets containing hoses and hydrants within the port area, but the closest was 150 m from the site of the fire, requiring the use of pumper trucks to boost the water pressure.

    1.8 Shipboard Fire-fighting Capability

    1.8.1 Regulatory Requirements

    The "AMBASSADOR" complied with Vanuatu and Canadian regulations as well as with the IMO Safety of Life at Sea (SOLAS) Regulations which exempt ships carrying low fire-risk cargoes from the requirements to carry fire extinguishing systems in cargo spaces. When the vessel was registered in Canada, the ship's owners had approached the Ship Safety Branch of the CCG with respect to upgrading the fire-fighting capability in the self-unloading system. The position of the CCG was that there was no regulatory requirement for a fixed fire-fighting system in the tunnel and associated areas, and that the CCG could not legally approve or endorse the installation of a system that was not required. The CCG stated that it was very positive in its endorsement of the need for such a regulation, but that the intent was to let the marine industry itself steer the process as to the development of draft requirements. It was hoped that the shipowners would thus endorse the resulting regulations which they had developed themselves. Proposals considered by the owners to fit a remote fire-fighting system in the tunnel area were not followed up because there were no regulatory guidelines and because the forthcoming regulations might render the system obsolete. The only action taken was to fit conveyor belting treated with a fire-retardant agent which was unlikely to be affected by new regulations.

    1.8.2 Equipment Maintenance

    Muster lists indicating the emergency duties of each crew member were posted throughout the accommodation, and weekly emergency musters had been held, during which fire-fighting procedures had been explained. However, the crew had not been drilled in fire-fighting which meant that there had been no testing and proving of the equipment. No effective safety equipment maintenance routine was in place, and reliance on equipment standards being maintained was based upon the successful completion of Safety Equipment Surveys, to the requirements of the SOLAS convention and applicable protocols. The most recent such survey had been successfully completed just two months earlier, after the vessel was inspected by a Lloyd's Classification Society surveyor at Caracas, Venezuela. Therefore, the sub-standard condition of the equipment was not expected by the crew, leading to confusion and delays at the time of the fire, with various equipment from throughout the ship being tried and discarded. The ship's fire-hoses in the engine-room were sub-standard. Many were degraded and leaked badly, some were secured to their connectors by metal clips which released under water pressure. One section of hose had male connectors on both ends.

    A fire plan indicating the type and location of each piece of equipment was posted in the accommodation while another was kept in the ship's office, but they proved to be outdated and did not accurately depict recent changes. The plan in the office burned in the fire while the other, in the accommodation, became covered with soot and indecipherable. Reportedly, there was a plan kept in a weatherproof case near the gangway which was used by the vessel's management to explain the interior layout of the vessel to shore-based fire-fighters.

    1.9 Ship-Shore Disparities

    As they had no training in fighting shipboard fires, the shore fire departments' personnel were not aware of the requirements for a fire plan nor of the non-compatibility of shore and ship fittings, and this led to confusion and delay when attempting to connect the fire departments' hoses to the engine-room hydrants. They were also unaware of the requirements for SOLAS ships to be equipped with international ship-shore connections whereby water from the shore can be directed through the ship's fire mains. In this case, the ship was able to maintain pressure on the fire main.

    The lack of knowledge by both parties of each other's training in fire-fighting, which applies to totally different circumstances, led to confusion during discussions on the best approach to fight the fire. When the lack of visible smoke seemed to indicate that the initial fire had been extinguished, the ship's personnel believed that water drenching and the closure of the area should be continued until the boundary steel bulkheads and decks had cooled down and had remained cool for a period of time; this would have helped confirm that the fire was fully extinguished. However, shore personnel believed that direct action against remaining hot spots should be carried out immediately; the shore personnel's arguments prevailed and the area was opened and vented, leading to the fire burning with greater intensity and spreading to the accommodation.

    The Port Authority had not provided the ship with instructions as to the most effective way to alert local authorities in case of emergency; therefore, the master telephoned the ship's agent at his residence to report the fire.

    Furthermore, the Port Authority's by-laws did not require ships to ensure that a fire plan and other relevant information were readily available to shore-based fire-fighters.

    1.10 Possible Origin of the Fire

    The report prepared by the TSB Engineering Laboratory states that "the fire or burn pattern was symmetrical from the engine-room bulkhead forward" which "strongly suggests that the fire progressed from the aft end of the tunnel forward."

    Post-casualty inspections showed that the most intense heat had been centred in the area of the transfer belts. By process of elimination, it was determined that none of the electrical equipment or electrical and mechanical machinery had been the cause of the fire. Also, there had been no hot work (burning or welding) recently carried out in the area and there was no reason to suspect arson or smoking. Therefore, frictional heat was considered to be the most probable cause of the fire. The transfer conveyor belting and rollers in the area had been completely destroyed, but testing of similar belts and rollers under laboratory conditions at the TSB Engineering Laboratory determined that temperatures in excess of 400C were required to ignite the rubber-tired steel rollers and 450C to ignite the belting. These temperatures could not be reproduced by the small-scale frictional testing carried out at the laboratory, but the tests did show that it would be difficult for rollers or belting to be ignited by friction alone. It is most probable that an intermediary fuel source with a lower ignition temperature was involved.

    Indications are that a roller overheated due either to a bearing failure or to being jammed with refuse such as discarded gunny sacking (ignition temperature at the lab of 193C) or nylon securing straps; the overheating causing and sustaining a fire for a period of time. As long as the conveyor system was running, the belting passed rapidly over the heated roller and/or burning refuse but did not ignite. However, when the belting was stopped, the heat source was constant in one area of the belting and sufficient to ignite it.

    The TSB Engineering Laboratory report reveals that a TSB photographic record of the burn site shows that one of the end rollers on the starboard transfer conveyor was not properly seated in the support bracket, while the adjacent centre roller appeared to be secure. The report explains that this photographic evidence was not noted until after the assembly had been removed and, therefore, the roller was not available for further examination. However, the report continues that "typically, a bearing failure results in the collapse of the roller as the bearing support is lost" and that "as the bracket appears to be still supporting the centre roller, the displacement of the end roller probably required the failure of the end roller's axle." The report concludes that "Although the origin and cause of the fire ... were not conclusively determined, it is probable that the fire originated in the starboard transfer conveyor and was caused by the heat generated when a bearing failed, seizing and eventually displacing a roller from the idler frame."

    1.11 Ventilation of the Tunnel Area

    The ventilation system consisted of two blower fans in the forward part of the tunnel and two extractor fans at the after end which had proved adequate when unloading less dusty cargoes. There was no dust-removal or air filtration system. Reportedly, the fans were operating, but it could not be determined if they were operating to capacity. In any case, their major function was to provide a continuous flow of fresh air to the area, not to remove or filter out dust.

    The paper face masks worn by the tunnelmen proved inadequate in providing sufficient filtered air to the wearers. The use of the vessel's compressed air packs to provide the tunnelmen with fresh air had been discussed, but not implemented. The air packs, designed to provide air to the fire-fighters for a limited period of time, are part of the vessel's fire-fighting equipment. When the fire broke out, no decision had been taken as regards putting the air packs to a use other than their designed use.

    1.12 Loop Belt Casing Structure

    Entrances to the tunnel area could be closed off to assist in reducing air flow to the area. However, air was free to flow through the top of the loop belt casing through which the cargo was lifted by the loop belts, and a restricted amount of air could enter through the imperfectly closing hopper gates at the bottom of hopper No. 3. Both of these conditions would allow air to provide oxygen to the fire.

    A W/T door provided access to and from the engine-room to facilitate maintenance/repairs and was intended, when closed, to retain the watertight structural integrity of the ship. The remote-closing position on deck was provided as a precautionary measure should the engine-room become inaccessible following collision or in other emergency situations. A spring-loaded fireproof door had been fitted in conjunction with the W/T door.

    1.13 Cargo

    Rock phosphate is a mined natural product which is not hazardous inasmuch as it is not ignitable, toxic nor hazardously reactive to other materials. In this instance, it was carried in bulk in all of the holds and was in the form of granules, a large proportion of which had broken down into fine dust. This cargo was described as, by far, the dustiest and the most difficult to retain on the conveyor belts of all cargoes which had been unloaded during previous trips. Recent cargoes carried by the "AMBASSADOR" had been homogeneous but varied, consisting of coal, limestone, gypsum and rock phosphate.

    Stoppages caused by spilled cargo reduced the rate of discharge to an average of some 240 tonnes per hour during the 36½ hours preceding the outbreak of the fire, whereas continuous discharge could have attained a rate of some 1200 tonnes per hour, the maximum rate requested by the shore plant. The vessel's unloading system was capable of delivering 4000 tonnes per hour. The conveyor belts can be run at two speeds and are normally run at the faster of the two. The crew regulates the amount of cargo being discharged by adjusting the gates at the bottom of the cargo holds.

    1.14 Housekeeping in the Tunnel Area

    During the investigation, a great deal of discarded material was found in the areas of the tunnel which had not been affected by the fire. This material consisted of gunny sacking and nylon straps used to cover the hopper gates to prevent cargo spillage during the voyage, together with various bits of wood, empty paint cans, etc.

    1.15 Vessel Stability

    In order to assess the effects of the fire-fighting water which accumulated in the cargo conveyor tunnel, the post-casualty stability reportFootnote 4 analysis focused on establishing the vessel's intact transverse stability characteristics on arrival and also after the fire was extinguished. Comparisons were then made with the regulatory minimum intact stability criteria included in the vessel's Trim and Stability Booklet, as approved by the CCG on 13 February 1984.

    Water used to fight the fire in the accommodation quickly escaped from the various decks via the elevator shaft and, because this water was not retained on the upper decks, it caused no significant rise of the vessel's vertical centre of gravity (VCG).

    Calculations show that expended water from the fire-fighting plus water used to flood the tunnel and submerge the conveyor system (calculated at some 2244 tonnes), together with the filling and pressing up of two ballast tanks with a further 5746 tonnes of ballast water, lowered the partially unloaded vessel's VCG and more than compensated for the virtual rise of G attributable to the free-surface effect of the water retained in the tunnel area. The calculations revealed that the vessel's intact transverse stability characteristics on arrival, during the fire-fighting effort and after the fire was extinguished, exceeded the minimum safety criteria as specified in the regulations.

    Under the still water conditions of the harbour where the ship was not subjected to external wave forces causing rolling or pitching motions, there was no danger from dynamic surging and free-surface effect, and positive initial stability was retained, even though a list of 2.5 developed.

    There was no tunnel sounding or calibration table to assist in accurately ascertaining the precise weight, or free-surface area, of the water in the tunnel: an estimate made during fire-fighting gave 1000 tonnes, but post-casualty calculations based on the water marks throughout the tunnel together with calculations based on the final load condition of the ship, determined that there had been some 2244 tonnes of water in the tunnel area.

    1.16 Weather

    While the fire was being fought, there were strong northerly winds with a heavy snow fall and an air temperature of minus 13C. The wind chill factor further reduced the apparent temperature by an estimated 10 to 15C.

    1.17 Previous Fires

    There is no past record of a previous similar fire on board the "AMBASSADOR". However, TSB records indicate that, since 1975, there have been at least eight fires involving conveyor belt systems on Canadian ships. None of the vessels involved was fitted with a fixed remote fire-fighting system, and each fire required the direct action of personnel. Early detection and prompt extinguishing of localized fires in cargo conveyor systems depend on the presence of personnel in the work area.

    2.0 Analysis

    2.1 Decisions Relevant to the Incident

    During the course of the incident, four key decisions were made which impacted on the development and extent of the fire and had significant ramifications with respect to the safety of the vessel. It was decided to stop the conveyors pending resumption of unloading; to enter the tunnel area through the W/T door in the engine-room; to flood the tunnel to fight the fire; and to resume ventilation of the tunnel area when the fire first appeared to have been brought under control.

    2.2 Stopping the Conveyor System

    It was decided to stop the conveyor system pending the resumption of the unloading operation to prevent the movement of the belts from aggravating the dust problem and thus delaying the clearing of the atmosphere in the tunnel. It was not likely that a heat source, sufficient to ignite the stationary belt, had developed in the hardware of the conveyor system. As the heat source was not detected before the belt conveyor system was stopped, there was no reason to take such a possibility into account when the decision to stop the belt was taken.

    2.3 Watertight Door to Tunnel

    When heat transference and intensification indicated that the application of water through the loop belt casing was not being successful, it was decided to attempt to tackle the fire directly by entering the tunnel area through the W/T door in the engine-room.

    After the fire party was forced to withdraw, the W/T door could not be closed from either of the two remote-control positions due to the heat. It was provident that a spring-loaded fire door had been fitted on the engine-room side of the W/T door. The fire door closed automatically and is considered to have played a large part in saving the ship. It was not determined if the existence of the fire door was critical in making the decision to use the W/T door.

    2.4 Tunnel Flooding and Stability

    The introduction of water into the tunnel in order to submerge the conveyor system created a free-surface area which, under the sheltered conditions of the harbour where there was no motion of the ship, presented little danger of significant stability loss. Under different circumstances, where motion could have been imparted by external forces, such as wind and seas or by a cargo shift, and particularly if at sea when subject to rolling and pitching, the dynamic surging of the water would not only cause massive adverse effects on stability but could also cause considerable structural damage. In this instance, partial cargo discharge and compensatory ballasting maintained the ship's initial transverse stability; however, the vessel's stability information gave no guidance for shipboard personnel on the effect of flooding the tunnel.

    2.5 Opening Up the Fire Site

    When the fire first appeared to have been brought under control, those involved in the fire-fighting efforts had to decide on a continuing course of action. The ship's officers, all of whom had received training in fighting shipboard fires, wanted to keep the fire site closed with continued application of water. However, they were unaware that the shore-based fire-fighters had no training in fighting shipboard fires, and they allowed themselves to be persuaded by shore personnel to open up and so ventilate the fire site. It cannot be stated with certainty that the ensuing, more intense, conflagration would not have occurred under the more passive approach favoured by the vessel's personnel. However, the events, and the further endangering of the vessel, would suggest that it might have been prudent for the ship's officers to have stood by their convictions.

    2.6 Cold Weather Operations

    Preparations made by the crew of the "AMBASSADOR" had included readying the vessel's fire main for operation in cold weather conditions. In the existing extreme conditions, the preparations proved ineffective. Only one outside deck hydrant was usable to fight the fire, as all the others were frozen.

    The extreme cold weather conditions hampered the fire-fighting efforts.

    3.0 Findings

    1. During unloading, considerable difficulty was experienced in preventing cargo from spilling from the conveyors.
    2. The dust from spilled cargo in the tunnel was so thick that crew members found it necessary to suspend the unloading and leave the area.
    3. The empty conveyor belt system was stopped, pending the resumption of the unloading operation.
    4. A section of the stationary conveyor system came into contact with a heat source that caused the belting to ignite.
    5. The fixed sprinkler system in the loop belt casing was ineffective in controlling a major fire.
    6. The open top of the loop belt casing and the hopper gates to No. 3 hold, which were not airtight, allowed a continuous supply of oxygen to the fire.
    7. The preparations of the vessel's fire main for operation in cold weather proved ineffective in the existing extreme conditions and all deck hydrants but one were frozen.
    8. Additional hoses had to be led from engine-room hydrants through the accommodation to the loop belt casing.
    9. After being opened in an unsuccessful attempt to fight the fire, the watertight (W/T) door between the engine-room and the tunnel could not be closed.
    10. A spring-loaded fireproof door on the engine-room side of the W/T door closed automatically and prevented the fire from directly entering the engine-room.
    11. Intentional flooding of the tunnel was instituted to extinguish fires in that area.
    12. Compensatory ballasting, supplementing the partial discharge of cargo, ensured that the vessel maintained positive initial transverse stability when the tunnel was flooded.
    13. The vessel's stability information gave no guidance on the effect of flooding the tunnel on the vessel's stability.
    14. The routine maintenance and testing regime of safety equipment proved ineffective.
    15. The crew had not been drilled in fire-fighting during weekly emergency musters and was consequently unaware of the condition of the equipment.
    16. Although the vessel had passed a safety equipment inspection by a classification society surveyor only two months earlier, some of the shipboard fire-fighting equipment was sub-standard.
    17. The Port Authority had not provided the ship with instructions on emergency alert procedures.
    18. The Port Authority did not require a fire plan to be available and accessible to shore-based fire-fighters.
    19. None of the shore-based fire-fighters had been trained in fighting shipboard fires.
    20. There were no shore fire cabinets close to the scene of the fire.
    21. The Canadian Coast Guard (CCG) had earlier declined to approve or endorse the owners' plan to upgrade the fire-fighting installation in the self-unloading system due to the absence of guidelines or regulatory requirements.
    22. Housekeeping standards in the work area were such that the debris in the tunnel compromised safety.
    23. Open fire doors in the accommodation facilitated the spread of fire between cabins.
    24. The extreme cold weather conditions hampered the fire-fighting efforts.

    3.1 Causes and contributing factors

    When the conveyors were stopped, a section of one of the conveyor belts ignited, probably because the belt was in contact with an overheated roller. The roller probably overheated due to a bearing failure or to being jammed with refuse which ignited after contacting the overheated bearing.

    4.0 Safety Action

    4.1 Safety Action Taken

    4.1.1 Ship Management Practices

    Following the occurrence, the owners/operators took the following measures:

    1. produced a fire safety training video and circulated copies on fleet vessels during safety briefings;
    2. conducted an in-depth fire safety audit of fleet vessels with special attention to maintenance of fire doors and the importance of keeping fire doors closed;
    3. improved training on fire drills and provided masters and crews with additional instructions regarding fire prevention and safety procedures; and
    4. extended the duration of the safety (inspection) round after each shut-down of the conveyor(s).

    4.1.2 Emergency Procedures

    As a result of this occurrence, the Port of Belledune reviewed its emergency procedures and developed a new Port Emergency Plan to deal with emergencies such as a shipboard fire. Some aspects of this plan were tested in the spring 1996. Also, the Port Authority installed signs on the wharf indicating the telephone number to use in case of emergency.

    4.2 Action Required

    4.2.1 Shore-based Fire-fighting Capabilities

    In the last 10 years, there have been 386 occurrences involving fires or explosions on board ships in Canadian ports; approximately 32 per cent of these occurred in the winter months. Some 20 per cent of all the occurrences happened in ports under Ports Canada's jurisdiction; the remainder occurred in smaller locations under Transport Canada's Harbours and Ports or in Department of Fisheries and Oceans (DFO) harbours. Shortcomings in the fire-fighting capabilities of some ports and harbours were evident in these occurrences. For example, an inadequate water supply and a lengthy distance to the fire hydrant hampered the fire-fighting efforts in freezing temperatures on an out-of-control fire in the loop conveyor belt system of the "ALGOSOO" undergoing repairs at Port Colborne, Ontario, in 1986 (Report CCG MCI-442). Three years later, in September 1989, again at Port Colborne, it took the local fire department some 12 hours to fight another conveyor belt fire on board the "H.M. GRIFFITH" (CCG MCI-540).

    In July 1991 in Vancouver Harbour, British Columbia, a fire destroyed the Kitsilano Canadian Coast Guard Base and four vessels (TSB Report No. M91W0003). The fire response craft at the scene were not equipped to fight a fire of a large magnitude. Nor did the city water line have adequate pressure; it subsequently broke while being used to fight the fire. In the recent occurrence at Belledune, New Brunswick, inadequate knowledge of shipboard fire-fighting techniques, by both the ship's crew and shore-based fire brigades, led to confusion.

    While most vessels are equipped with an on-board, self-contained fire-fighting system, capable of mitigating the danger posed by fires at sea, these same vessels can have their fire-fighting capability severely limited in port, as much of their main and auxiliary equipment is not running and/or readily available. It is not just the vessels that are vulnerable to extensive damage by shipboard fires when in port; vessel fires at dockside also present a serious hazard to port facilities and installations (as evidenced in the occurrence at Kitsilano).

    Within ports and harbours, the responsibility for providing an emergency response plan, including fire-fighting assistance for vessels in port, generally rests with the port management. These plans often rely on municipal fire departments for fire-fighting support, many of which do not have personnel properly trained to fight shipboard fires. The Board believes that, with the ever-present risk of on-board fires, a well trained and equipped fire response team is essential in order to minimize the consequences of an out-of-control fire in the close confines of a port or harbour. Therefore, given that some Canadian ports and harbours appear to lack the proper facilities and resources to effectively contain shipboard fires occurring within their jurisdiction, the Board recommends that:

    The Department of Transport conduct a special audit of fire-fighting facilities at Canadian ports and harbours under its jurisdiction to ensure that an adequate year-round capability exists to contain shipboard fires;
    Transportation Safety Recommendation M96-06

    and that:

    The Department of Transport, in collaboration with ports and harbour authorities, take measures to ensure that shore-based fire brigades expected to support on-board fire-fighting, receive appropriate training.
    Transportation Safety Recommendation M96-07

    In this occurrence, the crew of the "AMBASSADOR", as a result of inadequate fire drills and equipment inspections during cold weather operations, was not aware of the degraded condition of the ship's fire-fighting equipment and frozen deck hydrants. Canadian ports and harbours annually receive hundreds of foreign-registered vessels, many originating from warmer climates and crewed with personnel who are not familiar with the harsh winter conditions found in Canada. The Board understands that, following this occurrence, the owners of the "AMBASSADOR" took measures to ensure a better fire-fighting capability in their fleet for cold weather operations. However, based on observations of other occurrences, the Board believes that many of the vessels and crews arriving in Canadian waters during the winter months will continue to be poorly prepared to cope with extraordinary situations, such as a fire-fighting response, in extreme cold. Therefore, the Board recommends that:

    The Department of Transport take appropriate measures to ensure that on-board fire-fighting capabilities of vessels in Canadian ports and harbours are functional and readily available during cold weather operations.
    Transportation Safety Recommendation M96-08

    4.2.2 Fire Safety on Self-unloaders

    The TSB is aware of at least nine fires involving conveyor belt systems on self-unloading ships in Canadian waters in the last 15 years. None of the vessels involved was fitted with a fire-detection or fixed remote fire-fighting system capable of suppressing large fires, and all nine fires required direct fire-fighting by ship personnel.

    Fires during self-unloading operations are generally the result of flammable and/or combustible cargo dust in the confined tunnel areas coming in contact with a heat source such as friction in the conveyor belt systems. On the "AMBASSADOR", the fixed sprinkler system in the loop belt casing proved ineffective in controlling the spread of the fire in the tunnel, and the area of the fire was not covered by a remote fire-fighting system. When the "AMBASSADOR" was previously registered in Canada, the ship's owners approached the Canadian Coast Guard (CCG) with a plan to enhance the vessel's fire-fighting capability in the self-unloading system. However, there are no regulatory requirements for remote fire-fighting systems, and the CCG declined to approve or endorse the owners' plan to upgrade the fire-fighting installation.

    In view of the inherent risk of tunnel fires in self-unloaders and the demonstrated inadequacy of existing on-board fire protection systems, the Board recommends that:

    The Department of Transport review the requirements for fire protection systems for tunnel areas on Canadian self-unloaders, with a view to ensuring a capability for suppressing large fires.
    Transportation Safety Recommendation M96-09

    On the Great Lakes, self-unloading vessels are the primary means of transporting dry bulk cargoes. At present, some 80 self-unloaders operate primarily on the Great Lakes and connecting waterways; over 30 of these vessels are Canadian, the remainder are registered in the United States. Any of the vessels engaged in bulk cargo trade may transit through Canadian waters and may call at Canadian ports. These Great Lakes vessels are regulated by Canadian and U.S requirements only.

    The Board believes that the Canadian marine environment and supporting infrastructure should not be exposed to greater risks from U.S. vessels than from Canadian vessels. Further, any competitive disadvantage for Canadian vessels resulting from more stringent Canadian requirements may lead to cutting safety margins. Therefore, the Board recommends that:

    The Department of Transport, in conjunction with the appropriate authorities in the United States, seek harmonization in the requirements for fire detection and extinguishing systems on Great Lakes self-unloading vessels.
    Transportation Safety Recommendation M96-10

    In addition, several foreign self-unloading vessels such as the "AMBASSADOR" call at Canadian ports every year. Present international regulations on "Fire Protection, Fire Detection and Extinction" of SOLAS (IMO Safety of Life at Sea) do not address requirements specific to tunnel fires on self-unloading vessels. Therefore, the Board recommends that:

    The Department of Transport seek support from the International Maritime Organization in addressing the need for enhanced fire detection and extinguishing systems in the tunnel area of self-unloaders.
    Transportation Safety Recommendation M96-11

    The Board recognizes in making these recommendations that the consultation processes for establishing the requirements for enhanced fire-fighting systems can take considerable time. Therefore, the Board believes that interim measures need to be taken to ensure that existing fire-fighting capabilities in the tunnel areas of self-unloaders are not jeopardized.

    In this occurrence, the existing fire station in the tunnel of the "AMBASSADOR" had been rendered ineffective at the time of the fire. The small flexible rubber hoses that had been left connected to fire hydrants for washing down the area were not suitable for fire-fighting. Similarly, in a previous occurrence involving the Canadian self-unloader "HALIFAX", flexible one-inch wash-down hoses were also found connected to hydrants of tunnel fire stations (TSB Report No. M93C0001).

    Any time lost in combatting a tunnel fire can quickly exacerbate the severity of the situation. Since the current practice of ships' operators and crews of leaving non-fire-fighting hoses and equipment attached to fire stations render them, at least temporarily, unavailable for their primary purpose, the Board recommends that:

    The Department of Transport take immediate measures to ensure that the readiness of fire stations in tunnels of self-unloading vessels is not jeopardized by the industry practice of using such stations for purposes other than fire-fighting.
    Transportation Safety Recommendation M96-12

    This report concludes the Transportation Safety Board's investigation into this occurrence. Consequently, the Board, consisting of Chairperson, Benoît Bouchard, and members Maurice Harquail and W.A. Tadros, authorized the release of this report on .

    Appendices

    Appendix A - Layout of the Vessel

    Figure 1. Layout of the Vessel
    Image
    Layout of the Vessel
    Figure 2. Self-unloading System
    Image
    Self-unloading System

    Appendix B - Sketch of the Area of the Occurrence

    Figure 3. Sketch of area of occurrence
    Image
    Sketch of area of occurrence

    Appendix C - Photographs

    Photo 1. AMBASSADOR
    Image
    AMBASSADOR
    Photo 2. AMBASSADOR
    Image
    AMBASSADOR

    Appendix D - List of Supporting Reports

    The following technical reports were completed:

    • Engineering Report LP 48/95 - Fire Tests on Conveyor Belts
    • Naval Architecture Report - Stability Study (18 April 1995)

    These reports are available from the Transportation Safety Board of Canada upon request.

    Appendix E - Glossary

    A
    aft
    AST
    Atlantic standard time
    BHP
    brake horsepower
    C
    Celsius
    CCG
    Canadian Coast Guard
    DFO
    Department of Fisheries and Oceans
    F
    forward
    G
    vessel's centre of gravity
    IMO
    International Maritime Organization
    kW
    kilowatt(s)
    m
    metre(s)
    mm
    millimetre(s)
    R/T
    radiotelephone
    self-unloading bulk carrier
    Vessel designed primarily for carriage of dry bulk cargoes and fitted with means to unload without using shore equipment (frequently conveyor system).
    SI
    International System (of units)
    SOLAS
    International Convention for the Safety of Life at Sea 1974, with subsequent Protocol and Amendments
    TSB
    Transportation Safety Board of Canada
    U.S./USA
    United States of America
    UTC
    Coordinated Universal Time
    VCG
    vessel's vertical centre of gravity
    W/T
    watertight
    °
    degree(s)
    '
    foot
    "
    inch