Marine Investigation Report M93W0001

Striking of the Canada Place Dock
by the BC Transit Ferry "BURRARD BEAVER"
Vancouver Harbour, British Columbia

The Transportation Safety Board of Canada (TSB) investigated this occurrence for the purpose of advancing transportation safety. It is not the function of the Board to assign fault or determine civil or criminal liability. This report is not created for use in the context of legal, disciplinary or other proceedings. See Ownership and use of content. Masculine pronouns and position titles may be used to signify all genders to comply with the Canadian Transportation Accident Investigation and Safety Board Act (S.C. 1989, c. 3).

Table of contents

    Summary

    On 06 January 1993, the BC Transit ferry "BURRARD BEAVER", on passage from Vancouver Terminal, Vancouver, to Lonsdale, North Vancouver, in reduced visibility, struck the Canada Place dock. There were 4 crew members and 121 passengers on board. The master, mate and four passengers sustained minor injuries.

    The Board determined that the "BURRARD BEAVER", upon departing Vancouver Terminal in poor visibility, struck the Canada Place dock due to a manoeuvring error. Contributing factors to the striking were a lack of appreciation of the special manoeuvring capabilities of the ferry and the need to maintain a listening watch which reduced verbal communication between the bridge team.

    1.0 Factual Information

    1.1 Particulars of the Vessel

    "BURRARD BEAVER"
    Official number 370088
    Port of registry Vancouver, B.C.Footnote 1
    Flag Canadian
    Type Passenger ferry, capable of carrying 400 passengers
    Gross TonsFootnote 2 506
    Length 34.3 m
    Breadth 12.6 m
    Draught max. (at time of incident) F: 2.90 m A: 2.92 m
    Built 1976, Victoria, B.C.
    Propulsion Four internal combustion 2SA, 12-cylinder Vee engines, each driving a right-angle drive (RAD) unit and capable of 325 BHP
    Service Speed 11.5 knots
    Owners Xerox Canada Finance Inc. North York, Ontario

    1.1.1 Description of Ferry's Steering and Propulsion Systems

    The double-ended catamaran ferry "BURRARD BEAVER" is equipped with dual steering synchronizers (DSS). Two identical systems are fitted at each end of the vessel and are completely isolated from each other. The DSS has unique features not found in conventional vessel controls as well as 360° propulsion unit steering.

    The DSS consists of sensors and activators in the propulsion compartments connected to the control console in the wheel-house. The console comprises the joystick, steering indicators and control switch panel. The joystick lever is free to rotate in the horizontal plane for steering. The control electronics will position the two drives to follow the position of the joystick. The joystick points in the direction of push; i.e., the direction in which the part of the vessel will move. The position of the drives cannot be changed quickly; a note to this effect is contained in the BC Transit Operations Manual. Each joystick controls a set of two engines. All engines are used during a transit and may or may not be used during a manoeuvre; e.g., an engine in an "idle" mode is still in use.

    Because the "BURRARD BEAVER" and her sister ship, the "BURRARD OTTER", are equipped with a unique system of controls, their manoeuvrability differs from that of a conventional ship which has rudder and propeller(s) aft. These two ferries can, at normal service speed, with judicious control movement, almost stop in their own length, spin in their own length, move sideways or at an angle of up to 45° (see Appendix A).

    1.1.2 Normal Track of Ferries

    "BURRARD BEAVER"

    The normal and usual track of the ferry is indicated on the chartlet (see Appendix B). From departure at Vancouver Terminal, the direction of travel is approximately 063°(T) for approximately 60 m after which the course is altered to head on a "navy buoy" (approximate heading 026°(T)). This would ensure that the vessel passed clear of the north-east corner of Canada Place dock by some 75 m to 90 m.

    "ORCA SPIRIT"

    The track the Royal Sea Link vessel "ORCA SPIRIT" generally followed as she approached her berth is reproduced on the chartlet (see Appendix B). This ferry from seaward and First Narrows approaches the north-west corner of the Canada Place dock, then proceeds on a course parallel to the north face of the dock. She then rounds the north-east corner, staying close to the eastern side of the Canada Place dock after which she turns in the basin and approaches her berth on the western side of the SeaBus Terminal.

    1.2 History of the Voyage

    The crew, comprising the master, the mate and two crew members, boarded the

    "BURRARD BEAVER" at approximately 0545Footnote 3, 06 January 1993, at which time the weather was clear with good visibility. At 0630, fog conditions were recorded; a look-out was posted outside the wheel-house and the fog signal was manually sounded.

    The "BURRARD BEAVER" commenced her first scheduled run of the day at 0602. At 0630, as the ferry was again departing her berth, the following was recorded in the log book: "0630 fog conditions setting in lookout posted all restricted visibility reg. complied with."

    Before departure on the subject transit, the "BURRARD BEAVER" was docked at the eastern side of the Vancouver Terminal. After embarking 121 passengers, she made a Sécurité call on very high frequency (VHF) radiotelephone (R/T) and sounded one prolonged blast on the whistle. After receiving a traffic advisory from Vancouver Traffic, the ferry departed from the terminal at 0746 bound for Lonsdale Quay. Courses and speeds were not recorded, but were estimated by the crew and by subsequent calculation. Although the Global Positioning System (GPS) unit was operational, it was not used. The bridge was manned by the mate who had the conduct of the ferry, and by the master who was standing by; the look-out was positioned outside the wheel- house.

    In a normal departure situation, the "BURRARD BEAVER" would make a gradual change of heading to port of approximately 37°. The "BURRARD BEAVER" was departing from her berth and the "ORCA SPIRIT" was performing her usual manoeuvre in the basin to westward of her. No VHF R/T contact had been established between the two vessels.

    The master could see the radar presentation of Canada Place ahead and ordered the mate twice to alter course to starboard. Instead, the mate held to and increased the alteration to port believing that this was necessary to clear the "ORCA SPIRIT". The master, realizing the situation, intervened by altering the direction and thrust of two after propulsion units.

    The position of the mate between the consoles and the layout of the engine controls precluded the master from gaining access to the other two engines. However, this action proved insufficient and, at a recorded time of 0748, the port side of the "BURRARD BEAVER" struck the north-east corner of the Canada Place dock approximately 20 m from the knuckle and between the fenders.

    The speed of the vessel at the time of the striking was estimated by the master and mate to have been between three and five knots.

    The "BURRARD BEAVER" informed Vessel Traffic Services (VTS) that the ferry had struck the Canada Place dock and was heading back to the southern terminal. She arrived at approximately 0800.

    The public address (PA) system was not used to inform the passengers of the accident or reassure them of their safety until the vessel was back at the Vancouver Terminal.

    1.3 Injuries to Persons

    Crew Passengers Others Total
    Fatal - - - -
    Missing - - - -
    Serious - - - -
    Minor 2 4 - 6
    None 2 117 - 119
    Total 4 121 - 125

    As a result of the striking, four passengers were treated for shock and minor injuries at a hospital in Vancouver and later released. The master and mate both suffered minor abrasions and bruises.

    1.4 Damage to the Vessel and Dock

    The damage to the vessel was slight and confined to the port bow. The permanent box fendering was set in and torn and the superstructure immediately above was slightly set in and disturbed. The vessel was taken out of service for examination and assessment of damage. Permanent repairs were subsequently carried out without disruption to the vessel's schedule.

    The concrete face of the Canada Place dock was slightly broken and flaked in way of contact (see Appendix C).

    1.5 Certification

    1.5.1 Vessel

    The vessel was certificated, equipped and manned in accordance with existing regulations.

    1.5.2 Personnel Certification and History

    The master was issued a Canadian Certificate of Competency as Master - Ferry, Short Run, Vancouver/North Vancouver in 1992 without further examination based on his previous certificates. He holds a Radar Observer's Certificate, a prerequisite for the issuance of the above certificates of competency, and he completed an approved Radar Simulator Training Course in 1976. He had also received formal instruction in Marine Emergency Duties (MED). He had 13 years' experience as master in the ferry trade.

    The mate was issued a Canadian Certificate of Competency as Master - Ferry, Short Run, Vancouver/North Vancouver in 1991. His certificates prior to then included first mate of a ferry steamship operating within home trade limits, master of a ferry operating in Vancouver Harbour, master of a minor waters steamship, and master home trade, steamships under 350 tons. He had received formal instruction in MED and formal training in the use of radar in 1985, and had nine years' experience in the ferry trade in the capacities of mate and master.

    BC Transit had no requirement for officers to undertake further training or participate in additional courses, although they would be encouraged to do so. These two officers had been teamed together for approximately eight years, during which time no report of conflict was made by either of them, and none noted by BC Transit.

    1.6 Health of the Master and Mate

    From medical records and information made available, there was no evidence to explain why the mate failed to respond to the master's orders in the time between the departure of the "BURRARD BEAVER" from the south terminal and the striking of the Canada Place dock. BC Transit has a policy of a pre-employment medical examination, but neither BC Transit nor the union representing the crew has a policy for periodic or ongoing medical examinations for the ferry crew. There is no regulatory requirement for the crew to undergo medical examinations. Neither officer was tested for alcohol or drug abuse as this was not deemed necessary by the Vancouver Ports Police after the striking.

    1.7 Master/Mate Relationship

    While on the vessel, the master and mate had a relationship of guarded professionalism and both assumed that the other was able to deal effectively with the foggy weather transit on 06 January.

    1.8 Vancouver Harbour Vessel Traffic Services

    The "vessel equivalency" reporting procedures required the "BURRARD BEAVER" and the "BURRARD OTTER" to report only at the beginning and the end of each day. The "BURRARD BEAVER" followed this procedure on the day of the occurrence.

    However, in accordance with VHF Radiotelephone Practices and Procedures Regulations, when the ferry was departing Vancouver, a navigation Sécurité call was made at 0747 to warn other vessels in the area of her presence and intentions.

    The purpose of the Sécurité call is to alert vessels of another's presence and to solicit/invoke response from other vessels which may have an interest in the manoeuvres. The

    "ORCA SPIRIT" did not consider that a response to the Sécurité call from the

    "BURRARD BEAVER" was warranted because both vessels were performing normal manoeuvres. The master of the "ORCA SPIRIT" considered that his vessel was not in a dangerous situation. The ferry track is marked on the Vancouver Harbour chart and consequently known to all transiting traffic.

    The Vessel Traffic Centre (VTC) reported to the "BURRARD BEAVER" that the

    "SEASPAN DORIS", a self-propelled rail car carrier, and the "ARCTIC OCEAN", a fishing vessel, were in the area.

    The "BURRARD BEAVER" was operating in a blind sector area of the VTS radar coverage at the time of the accident. As such, her movements were not fully monitored.

    1.8.1 Radio Communication

    Both the master and the mate had monitored the VHF R/T and were aware of the traffic in the vicinity of the ferry while at the Vancouver Terminal.

    The "BURRARD BEAVER" did not consider it necessary to establish radio contact with either the "ORCA SPIRIT" or the "ARCTIC OCEAN" to consider a passing agreement or confirm mutually acceptable manoeuvres with the "ORCA SPIRIT" before leaving the dock.

    1.9 Weather Information

    There was no local meteorological reporting station in the area but other vessels described the conditions as thick, dense fog with visibility 0 m to 30 m.

    1.10 Bridge Layout - Ergonomics

    The person who has the conduct of the vessel (operator) sits in the wheel-house on a track- mounted swivel chair, facing the direction of travel, located between and within easy reach of both joysticks (see Appendix C). A vertical screen for radar display and a magnetic compass are mounted in front of the operator. It is the operator's responsibility to ensure that the radar is properly adjusted and visible. Identical units are fitted at both ends of the

    wheel-house and are clearly visible to another officer. (For wheel-house layout, see Appendix D.)

    1.11 Navigation Equipment

    1.11.1 Radar

    In March 1992, the "BURRARD BEAVER" was fitted with two new Furuno, 10 cm, model FR8050D, type RDP 066 radars. Each radar is fitted with a daylight (head-up) display and a 1.83 m scanner. One of the radar displays is offset to one side, mounted in a swivel arrangement, and used on the northbound transit. The other radar display, which is mounted near the centre line of the vessel, is used on the southbound harbour transit.

    There is conflicting evidence with respect to the positioning of the radar screen. While the master maintained that he had not moved the radar screen from its initial position, the mate maintained that the master had turned the radar screen (which was facing him) in azimuth, thus preventing him from seeing it.

    Both scanners are mounted above the wheel-house and, when the ferry is berthed at a terminal, the scanner units are approximately 0.6 m and 1.8 m respectively above the top of the terminal roof. When the vessel is in position at the south terminal, the image presented by Canada Place is mainly clear and precise.

    Both the master and the mate of the "BURRARD BEAVER" stated that some interference was usual when the vessel was docked at either terminal. This "clutter" induced by the terminal roof does not obscure Canada Place nor the incoming target presented by the "ORCA SPIRIT" when the "BURRARD BEAVER" is in the Vancouver Terminal.

    During a test run, the Royal Sea Link vessel "ORCA SPIRIT" presented a clear target as she approached and followed her usual courses.

    The radars were evaluated by a technician from the Canadian Coast Guard (CCG) Department of Telecommunications and Electronics and found to be satisfactory. The short-range performance was excellent with good presentation of targets within approximately 15 m.

    1.11.2 Compass

    One magnetic compass is mounted centrally at each end of the wheel-house to be clearly seen by the person having the conduct of the vessel and the other officer. Each compass was apparently satisfactory and had a clearly exhibited deviation card.

    1.11.3 Checklist

    BC Transit has in place various daily written checklists to be completed by the operating staff and signed by the engineer and the master. There is a checklist for radar units but no instruction as to the standard required to warrant "satisfactory" entry. There is, however, no indication that the radar operation was anything but satisfactory to the standard required by the CCG.

    1.12 Conduct of Navigation and Bridge Team Coordination

    In clear weather, transits across Vancouver Harbour are carried out by means of visual bearings and distances, usually verified by radar presentation. In periods of reduced visibility, departures, transits and berthings are executed mainly by radar bearings and distances. At the time of the striking, visual bearing facilities were not used because of the fog.

    The mate had had the conduct of the vessel since 0700, 06 January. At the beginning, the weather was clear but fog later set in. The mate had completed three transits and berthed the ferry twice at the south terminal. The normal procedure, as approved by BC Transit, was for the master and the mate to interchange positions each hour of their shift, so that each had the conduct of the vessel every second hour. This is normal and usually satisfactory as it averts tedium and allows both officers to handle the vessel's controls and assist the other.

    Both officers had monitored the VTS transmissions but there had been no discussion between the mate and master regarding the traffic, the impending arrival of the "ORCA SPIRIT" or their planned departure.

    1.13 Vessels Operating in the Area

    At the time of the striking, the "SEASPAN DORIS" was north of Centerm, the

    "ARCTIC OCEAN" was west of Canada Place, and the "ORCA SPIRIT" was inside the basin formed by Canada Place, the shore and her berth. None of these vessels inhibited the manoeuvres of the "BURRARD BEAVER" and their presence did not interfere with her normal courses.

    1.14 Passenger Safety

    1.14.1 Company Operating Instructions

    No announcement was made to the passengers regarding the accident until the ferry was back alongside the southern terminal at approximately 0800. The owners' Operations Manual requires that passengers be reassured following such an accident by using the PA system.

    1.14.2 Life-saving Appliances and Rescue

    Both the "BURRARD BEAVER" and the "BURRARD OTTER" had been granted exemptions to the carriage of lifeboats/liferafts of sufficient capacity to accommodate full complement since each vessel would act as a rescue vessel for the other in emergency situations. The "BURRARD BEAVER" and the "BURRARD OTTER" were equipped with liferafts of 25- and 4-person capacity and 25- and 6-person capacity, respectively. They also carried a boat capable of carrying four persons. Since the watertight integrity of the "BURRARD BEAVER" had not been breached as a result of the accident, it was not deemed necessary to contact the "BURRARD OTTER" or any other search and rescue unit.

    1.15 Maintaining Ferry Schedule

    BC Transit had no written policy regarding maintenance of sailing times in periods of reduced visibility. The ferry crews, however, were encouraged to observe a 15-minute schedule, when possible. The master and mate of the "BURRARD BEAVER" both reported that they were under no pressure to observe a strict schedule in the poor visibility conditions.

    1.16 Royal Sea Link Schedule

    A schedule of the Royal Sea Link catamaran ferries "ORCA SPIRIT" and "ROYAL VANCOUVER" was posted in the wheel-house of the "BURRARD BEAVER". The crew of the "BURRARD BEAVER" was therefore aware of the other ferry's normal time of arrival of 0745. (Note: The Royal Sea Link catamaran ferries no longer operate in Vancouver Harbour.)

    1.17 Particulars of the Ferry Terminal

    BC Transit offers two ferries, the "BURRARD BEAVER" and her sister ship the "BURRARD OTTER", between the floating terminals located at Lonsdale Quay and the Waterfront Station on the Vancouver side.

    Either side of the terminal may be used for embarking and/or disembarking passengers.

    The master may, at his discretion, use the other side of a terminal if the preferred berth is undesirable; e.g., floating logs, debris.

    The Royal Sea Link Terminal, used by the catamaran passenger ferry "ORCA SPIRIT", is part of the same Vancouver Terminal structure. The "ORCA SPIRIT" used the basin between the BC Transit Terminal and Canada Place to manoeuvre.

    Since all vessels are aware of the others' berthing arrangements, it was considered unnecessary to deviate from established practices.

    2.0 Analysis

    2.1 Bridge Team Communication

    The "BURRARD BEAVER" departed from the terminal in poor visibility with vessels known to be operating in her proximity. Because of the fog, the necessity of maintaining a listening watch limited communication between the master and the mate. There was also no discussion between them on how the movement of other traffic might affect the ferry on this transit.

    2.2 Safe Passing Arrangement

    As the "BURRARD BEAVER" and the "ORCA SPIRIT" were operating in the vicinity of adjacent terminals in some 30 m visibility, good seamanship practice dictates that the vessels should have established communication and made their intentions known to each other in the interest of safety. However, this was not done.

    2.3 Mate's Actions and Response to Master's Orders

    The mate concurs that the master had twice ordered a course alteration to starboard and that he did not carry out the master's orders. Although the mate intended to give a wider berth to the "ORCA SPIRIT" which was on his port side, he reportedly did not alter course to starboard since "ORCA SPIRIT".

    Although the mate maintained that he could not effectively monitor the radar screen because the master had turned it away from him, the master denies that such was the case. Despite this and the mate's concern for the course alteration to starboard, he neither indicated his concerns to the master nor did he take a more appropriate, safer measure such as stopping or reversing the engines.

    2.4 Mate's Apparent Unfamiliarity with the Vessel's Manoeuvring Characteristics

    The vessel's manoeuvring characteristics were such that a change in direction of a track could be effected without altering the heading. As the mate feared that a starboard course alteration would result in the stern of the "BURRARD BEAVER" coming closer to the

    "ORCA SPIRIT", it would suggest the mate's lack of appreciation of the vessel's manoeuvring characteristics even if the mate had been operating the ferry for the past eight years. This is further reflected in the mate being unable to provide exact information on the ferry's stopping distance.

    3.0 Findings

    1. Before departure from the berth, both the master and the mate of the "BURRARD BEAVER" were aware of the traffic in the ferry's vicinity.
    2. There was no discussion between the master and the mate respecting the traffic movement in the vicinity and how it might affect the ferry on this transit.
    3. The "BURRARD BEAVER" departed the berth in poor visibility without first establishing very high frequency radiotelephone contact with other vessels operating in the vicinity to establish/confirm their intentions.
    4. None of the vessels operating in the vicinity responded to the "Sécurité" call from the "BURRARD BEAVER".
    5. The presence of other vessels in the vicinity did not inhibit the manoeuvres of the "BURRARD BEAVER" nor did it interfere with the ferry's normal courses.
    6. The mate, who was at the controls and had the conduct of the vessel, did not carry out the master's orders to alter course to starboard.
    7. The mate could not see the radar screen but continued with a course alteration to port instead of stopping or reversing the vessel's engines to give more time to evaluate the situation.
    8. The mate did not fully appreciate the manoeuvring characteristics of the "BURRARD BEAVER".
    9. The master was unable to reach the control for two of the four main engines but he did use the other control in astern mode.
    10. There is no regulatory requirement or a company/union policy for the crew to be subjected to annual or periodic medical examination.
    11. The public address system was not used in good time to inform the passengers of the accident or reassure them of their safety.

    3.1 Causes and contributing factors

    Upon departing Vancouver Terminal in poor visibility, the "BURRARD BEAVER" struck the Canada Place dock due to a manoeuvring error. Contributing factors to the striking were a lack of appreciation of the special manoeuvring capabilities of the ferry and the need to maintain a listening watch which reduced verbal communication between the bridge team.

    4.0 Safety Action

    4.1 Safety Action Taken

    Following the accident, the operator of the "BURRARD BEAVER" (BC Transit) took the following actions:

    1. An order of precedence was established between BC Transit and Royal Sea Link ferries at the Vancouver Terminal. However, the Royal Sea Link ferry service to Nanaimo using the "ORCA SPIRIT" was discontinued in June 1993 and the Victoria run using the "ROYAL VANCOUVER" and "ROYAL VICTORIA" was discontinued in September 1993.
    2. Masters and mates employed by BC Transit have been offered a refresher course in the use of radar at the Pacific Marine Training Institute.
    3. An out-of-service ferry has been used for hands-on training in manoeuvrability for ferry officers, and the crews have been drilled in passenger evacuation.
    4. The automatic whistle sounding device on the "BURRARD BEAVER" was updated after the striking.
    5. Management has implemented a policy of changing and rotating the bridge teams; instead of the master and mate operating as a relatively fixed team, they are rotated in an endeavour to alleviate possible conflicts and complacency, and to increase awareness and efficiency.

    This report concludes the Transportation Safety Board's investigation into this occurrence. Consequently, the Board, consisting of Chairperson, John W. Stants, and members Zita Brunet and Hugh MacNeil, authorized the release of this report on .

    Appendices

    Appendix A - Sketch Showing Manoeuvring Capabilities of the "BURRARD BEAVER"

    Appendix A. Sketch Showing Manoeuvring Capabilities of the "BURRARD BEAVER"
    Image
    Sketch Showing Manoeuvring Capabilities of the "BURRARD BEAVER"

    Appendix B - Tracks of the "BURRARD BEAVER" and the "ORCA SPIRIT"

    Appendix B. Tracks of the "BURRARD BEAVER" and the "ORCA SPIRIT"
    Image
    Tracks of the "BURRARD BEAVER" and the "ORCA SPIRIT"

    Appendix C - Photographs

    Appendix C. "BURRARD BEAVER"
    Image
    "BURRARD BEAVER"

    "BURRARD BEAVER" Operator seated between the console; steering and monouvering controls.

    Appendix C. Operator seated between the console; steering and monouvering controls
    Image
    Operator seated between the console; steering and monouvering controls

    East side of Canada Place dock.

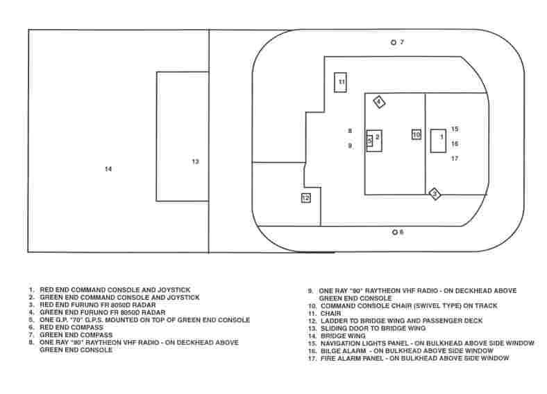
    Appendix D - "BURRARD BEAVER" - Wheel-house Layout

    Appendix D. "BURRARD BEAVER" - Wheel-house Layout
    Image
    "BURRARD BEAVER" - Wheel-house Layout

    Appendix E - Glossary

    A
    aft
    B.C.
    British Columbia
    BHP
    brake horsepower
    CCG
    Canadian Coast Guard
    CHS
    Canadian Hydrographic Services
    cm
    centimetre(s)
    DSS
    dual steering synchronizer(s)
    F
    forward
    GPS
    Global Positioning System
    IMO
    International Maritime Organization
    m
    metre(s)
    MED
    Marine Emergency Duties
    PA
    public address system
    PST
    Pacific standard time
    RAD
    right-angle drive
    R/T
    radiotelephone
    curité prefix for a navigation safety call
    SI
    International System (of units)
    T
    true (degrees)
    TSB
    Transportation Safety Board of Canada
    UTC
    Coordinated Universal Time
    VHF
    very high frequency
    VTC
    Vessel Traffic Centre
    VTS
    Vessel Traffic Services
    °
    degree(s)