Marine Investigation Report M90L3034

Sinking
of the Fishing Vessel "NADINE"
Gulf of St. Lawrence

The Transportation Safety Board of Canada (TSB) investigated this occurrence for the purpose of advancing transportation safety. It is not the function of the Board to assign fault or determine civil or criminal liability. This report is not created for use in the context of legal, disciplinary or other proceedings. See Ownership and use of content. Masculine pronouns and position titles may be used to signify all genders to comply with the Canadian Transportation Accident Investigation and Safety Board Act (S.C. 1989, c. 3).

Table of contents

    Summary

    On 16 December 1990, while returning in heavy weather from fishing grounds in the Gulf of St. Lawrence, the "NADINE", a 37-metre fishing vessel, listed to port and sank by the stern. A search and rescue operation was immediately undertaken to locate the ten people aboard. Two crew members were rescued and the bodies of six victims were recovered. Two crew members are still missing.

    The Board determined that the "NADINE" sank because the openings on the afterdeck and in the transverse bulkheads were not secured. Water was thus able to enter the vessel and eventually flood the lazaret, the fish holds and the engine-room. This ingress gradually reduced the vessel's stability until all reserve buoyancy was lost and the vessel sank. Poor weather, darkness, lack of training and the suddenness of the sinking hindered the abandonment and contributed to the loss of life.

    1.0 Factual Information

    1.1 Particulars of the vessel

    "NADINE"
    Port of registry Cap-aux-Meules, Quebec
    Official number 368320
    Type Stern trawler
    Gross TonsFootnote 1 493.20
    Net Tons 245.42
    Length 37 m
    Depth 5.06 m
    Draught (estimated, at time of accident) FFootnote 2: 3.53 m
    A: 4.02 m
    Built 1975, steel, Verreault Navigation Inc. Les Méchins, Quebec
    Propulsion One 8-cylinder Polar-Nohab diesel engine, controllable-pitch propeller
    Owners Madelipêche Inc. Cap-aux-Meules, Quebec

    1.1.1 Background of the "NADINE"

    Although built as a trawler, the "NADINE" was converted into a seiner during her middle years and then reconverted to a trawler in the latter part of her working life. During the final reconversion, the vessel's original design appears to have been faithfully reproduced except for the placement of the trawl warp winches, which were relocated forward of the fish hold hatches (see Appendix A).

    1.2 History of the voyage

    The "NADINE" left Cap-aux-Meules, Quebec, for fishing grounds 30 nautical miles (M) off Cape St. George, Newfoundland, at about 0830Footnote 3 on 12 December. She carried a crew of nine and a marine biologist from Fisheries and Oceans Canada (F&O). She reached the 4Rd and 4Ss fishing grounds in Fishing Zone 1 (see Appendix B) approximately nine and a half hours later and commenced fishing.

    The following day, the vessel put into St. George's Bay to shelter from strong south-easterly winds. At about 1900 that day, she sailed for Stephenville where she spent 14 December repairing fishing gear.

    On the morning of 15 December, after leaving Stephenville, the chief engineer reported to the master that he had had to pump out the steering gear compartment while at Stephenville because a leak had caused water to rise above the level of the floorboards. Apparently, he had also had to retighten the stuffing box around the rudder stock — a task that had also been necessary on previous occasions.

    At about 1530 on 16 December, the "NADINE" completed her final trawl and departed for her home port, Cap-aux-Meules, with a catch of approximately 330,000 lb. (149.7 t) of redfish. Because heavy seas were constantly washing the afterdeck, the crew elected to leave approximately 14,500 lb. (6.6 t) of fish from the last catch in the trawl on the afterdeck instead of stowing it in the fish holds.

    As the "NADINE" made for home, the bad weather reduced her surface speed to eight or nine knots (kn), and rain reduced visibility to 2 to 3 M.

    Several courses were steered in increasing easterly winds (See Approximate Track, Appendix C). At about 2130, in a position approximately 15 M ESE of Pointe de l'Est, the master issued instructions regarding the navigation of the vessel to the first mate, asked to be wakened when the vessel reached Alright Reef (Trois Pierres), and then retired to his cabin. He left the mate to keep the watch. It is possible that one other person, perhaps the biologist, assisted the mate.

    At about 2140, the master of the "NADINE's" sister ship, the "RALI II", who was in port aboard the fishing vessel "ADÈLE", called the "NADINE" to find out how she was progressing. The mate reported that the return voyage was proceeding uneventfully and that the "NADINE" would arrive the following morning.

    At about 2230, the mate woke the master and told him that there was something wrong, the steering was not working and the vessel was settling in the water. The master went to the bridge and there noted that the rudder angle indicator read 10° to port, that the vessel was veering to the left and listing approximately 20° to port, and that the afterdeck was awash from the goalpost mast on the starboard side to the trawl warp winch on the port side. He immediately ran to check the situation in the engine-room. From the top of the companionway to the engine-room, he asked the chief engineer to pump out the lazaret. The chief engineer, who was at the foot of the companionway looking toward the tunnel's forward entrance, replied that he was doing everything he could.

    On his return to the wheel-house, the master asked the mate to wake the crew members and instruct them to put on their immersion suits and assemble in the wheel-house. The biologist was seen leaving the wheel-house at about this time.

    At 2235, the master sent out a distress call by very high frequency (VHF) radiotelephone informing the Coast Guard Radio Station (CGRS) at Cap-aux-Meules that the "NADINE" was sinking in position 47°26′N, 61°19′W as determined by Loran C. The CCGS "SIMON FRASER", anchored SW of Havre-Aubert Island, also heard the call and began preparing for departure.

    The master then attempted to put the vessel back on course, but the steering gear failed to respond. The propeller pitch was then reduced. The "NADINE" rapidly developed a list of 60 to 70° to port.

    The crew assembled in the wheel-house, but no count was taken and, reportedly, there was some panic. The crew members were advised to put on their immersion suits immediately, but some opted to delay putting them on until they got into the liferaft.

    At this time, the master went to his cabin to get his immersion suit. When he returned to the wheel-house, he put on the suit, further reduced the propeller pitch to dead slow ahead, and then proceeded to the starboard boat deck. Most of the crew members were already outside.

    The vessel, by this time, was lying on her port side with the stern and half of the wheel-house under water. The last of those to leave the wheel-house did so through a starboard window.

    The mate informed the master that the entire crew appeared to have assembled to abandon ship. Some had gathered on the starboard side of the hull while others were standing on the starboard side of the accommodation house.

    When the mate threw the starboard liferaft into the water, it inflated upside down. By standing on the starboard side of the hull, some of the crew members were able to turn the raft over. At about this time, the generator failed and the vessel was plunged into total darkness. Suddenly, at 2247, the "NADINE" sank by the stern in position 47°26'58"N, 61°19'32"W, and the crew was thrown into the water. The boatswain (bosun) was the only person who succeeded in getting into the liferaft. Shortly after he did so, the raft drifted rapidly away and the bosun lost sight of the other crew members.

    The master lost contact with most of the crew when he fell into the water; only the mate and one fisherman remained with him. The master held the mate with his legs until about dawn when exhaustion forced the master to release him. The fisherman was with the master until the master was rescued.

    1.3 Injuries to Persons

    Crew Passengers Others Total
    Fatal 5 - 1 6
    Missing 2 - - 2
    Serious - - - -
    Minor/None 2 - - 2
    Total 9 - 1 10

    1.4 Damage

    1.4.1 Damage to the vessel

    Underwater inspections of the "NADINE" by the TSB were conducted in July 1991, at the wreck site, and in November 1991, after salvage. They revealed that:

    • the after port ballast tank was damaged;
    • the lower section of the port quarter shell plating was holed;
    • the afterdeck plating around the port ballast tank had buckled;
    • the port door to the accommodation on the boat deck was bent inward and its porthole was shattered;
    • the cradle of the port liferaft on the boat deck was missing;
    • the forward cradle and the forward portion of the lifeboat on the boat deck were missing;
    • the after hinge of the lazaret scuttle cover was severed; and
    • some lens caps from the alarm panel in the wheel-house were shattered.

    1.5 Certificates

    1.5.1 Vessel's certificate

    The "NADINE" held a Commercial Fishing Vessel Inspection Certificate for the east coast of Canada, Home-trade Voyages, Class II, issued by the Department of Transport on 03 May 1990 and valid until 02 May 1991. The vessel had also received an exemption allowing the chief engineer to serve in that position without holding the required Chief Engineer, Fishing Vessel Certificate or its equivalent, the Engineer, Class III, Motor Certificate.

    An inspection certificate (SIC 7) issued in 1989 authorized the owner, Madelipêche Inc., to increase the crew on the vessels of its fleet up to 12 provided that all crew members were supplied with immersion suits.

    1.5.2 Crew's certificates

    Position Certificate MEDFootnote 4
    Master Fishing Master, Class III I
    First Mate Fishing Master, Class IV I
    Chief Engineer Engineer, Class IV, Motor A1,B1,B2
    Second Engineer - -
    Bosun - -
    Cook - -
    Fisherman Engineer, Watchkeeping Fishing, Motor I
    Fisherman - I
    Fisherman - -

    1.5.3 Marine emergency duties (MED) training

    Certificated members of the crew had completed the MED training required for their qualifications. One of the five other crew members had also taken MED training.

    The biologist had not completed MED training. At the time of the accident, F & O scientists were not required to have such training before going to sea.

    1.6 Crew's experience

    All those on board were regular crew members except for the cook, who was replacing a regular member for one voyage, and the biologist, who was on the vessel for a single voyage in connection with the planned installation of a temperature-recording device on the vessel's trawl to gather data on the relationship between fish concentrations and water temperature at various depths.

    1.6.1 Master

    The master had obtained his certificate as Fishing Master, Class III in November 1987 and, since then, had served as master of the "NADINE". Before then, he had served two years as first mate and one year as master of another vessel while holding Fishing Master, Class IV credentials. He had previously served as fisherman and bosun on a number of other vessels in a career dating back to 1967. He received his MED training at Cap-aux-Meules in 1983.

    1.6.2 Officers

    The chief engineer had been a member of the crew since the spring of 1990 having previously served as chief engineer aboard the "G.C. GRANDE ENTRÉE". He had received his certificate as Engineer, Motor, Class IV, in February 1990, and taken his MED course in 1989.

    The first mate had received his certificate as Fishing Master, Class IV, in April 1985.

    1.6.3 Bosun

    The bosun began his shipboard career on a shrimp boat. Since 1987, he had worked aboard the "NADINE", serving as bosun for the past three years.

    1.6.4 Training

    The crew members had been selected by the master and had either been trained by him or gained their experience on other vessels in the fleet.

    The bosun did not know that he was responsible for closing other deck openings in addition to the covers for the manholes to the fish holds. He thought that the chief engineer was responsible for securing the lazaret scuttle cover as the engineer used that compartment regularly in carrying out his duties. No written guidelines had been issued concerning the closing of the openings.

    Although the master had sailed aboard the same vessel for three years, he did not know that the push-buttons in way of the bridge control disengage the clutch of the propeller shaft and shut off the main engine. Nor did he know that the wheel-house alarm panel had no water level alarm for the fish holds.

    1.6.5 Guest biologist

    The biologist had been to sea once a year for the last three years, one voyage lasting approximately three weeks. This was her second voyage during 1990.

    1.7 Weather

    1.7.1 Weather forecasts

    The following is the marine forecast issued by the Maritimes Weather Centre of Environment Canada at 1130 AST, Sunday, 16 December 1990:

    Eastern half of Magdalen-Gulf

    Gale warning still in effect. Winds from the east at 30 kn, gusting to 40, increasing to north-easterly gusts from 40 to 50 kn this afternoon. South-westerly gusts diminishing to 20 kn late this evening. Winds increasing to north-westerly gusts of up to 35 kn Monday afternoon. Rain and fog changing to snow flurries during the night ... Visibility fair with precipitation and fog. Temperature zero to three degrees.

    The forecast issued at 1700 AST indicated substantially the same weather conditions as the 1130 forecast.

    1.7.2 Recorded weather conditions

    At about 2235, the following conditions were recorded at the Havre-aux-Maisons airport located 18.5 M west of the site of the sinking: cloud cover, visibility 7 M, light rain and wind from 110° (T) at 25 kn with gusts of up to 32 kn.

    The CCGC "CAP-AUX-MEULES" sailed from Cap-aux-Meules at about 2300, 16 December, and recorded force 9 south-easterly winds, 4 to 5 m seas and visibility reduced to 2 to 4 M in rain. When she arrived at the search site at 0128, winds were ESE at 35 to 40 kn, visibility was reduced by sea spray, air temperature was 2° C and water temperature was −1° C with 6 to 7 m seas.

    1.7.3 Safety code

    IMO's Code of Safety for Fishermen and Fishing Vessels, under the heading "Safety of the Vessel," reads as follows:

    3.1.6 The crew should be alerted to all the dangers of following or quartering seas. If excessive heeling or yawing occurs the speed should be reduced.

    3.3.1 All doorways, ventilators and other openings through which water can enter into the hull or deckhouses, forecastle, etc., should be suitably closed in adverse weather conditions and accordingly all fixtures and appliances for this purpose should be maintained in good condition.

    3.3.2 The fittings for closing and securing hatches should be kept in good condition.

    3.3.3 All hatches and flush deck scuttles should be closed and properly secured when not in use during fishing.

    3.3.5 In bad weather, inspections should be made to ensure that hatch covers and lashings are in order.

    The Canadian Coast Guard (CCG) publication, Small Fishing Vessel Safety Manual, TP 10038, which addresses these safety aspects, is available on request, free of charge, to persons engaged in the fishing industry.

    1.8 Navigation equipment

    1.8.1 Navigation instruments

    Fitted on board the "NADINE" were:

    Radars
    Two
    Echo-sounders
    Three
    Loran C
    Two
    Single side band radio
    One
    VHF radio
    Two
    Gyrocompass
    One
    Magnetic compass
    One
    Autopilot
    One

    1.8.2 Aids to navigation

    All navigation aids were operating satisfactorily.

    1.9 Radio communications

    1.9.1 Inter-ship

    When the "ADÈLE" contacted the "NADINE" by radio at about 2140 on 16 December, the mate of the "NADINE" said that she had a good catch, that she had experienced no problems during the storm of 13 December, and that the wind was from the SE. He also said that heavy seas were washing over the afterdeck and that every now and then the vessel's movement was such that one could 'see the vessel's bottom'. There was no mention of a leak, but he indicated that the vessel had a 'heavy roll'.

    At 2235, the "SIMON FRASER" and the CGRS Cap-aux-Meules, which were maintaining radiotelephone watch, noted the distress message from the "NADINE" and began preparing for a search and rescue operation.

    1.9.2 Coast Guard radio station (CGRS)

    At 2235, CGRS Cap-aux-Meules received a 'Mayday' call from the "NADINE". The caller reported the vessel's position as 47°26′N, 61°19′W, stated that there were 10 persons aboard and indicated a strong possibility that they would sink. From 2240 to 2245, the CGRS attempted to call the "NADINE" but received no reply.

    1.10 Emergency equipment

    1.10.1 Lifeboat

    An eight-person open boat used as a lifeboat was installed on the port side of the boat deck. The severe list made it inaccessible to the crew at the time of the abandonment. It subsequently broke in two with the after portion remaining secure in the cradle and the forward portion breaking free.

    1.10.2 Inflatable liferafts

    There was one raft on each side of the wheel-house on the boat deck, each with a capacity of 12 persons. The rafts were not equipped with hydrostatic release devices.

    Because of the severe list to port at the time of the abandonment, the port raft was not accessible. However, it floated to the surface and inflated. There was no evidence that the port raft had been used.

    As the "NADINE" sank, the sea washed the crew members off and the righted liferaft away from the vessel's side, and the raft passed around the bow. The raft's sea anchor, which had not been deployed, does not release automatically.

    1.10.3 Lifebuoys

    Three of the four lifebuoys were recovered during the search. They were not reported to have been used during abandonment of the vessel.

    1.10.4 Lifejackets and Immersion suits

    Of those victims who were recovered, only one member of the crew was wearing a lifejacket when his body was found. Five others, including the two survivors, were wearing immersion suits. The remaining crew member and the biologist were wearing neither lifejackets nor immersions suits.

    There was no indication of what life-saving gear the two missing victims may have used.

    1.10.4.1 Type of Immersion Suits

    According to the owners of the "NADINE", the vessel was equipped with nine immersion suits, all Narwhal brand, model E-38-001 (see Appendix D). Spare immersion suits were stored ashore and supplied to vessels on request. No request had been received for an additional immersion suit for the "NADINE" on this voyage, but this was not considered unusual as it was believed that government employees generally had their own immersion suits.

    The suits used by the crew had a date of manufacture of 27 May 1985. Each suit had a registration certificate issued by the company listing the owners' name and the serial number.

    1.10.4.2 Features of the Immersion Suits

    According to the manufacturer, the suits, made of 3/16-inch neoprene, provide 42 per cent greater buoyancy than lifejackets, and they meet the Coast Guard's minimum requirements of preventing a drop of more than 2° C in body temperature over a period of six hours.

    The suits are supposed to be inspected periodically with special attention being given to the zippers which should be clean, in good condition, and lubricated to ensure proper operation. Any immersion suit suspected of being defective should be removed and replaced. Useful life of the suits is estimated at 10 years. During training sessions, MED instructors require that a fellow crew member check that the other person's suit is properly fastened.

    1.10.4.3 Requirement to Carry Immersion Suits

    The CCG has required the use of immersion suits since 1985. The regulations require that a sufficient number of suits be available on board.

    The CCG recommends that 80 per cent of immersion suits carried be "one size fits all"; 10 per cent be "adult, small"; and 10 per cent be "adult, large". The "one size fits all" suit is designed for adults weighing 50 to 150 kg (110-330 lb.), and is suitable for 90 per cent of Canadian adults. All the suits carried by the "NADINE" were "one size fits all".

    During the CCG's annual inspection of the "NADINE" on 03 May 1990, none of the crew commented on the universal size of the suits or the functioning of the zippers.

    At the time of the sinking, F & O did not issue immersion suits to its scientists going on sea voyages, nor was it required to do so. It could not be ascertained whether the biologist had been given an immersion suit by the crew of the "NADINE".

    1.10.4.4 Storage of the Immersion Suits

    The master and the chief engineer stored their suits in their cabins in the accommodation on the forecastle deck. The other suits, in their bags, were kept in a cabin used as a storeroom near the rear exit from the port alleyway of the accommodation on the main deck.

    1.10.4.5 Use of the Immersion Suits

    When the crew assembled in the wheel-house, no one complained of not having an immersion suit.

    Two immersion suits were found in the wheel-house during an underwater inspection of the vessel in 1991.

    Immersion suits are required to be designed such that the wearer has a degree of mobility in the water, but some persons wearing the suits could have difficulty in swimming to a liferaft in weather conditions such as those which existed at the time of the abandonment.

    1.10.4.6 Immersion Suits: Survivors

    The two survivors (the master and the bosun) reported difficulty in putting on their suits and closing the zippers. The master eventually got his closed, but the bosun, in spite of repeated attempts in the wheel-house and in the liferaft, was never able to do up his suit.

    The master had received no training on immersion suits in the MED I course that he took in 1983 but, being a diver, he was familiar with donning diving equipment. At the time of the accident, he was wearing a t-shirt, underwear, cotton socks, and corduroy pants. He put on his immersion suit in the wheel-house.

    The bosun had never put on an immersion suit before this accident. When he entered the liferaft, which was already swamped, he was wearing an open immersion suit over his underwear. His suit quickly filled up with water, his feet and legs became very cold, his hands became numb, and he was unable to put on the one glove that he could find.

    1.10.4.7 Immersion Suits: Victims

    Of the three victims who were wearing immersion suits, none had put on the entire suit or done it up to make it watertight.

    The first victim was wearing a suit from the shoulders down, but had not put on the hood; no gloves were found. The second victim had put on the entire suit but the zipper was not done up to form a watertight seal; the suit was torn and the horizontal buoyancy cushion was missing, as were the gloves. The third victim was wearing an immersion suit, but it was completely open across the chest; the zipper was stuck and one glove was missing.

    1.10.4.8 Inspection of the Immersion Suits

    Zippers on three of the four immersion suits recovered during the rescue operation were difficult to use. However, the garments had been submerged in salt water for several hours before the victims were found. No conclusions could be drawn regarding the two suits recovered from the wheel-house during the underwater inspection of July 1991 since they had been underwater for approximately seven months. A boot was found in one of the two suits.

    1.10.5 Emergency Position Indicating Radio Beacons (EPIRBs)

    The "NADINE" was equipped with one Class I and two Class II EPIRBs which had been installed in the fall of 1990. The owners had registered them with the Canadian Emergency Beacon Registry on 14 November 1990, but they had not yet been inspected by either the Ship Safety or the Radio inspector.

    1.10.5.1 Classes of EPIRBs

    In the event of a vessel sinking, Class I EPIRBs are automatically released from the vessel and automatically begin transmitting as soon as they reach the surface. A transmitter of this class, with a hydrostatic release device, had been installed on the roof of the wheel-house (see Appendix E).

    Class II EPIRBs must be removed from their cases (which should be located near the life-saving equipment), manually activated, and then thrown into the water or brought aboard the lifeboats. Of the two EPIRBs of this type installed on the "NADINE", one was in the wheel-house and the other in the port alleyway of the main deck accommodation (see Appendix F).

    The master stated that he had activated the Class I EPIRB in accordance with the instruction manual although he had received no training in its use. The EPIRB released automatically and came up to the surface as designed, but it did not transmit. Inspection revealed that the activation button had not been turned from "Safe" to "Arm" during installation (see Appendix G). The owners' fleet director stated that he had read the instruction manual to the master in his office. However, this assertion was not borne out by the evidence as neither the master nor the crew knew how to operate the EPIRBs. Ultimately, it is the master's responsibility to familiarize himself with all safety devices on the vessel and to provide appropriate training to the crew.

    The EPIRB Regulations stipulate that vessels carrying more than two lifeboats must have Class II EPIRBs installed near the lifeboats, and that the EPIRBs should be placed in the first two lifeboats launched. The Class II EPIRBs on the "NADINE" were not used.

    1.10.5.2 Recovery of EPIRBs

    On 17 December 1990, the Class I EPIRB of the "NADINE" was recovered in position 47°33′N, 61°24′W.

    Neither the name of the vessel nor the service date appeared on the transmitter. However, the date of the most recent battery change was indicated. The regulations specify that no vessel required to carry an EPIRB may make a Class II home-trade voyage unless the EPIRB is marked on its outer surface with the vessel's name or permit number.

    In July 1991, after being under approximately 30 m of water for seven months, the two Class II EPIRBs were recovered. Both were still in their cradles.

    1.10.5.3 Testing of the EPIRBs

    In January 1991, the Quality Assurance Directorate of the Department of National Defence tested the Class I EPIRB and found it to be fully operational. In October 1991, the two Class II EPIRBs were inspected. One was not watertight and was not in working order. The other had operational electrical circuits but failed the short-term frequency stability test.

    1.10.6 Muster List

    Copies of the muster list from the "RALI II", the "NADINE's" sister ship, prepared by the owners, were posted in the wheel-house of the "NADINE", in the alleyway of the main deck accommodation and in the galley. The muster list, which is not required by existing Canadian regulations, lacked the following information:

    • the location of muster station where roll call will be carried out;
    • the emergency stations of the crew members responsible for picking up the two Class II EPIRBs;
    • the duties assigned to the ninth crew member;
    • the duties assigned to the F & O biologist or the emergency station of the crew member required to supervise her.

    No notices describing the stations to be occupied by crew members during boat and fire drills were posted above the bunks in the cabins, and no such notices were required by the regulations.

    1.10.7 Emergency Drills

    A drill was performed on 03 May 1990 during the annual inspection. It was reported that a second drill was usually performed during the summer at sea. However, others stated that only one drill a year was usually conducted. Regulations require that such drills be performed at least once a month aboard vessels of more than 150 gross registered tons (GRT). In the course of such drills, masters are required to instruct their crews on their duties, on the layout and facilities of the vessel, and on the operation of any equipment that they may be called upon to use. The crew is required to demonstrate its familiarity with that equipment, including immersion suits.

    During the annual boat and fire drill in May 1990, the crew members donned lifejackets and proceeded to muster stations with their immersion suits. Crews of other vessels were gathered on the wharf at that time, but of the 60 or so fishermen who were present, only 1 or 2 volunteers put on their immersion suits and jumped into the water.

    The owners had not issued any guidelines for boat and fire drills, nor were they required to do so by regulation.

    There was no general alarm bell on board the "NADINE" and none was required. During annual drills, the alarm was sounded by means of the ship's whistle.

    1.11 Search and rescue (SAR)

    1.11.1 Distress call

    The distress call transmitted by the "NADINE" at 2235, 16 December, was received by the CGRS at Cap-aux-Meules and by the "SIMON FRASER", which was anchored SW of the island of Havre-Aubert. At 2237, CGRS Cap-aux-Meules informed the Halifax Rescue Coordination Centre (RCC) of the accident.

    1.11.2 SAR mobilization

    On receipt of the distress message, the Halifax RCC mobilized four CCG surface units, and assigned duties to vessels in transit or berthed in the Gulf of St. Lawrence that were able to respond.

    At 0128, about 2 hours and 45 minutes after the sinking, the "CAP-AUX-MEULES" became the first surface unit to reach the scene. She was unable to conduct an effective visual search because her bridge is only about 3 m above the surface of the water and the seas were running at 6 to 7 m.

    At 0320, the "SIMON FRASER" arrived at the scene and assumed the duties of Coordinator Surface Search (CSS). She assigned search sectors to incoming units as they arrived.

    The RCC also called on helicopters and fixed wing aircraft from Canadian Forces Bases (CFB) Summerside, Shearwater, and Greenwood. Bad weather severely hampered aircraft operations, but four helicopters and two fixed wing aircraft did get airborne on 17 December and participated in the search. The first aircraft, an Aurora from CFB Greenwood, arrived at the scene at 0445, approximately six hours after the sinking.

    1.11.3 Search objectives

    At 0610, the first search objective, the lifeboat, was located by the Aurora aircraft with the assistance of the "SUZANNE P". This was the forward portion of the boat, which had broken in two, and no survivors were found with it.

    At 0635, the "SUZANNE P" observed a strobe light and located the master and the first of the victims. The master was picked up by the "SUZANNE P" and the victim by the "MARY HICHENS".

    At daybreak, the weather became calmer with an easterly wind of 10 to 15 kn, seas of 2 to 3 m, and fog.

    At 0700, using a heat detector, the Aurora located one survivor, the bosun, in liferaft No. 2151. He was later picked up by the "CAP-AUX-MEULES".

    At 0715, the "CAP-AUX-MEULES" discovered the second liferaft, No. 2077. Its canopy was deflated and it had no occupants. The raft was later recovered by the "SIMON FRASER".

    At about 0800, the RCC decided to restrict the search to locating victims in the water. At 0844, the last of the life-saving gear was recovered.

    At 0910, the "G.C. GORTON" discovered a second victim who was later recovered by the "SIMON FRASER". At 0930, a Buffalo aircraft located a third victim who was picked up by the "MARY HICHENS". At 0942, the "SIMON FRASER" located and recovered the fourth and last victim found that day.

    At 1140, the "G.C. GORTON" recovered the Class I EPIRB.

    Search activities for 17 December ended with the return of the fishing vessels to port between 1800 and 2000.

    On 18 December, the search resumed with the assistance of one Buffalo aircraft, one Labrador helicopter, four CCG ships and several fishing vessels.

    At 1510, the "SOULEIADO" located the wreckage of the "NADINE" in position 47°26.43′N, 61°19.35′W, in 28 m of water. Divers aboard the "G.C. GORTON" recovered the body of one fisherman from the wreck. At 1800, the Halifax RCC reduced the search and, at nightfall, the operation was concluded. The outcome: two survivors, five dead and three missing.

    During the underwater inspection of the wreck in July 1991, the body of the biologist was discovered in the utility room under the wheel-house. The remaining two victims were not found.

    1.11.4 Survival

    Studies show that, at a water temperature of −1° C , the predicted survival time for a person not wearing an immersion suit is about 20 to 60 minutes (see Appendix H). There are recorded cases of persons wearing an immersion suit surviving in water at temperatures near zero for up to 24 hours.

    The master, who was floating in the water, deflated his immersion suit whenever he began to shiver, and then blew it up again with warm air. He repeated this operation approximately three to four times an hour. In addition, he refrained from urinating in order to remain dry.

    The bosun, who was alone in the liferaft, launched a parachute flare at about midnight. However, no rescue unit was in sight. Approximately 15 minutes later, he saw some lights on the horizon and he launched a second parachute flare. The hand flares were not used. Shortly afterward, an aircraft overflew the site.

    1.12 Design of the vessel

    The steel vessel's hull was subdivided by three watertight transverse bulkheads: one collision bulkhead between the forepeak tank and the oil fuel bunker tank, at frame 76; one bulkhead between the after end of the engine-room and the forward end of the fish holds at frame 43; and one bulkhead between the after end of the fish holds and the lazaret at frame 11 (see Appendix J). The two latter bulkheads were equipped with watertight doors to the tunnel below the fish holds. There was no mechanism allowing these doors to be closed by remote control, nor was this required by regulation, and there were no notices on the doors requiring that they be kept closed at sea. It is the master's responsibility, as indicated in several CCG Ship Safety Bulletins, to ensure that such closing appliances are closed at sea when necessary.

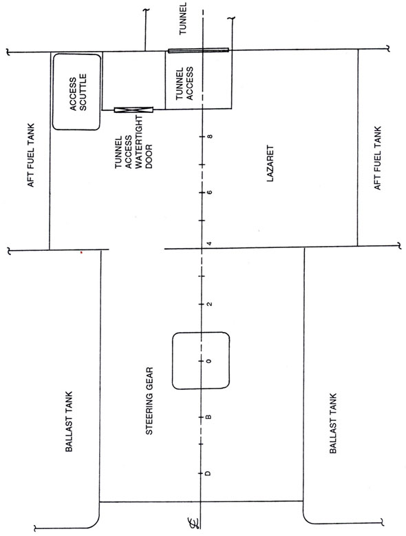
    1.12.1 Lazaret

    Below the stern ramp, the steering gear compartment lies between the starboard and port ballast tanks. The net store at the forward end lies between the starboard and port oil fuel bunker tanks. Forward, on the centre line, there is a casing with a watertight door leading to the propeller shaft tunnel and, to port, a companionway to the scuttle leading to the afterdeck. The steering gear compartment and the storeroom are separated by a transverse bulkhead with a permanent opening. The lazaret has a volume of 60.4 m³ (see Appendices J and K).

    1.12.2 Propeller shaft tunnel

    This compartment extends longitudinally from the casing in the lazaret to the after engine-room bulkhead. It contains the propeller shaft, the bearings and the controllable-pitch mechanism. The tunnel projects into the lower portion of the fish holds. Because the service area is located to port of the shaft, the tunnel occupies a larger portion of the port hold. The tunnel has a volume of 46.9 m³.

    1.12.3 Fish holds

    The two longitudinal fish holds are located between the engine-room and the lazaret. They are separated by a watertight longitudinal bulkhead above the tunnel. Each hold is subdivided horizontally in two by floorboards, and vertically in three by corrugated aluminium poundboards. There is a drainage well in the middle of each hold in way of the tunnel. The starboard and port holds have volumes of 221 m³ and 213 m³ respectively.

    1.12.4 Engine-room

    This compartment is located forward of the fish holds, below the forecastle accommodation. The engine-room has a volume of 340 m³.

    1.12.5 Openings

    1.12.5.1 Lazaret scuttle

    A scuttle cover mounted on two hinges and located on the port side of the afterdeck provides access to the lazaret (see Appendix J). The scuttle cover is secured by steel wedges. The lazaret was used primarily for maintenance of the fishing gear and by the chief engineer for inspection of the steering gear. Reportedly, no one checked that this opening was secured before the return voyage and no leakage was noted in the lazaret on the last day. Neither of the two survivors had gone to the lazaret on the day of the sinking.

    1.12.5.2 Tunnel

    The forward door between the tunnel and the engine-room is reported to have remained open at all times on the "NADINE", as on other trawlers, and the after door at the lazaret casing was reportedly closed at the time of the accident. The master did not notice any flooding from the tunnel during his last visit to the top of the engine-room, nor was any flooding mentioned by the chief engineer who was looking toward the tunnel entrance at the time of that visit.

    1.12.5.3 Manholes

    When the trawl is hauled in, it is hoisted onto the afterdeck above the manholes and then opened. The catch spreads over the afterdeck and drops into the fish holds through those manholes from which the covers have been removed. The catch is then stowed in the various compartments of the holds. When a compartment is full, and before the manhole covers are replaced, silicone is applied to the rim of the manholes to ensure a proper seal. The covers are then replaced and secured with dogging clips. Without the silicone, water may leak in around the rims or dogs of the manholes. New covers are provided on request when defects are noted.

    There were 20 manholes on the afterdeck of the "NADINE". Eighteen of the covers had three dogging clips, one had four, and one was a permanently secured welded plate.

    During the last voyage, many members of the crew had been involved with closing the manhole covers, therefore, the bosun was unsure whether all the manholes had been sealed with silicone and secured.

    Neither the owners nor the master had issued clear instructions making a specific person responsible for checking that the openings were closed.

    It is common practice for the manholes to be secured during the outbound voyage to preserve the ice supply and during the return voyage to preserve the catch (see Appendices L, M and N). The CCG inspected these openings in May 1990 and found no defects.

    In the interest of safety, the Large Fishing Vessel Inspection Regulations state that the covers should be secured or attached by a permanent chain. The TSB found only one piece of chain on the underside of a single cover.

    1.12.5.4 Hatches

    The hatches of the fish holds are used for loading ice and unloading the catch. There is one hatch for each hold on the afterdeck. The covers of the hatches are generally closed by the shore crew before the vessel leaves port and remain secured for the duration of the voyage. At the beginning of the final voyage, the covers were secured by the vessel's crew. They were still secure when the underwater inspection of the vessel was conducted in 1991.

    For safety purposes, the Large Fishing Vessel Inspection Regulations state that covers must be equipped with devices to ensure that they are watertight.

    1.12.5.5 Engine-room

    The outside companionway to the engine-room was closed off by a watertight door on the afterdeck and there was a fire door at the top of the interior companionway to the accommodation. On each side of the hull, there was a ventilation shaft running from the upper part of the engine-room to the boat deck.

    1.12.5.6 Doors to accommodation

    The port door from the alleyway to the afterdeck was usually left open to improve air flow to the accommodation. The portholes on this deck are permanently secured.

    1.12.5.7 Air pipes

    During the vessel's mid-life refit as a seiner in 1979, the original after air pipes to the ballast tanks were replaced with air pipes without non-return valves and covers. The "NADINE" was subsequently refitted as a trawler, but the air pipes were not equipped with non-return valves or covers.

    Current regulations make no reference to means of closing ventilators.

    1.12.5.8 Freeing Ports

    Water which broke over the bulwarks onto the afterdeck was cleared on each side of the vessel by a series of four freeing ports. The fifth and foremost port on each side was welded closed. When first launched, the "NADINE" had six ports, one measuring 0.179 m2 and five measuring 0.336 m2, for a total of 1.859 m2.

    The minimum required freeing port area for this vessel was 1.990 m2.

    At the time of the sinking, the total freeing port area was 1.523 m2.

    It is reported that during heavy weather the "NADINE" tended to ship water and was slow to clear water washing over the afterdeck.

    1.13 Inspections

    1.13.1 Underwater inspections

    The underwater inspections performed at the wreck site by the TSB in April and July 1991 revealed the following:

    • the speed control lever was set to full speed and the propeller pitch control lever to full astern;
    • there were no water level alarms for the fish holds or the lazaret on the alarm panel in the wheel-house;
    • the two Class II EPIRBs were still secured in their cases;
    • the air vents to the engine-room on each side of the accommodation on the boat deck were open;
    • the starboard door from the afterdeck to the engine-room was closed but not secured;
    • the port door from the afterdeck to the accommodation alleyway was open;
    • approximately 10 m of netting was unrolled from the trawl drum;
    • fourteen manholes were secured (see Appendix M);
    • there was no sign of damage to the manhole covers that were in place;
    • six manholes were open, two to starboard and four to port;
    • five manhole covers were spread out over the afterdeck with their dogs turned to the open position;
    • there was no sign of damage to the dislodged covers;
    • no damage was evident to the rims of either the open or the closed manholes;
    • the lazaret scuttle cover was closed but not secured, the after hinge was broken, and the steel wedges were not in position;
    • the after door from the tunnel into the lazaret was partially open and a section of net was lying on the doorsill;
    • the forward door from the tunnel to the engine-room was closed but not secured.

    On 10 November 1991, divers from the Quebec Police Force (SQ) inspected the hull and found that there was no major damage except for a crack in the shell plating in way of the after port ballast tank. They found that the propeller pitch control was set to astern.

    1.13.2 Dockside inspection

    On 08 November 1991, the floating crane "TAKLIFT 4" refloated the "NADINE" which was then towed to the wharf at Grande-Entrée, Magdalen Islands. A dockside inspection by the TSB revealed the following:

    • the vessel floated alongside the wharf without the use of a pump;
    • the following unlabelled controls were fitted on the starboard console in the wheel-house (see Appendix O):
      • Engage Propeller Shaft Clutch;
      • Disengage Propeller Shaft Clutch;
      • Emergency Stop, Main Engine;
    • a red handle in the "use" position indicated that the main engine was in operation at the time of the sinking;
    • power was being provided by the port generator immediately prior to the sinking;
    • of the 23 valves found in the engine-room, the following were in the open position:
      • sea water suction;
      • ballast tank suctions;
      • keel cooling;
      • fire and wash-deck discharge;
      • overboard discharge.

    During the winter of 1992, the following observations were made by the present owners:

    • the oily water in the lazaret was pumped into the tunnel to reduce the oily water level to about 5 cm below the floorboards in the steering gear compartment, and no appreciable ingress of water was observed; and
    • the after starboard ballast tank could not be permanently pumped dry.

    An inspection of the lazaret by the TSB in April 1993 revealed that:

    • over a period of about one year, the oily water level in the lazaret had increased by some 10 cm (i.e. to about 5 cm above the floorboards in the steering gear compartment); and
    • the stuffing box of the rudder stock was not accessible.

    1.14 Stability

    When operated in the loading condition at the time of the accident with all openings subject to downflooding secured, the "NADINE" had an angle of downflooding of 45.3°, as downflooding would occur when the louvres of the engine-room ventilation shaft located on the boat deck became immersed. However, when the door to the accommodation is left open on the afterdeck, the angle of downflooding is reduced to 25.7°. The CCG Stability Standards for Fishing VesselsFootnote 5 state that "a ship is to be considered as having entirely lost her stability at (the downflooding) angle", and the criteria of CCG STAB 4 tacitly infer that the minimum downflooding angle should not be less than 30°.

    Calculations were carried out by the TSB to check the vessel's subdivision and hydrostatic characteristics. These were found to be in general agreement with the builder's original data and were used in the verification of the vessel's transverse stability and trim conditions at the time of the accident.

    The vessel's stability condition was assessed on the basis of the reported condition at the beginning of the return voyage in conjunction with the progressive reduction in positive stability during four hours of downflooding. With about 150 tonnes (t) of fish, the vessel was carrying only half of her maximum capacity. The fish remaining on the afterdeck only marginally affected the vessel's stability and, for the purposes of calculations, it is assumed that there was approximately 6.6t of fish in the trawl net.

    At the beginning of the return voyage, the vessel had positive intact static and dynamic stability. However, because the door to the accommodation had been left open, the "NADINE" did not meet the requirements of CCG STAB 4 which include maintaining the watertight integrity of the hull.

    Nevertheless, even with the lazaret, the tunnel and both fish holds filled, the vessel would have retained reserve buoyancy and remained afloat. The static and dynamic stability diminished gradually as the settling by the stern increased. The free surface effect created by the sea water on the afterdeck further reduced the trawler's residual stability. Despite the complete flooding of certain compartments, the vessel retained positive stability for a while and remained afloat until the reserve buoyancy was eliminated.

    Several hours of downflooding at the reported rate would be required before the "NADINE" would sink in the prevailing conditions.

    1.15 Machinery

    1.15.1 Bridge control

    The vessel was equipped with a Seffle bridge control system consisting of three sets of synchronized control levers: one controllable-pitch lever on the central console; one controllable-pitch lever on the bridge's port bulkhead; and one set of two levers on a console by the open starboard wheel-house window. The small lever on the left controlled the main engine speed, the larger one on the right controlled the propeller pitch.
    The bridge control was connected to a hydraulic controllable-pitch unit manufactured by Osborne Propellers Ltd. The pitch control unit was located in the after portion of the tunnel while the pumps were located in the engine-room beneath the floorboards.

    The vessel could be stopped at sea from the wheel-house by:

    • pressing the black main engine emergency stop button;
    • pressing the propeller shaft clutch release button;
    • reducing the propeller pitch to zero;
    • reducing the speed of the main engine.

    When the ship was being abandoned, the propeller pitch lever was set to "two ahead", a setting equivalent to the neutral position. In other words, the pitch was reduced to zero.

    1.15.2 Recurring controllable-pitch failures

    It was stated that on many occasions following electrical power failures while the vessel was at sea, the pitch had suddenly and automatically changed to astern while the vessel was under way. The controllable-pitch alarms apparently did not sound when this happened.

    The pitch control unit on board the "RALI II" is similar to that aboard the "NADINE". Under the supervision of the Head, Laurentian Vessels Branch of F & O, the performance of the sister ship's pitch control unit was tested on 17 September 1991. It was found that when a power failure occurs while the vessel is going full ahead, the propeller pitch changes from full ahead to full astern in 7 minutes and 15 seconds. On the other hand, if the vessel is not moving and the propeller is immobile, the propeller pitch does not change. The test report therefore concludes that when the controllable pitch becomes inoperative while the vessel is going full ahead, the thrust of the water against the blades gradually pushes the propeller pitch from ahead to astern. When the main engine is on slow ahead, it takes significantly longer for the pitch to change from ahead to astern.

    Information from the manufacturer of the controllable-pitch propeller confirmed that "hydrodynamic forces will move the pitch to full astern if the hydraulic pressure is lost." How quickly this occurs is partly dependent on the rate at which "the oil escapes from the hydraulic intermediate shaft to the tank."

    The TSB data bank, which contains data on occurrences since 1976, has no report of these power failures or pitch reversals on the "NADINE".

    1.15.3 Steering gear

    The electrical drive component of the electro-hydraulic steering gear was a non-watertight electric motor installed on the bulkhead aft of the steering gear compartment in the lazaret.

    When the master went up to the bridge, the vessel was turning to port, and the rudder angle indicator, which was no longer operational, showed a constant rudder angle of 10° to port.

    The master first attempted to set the vessel back on course by adjusting the autopilot, but the autopilot did not respond. He then disengaged the autopilot, but the vessel still failed to respond. After these attempts, the pitch was set to neutral.

    The master reported that his attempts to use the steering in the manual mode were unsuccessful. This is contrary to the results of tests conducted on the sister ship, "RALI II", with the wheel in the manual mode. These tests showed that the telemotor turns the rudder even when there is no electrical power to the steering gear.

    The steering gear of the "NADINE" was operating normally on departure from Stephenville.

    1.15.4 Power system

    Normal lighting was provided by a power system consisting of two generators used alternately. They could not operate in parallel. If one generator broke down, the other had to be turned on manually from the engine-room. At the time of the sinking, the port generator was in operation.

    1.15.5 Emergency lighting

    The emergency lighting in the companionways and the engine-room was powered by two batteries connected in series. The power supply for the emergency lighting was located in the wheel-house but, at the time of the sinking, it was not turned on. The lights went out before the vessel went down, and the crew abandoned ship in total darkness.

    1.16 Information on the pumping system

    1.16.1 Pump suctions

    The steering gear compartment, the storeroom of the lazaret, the tunnel and both fish holds each contained one drainage suction. The engine-room had two.

    Drainage was effected by two main pumps: one connected to a generator and the other to an electric motor. In an emergency, a third, auxiliary pump could be placed in service. In addition, a manual pump could be used to pump out the forecastle storeroom. The vessel carried no submersible automatically activated pump. All pumping was initiated from the engine-room.

    An inspection of the valves following the refloating of the vessel indicated that no pumping of the lazaret, the tunnel, or the engine-room was under way when the vessel went down. Only the valves to the after ballast tanks were open.

    1.16.2 Alarm panel

    A panel in the wheel-house contains sound and visual alarms for the tunnel and engine-room only. There are no water level detectors for the fish holds or the lazaret, which includes the after storeroom and the steering gear compartment (see photographs, Appendix P).

    The panel was recovered from the wreck but, although several indicator bulb filaments were broken, it could not be determined if the bulbs were illuminated at the time of the sinking.

    The installation of water level alarms in the various compartments of a Canadian fishing vessel is not a regulatory requirement.

    1.16.3 Leak

    Two days before the sinking, on Friday 14 December, the chief engineer pumped out the lazaret using the engine-room pump. He retightened the stuffing box of the rudder stock at about the same time. The leak must have been relatively large because the water was above the floorboards in the steering gear compartment. The leak, of unknown origin, appears to have been restricted to the steering gear compartment and was not reported to the master by the chief engineer until the following day. The master did not ask the chief engineer about it again nor did he personally check the water level in the lazaret to ensure that the leak had been permanently plugged.

    The master saw the chief engineer go down into the lazaret on the day of the sinking, but he received no reports of a further leak. The bosun did not see the leak on 14 December and did not go down into the lazaret on 16 December.

    1.17 Information on the voyage

    1.17.1 Loading

    At the beginning of the voyage, the fresh water tanks were full and the fuel bunkers were down approximately 250 mm. Fifty-six tonnes of ice had been loaded into the fish hold to preserve the catch.

    According to the master, the fish holds of most stern trawlers are loaded from the stern forward. Because the "NADINE" was trimmed by the stern in the light condition, the fish holds were loaded diagonally, that is, simultaneously in the forward portion of one and the after portion of the other. The middle portions were never filled to capacity because the approximate 147t (325,000 lb.) per-trip quota for each vessel prevented the "NADINE" from taking on a full load of redfish. The fish holds of the "NADINE" had a maximum capacity of 325t (716,800 lb.).

    During this last voyage, the "NADINE" caught a total of approximately 149.7t (330,000 lb.) in five trawls.

    When the fish from the last catch was left on the afterdeck in the trawl, the 1 m high, 10 m long trawl was not secured on deck but, instead, was wedged against the trawl drum. Stowing the balance of the last catch in the holds would have taken approximately 20 minutes.

    Before the sinking, the two ballast tanks near the steering gear compartment were empty. These tanks can be used to trim the vessel when necessary.

    1.17.2 Impact

    According to the witnesses, the vessel had not struck a reef or other object which may have caused a leak.

    1.18 Rest

    The master normally had the conduct of the vessel during trawling operations. When he handed control to the mate at about 2130 on 16 December, he had been directing the crew for more than two days except for a few rest periods. He had been in his cabin for less than an hour when he was summoned to the wheel-house by the mate at 2230, 16 December.

    The mate had been given time to rest during the day of 16 December before he relieved the master, taking over the navigation watch. From the evidence, it was not possible to determine with certainty whether or not the regulatory requirement for a vessel the size of the "NADINE" to have an additional qualified person present on the bridge was met.

    Crews have approximately two days off between fishing voyages, which last five to six days each.

    1.19 Maintenance and safety

    Following each voyage, the mate and the chief engineer would submit a list of repairs to be performed by the shore maintenance crew. Records were kept only of maintenance to the main engine and the auxiliaries (oil changes, etc.). The fleet director would meet the master and the chief engineer to discuss requisitions and to pass on the owners' instructions for the fishing operations.

    The owners do not appear to have received any documentation from the CCG, and the fleet director had discontinued receiving the Notices to Shipping because he did not consider them useful. However, no differentiation between the Notices to Mariners, Notices to Shipping and Ship Safety Bulletins could be made.

    The master had sole responsibility for safety on board.

    2.0 Analysis

    2.1 Leak during last layover

    The cause of the leak discovered while the vessel was in Stephenville is unclear. There is no evidence to suggest a striking or bottom contact. The stuffing box of the rudder stock was tightened and the lazaret was pumped out. It is stated that, on this vessel and other fleet vessels, the stuffing box had to be retightened on a regular basis. It is unclear whether the corrective action taken in Stephenville was permanent. The survivors had not visited the lazaret during the return voyage. Because the stuffing box remained inaccessible and the owners provided scanty maintenance records, the condition and maintenance of the stuffing box remain unknown. It was reported that similar leaks had occurred in the past. Whatever the extent of the leak, the April 1993 inspection revealed that when the vessel was dockside and the rudder stock left motionless over a long period of time, ingress of water in the steering gear compartment was negligible. Evidence suggests that the rate of ingress of water before the foundering could only have occurred through downflooding.

    2.2 Closing of the openings

    Because the crew decided to leave part of the final catch on deck, the manholes located under the trawl became inaccessible. The covers for those manholes therefore remained unsecured. Other manholes located in the forward portion of the afterdeck were also left unsecured, probably because they were overlooked.

    2.3 Watch

    Although the mate had had some rest during the day of 16 December, he may well have been fatigued from two days of fishing when he took over the final watch. It is also possible that there was no other crew member in the wheel-house to help him remain alert. The mate may thus have been operating at something less than peak efficiency as the emergency developed.

    As the chief engineer did not have a fixed schedule, it was impossible to determine whether he was working on the evening of 16 December.

    2.4 First Indication of a leak

    When the "NADINE" was called by the "ADÈLE", the first mate mentioned that the vessel 'rolled heavily'. This could have been an indication that the vessel's stability had possibly been altered by downflooding. An accumulation of water combined with the associated free surface effect can affect a vessel's manoeuvrability. Confirmation that the vessel was in trouble came when the mate on the bridge realized that the steering gear had failed. Shortly thereafter, the flooding in the lazaret was discovered. The flooding had caused the electric motor for the steering gear to short-circuit and the electro-hydraulic steering gear to fail. There was no water level detector in that compartment and, therefore, no alarm in the wheel-house to alert the bridge team.

    Hull inspections carried out in 1991 revealed that the flooding was not caused by a major leak below the waterline. Furthermore, since the "NADINE" was 15 years old and had weathered storms of equal or greater severity on numerous occasions, it is unlikely that the trawler's design was a factor in this occurrence.

    2.5 Flooding of the compartments

    The reported increase in stern trim must have resulted from flooding of the vessel's after compartments. A leak in the stuffing box may have contributed to the flooding, but the lazaret compartment would have flooded through the scuttle in any event since underwater inspections revealed that the lazaret scuttle cover wedges were not in place, and that the cover was therefore not secure. One of the hinges of the cover was damaged, probably as a result of battering by the waves which were constantly washing over the deck while the cover was not secure. The motion of the water on the afterdeck, induced by the vessel's pitching, rolling and listing, would have started the trawl moving also and caused the unsecured manhole covers to the fish holds to become dislodged from their rims.

    There were twice as many closed but unsecured covers on the port fish hold as on the starboard hold (see Appendix M). The unsecured manhole covers furthest aft were more likely to be the first open because they would be disturbed by the trawl. The furthest aft unsecured manholes were on the port side fish hold. In all probability, the port hold flooded first through the after manholes. As the after compartments were flooding, the trim by the stern would have increased, and more and more sea water would have washed over the afterdeck above the fish holds.

    Because the doors to the tunnel were not secure, water was able to flood from the lazaret into the tunnel, and from the tunnel into the engine-room. The open doors of the alleyway and the companionway on the afterdeck would also have allowed water to flood the engine-room.

    Because the air pipes to the after ballast tanks were not fitted with non-return valves or covers, downflooding into these tanks could also have occurred.

    Because the port door to the accommodation had been left open in the bad weather, sea water could have entered the accommodation area as the vessel heeled to port.

    When the vessel's list reached 45°, downflooding would also have occurred through the louvres of the engine-room port ventilation shaft.

    2.6 Crew assembly

    Because of a combination of fatigue and inadequate training in boat and fire drills, the crew's performance in the emergency may have been somewhat inefficient. Although participation in boat and fire drills was mandatory on board the "NADINE", one drill a year is simply not enough to enable a crew to become thoroughly familiar with emergency procedures.

    The muster list that had been posted by the owners was a copy of the sister ship's ("RALI II") and did not contain the location of the muster station, the emergency stations of the crew members responsible for picking up the Class II EPIRBs and the duties assigned to the ninth crew member and the biologist. The lack of such information may well have detracted from the crew's handling of the emergency.

    The master's decision to have the mate wake each member of the crew individually used up much of the time available for the abandonment. The last members to be awakened had little time to get dressed and get to the boat deck before the vessel sank. Also, the mate's involvement with the alerting process delayed his efforts to launch the liferaft. Although it is reported that the ship's whistle was used to sound the alarm, there is no indication that it was heard. Nonetheless, assembly took place, but no head count was taken outside the wheel-house.

    When the wheel-house was evacuated, the propeller pitch had been reduced to neutral, but the propeller shaft was not disengaged and the main engine was not stopped.

    2.7 Launching of the liferaft

    The crew members' limited or lack of training in emergency procedures may have contributed to the difficulty that they experienced in launching the starboard liferaft. Weather was certainly a factor, but the use of proper procedures might have enabled more than one crew member to make use of the raft.

    Inflatable liferafts such as those carried by the "NADINE" are designed to be boarded from the sea. One person can jump onto the canopy and go inside the raft, but others must jump into the water next to the raft and climb in with the help of the person already aboard.

    2.8 Loss of lighting

    When the on-line port generator flooded, the vessel was thrown into total darkness. No emergency lighting was available because the switch in the wheel-house was not turned on. The lack of lighting may have contributed to the confusion and panic that attended the abandonment.

    2.9 Sinking

    Because the initial downflooding took place in after compartments, the vessel initially trimmed by the stern and the stern trim increased as the downflooding continued. When reserve buoyancy was lost, the vessel sank by the stern.

    2.10 Survival and rescue

    The survival experience of the "NADINE's" crew was directly related to the use of immersion suits. The master, who had used the suit correctly, survived in the water for a long time with relatively few ill effects. Those who had donned their immersion suits but had not done them up stood a better chance of surviving than those who had not put them on at all. Crew members who did not make use of the suits stood little chance of surviving for more than a few minutes.

    To be fully effective, an immersion suit must be made watertight. It is essential, therefore, that the zipper be tightly closed. Some crew members underestimated the importance of donning their immersion suits and closing the zippers before leaving the wheel-house.

    2.11 EPIRBs

    The EPIRBs had been installed on the "NADINE" shortly before the end of the 1990 season. However, neither the master nor the crew knew how to operate them properly, and the EPIRBs therefore contributed nothing to the rescue operation. None of the three units transmitted a distress signal, but the vessel's radio distress call was picked up by the CCG, and rescue units had no difficulty in locating the site of the sinking.

    2.12 Damage

    Underwater examination of the hull showed only one crack that could have resulted in a leak. The cause of that crack is unknown. However, witnesses stated that no impact was felt before the sinking, and no evidence exists of any pre-sinking structural problem.

    The area of the crack would have been the first part of the vessel to make contact with the ocean floor. It is thus considered that the damage may have occurred when the vessel hit the bottom.

    After the vessel was salvaged, she floated evenly without the use of a pump despite having water in the lazaret and the two after ballast tanks.

    2.13 The Biologist

    The biologist had not taken part in a boat and fire drill on the "NADINE" and, at the time of the accident, members of the F & O staff, like the biologist, were not required to take a MED course before going to sea.

    It is not known whether the biologist had been issued an immersion suit. If she did have one, it would probably have been kept in the storeroom that contained the crew's suits.

    Although there are several possibilities, it is not known how the body of the biologist came to be in the utility room below the wheel-house.

    What is known is that one body and two immersion suits were found inside the wheel-house, and that divers reported a significant current inside the wreck. The crew member and the biologist may have been putting on their immersion suits in the wheel-house when the vessel went down.

    2.14 Fatigue

    It is likely that on the final day of the voyage the crew members were suffering from fatigue after a busy period of fishing. Evidence suggests that they may therefore have paid less attention than they ordinarily would to routine tasks such as replacing and sealing the manhole covers.

    2.15 Cold

    Some of the crew members were undoubtedly suffering from the cold. Their ability to launch the liferaft correctly may have suffered as a result.

    3.0 Findings

    3.1 Findings

    1. The source of the leak discovered at Stephenville and whether that leak was permanently plugged remain unknown. The leak was not reported to the master until 15 December when the vessel was already under way.
    2. The stuffing box of the rudder stock had leaked on a number of occasions and had to be retightened in Stephenville.
    3. Five of the 10 persons aboard had taken MED courses.
    4. Only the starboard inflatable liferaft was accessible to the crew at the time of the sinking. The port liferaft and the lifeboat were inaccessible because of the pronounced list of the vessel.
    5. Because of inadequate training, not all crew members knew that they should put on their immersion suits before abandoning ship.
    6. Five crew members donned their immersion suits, but only one closed the suit to make it watertight.
    7. Both survivors had put on their immersion suits.
    8. Some of the crew members had difficulty in putting on their immersion suits and doing up the closures to make them watertight.
    9. The Class I EPIRB was released automatically but failed to function because it had not been activated when it was installed on the vessel.
    10. The two Class II EPIRBs were not activated and were not thrown overboard or taken aboard the liferaft.
    11. The crew had not received adequate training in the use of EPIRBs.
    12. The EPIRBs were not marked so as to be easily identifiable.
    13. The crew was not required to perform a standard life-saving drill every month.
    14. The muster list did not call for taking a crew count in a specific location, nor did it assign responsibility for the deployment of EPIRBs.
    15. The transverse bulkheads forward and aft of the fish holds on the "NADINE" were not watertight because the tunnel doors had not been secured.
    16. There was no notice on the watertight doors indicating that they should be kept closed.
    17. The lazaret scuttle cover was not secured.
    18. The port door of the alleyway leading to the afterdeck was open and the starboard door leading to the engine-room was not secured.
    19. There were no watertight covers for the air pipes.
    20. The total area of the freeing ports was less than the minimum required for safety.
    21. The switches for the emergency lighting system were in the open (off) position and the emergency lighting did not come on after the power failure.
    22. There were 143t of fish stowed in the fish holds and another 7t on the afterdeck (figures are approximate).
    23. Before the flooding of the after compartments, the trawler's static and dynamic stability would still have met STAB 4 standards had the openings on the afterdeck been secured.
    24. Only the valves for the after ballast tanks were open.
    25. The main engine emergency stop button and the propeller shaft clutch engagement and disengagement buttons were not labelled and the master was unfamiliar with them.
    26. The main engine was not turned off before the crew abandoned ship.
    27. The alarm panel in the wheel-house did not include water level alarms for the fish holds and the lazaret.
    28. The starboard fish hold had two unsecured manholes and the port hold had four. About 10 manholes had not been sealed with silicone.
    29. After the sinking, the main engine speed control was found in the full speed position and the propeller pitch control in the full astern position.
    30. The electro-hydraulic steering gear was the first auxiliary mechanism to fail.
    31. The vessel was running before heavy seas.
    32. As a result of flooding, the stern of the trawler settled and a list to port developed, but this went unnoticed until the situation became critical.
    33. The reserve buoyancy was eliminated as a result of flooding.
    34. Only one person was able to board the starboard liferaft.
    35. The shell plating in way of the after port ballast tank was found ruptured on the ocean floor.
    36. Although the CCGC "CAP-AUX-MEULES" was the first unit to arrive at the site of the sinking (LKP), her small size prevented her from making a thorough visual search in the heavy seas.

    3.2 Causes

    The "NADINE" sank because the openings on the afterdeck and in the transverse bulkheads were not secured. Water was thus able to enter the vessel and eventually flood the lazaret, the fish holds and the engine-room. This ingress gradually reduced the vessel's stability until all reserve buoyancy was lost and the vessel sank. Poor weather, darkness, lack of training and the suddenness of the sinking hindered the abandonment and contributed to the loss of life.

    4.0 Safety Action

    4.1 Action taken

    4.1.1 Company - Madelipêche Inc.

    The immersion suits carried on the "NADINE" were of a universal size and difficult for some crew members to put on and to close so that they were watertight. Since this occurrence, the company has provided each crew member of its fleet with his own personal suit. The company has also purchased some extra-large suits.

    4.1.2 Department of Fisheries and Oceans (F & O)

    As a result of this occurrence, F & O now requires that all members of its seagoing scientific staff attend Marine Emergency Duties (MED) courses.

    4.1.3 Canadian Coast Guard (CCG)

    The Class I Emergency Position Indicating Radio Beacon (EPIRB) on the "NADINE" released automatically but it had not been activated. A subsequent inspection indicated that the activation button of the EPIRB had not been turned from the "Safe" to the "Arm" position during installation. Subsequently, the CCG issued a Notice to Shipping and a Ship Safety Bulletin (SSB No. 1/91) advising of the importance for all Class I float-free EPIRBs to be set for automatic operation as soon as they are installed on a vessel.

    4.1.4 Transportation Safety Board (TSB)

    4.1.4.1 Marine Safety Advisories

    Based on the early evidence of the investigation, in May 1991, the following areas of safety concern were brought to the attention of the CCG:

    1. adequacy of MED training and survival skills of the ship's crew members;
    2. adequacy of practices with respect to fire and boat drills;
    3. adequacy of set-up procedures and operational practices for EPIRBs;
    4. operational practices for securing openings in the ship's watertight bulkheads; and
    5. serviceability of immersion suits.
    4.1.4.2 Marine safety recommendations

    Following the sinking of the scallop dragger "CAPE ASPY" in January 1993, the Board identified safety deficiencies common to both the "NADINE" and the "CAPE ASPY" and issued three recommendations:

    1. Watertight integrity and hull openings

      In view of the continuing loss of vessels due to downflooding through unsecured openings, the Board recommended that:

      The Department of Transport develop and implement measures to ensure that owners, operators and masters of vessels under its jurisdiction have effective training and procedures for securing all openings sufficient to preserve the watertight integrity of the hull.
      Transportation Safety Recommendation M93-01

      In its reply, Transport Canada (TC) has confirmed that watertight integrity and its effects on vessel stability will be brought to the attention of the industry by the CCG Examiners of Masters, Mates and Engineers by intensifying the examination in these areas. Further, the CCG issued a SSB urging mariners and operators to keep watertight openings closed at all times except when it is absolutely necessary to open them to gain access to spaces (SSB No. 16/92). The CCG also reissued previous SSB Nos. 1/83 and 4/87 on the same subject.

    2. Dissemination of Marine Safety Information

      In view of the continuing apparent lack of knowledge of critical safety information by fishermen, much of which has already been promulgated by TC in SSBs, the Board recommended that:

      The Department of Transport evaluate the effectiveness of its distribution practices for all marine safety information aimed at fishing masters and fishermen.
      Transportation Safety Recommendation M93-02

      In response to Recommendation M93-02, TC has issued a Special Edition of the SSB to reach several thousand new audience members including many fishing vessel owners. This Special Edition requested all recipients to inform their colleagues, shipowners and companies of the existence of the SSB so that they can be added to the mailing list. It also listed the titles of all SSBs published since 1977 for ease of reference and included them in a Notice to Mariners.

    3. Stowage and Manual Launching of Liferafts

      In view of the extremely harsh physical conditions under which abandonment may be required, the Board believes that all life-saving appliances must be readily accessible and easily deployable for safe abandonment. Therefore, the Board recommended that:

      The Department of Transport ensure that liferafts on all federally approved or inspected vessels are stowed in such a manner as to permit easy manual launching under distress and any environmental conditions likely to be encountered by that vessel.
      Transportation Safety Recommendation M93-03

      In response to Recommendation M93-03, the CCG has issued SSB No. 9/93 which provided recommended guidelines for the stowage and installation of throw-over type inflatable liferafts for ease of launching under icing conditions.

    4. Freeing Ports

      The regulations require fishing vessels to be fitted with freeing ports of adequate area to facilitate rapid and effective freeing of shipped water from the deck. There were six freeing ports on each side of the "NADINE". However, the fifth and foremost port on each side was welded closed. Reportedly, the "NADINE" was slow to clear water washing over the afterdeck.

      It is not uncommon to find freeing ports welded or bolted shut on many fishing vessels to prevent the catch or equipment from slipping through. Apparently, the crews do not always realize the perilous effect of water retained on deck.

      Following a 1990 occurrence involving the sinking of the fishing vessel "STRAITS PRIDE II", the Board was concerned that a vessel's inability to adequately drain shipped seas off the deck will impair stability. Therefore, the Board recommended that:

      The Department of Transport require the installation of water level detectors in all compartments below the waterline on large fishing vessels.
      Transportation Safety Recommendation M92-09

      In response, TC stated that it will continue to give wide distribution to the Small Fishing Vessel Safety Manual, TP 10038, which covers the subject of stability on small fishing vessels.

    4.2 Action required

    4.2.1 Water level detectors

    The ingress of water flooding the lazaret, the fish holds and eventually the engine-room of the "NADINE" gradually reduced the vessel's stability until all reserve buoyancy was lost and the vessel sank. The flooding of the lazaret had caused the electric motor to short-circuit and had disabled the steering gear. Lazarets present special safety hazards resulting in numerous fishing vessel casualties. Therefore, the North Pacific Fishing Vessels Owners Association of the United States advocates the fitting of water level alarms in lazarets.

    Fishing vessels are fitted with numerous openings above and below decks and their watertight integrity is constantly dependent upon the vigilance and timely reaction of the crew. In recent years, failure to monitor and redress water ingress in a timely manner has resulted in the sinking of several fishing vessels. For example, the fishing vessel "NORTHERN OSPREY" sank when water in the flooded engine-room was not detected in time. The high water level alarm in the engine-room was disabled at the time.

    The installation of water level alarms in various compartments of fishing vessels is presently not required by regulation. Accordingly, neither water level detectors nor alarms for the fish holds, the lazaret and the steering gear compartments were installed on the "NADINE". The absence of water level detectors and bridge alarms caused a delay in the crew's appreciation of the flooding that eventually led to the sinking of the "NADINE".

    Delay in identifying and draining water from any compartment can jeopardize a vessel's seaworthiness, due to the water's adverse effect on vessel stability through free surface effect. Therefore, the Board recommends that:

    The Department of Transport require the installation of water level detectors in all compartments below the waterline on large fishing vessels.
    Transportation Safety Recommendation M94-06

    4.2.2 Fire and boat drills on fishing vessels

    The decision to abandon a vessel at sea is often made under intense pressure in a very short time. The more familiar crew members are with their vessel's survival gear and how to use it, the better they will be able to respond to the emergency.

    The donning of immersion suits during emergency drills conducted several times a season can reduce the time required to find and don the equipment in a real emergency. During such exercises, defects in immersion suit zippers or in lifeboat release mechanisms, etc. can be identified and rectified before an actual emergency arises.

    Some crew members on the "NADINE" had difficulty donning and closing their suits. Some suits were found torn, the zippers on others were poorly maintained and difficult to close. Of the five crew members who donned their immersion suits, only the master was able to close his suit properly. The bosun, in spite of repeated attempts, was never able to do up his suit; he had never donned an immersion suit prior to this accident.

    The existing Boat and Fire Drill Regulations require that the drills be conducted regularly at intervals of not more than one month on vessels of the "NADINE's" category. The master of every such ship is required to enter in the official logbook or in another register the full particulars of each boat and fire drill. However, such drills were not held regularly on the "NADINE". It is not uncommon for ships required by regulations to hold regular fire and boat drills, not to do so.

    Since crews who have little or no experience in using survival gear are prone to making fatal mistakes, the Board recommends that:

    The Department of Transport take whatever measures are necessary to ensure that the safety intent of the Boat and Fire Drills Regulations is being fulfilled by owners and operators of fishing vessels.
    Transportation Safety Recommendation M94-07

    4.2.3 Accessibility of life preservers

    During the abandonment of the "NADINE", the crew members had to go below deck to retrieve their immersion suits from a storeroom near the after exit from the port alleyway of the accommodation to the main deck.

    In this occurrence, the situation developed so quickly that the last of the crew had to leave the ship through the starboard window of the wheel-house. Under such circumstances, it is critical that life support equipment, such as immersion suits, be readily accessible and rapidly retrievable without confusion.

    In view of the record of rapid capsizing and sinking of fishing vessels, often leaving crews insufficient time to avail themselves of on-board life-saving equipment, the Board recommends that:

    The Department of Transport conduct a formal evaluation of current practices for the stowage of life preservers and immersion suits on fishing vessels with a view to ensuring immediate accessibility.
    Transportation Safety Recommendation M94-08

    4.2.4 Muster lists

    The current Boat and Fire Drill Regulations do not require vessels with 12 crew members or less to have written muster lists. Being manned by nine crew members, the "NADINE" was not required to have a written muster list. Nevertheless, the "NADINE's" muster list lacked critical safety information; e.g. the location of the muster station for head counts, the emergency stations of the crew members responsible for picking up the two EPIRBs, and the duties assigned to each crew member, including the guest.

    In order to survive abandonment at sea, crew members depend upon their foreknowledge and preparedness — their own and their crewmates'. Muster lists identify vital duties that must be performed in emergencies and assign them to each crew member; muster lists also provide crew members with a plan to manage an emergency situation, thus increasing their chance of survival. Since muster lists present little financial implication for owners, the Board recommends that:

    The Department of Transport encourage all fishing vessel masters/owners to prepare and maintain appropriate muster lists for each vessel, regardless of the crew size.
    Transportation Safety Recommendation M94-09

    4.2.5 MED Training for Fishermen

    During most of the year in Canadian waters, protection against hypothermia is essential for survival. On the "NADINE", some crew members and the biologist were not wearing their immersions suits during the abandonment. Only 5 of the 10 persons aboard had taken MED training and only 2 survived. Due to inadequate training, not all crew members on the "NADINE" knew that they should don their immersion suits before abandoning ship. Lack of training in survival skills undoubtedly contributed to the loss of lives.

    In a January 1993 occurrence involving the sinking of the scallop trawler "CAPE ASPY", 10 of the survivors were rescued from their liferaft after three hours, and 1 other was pulled alive from the frigid sea approximately six hours after the vessel sank. Immersion suits were credited for saving the lives of these survivors.

    Between 1986 and 1991, over 30 Canadian fishing vessels were recorded as being lost due to capsizing, foundering or sinking. Having to abandon their vessels, over 70 fishermen died in this same period. As in this occurrence, some of these losses were exacerbated by a lack of understanding of safety considerations routinely covered in MED training.

    At present, uncertificated crew members are not required to receive such training. Currently, on fishing vessels of between 100 and 400 GRT, only the master is required to have certification. However, approximately 98 per cent of Canadian commercial fishing vessels are less than 100 GRT, and the majority of them are manned by uncertificated crews.

    As a result of the investigation into the sinking of the Canadian fishing vessel "STRAITS PRIDE II" in 1990, the Board recommended that:

    The Department of Transport ensure that personnel who regularly crew closed-construction fishing vessels receive formal training in life-saving equipment and survival techniques.
    Transportation Safety Recommendation M92-06

    It is understood that TC has completed a proposed amendment to the Canada Shipping Act.CSA) that would meet the intent of this recommendation. However, it is not known when this amendment will come into effect. In the meantime, lack of knowledge with respect to life-saving and survival techniques continues to reduce fishermen's chances of survival in emergency situations.

    This report concludes the Transportation Safety Board's investigation into this occurrence. Consequently, the Board, consisting of Chairperson, John W. Stants, and members Gerald E. Bennett, Zita Brunet, the Hon. Wilfred R. DuPont and Hugh MacNeil, has authorized the release of this report.

    Appendices

    Appendix A - Sketch of the "NADINE"

    Appendix B - Fishing zone 1

    Appendix C - Approximate track of the "NADINE" on 16 December 1990

    Appendix D - Survival suit (immersion suit)

    Narwhal Survival Suit E-38-001
    Image
    Appendix D - Survival Suit (Immersion Suit)

    Appendix E - Sketch of 406H(Y) and 406HH(Y) Lokata EPIRBs

    Appendix F - Sketch of 406M(Y) Lokata EPIRB

    Appendix G - Class I EPIRB control panel

    Appendix H - Cold water survival chart

    Appendix J - Cross-section forward of frame No. 9

    Appendix K - Layout of compartments

    Appendix L - Photograph of a manhole cover and its dogging clip

    Appendix M - Diagram of manholes, hatches and doorways as found after the sinking

    Appendix N - Condition of manholes and covers after the refloating

    Appendix O - Wheel-house console controls

    Appendix P - Photographs

    The "NADINE" after being salvaged.
    Image
     The "NADINE" after being salvaged.
    "NADINE" after salvage alongside dock showing main deck, looking forward (abOve) and aft (below).
    Image
     "NADINE" after salvage alongside dock showing main deck, looking forward (abOve) and aft (below).
    "NADINE" after refloating
    Image
     "NADINE" after refloating
    Main deck looking forward towards port bow. Note open manholes and door to port of winch drum.
    Image
     Main deck looking forward towards port bow. Note open manholes and door to port of winch drum.
    Main deck looking aft.
    Image
     Main deck looking aft.
    Bridge control in forwrad starboard corner of wheel-house.
    Image
    Bridge control in forwrad starboard corner of wheel-house.
    Push-buttons to the right of bridge control. Note absence of labels.
    Image
    Push-buttons to the right of bridge control. Note absence of labels.
    Conning/control station and helm in wheel-house after refloating.
    Image
    Conning/control station and helm in wheel-house after refloating.
    Propeller pitch control and jog stick.
    Image
    Propeller pitch control and jog stick.
    Starboard wheel-house engine and propeller pitch controls photographed underwater before refloating.
    Image
    Starboard wheel-house engine and propeller pitch controls photographed underwater before refloating.
    Lazaret scuttle cover.
    Image
    Lazaret scuttle cover.
    Recovered lifesaving equipment includes 2 liferafts, 3 lifebuoys and forward section of lifeboat.
    Image
    Recovered lifesaving equipment includes 2 liferafts, 3 lifebuoys and forward section of lifeboat.
    Typical manholes with raised rims.
    Image
    Typical manholes with raised rims.
    Recovered clock with time of stopping after sinking.
    Image
     Recovered clock with time of stopping after sinking.
    Alarm panel in wheel-house of sister ship "RALI II" similar to that recovered from "NADINEc".
    Image
     Appendix A -
    Front view of the alarm panel as recovered from sunken vessel and received by TSB laboratory. Switches are indicated by letters A-J. Arrows indicate missing lamp caps. The "X"indicates the sockets without lamps.
    Image
    Front view of the alarm panel as recovered from sunken vessel and received by TSB laboratory. Switches are indicated by letters A-J. Arrows indicate missing lamp caps. The "X"indicates the sockets without lamps.

    Appendix Q - Glossary

    A
    aft
    AST
    Atlantic standard time
    bosun
    boatswain
    C
    Celsius
    CCG
    Canadian Coast Guard
    CCGC
    Canadian Coast Guard Cutter
    CCGS
    Canadian Coast Guard Ship
    CFB
    Canadian Forces Base
    CGRS
    Coast Guard Radio Station
    CSS
    Coordinator Surface Search
    EPIRB
    Emergency Position Indicating Radio Beacon
    ESE
    east - south - east
    F
    forward
    F & O
    Fisheries & Oceans Canada
    GRT
    gross registered ton(s)
    IMO
    International Maritime Organization
    kg
    kilogram(s)
    kn
    knot(s)
    lb.
    pound(s)
    LKP
    last known position
    m
    metre(s)
    m2
    square metre(s)
    m3
    cubic metre(s)
    M
    nautical mile(s)
    MED
    Marine Emergency Duties
    mm
    millimetre(s)
    N
    north
    RCC
    Rescue Coordination Centre
    SAR
    Search and Rescue
    SE
    south - east
    SI
    International System (of units)
    SIC
    Steamship Inspection Certificate
    SSB
    Ship Safety Bulletin
    SQ
    Sûreté du Québec
    SW
    south - west
    t
    tonne(s)
    T
    true
    TSB
    Transportation Safety Board of Canada
    UTC
    Coordinated Universal Time
    VHF
    very high frequency
    W
    west
    °
    degree(s)
    minute(s)
    second(s)